ՀԱՅԱՍՏԱՆԻ ՀԱՆՐԱՊԵՏՈՒԹՅԱՆ ԿԱՌԱՎԱՐՈՒԹՅՈՒՆ
Ո Ր Ո Շ ՈՒ Մ
1 հոկտեմբերի 2015 թվականի N 1206-Ա
ԳՈՒՅՔԻ ՆՎԻՐԱՏՎՈՒԹՅԱՆ ՄԱՍԻՆ
Հիմք ընդունելով Հայաստանի Հանրապետության քաղաքացիական օրենսգրքի 594-րդ հոդվածը՝ Հայաստանի Հանրապետության կառավարությունը որոշում է.
1. Առաջարկել Երևանի քաղաքապետին՝
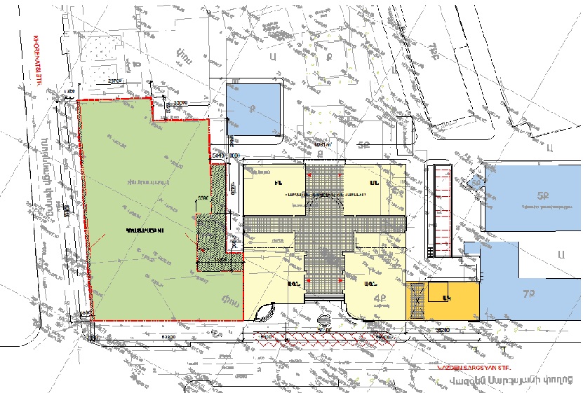
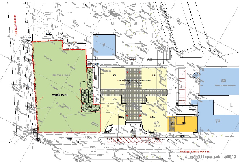
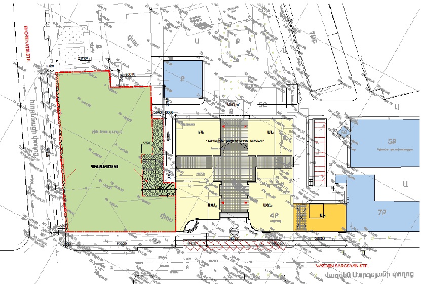
1) Երևանի քաղաքային համայնքի սեփականությունը հանդիսացող Երևանի Վ. Սարգսյան N N 1 և 3 հասցեներում գտնվող տարածքին հարող հողամասերը (այսուհետ՝ հողամաս)՝ համաձայն հավելվածի, նվիրել Հայաստանի Հանրապետությանը.
2) սույն որոշումն ուժի մեջ մտնելուց հետո 15-օրյա ժամկետում ապահովել նվիրատվության հետ կապված նոր հատակագծերի նախագծման, անհրաժեշտության դեպքում հողամասերի գործառնական նշանակության փոփոխման և սեփականության իրավունքի պետական գրանցման համար անհրաժեշտ աշխատանքների իրականացումը՝ համայնքի միջոցների հաշվին.
3) սույն կետի 2-րդ ենթակետում նշված աշխատանքների ավարտից հետո Հայաստանի Հանրապետության կառավարությանն առընթեր պետական գույքի կառավարման վարչության հետ կնքել հողամասի նվիրատվության պայմանագիր՝ հիմք ընդունելով սույն կետի 2-րդ ենթակետում նշված նոր հատակագծերի նախագծման արդյունքում ստացված և սեփականության իրավունքի պետական գրանցման վկայականներում նշված մակերեսները՝ պայմանագրում սահմանելով, որ գույքային իրավունքների պետական գրանցումն իրականացվելու է վարչության միջոցների հաշվին:
2. Հայաստանի Հանրապետության կառավարությանն առընթեր անշարժ գույքի կադաստրի պետական կոմիտեի նախագահին՝ ապահովել հողամասի նկատմամբ Երևանի քաղաքային համայնքի սեփականության իրավունքի, ինչպես նաև նվիրատվության պայմանագրից բխող Հայաստանի Հանրապետության սեփականության իրավունքի պետական գրանցումները:
Հայաստանի Հանրապետության |
Հ. Աբրահամյան |
2015 թ. հոկտեմբերի 21 Երևան |
Հավելված ՀՀ կառավարության 2015 թվականի հոկտեմբերի 1-ի N 1206-Ա որոշման |
Հայաստանի Հանրապետության կառավարության աշխատակազմի ղեկավար-նախարար |
Դ. Հարությունյան |
