«Գրանցված է»
ՀՀ արդարադատության
նախարարության կողմից
23 ապրիլի 2014 թ.
Պետական գրանցման թիվ 11714187
ՀԱՅԱՍՏԱՆԻ ՀԱՆՐԱՊԵՏՈՒԹՅԱՆ
ՔԱՂԱՔԱՇԻՆՈՒԹՅԱՆ ՆԱԽԱՐԱՐ
9 ապրիլի 2014 թ. |
N 103-Ն |
Հ Ր Ա Մ Ա Ն
ՀՀՇՆ31-03.01-2014 «ՀԱՆՐԱԿՐԹԱԿԱՆ ՆՇԱՆԱԿՈՒԹՅԱՆ ՇԵՆՔԵՐ» ՇԻՆԱՐԱՐԱԿԱՆ ՆՈՐՄԵՐԸ ՀԱՍՏԱՏԵԼՈՒ ՄԱՍԻՆ
«Քաղաքաշինության մասին» ՀՀ օրենքի 101 -րդ, 16-րդ հոդվածների, «Իրավական ակտերի մասին» ՀՀ օրենքի 70-րդ հոդվածի 1-ին մասի և Հայաստանի Հանրապետության կառավարության 2003 թվականի փետրվարի 20-ի թիվ 156-Ն որոշման համաձայն.
Հրամայում եմ`
Հաստատել «ՀՀՇՆ 31-03.01-2014 «Հանրակրթական նշանակության շենքեր» շինարարական նորմերը»՝ համաձայն հավելվածի։
Նախարարի պաշտոնակատար |
Ս. Թադևոսյան |
Հավելված Հաստատված է ՀՀ քաղաքաշինության նախարարի 2014 թվականի ապրիլի 9-ի N 103-Ն հրամանով |
ՀԱՆՐԱԿՐԹԱԿԱՆ ՆՇԱՆԱԿՈՒԹՅԱՆ ՇԵՆՔԵՐ
ՀՀՇՆ 31-03.01-2014
______________________________________________________
Գործարկման թվականը
I. ԿԻՐԱՌՄԱՆ ՈԼՈՐՏ
1. «Հանրակրթական նշանակության շենքեր» շինարարական նորմերը /այսուհետ` շինարարական նորմեր/ սահմանում են հանրակրթական հաստատությունների տեղադրմանը, շենքերի տակ գտնվող և սպասարկման համար անհրաժեշտ հողատարածքին, շենքային համալիրներին, գործառական խմբերի կազմակերպմանը, սենքերի կազմին և մակերեսներին, ծավալահատակագծային և կոնստրուկտիվ լուծումներին, լուսավորվածությանը, ինժեներական կահավորանքին, ինչպես նաև շենքերի ներքին միջավայրի կազմակերպմանը ներկայացվող հիմնական պահանջները։
2. Սույն շինարարական նորմերը տարածվում են Հայաստանի Հանրապետությունում նոր կառուցվող և վերակառուցվող հանրակրթական նշանակության շենքերի նախագծման վրա, անկախ դրանց սեփականության և կազմակերպաիրավական ձևից։ Պատմության և մշակույթի անշարժ հուշարձաններ հանդիսացող հանրակրթական նշանակության շենքերի դեպքում աշխատանքներն անհրաժեշտ է իրականացնել հուշարձանների պահպանության բնագավառի ՀՀ օրենսդրության պահանջներին համապատասխան:
II. ՆՈՐՄԱՏԻՎ ՎԿԱՅԱԿՈՉՈՒՄՆԵՐ
3. Սույն շինարարական նորմերում վկայակոչված են հետևյալ նորմատիվ փաստաթղթերը.
1) ՀՀՇՆ I-4.02-99 Շենքերի և կառուցվածքների վերակառուցում, վերականգնում և ուժեղացում. Հիմնական դրույթներ,
2) ՀՀՇՆ II-5.01-98 Քաղաքաշինական համակարգերի հուսալիություն. Հիմնական դրույթներ,
3) ՀՀՇՆ II- 6.02-2006 Սեյսմակայուն շինարարություն. Նախագծման նորմեր,
4) ՀՀՇՆ II- 8.03-96 Արհեստական և բնական լուսավորում,
5) ՀՀՇՆ II-8.04.01-97 Շենքերի և կառուցվածքների հրդեհային անվտանգություն,
6) ՀՀՇՆ IV-11.03.03-2002 Ավտոկայանատեղեր,
7) ՀՀՇՆ IV-11.07.01-2006 Շենքերի և շինությունների մատչելիությունը բնակչության սակավաշարժուն խմբերի համար,
8) ՀՀՇՆ IV-12.02.01-2004 Ջեռուցում, օդափոխություն և օդի լավորակում,
9) ՍՆԻՊ 2.04.01-85 Շենքերի ներքին ջրամատակարարում և կոյուղի:
III. ՏԵՐՄԻՆՆԵՐ ԵՎ ՍԱՀՄԱՆՈՒՄՆԵՐ
4. Սույն շինարարական նորմերում կիրառված են հետևյալ տերմիններն իրենց սահմանումներով.
1) անհատական ուսուցում` պետական կրթական չափորոշչին համապատասխան կազմված անհատական ուսումնական պլանի հիման վրա կրթական ծրագրերի իրականացման ձև.
2) դաս` ուսումնական հաստատությունում խմբային ուսուցման կազմակերպման հիմնական ձև,
3) դասարան` ըստ սովորողների տարիքի և նրանց կողմից ուսումնական ծրագրի յուրացման արդյունքի կազմավորված ուսումնական խումբ,
4) դասասենյակ` առարկայական ծրագրերի իրականացման համար նախատեսված սենք,
5) զուգահեռ դասարաններ` ըստ սովորողների տարիքի և նրանց կողմից ուսումնական ծրագրի յուրացման արդյունքի զուգահեռաբար կազմավորված ուսումնական խմբեր,
6) լաբորատորիա` լաբորատոր փորձերի իրականացման և ցուցադրման համար անհրաժեշտ տեխնիկական հնարավորություններով և կահավորանքով ապահովված դասասենյակ,
7) լաբորանտական` ուսուցչի և լաբորանտի կողմից փորձերը նախապատրաստելու և սարքերի, սարքավորումների, նյութերի պահպանման համար նախատեսված սենք,
8) խառը լուսավորվածություն` բնական և արհեստական լուսավորության համատեղում:
9) խմբեր` առանձին առարկաների դասաժամերին դասարանը կարող է բաժանվել 4-8 աշակերտներից բաղկացած խմբերի,
10) համալիր լուսավորվածություն` հիմնական, կողային և տանիքային բնական լուսավորության համատեղում,
11) հանրակրթական ուսումնական հաստատություն (այսուհետ` ուսումնական հաստատություն)` իրավաբանական անձի կարգավիճակ ունեցող կազմակերպություն կամ դրա ստորաբաժանում, որն իրականացնում է հանրակրթական հիմնական ծրագիր(եր),
12) հատուկ հանրակրթական դպրոց` կրթության առանձնահատուկ պայմանների կարիք ունեցող, ինչպես նաև հակասոցիալական վարք դրսևորող սովորողների համար հանրակրթական հիմնական ծրագրեր իրականացնող ուսումնական հաստատության տեսակ,
13) ճակատային պարապմունքներ` պարապմունքներ, երբ աշակերտները նստում են դեմքով դեպի գրատախտակը.
14) մասնագիտացված հանրակրթական դպրոց` ռազմագիտության, սպորտի, արհեստների, արվեստի կամ գիտության որևէ բնագավառում հանրակրթական հիմնական մասնագիտացված ծրագրեր իրականացնող ուսումնական հաստատության տեսակ,
15) մասնագիտացված կաբինետ` որոշակի ուսումնական առարկայի խորացված ուսուցման համար հատկացված և համապատասխան կահավորմամբ ապահովված դասասենյակ,
16) մարզական բլոկ-սեկցիա` մարզադահլիճ, հանդերձարաններ, գույքի սենք, բուժկետ և մարզչի կաբինետ ներառող ինքնուրույն կառույց,
17) ռեսուրսային կենտրոն` ավագ դպրոցներում կրթության բարձր որակ ապահովելու նպատակով ուսումնական սենքերին կից ժամանակակից կենտրոններ (գրադարաններ, լաբորատորիաներ՝ համալրված էլեկտրոնային և տպագրական, ժամանակակից ցուցադրական (դիտակտիկ) և ուսումնական նյութերով),
18) ուսումնական բլոկ-սեկցիա` ուսումնական սենքերի խումբ, ռեկրեացիա, ռեսուրսային կենտրոն և սանհանգույցներ ներառող ինքնուրույն կառույց,
19) ֆորում` ռեկրեացիոն կենտրոն:
IV. ԸՆԴՀԱՆՈՒՐ ԴՐՈՒՅԹՆԵՐ
5. Ուսումնական հաստատությունը, ըստ դրանում իրականացվող հանրակրթական հիմնական ծրագրերի, դասվում է հետևյալ տեսակների`
1) հանրակրթական դպրոց,
2) մասնագիտացված հանրակրթական դպրոց,
3) հատուկ հանրակրթական դպրոց:
6. Ուսումնական հաստատությունը, ըստ դրանում իրականացվող կրթական ծրագրերի աստիճանի, լինում է՝
1) տարրական դպրոց (1 - 4 -րդ դասարաններ),
2) միջին դպրոց (5 - 9 - րդ դասարաններ),
3) հիմնական դպրոց (1 - 9 - րդ դասարաններ),
4) ավագ դպրոց (10 - 12 - րդ դասարաններ),
5) վարժարան (5 - 12 - րդ դասարաններ),
6) միջնակարգ դպրոց (1 - 12 - րդ դասարաններ):
7. Հանրակրթական հաստատության մաս են կազմում մասնագիտացված դպրոցները և արհեստագործական դպրոցները, որոնք ապահովում են առանձին առարկաների կամ մասնագիտությունների խորացված ուսուցում։
8. Հանրակրթական հաստատությունների տարողունակությունը (աշակերտների ընդհանուր քանակը) սահմանվում է տվյալ տարածքի սոցիալական առանձնահատկությունների, բնակչության խտության, ժողովրդագրական կազմի, աշակերտների տարբերակման /դիֆերենցված/ տարիքային կազմի, տարածքի ինժեներաերկրաբանական, քաղաքաշինական և բնապահպանական առանձնահատկությունների, կրթական հաստատված ծրագրերի հիման վրա կազմված նախագծային առաջադրանքով, բայց 1000 սովորողից ոչ ավելի /ՀՀՇՆ II-5.01 շինարարական նորմեր/։ Բնակելի միավորներում հանրակրթական հաստատությունների քանակը և տեղաբաշխումը որոշվում է ՍՆԻՊ 2.07.01 շինարարական նորմերով:
9. Հանրակրթական հաստատությունների դասարաններում և երկարօրյա խմբերում աշակերտների քանակը մեկ դասարանում սահմանվում է 25 սովորողից ոչ ավելի։ Հանրակրթական հաստատությունների ավագ դպրոցում թույլատրվում է դասարանների լրակազմն իջեցնել մինչև 20 սովորող:
10. Կառուցապատված տարածքներում գոյություն ունեցող հանրակրթական հաստատությունների վերակառուցման դեպքում աշակերտների քանակը դասարաններում թույլատրվում է հաշվարկել, ելնելով ուսումնական սենքի ծավալահատակագծային հնարավորություններից, չնվազեցնելով մեկ սովորողին 2.5 մ2 հատկացվող մակերեսը։
11. Հանրակրթական ուսումնական հաստատությունների կառուցվածքը և ընդհանուր տարողունակությունը սահմանվում է նախագծային առաջադրանքով և սույն շինարարական նորմերի 3-րդ, 4-րդ հավելվածների պահանջներին համապատասխան։
V. ՀԱՆՐԱԿՐԹԱԿԱՆ ՀԱՍՏԱՏՈՒԹՅՈՒՆՆԵՐԻ ՑԱՆՑԻՆ, ԿԱԶՄԻՆ ԵՎ ՏԵՍԱԿՆԵՐԻՆ ՆԵՐԿԱՅԱՑՎՈՂ ՀԻՄՆԱԿԱՆ ՊԱՀԱՆՋՆԵՐ
12. Հանրակրթական հաստատությունների ցանցն անհրաժեշտ է տեղակայել որպես ուսումնադաստիարակչական հաստատությունների համակարգի հիմնական կառուցվածք, որը հանրակրթականից բացի պետք է ներառի արտադպրոցական և աշխատանքային ուսուցումը:
13. Հանրակրթական հաստատությունների տեսակները կարող են տարբերվել կազմակերպական կառուցվածքով /միևնույն տարիքային խմբերի զուգահեռ դասարանների քանակով/, ուսումնադաստիարակչական գործընթացի կազմակերպման բովանդակությամբ, ձևով և մեթոդներով, ինչպես նաև մասնագիտացման ուղղվածությամբ:
14. Հանրակրթական հաստատությունների ցանցի կազմակերպմանը, շենքերի տիպերին և տեսակներին ներկայացվող հիմնական պահանջները տրված են սույն շինարարական նորմերի 3-րդ, 4-րդ հավելվածներում:
15. Հանրակրթական հաստատությունները կարող են միավորվել տարբեր մակարդակների կրթական ծրագրեր իրականացնող ուսումնական համալիրների` ինքնուրույն գործող բլոկներով, որոնք կազմավորվում են առանձին միավորներով՝ մոդուլներով։
16. Հանրակրթական հաստատությունների շենքերի համալիրների հաշվարկի ժամանակ, մեկ հերթ ուսուցման դեպքում, անհրաժեշտ է աշակերտական տեղերի քանակն ընդունել 100% ցածր և միջին տարիքային խմբերի և 75% բարձր տարիքային խմբերի սովորողների համար:
17. Հանրակրթական հաստատությունների շենքերում աշակերտների քանակն անհրաժեշտ է սահմանել հաշվի առնելով տվյալ տարածքի զարգացման հեռանկարները և բնակչության ժողովրդագրական կազմը:
18. Հանրակրթական հաստատությունից մինչև տուն սպասարկման շառավիղը նախատեսվում է 500մ՝ հետիոտնի հասանելիության համար /որտեղ պետք է հաշվի առնել նաև տարածքի ռելիեֆային պայմանները/ կամ որոշվում է տրանսպորտային հասանելիության առավելագույն ժամանակով՝ տարրական դասարանների համար` 10-15 րոպե, միջին դասարանների համար` 30 րոպե, ավագ դասարանների համար` 45 րոպե:
VI. ՀԱՆՐԱԿՐԹԱԿԱՆ ՀԱՍՏԱՏՈՒԹՅՈՒՆՆԵՐԻ ՏԵՂԱԴՐՄԱՆԸ ԵՎ ՀՈՂԱՄԱՍԵՐԻ ԳՈՐԾԱՌԱԿԱՆ ԿԱՌՈՒՑՎԱԾՔԻՆ ՆԵՐԿԱՅԱՑՎՈՂ ՀԻՄՆԱԿԱՆ ՊԱՀԱՆՋՆԵՐ
19. Հանրակրթական հաստատությունների համար տարածքների ընտրությունն անհրաժեշտ է կատարել՝ հաշվի առնելով բնակչության ժողովրդագրական կազմը, խտությունը, տեղանքի քաղաքաշինական, բնակլիմայական և երկրաբանական առանձնահատկությունները, քամիների ուղղությանը, գոյություն ունեցող և նախատեսվող օբյեկտների սանիտարապաշտպանիչ գոտիները, տարածքի զարգացման հեռանկարները:
20. Հանրակրթական հաստատությունների տեղաբաշխումը պետք է իրականացնել` ապահովելով բնակելի միավորներում դրանց սպասարկման շառավիղը, իսկ տարածական լուծման առումով հնարավորինս պետք է լինեն մեկուսացված տրանսպորտային կենտրոնական հաղորդակցուղիներից և պաշտպանված լինեն աղմուկից:
21. Հանրակրթական նշանակության շենքերի տեղադրման ժամանակ առաջնորդվել ՍՆԻՊ 2.07.01 և ՀՀՇՆ II-5.01 շինարարական նորմերի պահանջներով։
22. Հանրակրթական հաստատությունների հողամասերում անհրաժեշտ է նախատեսել հետևյալ հիմնական գործառնական գոտիները՝ ուսումնամարզական, ուսումնափորձարարական, հանգստի և տնտեսական:
23. Գործառնական գոտիների մակերեսները հաշվարկելիս անհրաժեշտ է հաշվի առնել սույն շինարարական նորմերի 6-րդ հավելվածում տրված ցուցանիշները:
24. Կառուցապատված տարածքներում հանրակրթական նշանակության շենքերի տեղադրման ժամանակ հիմնական գոտիների կազմը և մակերեսները կարող են կրճատվել, որը սահմանվում է նախագծման առաջադրանքով, բայց ոչ ավելի քան 30%։
25. Հանրակրթական հաստատությունների հողամասերի սահմանից մինչև բնակելի շենքերն ու օժանդակ շինությունները, հասարակական և այլ նպատակային նշանակության շենքերը ընդունել հակահրդեհային, ինսոլյացիոն, բնական լուսավորվածության և աղմուկից պաշտպանության նորմատիվ պահանջներով՝ բայց ոչ պակաս 10մ-ը: Ընդ որում հողամասերի սահմանից մինչև այլ նպատակային նշանակության շենքերի ու շինությունների միջտարածությունները պետք է համապատասխանեն ՍՆԻՊ 2.07.01 շինարարական նորմերի պահանջներին:
26. Հանրակրթական հաստատությունների տարածքներում ըստ գործառական բլոկների խմբավորումը հարկավոր է նախագծել չխաչվող առանձնացված բակային լուծումներով, կից նախատեսելով բացօթյա ռեկրեացիոն տարածքներ, որոնք կարող են օգտագործվել ուսումնական դասընթացների ընդմիջումների ժամանակ։
27. Հանրակրթական հաստատությունների ուսումնամարզական գոտում առաջարկվում է նախատեսել՝ թեթևատլետիկական միջուկ՝ 250 մ երկարությամբ շրջանաձև վազքուղով, բասկետբոլի, վոլեյբոլի, թենիսի դաշտեր, փոքրերի և մեծերի համար մարմնամարզության հարթակներ, մարզական խաղերի համալիր հարթակներ և այլն։ Ուսումնամարզական գոտին ցանկալի է տեղադրել ընտրված տարածքի հարթ հատվածի վրա:
28. Ուսումնամարզական գոտու կահավորանքը պետք է ապահովի ֆիզիկական դաստիարակության ուսումնական ծրագրերի կատարումը, ինչպես նաև արտադասարանական սպորտային պարապմունքների և առողջարարական միջոցառումների անցկացումը:
29. Ուսումնամարզական գոտին չի թույլատրվում տեղադրել դասասենյակների պատուհանների կողմից, այն պետք է տեղադրել ծառերով և թփերով ձևավորված կանաչ տնկարկների գոտուց հետո: Գնդակով սպորտային խաղերի և պիտույքների նետումով մարմնամարզական հարթակները անհրաժեշտ է տեղադրել շենքերի պատուհաններից 25 մ հեռավորությամբ, իսկ 3 մ բարձրությամբ ցանկապատի առկայության դեպքում՝ 15 մ հեռավորության վրա: Մարզական խաղերի այլ տեսակների հարթակները տեղադրել ոչ պակաս 10 մ հեռավորության վրա։
30. Հանրակրթական հաստատությունների ուսումնական ծրագրերին համապատասխան ուսումնամարզական գոտու տարածքում կարող է նախատեսվել նախնական ռազմական պատրաստության հատված, որտեղ պետք է նախագծել արգելքներով վազքուղի, հրաձգարան, ռազմական գույքի պահեստ և հրահանգչի սենյակ։
31. Ուսումնափորձարարական գոտին չպետք է գրավի հանրակրթական հաստատությունների ընդհանուր տարածքի 25%-ից ավել տարածք: Ուսումնափորձարարական գոտում առաջարկվում է նախատեսել տարրական դասարանների հատվածը, տարբեր գյուղատնտեսական կուլտուրաների մշակության փորձարարական տարածքների հատվածը, ջերմոցների հատվածը` կենդանաբանական անկյունով, աշխարհագրական հարթակ, ինչպես նաև կենսաբանության բացօթյա հարթակ, որը օգտագործվում է որպես դասարանից դուրս բացօթյա դասընթացների կազմակերպման վայր։
32. Տարածքների սղության կամ վերակառուցման պարագայում հնարավոր է ուսումնափորձարարական գոտու կրճատում, եթե այն չի հանգեցնում ուսումնական գործընթացի խաթարմանը։
33. Կենսաբանության խորացված ուսուցմամբ դպրոցներում հնարավոր է նշված մակերեսների հիմնավորված ավելացումը։
34. Հանրակրթական հաստատությունների զբաղեցրած հողատարածքներում ուսումնական շենքերին կից անհրաժեշտ է նախատեսել հանգստի և ռեկրեացիոն գոտի, որտեղ առաջարկվում է նախատեսել՝
1) շարժուն խաղերի հարթակներ տարրական դպրոցի աշակերտների համար (2-4 դասարաններ)` 100 մ2 մեկ դասարանի հաշվարկով, 6 տարեկանների համար (1 դասարան)` 180 մ2 մեկ դասարանին, սակայն ոչ պակաս 7,2 մ2 մեկ աշակերտին, 5-9 - րդ դասարանների աշակերտների համար` 25 մ2 մեկ դասարանին.
2) պասիվ հանգստի հարթակներ հիմնական դպրոցի աշակերտների 75%- ի համար` մեկ դասարանին 25 մ2 հաշվարկով.
3) ուսումնամարզական գոտի, որը համարվում է բարձր դասարանների աշակերտների համար հանգստի գոտի:
35. Հանրակրթական հաստատությունների զբաղեցրած հողատարածքներում տնտեսական գոտին նախագծվում է հաշվի առնելով տեղական պայմանները, այն պետք է ապահովի փողոցի կողմից աշակերտների հոսքի հետ չհատվող տրանսպորտի մոտեցում, տեղադրված լինի դպրոցի ճաշարանի արտադրական սենքերի կողմից` ուսումնափորձարարական գոտուն կից։
36. Տնտեսական գոտում թույլատրվում է նախատեսել ուսումնական ավտոկայանատեղեր, գույքի և կահավորանքի պահեստներ, խորդանոցներ։ Ուսումնական գործընթացի կազմակերպման համար անհրաժեշտ, հավելյալ, տնտեսական կառույցների կազմը և մակերեսները սահմանվում են նախագծման առաջադրանքով։
37. Հանրակրթական հաստատությունների տարածքներում, հիմնականում գլխավոր մուտքերի դիմաց, առաջարկվում է նախատեսել սալարկված տարածքներ աշակերտների հավաքի և մասսայական միջոցառումների կազմակերպման համար։
38. Բարդ տեղանքի և տարածքի քաղաքաշինական սահմանափակումների առկայության դեպքում թույլատրվում է տնտեսական և օժանդակ կառույցների տանիքները նախագծել որպես շահագործվող տանիքներ` հանգստի գոտիներ կազմակերպելու նպատակով։ Շահագործվող տանիքներում անհրաժեշտ է նախատեսել առնվազն երկու տարհանման ելքեր։ Շահագործվող տանիքները պետք է ունենան առնվազն 1,6 մ բարձրությամբ ցանկապատեր` առանց հորիզոնական բաժանումների։ Ուղղահայաց բաժանումների հեռավորությունները չպետք է գերազանցեն 0,1 մ-ը։
39. Հողամասին կից, տնտեսական գոտու կողմից, անհրաժեշտ է նախատեսել ուսուցիչների և աշխատակիցների ավտոմեքենաների համար կայանատեղեր` առաջնորդվելով ՀՀՇՆ ՀՀՇՆ IV-11.03.03 շինարարական նորմերի պահանջներով:
40. Հանրակրթական հաստատությունների տարածքներում շենքերին ու շինություններին հրշեջ ավտոմեքենաների և ավտոսանդուղքների մոտեցման և շրջանցի ճանապարհները պետք է համապատասխանեն ՍՆԻՊ 2.07.01 շինարարական նորմերի պահանջներին: Նշված ճանապարհները պետք է ունենան կոշտ ծածկույթ:
41. Հանրակրթական հաստատությունների տարածքները (հողամասերը) իրենց ողջ պարագծով պետք է ցանկապատված լինեն։ Ցանկապատի բարձրությունը ընդունել ոչ պակաս 1,5 մ։ Այն պետք է արգելի աշակերտների ազատ ելքը փողոցի բանուկ հատված։ Տարածքը պետք է լինի բարեկարգված, լուսավորվող և հիմնական անցումներն ու մոտեցումները սալարկված։ Միջին հորիզոնական լուսավորվածությունը ընդունել ՀՀՇՆ II-8-03 շինարարական նորմերի 12-րդ աղյուսակի պահանջներին համապատասխան։
42. Հանրակրթական հաստատությունների տարածքը պետք է կանաչապատվի և ապահովի անհրաժեշտ բնակլիմայական միջավայր։ Կանաչ տարածքը պետք է ունենա հանրակրթական հաստատությունների զբաղեցրած տարածքի 50 % -ից ոչ պակաս մակերես։
43. Կանաչապատված տարածքները ներառում են ուսումնամարզական, ուսումնափորձարարական, հանգստի գոտիների, սիզամարգերի և այլ կանաչ տնկարկների մակերեսները։
44. Եթե հանրակրթական նշանակության հաստատությունների տարածքներն անմիջականորեն հարում են ընդհանուր օգտագործման կանաչ տնկարկներին (այգիներ, պուրակներ, անտառայգիներ և այլն), ապա կանաչապատման մակերեսը կարող է կրճատվել մինչև 10% - ի չափով։
45. Բնակելի գոտին /հանրակացարանային շենքերի համալիրը/ նախագծվում է բնակելի շենքերին ներկայացվող նորմատիվ պահանջներից ելնելով։
46. Հանրակրթական հաստատության շենքերը պետք է ապահովվեն հրդեհի ազդանշանման ու ազդարարման համակարգերով և պահակակետով։
VII. ՍԵՆՔԵՐԻ ԳՈՐԾԱՌՆԱԿԱՆ ԽՄԲԵՐԻՆ, ԿԱԶՄԻՆ ԵՎ ՄԱԿԵՐԵՍՆԵՐԻՆ ՆԵՐԿԱՅԱՑՎՈՂ ՊԱՀԱՆՋՆԵՐ
47. Հանրակրթական հաստատությունների շենքերը պետք է բաղկացած լինեն ուսումնական և համադպրոցական սենքերի խմբերից և բաժանված լինեն առանձին գործառական խմբերի /հավելված 5/: Հանրակրթական հաստատության ուսումնական խմբի սենքերը պետք է տարբերակված լինեն կրթական երեք աստիճաններին և նշված տարիքային խմբերի սպասարկման տեխնոլոգիական սենքերին համապատասխան։ Խորացված ուսուցմամբ ավագ դպրոցի սենքերը պետք է բաղկացած լինեն մասնագիտացված կաբինետների զարգացած ցանցից:
48. Հանրակրթական նշանակության շենքերի ծավալահատակագծային կառուցվածքը, գործառնական բլոկների համալիր կազմով, պետք է համապատասխանի հաստատության նշանակությանը, առանձնահատկություններին, շահագործման հարմարավետությանը, հրդեհային անվտանգության ապահովվածությանը, տեղի բնակլիմայական պայմաններին՝ ներառյալ հողամասի հետ օրգանական կապի ապահովումը։
49. Հանրակրթական հատատությունների շենքերի ծավալահատակագծային և կոնստրուկտիվ լուծումները պետք է համապատասխանեն ՀՀՇՆ II-6.02 ՀՀՇՆ II-8.04 շինարարական նորմերի պահանջներին:
50. Բոլոր տեսակի հանրակրթական հաստատությունների դասասենյակների և մասնագիտացված կաբինետների սենքերի քանակն ընդունվում է հաստատության մանկավարժական-կազմակերպչական կառուցվածքի ուսումնական խմբերի քանակին համապատասխան:
51. Դասասենյակների և մասնագիտացված կաբինետների մակերեսներն ընդունվում են՝ ոչ պակաս 2.5 մ2 մեկ աշակերտի համար` ճակատային պարապմունքների դեպքում, 3.0 մ2 մեկ աշակերտի համար` խառը /ճակատային և խմբային/ պարապմունքների, ինչպես նաև բնական գիտությունների մասնագիտացված կաբինետների և լաբորատորիաների համար, 3.5 մ2 մեկ աշակերտի համար` դասավանդման խմբային ձևերի կամ անհատական պարապմունքների դեպքում, 7.5 մ2 մեկ աշակերտի համար` աշխատանքի ուսուցման և տեխնոլոգիաների արհեստանոցներում:
52. Հանրակրթական հաստատությունների սենքերի գործառական խմբերի կազմը և մակերեսները հաշվարկել համաձայն սույն շինարարական նորմերի 8-րդ հավելվածի /աղյուսակներ 1-11/:
53. Ավագ մասնագիտացված դպրոցի սենքերի կազմը և մակերեսները /ի տարբերություն ավանդական միջնակարգ դպրոցի/ ձևավորվում են մասնագիտացված ուսումնական սենքերի բլոկներից, որոնք իրեն մեջ ներառում են տարբեր նշանակության սենքեր /տեսության, գործնական, պահեստային/:
54. Յուրաքանչյուր ուսումնական բլոկ ապահովում է առանձին առարկայի խորացված ուսուցում, պայմանավորված հաստատության մասնագիտական ուղղվածությունից՝ հումանիտար, բնագիտական կամ տեխնիկական:
55. Ուսումնական բլոկի կազմում անհրաժեշտ է ներառել մասնագիտացված ուսումնական կաբինետ, լաբորատորիա՝ ճակատային պարապմունքների համար, ինչպես նաև լաբորանտական և այլն /ռեսուրսային կենտրոն, պահեստ/:
56. Մասնագիտացված լաբորատորիաների մակերեսները անհրաժեշտ է ընդունել մեկ տեղի համար 3.5 մ2, լաբորանտականների համար՝ 21 մ2 մեկ սենքին:
57. Մասնագիտասված ուսումնական կաբինետ-լաբորատորիաների քանակը հաշվարկվում է յուրաքանչյուր առարկայի ուսումնական ժամերին /տեսական և գործնական/ համապատասխան:
VIII. ԾԱՎԱԼԱՀԱՏԱԿԱԳԾԱՅԻՆ ԼՈՒԾՈՒՄՆԵՐԻՆ ՆԵՐԿԱՅԱՑՎՈՂ ՊԱՀԱՆՋՆԵՐ
58. Հանրակրթական հաստատությունների շենքերի վերգետնյա հարկերի թիվը չպետք է գերազանցի երեքը։ Առանձին դեպքերում, ինչպես նաև գոյություն ունեցող շենքերի վերակառուցման ժամանակ, թույլատրվում է նախատեսել 4-րդ հարկ, որտեղ արգելվում է նախատեսել տարրական դպրոցի դասարաններ։
59.Հանրակրթական հաստատությունների շենքերի վերակառուցման ժամանակ շենքերի և կառուցվածքների սեյմազինվածության մակարդակը պետք է ընդունել ըստ ՀՀՇՆ I-4.02 շինարարական նորմերի պահանջների:
60. Հանրակրթական հաստատությունների շենքերի վերգետնյա հարկերի բարձրությունը պետք է լինի ոչ պակաս 3,3 մ /հատակից հատակ/։ Մասնագիտացված կաբինետների, լսարանների բարձրությունը նախագծվում է տեխնոլոգիական պահանջներից ելնելով։ Դահլիճների բարձրությունը ընդունվում է ՍՆԻՊ 2.08.02 և սույն շինարարական նորմերի 7-րդ հավելվածի 4-րդ և 5–րդ աղյուսակների պահանջներին համապատասխան:
61. Հանրակրթական հաստատությունների գործառնական մոդելին համապատասխան շենքերի ճարտարապետական կառուցվածքը պետք է ունենա հետևյալ տարածական լուծումները՝
1) հանրակրթական հաստատությունների սենքերն անհրաժեշտ է տարանջատել երկու հիմնական խմբերի` ուսումնական և համադպրոցական, ռեկրեացիոն կենտրոնը պետք է հանդիսանա երկուսի միջև կապող օղակ,
2) սենքերի ուսումնական խմբերը պետք է տարբերակված /դիֆերենցված/ լինեն I, II և III աստիճանի դպրոցների և տարանջատված տվյալ տարիքային խմբերի սպասարկման համար:
62. Ուսումնական սենքերը պետք է խմբավորվեն ուսումնական սեկցիաներում.
1) հանրակրթական դպրոցի 1-ին դասարանների համար ուսումնական սեկցիաներում անհրաժեշտ է նախատեսել երեքից ոչ ավելի ննջարան-խաղասենյակներով և սանհանգույցներով համալրված դասասենյակներ։
2) 2-4-րդ դասարանների ուսումնական սեկցիաներում անհրաժեշտ է նախատեսել վեցից ոչ ավելի դասասենյակներ՝ ռեկրեացիաներով և սանհանգույցներով, ինչպես նաև երկարօրյա խմբերի համար աշխատանքային սենքեր։ Վերջիններս կարող են տեղադրվել ուսումնական սեկցիաներից դուրս, սակայն նշված սովորողների համար նախատեսված սենքերի կազմում։
3) Երկրորդ և երրորդ աստիճանի 5-9-րդ, 10-12-րդ դասարանների ուսումնական բլոկներում անհրաժեշտ է խմբավորել դասասենյակ-կաբինետները և լաբորատորիաները՝ համապատասխան ընդհանուր ռեկրեացիաներով և սանհանգույցներով։
4) Մասնագիտացված ուսումնական կաբինետները և արհեստանոցներն անհրաժեշտ է խմբավորել ըստ դասավանդման մեթոդաբանության և կիրառվող տեխնոլոգիաների նմանության։
5) 1-ին, 2-4-րդ դասարանների ուսումնական բլոկ-սեկցիաները պետք է լինեն հնարավորին չափ առանձնացված և տարիքային մյուս խմբերի համար ոչ միջանցիկ։
6) 5-12-րդ դասարանների ուսումնական սեկցիաների սանհանգույցները թույլատրվում է տեղաբաշխել ուսումնական բլոկներից դուրս, իսկ երկհարկանի շենքերում կենտրոնացնել հարկերից մեկում։ Սանհանգույցների մուտքերը չի կարելի տեղադրել դասասենյակների մուտքերի անմիջական հարևանությամբ կամ նրանց դիմաց:
63.Հանրակրթական հաստատությունների գործառական կառուցվածքը տրված է սույն շինարարական նորմերի 13-րդ հավելվածում։
64. Ուսումնական գործառական բլոկ-սեկցիաները պետք է ձևավորվեն տարբերակված /դիֆերենցված/` աշակերտների տարիքային կազմին համապատասխան, դասարան-ռեկրեացիա-սանհանգույցներ համակարգով, լինեն ոչ միջանցիկ և ապահովեն դասարան-դասարան, կաբինետ-լաբորատորիա, լաբորատորիա-ուսումնափորձարարական գոտի տրանսֆորմացիայի առավելագույն հնարավորությունը։
65. Տարբեր տարիքային խմբերի համար ուսումնական բլոկ-սեկցիաները պետք է ունենան համապատասխան ռեկրեացիոն տարածք, որոնք պետք է նախագծվեն առանց հատվելու հաստատության մեկ ընդհանուր ռեկրեացիոն (ֆորում) տարածքով։ Տարրական դասարանների համար պետք է նախատեսել ընդհանուր խաղերի սենյակ, իսկ միջին և ավագ դպրոցի համար պետք է նախատեսել հանդիսությունների դահլիճ՝ ճեմասրահով։ Խաղերի սենյակի բարձրությունը ընդունել ոչ պակաս 3,3 մ, հանդիսությունների դահլիճի բարձրությունը ընդունել ոչ պակաս 4,0 մ։
66. Հանրակրթական հաստատությունների գործառական բլոկ-սեկցիաները պետք է խմբավորվեն հիմնականում մեկ շենքում` առանձնացված, ապահովելով առանձին բլոկ-սեկցիաների գործառնական կապերը տաքացվող միջանցքներով: Բարդ ռելիեֆի պայմաններում, համապատասխան բնակլիմայական պայմանների առկայության պարագայում, ըստ նախագծման առաջադրանքի, թույլատրվում են բացօթյա անցումներ։
67. Ֆիզիկայի, քիմիայի, բնագիտության լաբորատորիաները ցանկալի է տեղաբաշխել ստորին հարկերում՝ ապահովելով բակային տարածքի հետ անմիջական կապ։
68. Հանրակրթական հաստատությունների հիմնական ուսումնական սենքերի մակերեսների հաշվարկային ցուցանիշներն ընդունվում են համաձայն 7-րդ հավելվածում /աղյուսակներ 1-12/ տրված ցուցանիշների։
69. Համադպրոցական սենքերի խումբն առաջարկվում է տեղակայել ուսումնական սեկցիաներից առանձնացված:
70. Հանրակրթական հաստատությունների արտադպրոցական սենքերը կարող են լինել առանձին կամ խմբավորվել վարչատնտեսական բլոկում։ Աշխատանքի ուսուցման արհեստանոցների նախագծման ժամանակ անհրաժեշտ է հաշվի առնել հանրակրթական ծրագրերով սովորողների առանձնահատկություններն ըստ տարբեր տարիքային խմբերի և սեռի։ Տնարարության /գործվածքներ, խոհարարություն, կենցաղային էլեկտրոնիկա և այլն/ ուսումնական կաբինետների առաջարկվող հաշվարկային ցուցանիշները բերված են սույն շինարարական նորմերի 7-րդ հավելվածում։
71. Նյութերի /մետաղ, փայտ և այլն/ մշակման, ավտոգործ և տեխնիկայի նորոգման արհեստանոցները նախագծվում են առաջին հարկերում կամ ըստ առաջադրանքի առանձին բլոկներում։ Նշված արհեստանոցների նյութերի և պատրաստի արտադրանքի պահեստները պետք է ապահովվեն անմիջական ելքով դեպի տնտեսական բակ։
72. Մասսայական միջոցառումների և սպորտային դահլիճների բարձրությունները տրված են սույն շինարարական նորմերի 7-րդ հավելվածի 5-6-րդ աղյուսակներում։ Մասնագիտացված կաբինետների, լսարանների բարձրությունները նախատեսվում են ըստ առաջադրանքի՝ տեխնոլոգիական պահանջներից ելնելով։
73. Մարզադահլիճների հատակի մակերեսները ընդունել մեկ սովորողին 1,4մ2 –ից ոչ պակաս հաշվարկով։ Դահլիճների քանակը և չափերն ընդունվում են հանրակրթական հաստատությունների տիպերին, ուսումնամեթոդական կառուցվածքին և նշանակությանը համապատասխան։
74. Մարզադահլիճներին կից պետք է նախատեսել առնվազն մեկ զույգ հանդերձարաններ /տղաների և աղջիկների/, ցնցուղարաններ և զուգարաններ՝ մարզական խաղերի համար նախատեսված դահլիճներին և լողավազաններին կից։
75. Մարզադահլիճները պետք է նախատեսել առաջին հարկերում, հանդիսությունների դահլիճները կարող են տեղակայվել նաև երկրորդ հարկում։ Մարզադահլիճները և հանդիսությունների դահլիճները պետք է ապահովված լինեն անմիջապես դեպի բակ բացվող լրացուցիչ ելքով։
76. Չի թույլատրվում տարբեր տարիքային ուսումնական բլոկների միջով խաչվող կապը դեպի մարզադահլիճներ։ Հանդերձարաններից մարզադահլիճ կապն ապահովել անմիջական կամ առանձնացված միջանցքի միջոցով։ Մարզական գույքի սենքերը դահլիճի հետ պետք է միանան ոչ պակաս 2 մ լայնությամբ և 2,2 մ բարձրությամբ դռան կամ որմնանցքի միջոցով։
77. Լողավազանների շենքերը պետք է նախագծվեն աշակերտների տարբեր տարիքային խմբերի օգտագործման ռեժիմներով։ Տարրական դպրոցի աշակերտները նույն տարածքում պետք է ունենան առանձնացված լողավազան և հանդերձարաններ` սանհանգույցներով։
78. Հանրակրթական հաստատությունների հանդիսությունների և ուսումնամարզական սենքերի մակերեսների հաշվարկային ցուցանիշները ընդունվում են համաձայն 4-5–րդ աղյուսակներում տրված ցուցանիշների։
79. Ճաշարանների ճաշասրահների մակերեսներն ընդունել մեկ նստատեղին 1մ2 -ի հաշվարկով։ Նստատեղերի քանակն ընդունել հանրակրթական հաստատությունների սովորողների, մանկավարժների և վարչական աշխատողների ընդհանուր թվի կեսի հաշվարկով։
80. Տարրական դպրոցի ճաշարանը կարող է նախատեսվել նույն ուսումնական մասնաշենքի տարածքում: Ճաշարան-խոհանոցային բլոկի նախագծման ժամանակ արտադրական մասի համար նախատեսել առանձին տնտեսական մուտք և տրանսպորտի մոտեցում։ Խոհանոցային արտադրական սենքերը նախագծել էլեկտրաջեռուցվող առևտրատեխնոլոգիական սարքավորանքների տեղաբաշխման հաշվարկով։
81. Ճաշասրահին կից պետք է նախատեսել լվացարաններ՝ 1 ծորակ 30 տեղի հաշվարկով։
82. Հանրակրթական հաստատությունների խոհանոցային բլոկի սենքերի մակերեսների հաշվարկային ցուցանիշներն ընդունվում են համաձայն 9-րդ հավելվածում բերված ցուցանիշների։
83. Հանրակրթական հաստատությունների զուգարանների, ցնցուղարանների, լվացարանների մակերեսները և սանիտարական պիտույքների քանակն ընդունել սույն շինարարական նորմերի 7-րդ հավելվածի 12-րդ աղյուսակին համապատասխան։
84. Սանհանգույցներում զուգարանակոնքերը պետք է տեղադրել փակ խցիկներում։ Խցիկները միմյանցից պետք է անջատվեն մինչև հատակ 0,2 մ և հատակից ոչ պակաս 1,8մ բարձրությամբ միջնորմ-էկրաններով։ Խցիկների հատակագծային չափերը պետք է լինեն 0,8x1.2մ։ Աղջիկների համար խցիկներից մեկը պետք է լինի լիարժեք /անձնական հիգիենայի/ 1,8x1,2մ հատակագծային չափերով։
85. Սանհանգույցներում խցիկների և դիմացի պատի միջև անցումը պետք է լինի՝ միզարանների բացակայության դեպքում` 1,5մ, միզարանների առկայության դեպքում` 2,0մ,
86. Անհատական լվացարանների ծորակների հեռավորությունը միմյանցից պետք է լինի ոչ պակաս 0,8մ։
87. Լվացարանների վերին եզրի բարձրությունը հատակից պետք է լինի՝ 0,6մ` 1-ից 4-րդ և 0,7մ` 5-12-րդ դասարանի աշակերտների համար։
88. Լվացարանների և դիմացի պատի միջև անցումը պետք է լինի ոչ պակաս 1,1մ, իսկ լվացարանների երկու շարքերի միջև` 1,6մ։
89. Ցնցուղարանների խցիկները պետք է նախատեսել 0,9x0.9մ հատակագծային չափերով։ Ցնցուղարանների և դիմացի պատի միջև անցումը պետք է լինի ոչ պակաս 0,8մ, իսկ ցնցուղարանների երկու շարքերի միջև` 1,2 մ։
90. Ռեկրեացիայի համար նախատեսված մակերեսներն ընդունել մեկ սովորողին 2 մ2 հաշվարկով և նախատեսել բացօթյա ռեկրեացիայի հետ տրանսֆորմացվելու հնարավորություն։
91. Ռեկրեացիայի սենքերի լայնությունը դասասենյակների, կաբինետների և լաբորատորիաների միակողմանի դասավորության դեպքում պետք է լինի ոչ պակաս 4 մետրից, իսկ դասասենյակների, կաբինետների և լաբորատորիաների երկկողմանի դասավորության դեպքում պետք է լինի ոչ պակաս 6 մետրից:
92. Հանդերձարանները պետք է լինեն առանձնացված և բաժանվեն երեք գոտիների` տարրական, միջին և ավագ տարիքային խմբերի համար:
93. Հանրակրթական հաստատությունների վարչատնտեսական բլոկն անհրաժեշտ է նախատեսել գլխավոր մուտքի մասում։ Այն կարող է լինել երկհարկանի և կարող է համատեղել նախասրահ-հանդերձարանի, վարչատնտեսական և բժշկական սենքերի խմբերը։
94. Ուսուցիչների համար հանդերձարանները նախատեսել մեկ դասարանին երկու տեղի հաշվարկով։
95. Հանրակրթական հաստատությունների գրադարանի և վարչատնտեսական բլոկի կազմը և սենքերի հաշվարկային ցուցանիշները բերված են սույն շինարարական նորմերի 7-րդ հավելվածի 8 –րդ աղյուսակում։
96. Հանրակրթական հաստատությունների շենքերի նկուղային հարկերի տարածքներում անհրաժեշտ է նախատեսել քաղաքացիական պաշտպանության կառույցներ:
IX. ՀԱՇՄԱՆԴԱՄՈՒԹՅՈՒՆ ՈՒՆԵՑՈՂ ԱՆՁԱՆՑ ԵՎ ԲՆԱԿՉՈՒԹՅԱՆ ՍԱԿԱՎԱՇԱՐԺՈՒՆ ԽՄԲԵՐԻ ՈՒՍՄԱՆ ՄԱՏՉԵԼԻՈՒԹՅԱՆ ԱՊԱՀՈՎՄԱՆ ՀԻՄՆԱԿԱՆ ՊԱՀԱՆՋՆԵՐ
97. Հաշմանդամություն ունեցող անձանց և բնակչության սակավաշարժուն խմբերի միջնակարգ կրթությունն իրականացվում է ընդհանուր տիպի, իսկ անհրաժեշտության դեպքում` հատուկ մասնագիտացված ուսումնական հաստատություններում։
98. Հանրակրթական հաստատություններում մտավոր և ֆիզիկական խնդիրներ ունեցող երեխաների կրթության և դաստիարակության համար նպաստավոր պայմաններ ստեղծելու նպատակով նախատեսել նրանց կրթության կազմակերպման հետևյալ տարբերակները՝
1) հանրակրթական հաստատություններում անհատական ծրագրով,
2) հանրակրթական հաստատությունների հատուկ դասարաններում։
99. Հանրակրթական հաստատություններում մտավոր և ֆիզիկական խնդիրներ ունեցող երեխաների կրթությունն անհատական ծրագրով իրականացնելու համար անհրաժեշտ է տվյալ հաստատությունում նախատեսել հատուկ սարքավորված աշակերտական տեղեր։
100. Հանրակրթական հաստատությունների նախագծման ժամանակ անհրաժեշտ է հաշվի առնել հաշմանդամների կողմից, այդ թվում շարժասայլակներով և այլ օժանդակ հարմարանքների օգնությամբ տեղաշարժվող, դրանց օգտագործման հնարավորությունը՝ շենքերի մոտեցումների, մուտքերի և դռների, թեքհարթակների, սանդուղքների և աստիճանների, բազրիքների, վերելակների, լուսամուտների, սանիտարական հանգույցների կահավորման և դրանց բաղկացուցիչ մաս կազմող օժանդակ հարմարանքների նկատմամբ սահմանված պահանջների կիրառմամբ` ղեկավարվելով ՀՀՇՆ IV-11.07.01 շինարարական նորմերի պահանջներով:
X. ՀԱՆՐԱԿՐԹԱԿԱՆ ՆՇԱՆԱԿՈՒԹՅԱՆ ՇԵՆՔԵՐԻՆ ՆԵՐԿԱՅԱՑՎՈՂ ՀԱԿԱՀՐԴԵՀԱՅԻՆ ՊԱՀԱՆՋՆԵՐ
101. Հանրակրթական հաստատությունների շենքերի ծավալահատակագծային լուծումները պետք է համապատասխանեն ՀՀՇՆ II-8.04.01 և ՍՆԻՊ 2.08.02 շինարարական նորմերի և սույն շինարարական նորմերի պահանջներին։
102. Տարահանման ուղիների լայնության հաշվարկի համար հանրակրթական հաստատությունների շենքերի հարկերում միաժամանակ գտնվողների քանակը պետք է հաշվարկվի տվյալ հարկում գտնվող սենքերի տարողունակությունից ելնելով։
103. Այն սենքերից, որտեղ միաժամանակ կարող են գտնվել 15 սովորողից ավել մարդ, ելքի դռների լայնությունը պետք է լինի 0,9մ-ից ոչ պակաս և բացվեն դեպի դուրս` շարժման ուղղությամբ։
104. Միաժամանակյա` 50 մարդուց ավելի ներկայության համար նախատեսված սենքերը պետք է ունենան ոչ պակաս երկու տարահանման ելք:
105. Հարկերից տարահանման ելքերի քանակը պետք է լինի երկուսից ոչ պակաս, եթե դրանում տեղակայված են սենքեր, որոնք պետք է ունենան ոչ պակաս երկու տարահանման ելքեր:
106. Երկու և ավելի տարահանման ելքերի առկայության դեպքում, դրանք պետք է տեղավորվեն ապակենտրոնացված:
107. Տարահանման համար նախատեսված սանդղավանդակները` յուրաքանչյուր հարկի միջանցքներից, սպասասրահներից, նախասրահներից և ճեմասրահներից պետք է անջատված լինեն միջնորմներով և ինքնափակվող հարմարանքներով սարքավորված դռներով:
108. Նախասրահից մինչև երկրորդ հարկ տանող 2-րդ տեսակի սանդուղք կառուցելիս, նախասրահը պետք է առանձնացված լինի միջանցքներից և հարակից սենքերից 1-ին տեսակի հակահրդեհային միջնորմներով:
109. Նկուղային (կամ որմնախարսխային) հարկից, որի սենքերում օգտագործվում կամ պահվում են այրվող նյութեր, առաջին հարկի սենքեր տանող սանդուղքները (ըստ ՀՀՇՆ II-8.04.01 ) պետք է ցանկապատված լինեն 1-ին տեսակի հակահրդեհային միջնորմներով` հրդեհի դեպքում օդի ճնշումով նախամուտք-անցախցերի կառուցմամբ:
110. Կոնստրուկցիաների, նորմավորված հրակայունության աստիճանի ապահովման համար դրանք պետք է տոգորվեն (կամ ծածկվեն) հրապաշտպան նյութերով:
111. Սանդղավանդակները, բացառությամբ U2 տեսակի սանդղավանդակների, յուրաքանչյուր հարկում արտաքին պատերում պետք է ունենան 1,2մ-ից ոչ պակաս մակերեսով լուսաբացվածքներ:
112. Նկուղային կամ որմնախարսխային հարկերում գտնվող սենքերի համար անհրաժեշտ է նախատեսել առնվազն երկու տարհանման ելք անմիջապես դեպի բակ։ Նշված սենքերի համար թույլատրվում է ելքերի կազմակերպումը առաջին հարկ առանձին աստիճանավանդակների միջոցով։
113. Մարզադահլիճի հատակի փայտե կոնստրուկցիաները պետք է ենթարկել հակապիրենով խորը մշակման։ Նստատեղերը թույլատրվում է պատել այրման ժամանակ թունավոր նյութեր չարտազատող նյութերից։
114. Հանդիսությունների դահլիճի և ստեղծագործական խմբակների սենքերը պետք է առանձնացված լինեն հակահրդեհային 1-ին տեսակի միջնորմներով և 3-րդ տեսակի ծածկերով։
115. 200 մ2 և ավել մակերես ունեցող հանդերձարանների սենքերը պետք է կահավորված լինեն ծխահեռացման համակարգով։
116. Հանրակրթական հաստատությունների շենքերում էլեկտրոնային հաշվիչ տեխնիկայի սենքերի սնման համար անցկացվող մալուխների խրամուղիները պետք է նախատեսվեն 0,75 ժամ սահմանային հրակայունությամբ։
117. Փայտամշակման և մետաղամշակման արհեստանոցներից պետք է նախատեսել լրացուցիչ ելք դեպի բակ անմիջապես կամ ուսումնական սենքերի հետ կապ չունեցող միջանցքի միջոցով։
118. Հանրակրթական հաստատությունների շենքերը չի թույլատրվում ջեռուցել կոշտ և հեղուկ վառելիքի և այլ ինքնաշեն վառարանների միջոցով:
119. Հանրակրթական հաստատությունների շենքերում չի թույլատրվում տեղակայել կոշտ և հեղուկ վառելիքի պահեստներ:
120. Հանրակրթական հաստատությունների բոլոր սենքերը` բացառությամբ թաց կետերից, պետք է կահավորված լինեն հրդեհի ազդանշանման և ահազանգման ինքնաշխատ համակարգերով:
121. Հրդեհի տագնապի ազդանշանի փոխանցման համակարգերը պետք է միացված լինեն՝ այդ բնագավառում լիազոր մարմնին:
XI. ՇԵՆՔԵՐԻ ՆԵՐՔԻՆ ՄԻՋԱՎԱՅՐԻ ԿԱԶՄԱԿԵՐՊՄԱՆԸ ՆԵՐԿԱՅԱՑՎՈՂ ՊԱՀԱՆՋՆԵՐ, ԿԱՀՈՒՅՔԻ ԵՎ ՍԱՐՔԱՎՈՐՈՒՄՆԵՐԻ ՏԵՂԱԴՐՄԱՆ ԷՐԳՈՆՈՄԻԿԱԿԱՆ ՀԱՐԱՉԱՓԵՐ
122. Հանրակրթական հաստատության հիմնական սենքերի կահավորման ժամանակ անհրաժեշտ է հաշվի առնել սովորողների տարբեր տարիքային խմբերի համար սահմանված սանիտարահիգիենիկ պայմանները:
123. Սենքերը պետք է ներառեն սովորողի, ուսուցչի աշխատանքային գոտիները, ուսումնական դիտակտիկ նյութերի տեղադրման, աշակերտների անձնական իրերի համար լրացուցիչ մակերեսներ, դասարանին կից գոտիներ, աշակերտների խմբային և անհատական պարապմունքների գոտիներ։
124. Հանրակրթական հաստատության հիմնական սենքը` դասարան-ուսումնական կաբինետը, պետք է համապատասխանի դասավանդման կազմակերպման ինչպես ճակատային, այնպես էլ խմբային և անհատական պարապմունքների ձևերին` տեխնիկական միջոցների ակտիվ ներգրավման հնարավորությամբ։
125. 1-9 -րդ դասարանների սենքերը պետք է կահավորված լինեն մեկտեղանի թեթև աշակերտական սեղաններով, ինչպես նաև լրացուցիչ շարժական գույքով, որը կապահովի դասավանդման տարածքի ճկուն կազմակերպման հնարավորությունը։
126. Հանրակրթական հաստատության հիմնական ուսումնական սենքերում կահավորանքի միջև հեռավորությունները և անցումները պետք է ընդունել համաձայն 9-րդ հավելվածի և պետք է լինեն հետևյալ չափերի /սմ/՝
1) երկտեղանի և համակցված սեղանների միջև` ոչ պակաս 60,
2) մեկտեղանի աշակերտական սեղանների շարքերի միջև` 50,
3) աշակերտական /լսարանային/ սեղանների շարքերի և պատերի միջև` 70,
4) սեղանների շարքերի և ներսի երկայնական պատերի միջև` 160,
5) կաբինետի ցուցադրական սեղանից մինչև աշակերտական սեղանները` 60,
6) գրատախտակի պատից մինչև աշակերտական սեղանները` 280,
7) աշակերտական /լսարանային/ հետևի սեղանների և պատերի միջև` 100
8) նույնը, եթե պատերի տակ շարվում են պահարաններ` 140,
9) շարքում աշակերտական սեղանների միջև` 50:
10) առավելագույն հեռավորությունն աշակերտական սեղանից մինչև գրատախտակը չի կարող գերազանցել 860 սմ-ը:
127. Հանրակրթական հաստատության դասարանները, ուսումնական կաբինետները և լսարանները պետք է կահավորված լինեն շարժական գրատախտակներով: Աշխատանքային դիրքում գրատախտակի ներքևի եզրի բարձրությունը հատակից պետք է ընդունել 80-90 սմ, գրատախտակի տեսանելիության անկյունը պետք է ընդունել ոչ պակաս 400։
128. 8-րդ հավելվածի 1-4-րդ նկարներում տրված են դասարան-ուսումնական կաբինետների ճակատային, խմբային և խառը դասավանդման կազմակերպման կահավորման օրինակները:
129. Ուսուցչանոցների կահավորման ժամանակ հաշվի առնել ուսուցիչներին անձնական դարակներով ապահովելու անհրաժեշտությունը:
130. Մարզական և հանդիսությունների դահլիճների կահավորումն իրականացնել գործող նորմերին համապատասխան` ժամանակակից տեխնիկական միջոցներով միջոցառումների անցկացման հնարավորությամբ:
131. Ճաշասրահի կահավորումը պետք է ապահովի տարբեր տարիքային խմբերի կողմից օգտագործման հարմարավետությունը:
XII. ԲՆԱԿԱՆ ԵՎ ԱՐՀԵՍՏԱԿԱՆ ԼՈՒՍԱՎՈՐՈՒԹՅՈՒՆ
132. Հանրակրթական հաստատության հիմնական սենքերի բնական լուսավորությունը հաշվարկելիս պետք է ղեկավարվել ՀՀՇՆ II - 8.03 շինարարական նորմերի պահանջներով։
133. Բոլոր հիմնական ուսումնական սենքերը պետք է ունենան աշակերտական սեղանների 2,5-3 ԲԼԳ և լուսավորվեն ձախ կողային լույսով։ Դասավանդման ճկուն կազմակերպման համար անհրաժեշտ է ապահովել ամբողջ աշխատանքային մակերեսի հավասարաչափ լուսավորություն լրացուցիչ աղբյուրների միջոցով՝ անդրադարձվող լույս, վերևից լուսավորում, արհեստական լուսավորում և այլն։
134. Արհեստական լուսավորությամբ թույլատրվում է նախագծել՝
1) հանդիսությունների դահլիճները, կողասրահները, ռեկրեացիոն տարածքներ չհամարվող միջանցքներն ու անցումները,
2) մարզական դահլիճներին կից լվացարանները, ցնցուղարաններն ու զուգարանները, կանանց հիգիենայի սենյակները, անձնակազմի համար նախատեսված սանհանգույցները, ռադիոհանգույցը, ֆոտոլաբորատորիան, հեռուստատեսության փակ համակարգի սենքերը,
3) գրապահոցները և պահեստները,
4) շենքերի ինժեներատեխնիկական համակարգերի սպասարկման սենքերը:
135. Արհեստական լուսավորության դեպքում սենքերի լուսավորվածության մակարդակը ընդունել համաձայն սույն շինարարական նորմերի 10-րդ հավելվածի։
XIII. ԻՆՍՈԼՅԱՑԻԱ, ԱՐԵՎԱՊԱՇՏՊԱՆՈՒԹՅՈՒՆ ԵՎ ՍԵՆՔԵՐԻ ԿՈՂՄՆՈՐՈՇՈՒՄՆ ԱՐԵՎԻ ՆԿԱՏՄԱՄԲ
136. Ուսումնական սենքերի ինսոլյացիայի և արևապաշտպանության չափանիշները նախագծելիս առաջնորդվել ՍՆԻՊ- 2.08.02 և ՍՆԻՊ 2.07.01 շինարարական նորմերի պահանջներով։
137. Արևի նկատմամբ հիմնական ուսումնական սենքերի պատուհանների կողմնորոշումը ընդունել համաձայն 11-րդ հավելվածի։
138. Ուսումնական սենքերում աշակերտական սեղանների աշխատանքային մակերեսները պետք է պաշտպանված լինեն արևի ուղղակի ճառագայթներից։
139. Տեխնիկական միջոցներով դասավանդում նախատեսող ուսումնական սենքերը պետք է կահավորել վարագույրներով կամ արևապաշտպան կառավարվող էկրաններով։
XIV. ՋՐԱՄԱՏԱԿԱՐԱՐՈՒՄ ԵՎ ՋՐԱՀԵՌԱՑՈՒՄ
140. Հանրակրթական հաստատությունների շենքերում անհրաժեշտ է նախատեսել տնտեսական-խմելու և տաք ջրամատակարարում, կոյուղի և անձրևատարներ, որոնք պետք է նախագծվեն ՍՆԻՊ 2.04.01 շինարարական նորմերի և սույն բաժնի պահանջներին համապատասխան։
141. Հանրակրթական հաստատություններում պետք է նախատեսել ներքին հակահրդեհային ջրագիծ՝ 2,5 լ/վրկ երկշիթ ծախսի հաշվարկով։
142. Արտաքին հակահրդեհային ջրագիծ անհրաժեշտ է նախատեսել ՍՆԻՊ 2.04.02 շինարարական նորմերի պահանջներին համապատասխան:
143. Սառը ջրի մոտեցումներ պետք է նախատեսել՝ քիմիական լաբորատորիաների սեղանների լվացարաններին, ֆիզիկայի, քիմիայի և կենսաբանության լաբորատորիաների ցուցադրությունների սեղաններին։
144. Տաք և սառը ջրամատակարարում պետք է նախատեսել՝ 1-ից 4-րդ դասարանների դասասենյակներում և երկարօրյա խմբերի սենքերում, գծագրության, կերպարվեստի, տեղեկատվության և էլեկտրոնիկայի կաբինետներում, տեխնիկական մոդելավորման, պատանի բնասերների, գեղանկարչության և քանդակագործության խմբակներում, տնարարության արհեստանոցներում, ուսուցչանոցում, արհեստանոցներում, տեխնիկական անձնակազմի սենյակում, ցնցուղարաններում և անձնական հիգիենայի խցիկներում, կինո- և ֆոտոլաբորատորիաներում, սանհանգույցներում և բժշկական սենքերում, քիմիայի, ֆիզիկայի և կենսաբանության լաբորատորիաներում։ Բուֆետում, խոհանոցում և ճաշասրահում տաք և սառը ջրամատակարարում նախատեսվում է տեխնոլոգիական պահանջներից ելնելով։
145. Լվացարանակոնքերի խառնիչներին մատուցվող տաք ջրի ջերմաստիճանը չպետք է գերազանցի 60 0 C։
XV. ՋԵՌՈՒՑՈՒՄ ԵՎ ՕԴԱՓՈԽՈՒԹՅՈՒՆ
146. Հանրակրթական հաստատությունների շենքերում անհրաժեշտ է նախատեսել ջեռուցում և օդափոխություն։
147. Հանրակրթական հաստատությունների շենքերի ջեռուցումը և օդափոխությունը անհրաժեշտ է նախագծել ՀՀՇՆ IV-12.02 շինարարական նորմերի և սույն բաժնի պահանջներին համապատասխան։ Նախագծման ժամանակ սենքերում օդի ջերմաստիճանը և օդափոխության հաշվարկային ցուցանիշները ընդունել սույն շինարարական նորմերի 13-րդ հավելվածի համաձայն։
148. Աշխատանքի ժամերին օդային ջեռուցման համակարգերին մատուցվող օդի ջերմաստիճանը չպետք է գերազանցի 40 0 C ։
149. Ուսումնական սենքերում բնական օդափոխության նախագծման դեպքում անհրաժեշտ է ապահովել մեկանգամյա օդափոխանակություն 1 ժամում։
150. Օդային ջեռուցման պարագայում ուսումնական սենքերից օդաքարշ ուղիների նախագծում չի թույլատրվում։
151. Արտաձգիչ օդափոխության առանձին համակարգեր անհրաժեշտ է նախատեսել հետևյալ սենքերի կամ սենքերի խմբերի համար՝
1) դասասենյակների և ուսումնական կաբինետների, եթե նշված սենքերում բացակայում է օդային ջեռուցումը,
2) լաբորատորիաների, դասախոսությունների դահլիճների,
3) ուսումնական արհեստանոցների,
4) մարզական դահլիճների, լողավազանների, հրաձգարանների,
5) խոհանոցի և ճաշասրահի,
6) բուժկետի, կինոխցիկների,
7) սանհանգույցների։
152. Հանրակրթական հաստատությունների շենքերում համատեղված օդափոխություն և օդային ջեռուցում նախագծելու դեպքում անհրաժեշտ է նախատեսել համակարգի ավտոմատ կառավարում, այդ թվում աշխատանքային ժամերին սենքերում օդի հաշվարկային ջերմաստիճանի և 30-60 % -ի սահմաններում օդի հարաբերական խոնավության, ինչպես նաև ոչ աշխատանքային ժամերին 150 C-ից ոչ պակաս օդի ջերմաստիճանի ապահովում։
153. Ուսումնական սենքերի օդային ջեռուցման համակարգերում օդի վերաշրջանառություն չի թույլատրվում։
154. Դպրոցական ճաշարանների օդափոխությունն անհրաժեշտ է նախագծել խոհանոցի տեխնոլոգիական սարքավորումների ջերմային ավելցուկների կլանման հաշվարկով։
155. Խոհանոցային բլոկի արտադրական սենքեր օդի ներհոսքը անհրաժեշտ է նախատեսել ճաշասրահի միջով։ Մղվող օդի ծավալը պետք է լինի մեկ նստատեղի համար 20 մ3 /ժամ -ից ոչ պակաս։
156. Խոհանոցային բլոկից օդահեռացումն անհրաժեշտ է նախատեսել արտադրական սենքերի միջով։
XVI. ԷԼԵԿՏՐԱՏԵԽՆԻԿԱԿԱՆ ԵՎ ՑԱԾՐԱՀՈՍԱՆՔ ԳԾԵՐ
157. Հանրակրթական հաստատությունների շենքերում անհրաժեշտ է նախատեսել էլեկտրասարքավորանքներ՝ էլեկտրական լուսավորում, էլեկտրոնային կապի և տեղեկատվության փոխանցման համակարգ, հրդեհային ազդանշանման և ահազանգման ավտոմատ համակարգ և այլն։
158. Հանրակրթական հաստատությունների շենքերի էլեկտրամատակարարումը, սենքերի և տարածքի էլեկտրական լուսավորումն անհրաժեշտ է նախագծել ՀՀՇՆ II-8.03 և ՎՍ59 շինարարական նորմերի և սույն բաժնի պահանջներին համապատասխան։
159. Հանրակրթական հաստատությունների շենքերի բոլոր սենքերում պետք է նախատեսել թաքնված էլեկտրահաղորդալարեր։ Խոհանոցի, պահեստների, սանհանգույցների և այլ օժանդակ սենքերի էլեկտրամատակարարումը թույլատրվում է իրականացնել բաց էլեկտրահաղորդալարերի միջոցով։
160. Ուսումնական սենքերում տեղադրվող լյումինեսցենտային ջահերը պետք է նախատեսել աղմուկի հատուկ ցածր մակարդակ ունեցող թողարկակարգավորիչներով և լինեն ցրված լույսի։
161. Լուսավորության սարքերի նախագծման ժամանակ անհրաժեշտ է կիրառել լուսավորության պաշարի գործակից՝ լյումինեսցենտային լամպերով ջահերի դեպքում՝ 1,5 և շիկացման լամպերով ջահերի դեպքում՝ 1,3։
162. Ուսումնական սենքերում լուսավորության ջահերը պետք է տեղադրել շարքերով, պատուհան ունեցող արտաքին պատերին զուգահեռ։ Անհրաժեշտ է նախատեսել ջահերի շարքերով առանձին միանալու հնարավորությունը, ապահովելու համար սենքի պատուհաններից առավել հեռացված մասի առաջին հերթին լուսավորելու հնարավորությունը։
163. Ուսումնական սենքերում, կաբինետներում, լաբորատորիաներում, խմբակների սենքերում և երկարօրյա դասավանդման համար նախատեսված սենքերում դիապրոյեկտորների և դասավանդման այլ տեխնիկական միջոցների միացման համար պետք է նախատեսել երեքից ոչ պակաս խցակի վարդակներ՝ գրատախտակի մոտ` 1, գրատախտակի հակադիր պատին` 1, պատուհանների հակադիր պատին` 1։ Ուսումնական սենքերում պետք է նախատեսել մեկ վարդակ հողանցումով, բացի համակարգչային և տեղեկատվության կաբինետներից, որտեղ նման վարդակները պետք է լինեն հինգը։
164. Աշակերտների հաճախման սենքերում նախատեսված խցակի վարդակները պետք է լինեն հատակից 0,2 մ, իսկ անջատիչները՝ 1,8մ բարձրության վրա։
165. Էլեկտրավահանակները պետք է տեղադրել առաջին հարկերում։ Թույլատրվում է էլեկտրավահանակները տեղադրել նկուղային հարկերում, եթե ապահովված է նախատեսված սենքի հիդրոմեկուսացումը։
166. Մարդկանց տարհանման համար վթարային լուսավորություն պետք է նախատեսել նախասրահներում, հանդերձարաններում, միջանցքներում, աստիճանավանդակներում, ռեկրեացիոն սենքերում, հանդիսությունների, մարզական և ճաշարանի դահլիճներում, արհեստանոցներում, կինոխցիկում։ Վթարների վերացման աշխատանքների իրականացման համար վթարային լուսավորություն պետք է նախատեսել էլեկտրավահանակների սենքերում, օդափոխման խցիկներում, ջերմային հանգույցներում, պոմպերի սենքերում և նշված սենքերում պետք է ապահովվի 2 լք լուսավորության նորմը։
167. Հանդիսությունների դահլիճներից տարհանման ուղիները պետք է նշվեն վթարային լուսավորության ցանցին միացված ցուցանակներով։
168. Հողամասերի, ինչպես նաև մարզահրապարակների արտաքին լուսավորությունը նախատեսվում է ըստ նախագծման առաջադրանքի։
169. Հանրակրթական հաստատությունների շենքերում անհրաժեշտ է նախատեսել ռադիոֆիկացում։
170. Ռադիոկետեր պետք է նախատեսել ուսուցչանոցում, տնօրենի, ուսումնադաստիարակչական գծով տնօրենի տեղակալի, արտադասարանական և արտադպրոցական աշխատանքների կազմակերպչի, բժշկի, ֆիզիկական դաստիարակչության հրահանգչի կաբինետներում, գրասենյակում, ռադիոհանգույցում, կինոապարատային, տեխնիկական անձնակազմի սենքերում, վարպետի սենյակում և ռեկրեացիոն տարածքներում։
171. Ձայնի ուժեղացման սարքավորումներ անհրաժեշտ է նախատեսել հանդիսությունների, ուսումնամարզական դահլիճներում, ռեկրեացիոն տարածքներում։
172. Հանրակրթական հաստատությունների շենքերում անհրաժեշտ է նախատեսել երկկողմանի կապով ռադիոհանգույց, որը պետք է տեղակայել տնօրենի կաբինետի անմիջական հարևանությամբ։
173. Հեռախոսների տեղադրում պետք է նախատեսել տնօրենի կաբինետում (գրասենյակի հետ զուգահեռ կապով), տնօրենի տեղակալի կաբինետում, ուսուցչանոցում, արտադասարանական և արտադպրոցական աշխատանքների կազմակերպչի, բժշկի, ֆիզիկական դաստիարակության հրահանգչի կաբինետներում, ճաշարանում, մարզադահլիճում և լողավազանում։
174. Էլեկտրոնային ժամացույցներ անհրաժեշտ է նախատեսել նախասրահում, ռեկրեացիոն տարածքներում, ճաշարանի և ուսումնամարզական դահլիճներում։
175. Էլեկտրոնային ժամացույցներով ղեկավարվող զանգեր անհրաժեշտ է նախատեսել նախասրահներում և ռեկրեացիոն տարածքներում։
176. Հեռուստահաղորդումների ընդունող ցանցեր, տեսատեխնիկայի և հեռուստատեսության փակ համակարգեր անհրաժեշտ է նախատեսել դասարաններում, ուսումնական կաբինետներում, լաբորատորիաներում, արհեստանոցներում, հանդիսությունների դահլիճում, դասախոսությունների լսարաններում, գրադարանում, խմբակների սենքերում և երկարօրյա դասավանդման համար նախատեսված սենքերում, ուսուցչանոցում, տնօրենի կաբինետում։
177. Հանրակրթական հաստատությունների շենքերի առանձին սենքեր, տեղական մարմինների հետ համաձայնեցված լրացուցիչ նախագծման առաջադրանքով, կարող են կահավորվել պահպանության ահազանգման համակարգով։
XVII. ՍԵՆՔԵՐԻ ՆԵՐՔԻՆ ՀԱՐԴԱՐՈՒՄ
178. Կախված հանրակրթական հաստատությունների սենքերի նշանակությունից, ներքին հարդարումը և հարդարման ժամանակ պոլիմերային նյութերի կիրառումը պետք է համապատասխանի սանիտարահիգիենիկ և հակահրդեհային նորմերի պահանջներին։
179. Հանրակրթական հաստատության հիմնական ուսումնական սենքերում անհրաժեշտ է ապահովել աղմուկից պաշտպանության միջոցառումներ, որի համար պետք է ուսումնական սենքերի հարդարման ժամանակ օգտագործել ձայնամեկուսիչ նյութեր։
180. Ուսումնական արհեստանոցներում պետք է նախատեսել հատուկ ձայնակլանիչ սարքավորումներ։
181. Ուսումնական սենքերի հարդարման գունային լուծումները պետք է ապահովեն ուսումնական գործընթացի հանգիստ կազմակերպումը:
Հավելված 1
ՀԱՊԱՎՈՒՄՆԵՐ
ՀԿՀ - Հանրակրթական հաստատություն
ՏԴ - Տարրական դպրոց
ՄԴ - Միջին դպրոց
ՀԴ - Հիմնական դպրոց
ԱԴ - Ավագ դպրոց
ԽԱԴ - Խորացված ուսուցմամբ ավագ դպրոց
Վ - Վարժարան
ՄԿԴ - Միջնակարգ դպրոց
ԲԼԳ - բնական լուսավորվածության գործակից:
Հավելված 2
ՀԱՆՐԱԿՐԹԱԿԱՆ ՀԱՍՏԱՏՈՒԹՅՈՒՆՆԵՐԻ ԴԱՍԱԿԱՐԳՈՒՄԸ ԵՎ ՆՇԱՆԱԿՈՒԹՅՈՒՆԸ
1. Տարրական դպրոց I աստիճանի դպրոց, 1-ից – 4-րդ դասարանների կազմով։ Տարրական դպրոցում ուսուցման ժամկետը 4 տարի։ Կազմակերպվում է որպես ինքնուրույն միավոր, ինչպես նաև միջին և ավագ դպրոցների կազմում։
2. Միջին դպրոց II աստիճանի դպրոց, 5-ից – 9-րդ դասարանների կազմով։ Միջին դպրոցում ուսուցման ժամկետը 5 տարի։ Կազմակերպվում է որպես ինքնուրույն միավոր 5-ից – 9-րդ դասարանները ներառյալ, իր կազմում կարող է ունենալ I աստիճանի դպրոցներ, ինչպես նաև ավագ դպրոցների կազմում։
3. Հիմնական դպրոց I և II աստիճանի դպրոց, 1-ից -9-րդ դասարանների կազմով։ Հիմնական դպրոցում ուսուցման ժամկետը 9 տարի։
4. Ավագ դպրոց III աստիճանի դպրոց, 10-ից – 12-րդ դասարանների կազմով։ Ավագ դպրոցում ուսուցման ժամկետը 3 տարի։ Կազմակերպվում է որպես ինքնուրույն միավոր 10-ից - 12-րդ դասարանները ներառյալ, ինչպես նաև իր կազմում կարող է ունենալ I և II աստիճանի դպրոցներ։
5. Խորացված ուսուցմամբ
ավագ դպրոց III աստիճանի դպրոց, 10-ից – 12-րդ դասարանների կազմով։
Հանրակրթական հաստատություն, որն իրականացնում է միջնակարգ կրթության ծրագրերը, այդ թվում մեկ կամ մի քանի առարկաների խորացված ուսուցմամբ (օտար լեզուներ, ֆիզիկա, քիմիա, բնագիտություն, գրականություն, պատմություն, տնտեսագիտություն և այլն)։ Ուսուցման ժամկետը 3 տարի։
6. Վարժարան II և III աստիճանի դպրոց, 5-ից – 12-րդ դասարանների կազմով։
Հանրակրթական հաստատություն, որն իրականացնում է լրիվ միջնակարգ կրթության ծրագրերը, սովորողներին տալով մի շարք առարկաների խորացված ուսուցում, ինչպես նաև միջնակարգ և բարձրագույն կրթության անընդհատությունն ապահովող մասնագիտական պատրաստվածություն։ Ուսուցման ժամկետը 4-ից -8 տարի։
7. Միջնակարգ դպրոց I - III աստիճանի դպրոց, 1-ից – 12-րդ դասարանների կազմով։ Միջնակարգ դպրոցում ուսուցման ժամկետը 12 տարի։
Հավելված 3
ՀԱՆՐԱԿՐԹԱԿԱՆ ՀԱՍՏԱՏՈՒԹՅՈՒՆՆԵՐԻ ՑԱՆՑԻ ԿԱԶՄԱԿԵՐՊՈՒՄ
Հ/Հ |
Մոդելների սկզբունքային տարբերակները |
Բազային հաստատութ. |
Բազային հաստատությունների շենքերի լրակազմը ըստ կազմակերպական կառուցվածքի |
1 |
2 |
3 |
4 |
1 |
Տարրական դպրոց ինքնուրույն, հիմնական և միջնակարգ դպրոցների կազմում |
ՏԴ |
1։0։0 |
2 | Միջին դպրոց հիմնական և միջնակարգ դպրոցների կազմում |
ՄԴ |
0։1։0 |
3 | Հիմնական դպրոց
I և II աստիճանի /ինքնուրույն/ |
ՀԴ |
1։1։0 |
4 | Ավագ դպրոց
III աստիճանի /ինքնուրույն/ |
ԱԴ |
0։0։1 |
5 |
Խորացված ուսուցմամբ ավագ դպրոց III աստիճանի |
ԽԱԴ |
0։0։1 |
6 | Վարժարան
II և III աստիճանի |
Վ |
0։2։4 |
7 | Միջնակարգ դպրոց
I, II և III աստիճանի /ինքնուրույն/ |
ՄԿԴ |
1։1։1 |
Հավելված 4
ՀԱՆՐԱԿՐԹԱԿԱՆ ՀԱՍՏԱՏՈՒԹՅՈՒՆՆԵՐԻ ՇԵՆՔԵՐԻ ՏԻՊԵՐԸ ԵՎ ԿԱՌՈՒՑՎԱԾՔԸ
Հանրակրթական հաստատությունների տիպերը |
Աշակերտների քանակը/զուգահեռ դասարանների հարաբերությունը |
Տեղակայումը բնակավայրերի կազմում | |||
բնակելի խումբ |
միկրոշրջան |
թաղամաս |
քաղաք | ||
1 |
2 |
3 |
4 |
5 |
6 |
1. Առաջին աստիճանի տարրական դպրոց / այդ թվում միջին և ավագ դպրոցների կազմում/ |
|||||
1) 4 դասարանով |
100 1:0:0 |
+ |
+ |
||
2) 8 դասարանով |
200 2:0:0 |
+ |
+ |
||
2. Միջին դպրոց I և II աստիճանի դպրոցների կազմով |
|||||
1) 5 դասարանով |
125 0:1:0 |
+ |
+ |
||
2) 10 դասարանով |
250 0:2:0 |
+ |
+ |
||
3. Հիմնական դպրոց I, II աստիճանի դպրոցների կազմով |
|||||
1) 9 դասարանով |
225 1։1։0 |
+ |
+ |
||
2) 18 դասարանով |
450 2։2։0 |
+ |
+ |
||
3) 27 դասարանով |
675 3։3։0 |
+ |
+ |
||
4. Վարժարան II և III աստիճանի դպրոցների կազմով |
|||||
1) 8 դասարանով |
200 0:1:1 |
+ |
+ | ||
2) 16 դասարանով |
400 0:2:2 |
+ |
+ | ||
3) 24 դասարանով |
600 0:3:3 |
+ |
+ | ||
5. Միջնակարգ դպրոց I, II և III աստիճանի դպրոցների կազմով /այդ թվում առանձին առարկաների խորացված ուսուցմամբ/ |
|||||
1) 12 դասարանով |
300 1:1:1 |
+ |
+ |
+ | |
2) 24 դասարանով |
600 2:2:2 |
+ |
+ |
+ | |
3) 36 դասարանով |
900 3:3:3 |
+ |
+ |
+ |
Հավելված 5
ՀԱՆՐԱԿՐԹԱԿԱՆ ՀԱՍՏԱՏՈՒԹՅՈՒՆՆԵՐԻ ՀՈՂԱՄԱՍԵՐՈՒՄ ԳՈՐԾԱՌԱԿԱՆ ԳՈՏԻՆԵՐԻ ՄԱԿԵՐԵՍՆԵՐԸ
Հ/Հ |
Գոտիները |
Մակերեսը, մ2 ըստ դասարանների /դասարանային խմբերի/ քանակի | |||||
Տարրական դպրոցում |
Հիմնական դպրոցում |
Միջնակարգ հանրակրթական դպրոցներում և վարժարաններում | |||||
1 (4 դաս.) |
1 (9 դաս.) |
1 (12 դաս.) |
2 (24 դաս.) | ||||
մ2 /1 դասարանին | |||||||
1.
2.
3.
4. |
Մարմնակրթական - մարզական
Ուսումնա-փորձարարական Հանգստի
Տնտեսական |
852/213
240/60
480/120
500/125 |
4590/510
1008/112
702/78
504/56 |
6120/510
1308/109
936/78
540/45 |
6720/280
1560/65
1536/64
672/28 | ||
5. |
Գոտիներով, մ2 1 դասարանին /առանց կառուցապատման, կանաչապատման և անցումների տարածքների/ | ||||||
2072/518 |
6804/756 |
8904/742 |
10488/437 | ||||
6. Կոնկրետ դեպքերում, տեղական պայմաններից ելնելով, կարող են սահմանվել նախագծման առաջադրանքով։ Կառուցապատված տարածքներում հանրակրթական նշանակության շենքերի տեղադրման ժամանակ հիմնական գոտիների կազմը և մակերեսները կարող են կրճատվել, որը սահմանվում է նախագծման առաջադրանքով, բայց ոչ ավելի 30 %։ |
Հավելված 6
ԳՈՐԾԱՌԱԿԱՆ ԽՄԲԵՐԸ ԵՎ ՍԵՆՔԵՐԻ ՕՐԻՆԱԿԵԼԻ ԿԱԶՄԸ
Հիմնական ֆունկցիոնալ խմբերի սենքերի անվանացանկը |
Սենքերի անվանումը |
ՏԴ |
ՀԴ |
Վ |
ՄԿԴ |
1. Տարրական դպրոցի 1 դասարաններ |
1) Դասասենյակ 2) Խաղասենյակ-ննջարան 3) Բազմանպատակային ռեկրեացիա 4) Սանհանգույցներ |
+ + + + |
+ + + + |
+ + + + | |
2. Տարրական դպրոցի 2-4 դասարաններ |
1) Դասարան 2) Երկարօրյա խմբերի համար ունիվերսալ սենքեր 3) Անաղմուկ խաղերի և հանգստի սենյակ 4) Աշխատանքի, տեխնիկական խաղալիքների և մոդելավորման, գեղագիտության, բնության սենյակ 5) Ուսուցչանոց 6) Ռեկրեացիա /կանաչ/ 7) Համակարգչային դասարան 8) Շախմատի դասարան 9) Սանհանգույցներ |
+ + + +
+ + + + + |
+ + + +
+ + + + + |
+ + + +
+ + + + + | |
3. Միջին դպրոցի 5-9 դասարան-կաբինետներ |
1) Մասնագիտացված կաբինետ 2) Ռեսուրսային կենտրոն 3) Անհատական պարապմունքների աշխատանքային սենյակներ 4) Ռեկրեացիա 5) Սանհանգույցներ |
+ + +
+ + |
+ + +
+ + |
+ + +
+ + | |
4. Ավագ դպրոցի 10-12 դասարան-կաբինետներ |
1) Ունիվերսալ նշանակության կաբինետներ /կահավորվում է ըստ դասավանդման ուղղվածության/ 2) Ռեսուրսային կենտրոն 3) Անհատական պարապմունքների աշխատանքային սենյակներ 4) Ռեկրեացիա 5) Սանհանգույցներ |
+
+
+ + |
+
+ + + + |
+
+ + + + | |
5. Միջին և ավագ դպրոցի մասնագիտացված ուսումնական կաբինետներ |
1) Բնագիտության կաբինետ ֆիզիկայի, քիմիայի, բնագիտության լաբորատորիաներով 2) Բնական գիտությունների ուսումնական կաբինետներ՝ ըստ առանձին առարկաների /ֆիզիկա, քիմիա, բնագիտություն/ հետևյալ կազմով` ա. լաբորատորիա բ. լաբորանտական 3) Մասնագիտացված կաբինետներ՝ ա. օտար լեզուների բ. ինֆորմատիկայի և հաշվիչ տեխնիկայի գ.համակարգչային դասարան |
+
+
+ + +
+ + + |
+
+ + +
+ + + |
+
+ + +
+ + + | |
դ.տեխնիկական գծագրության 4) Խորացված ուսուցման համար մասնագիտացված սենքեր և սենքերի բլոկներ /հումանիտար, տեխնիկական, ֆիզմաթ., բիոքիմիա, բիոէկոլոգիա, էկոլոգիա, տնտեսագիտական և այլն/ |
+ |
+ |
+ | ||
6. Աշխատանքի ուսուցման և արտադրական տեխնո-լոգիաների ուսումնական կաբինետներ |
1) Համակցված արհեստանոցներ 2) Նյութերի /մետաղ, փայտ և այլն/ մշակման արհեստանոցների բլոկներ 3) Տնարարության /գործվածքներ, խոհարարություն, կենցաղային էլեկտրոնիկա և այլն/ 4) Տեխնոլոգիաների ուսումնասիրման կաբինետներ 5) Խորացված ուսուցման համար մասնագիտացված սենքեր և սենքերի բլոկներ /հումանիտար, տեխնիկական, ֆիզմաթ., բիոքիմիա, բիոէկոլոգիա, էկոլոգիա, տնտեսագիտական և այլն/ |
+ + |
+
+
+
+ |
+
+
+
+ | |
7. Տեղեկատվական կենտրոն-գրադարան |
1) Գրադարան-տեղեկատվական կենտրոն ընթերցասրահներով 2) Տեխնիկական կենտրոն 3) Ուսուցչանոց` մեթոդկաբինետի և հանգստի սենյակի հետ միասին |
+ +
+ |
+ +
+ |
+ +
+ | |
8. Հանդերձարանի խումբ, վարչական սենքեր, բժշկական սենքեր |
1) Նախասրահ-հանդերձարան 2) Դպրոցի վարչակազմի սենքեր /տնօրենի, ուսմասվարի կաբինետներ, գրասենյակ ընդունարանով, ուսուցիչների համար ս/հ և այլն/ 3) Բժշկի կաբինետ, պրոցեդ. սենյակ, ատամնաբույժի կաբինետ |
+ +
+ |
+ +
+ |
+ +
+ | |
9. Ռեկրեացիայի կենտրոն /ժամանցի կենտրոն/ |
ՀԱՄԱԴՊՐՈՑԱԿԱՆ ՍԵՆՔԵՐԻ ԽՄԲԵՐ
1) Հավաքավայր 2) Նախասրահ-հանդերձարան 3) Դպրոցի վարչատնտեսական սենքեր 4) Բժշկի կաբինետ 5) Անձնակազմի կաբինետ 6) Ծնողների սենյակ 7) Սանհանգույցներ |
+ + + + + + + |
+ + + + + + + |
+ + + + + + + | |
10. Հանդիսությունների դահլիճի խումբ |
1) Ընդարձակված բեմով հանդիսությունների դահլիճ 2) Դասախոսությունների դահլիճ 3) Հանդիսությունների դահլիճի սպասարկման սենքեր /դերասանների, բեմի գրպանիկներ և այլն/ |
+
+ + |
+
+ + |
+
+ + | |
11. Ուսումնամարզական խումբ |
1) Մարզադահլիճներ /ընդհանուր ֆիզիկական պատրաստվածության, մարմնամարզական, սպորտային խաղերի, թեթև ատլետիկայի, ըմբշամարտի և այլն 2) Սպասարկման սենքեր /մարզագույքի սենքեր, հանդերձարաններ ցնցուղներով և սանհանգույցներով, հրահանգչի սենյակ/ |
+
+ |
+
+ |
+
+ | |
12. Լողավազանների խումբ |
1) Լողավազան 2) Սպասարկման սենքեր /հանդերձարաններ` ցնցուղներով և սանհանգույցներով, հրահանգչի սենյակ/ 3) բուժքրոջ սենյակ, ջրի անալիզի լաբորատորիա |
+ +
+ |
+ +
+ |
+ +
+ | |
13. Գեղագիտական դաստիարակության խումբ |
1) Ստուդիաներ և խմբակներ` ա. կերպարվեստի բ. երգեցողության և երաժշտության գ. պարարվեստի դ. բազմաբնույթ ստուդիա ե. գեղագիտության զ. ֆոտո-, կինոստուդիա |
+ +
+ |
+ +
+ + |
+ + +
+ | |
14. Տեխնիկական ստեղծագործ. խումբ |
1) Ունիվերսալ սենք /տեխնիկական ստեղծագործության խմբակ/ 2) Ռադիոտեխնիկական մոդելավորում 3) Ունիվերսալ արհեստանոց 4) Փոքր մեխանիզմների մոդելավորում 5) Ճարտարապետություն և դիզայն |
+
+ |
+
+ + |
+
+ + +
+ | |
15. Բիոփորձարարական խումբ |
1) Պատանի բնագետի խմբակ 2) Բնագիտական ուսումնասիրությունների և փորձերի լաբորատորիա 3) Բիոքիմիայի լաբորատորիա 4) Բնապահպանության խմբակ 5) Ջերմոց 6) Ազգագրական խմբակ 7) Գյուղտեխնիկայի խմբակ |
+
+ |
+ +
+ + |
+ +
+ + + + + | |
16. Ճաշարան |
1) Ճաշասրահ բաշխման կետով /երկհերթ/ 2) Խոհանոցային բլոկ` պահեստներով 3) Տեսասրճարան-բուֆետ |
+
+ |
+
+ |
+
+ + |
Հավելված 7
ՀԱՆՐԱԿՐԹԱԿԱՆ ՀԱՍՏԱՏՈՒԹՅԱՆ ՍԵՆՔԵՐԻ ԿԱԶՄԸ ԵՎ ՄԱԿԵՐԵՍՆԵՐԻ ՀԱՇՎԱՐԿԱՅԻՆ ՑՈՒՑԱՆԻՇՆԵՐԸ
Աղյուսակ 1
ՏԱՐՐԱԿԱՆ ԴՊՐՈՑԻ ՍԵՆՔԵՐԻ ԿԱԶՄԸ ԵՎ ՄԱԿԵՐԵՍՆԵՐԻ ՀԱՇՎԱՐԿԱՅԻՆ ՑՈՒՑԱՆԻՇՆԵՐԸ
Հ/Հ |
Սենքեր |
Մակերես /ոչ պակաս/, մ2 | |||
1 աշա-կերտին |
1 դասա-րանին |
1 սեն-քին | |||
24 տեղ |
12 տեղ | ||||
1
2
3
4
5
6
7
8
9
10 |
1 դասարանի դասասենյակ դասավանդման խաղային մեթոդների հաշվարկով
1 դասարանի ննջարան-խաղասենյակ
1-4 դասարանների դասասենյակներ
2-4 դասարանների դասասենյակ դասավանդման խմբային և անհատական մեթոդների հաշվարկով
Խաղաղ հանգստի սենք
Երկարօրյա խմբերի համար համակողմ սենքեր
Աշխատանքի, տեխնիկական խաղալիքների և մոդելավորման, գեղագիտության, բնության սենյակ
ՈՒսուցչանոց` մեթոդական- կաբինետ
Ռեկրեացիա /դահլիճային/
Սանհանգույցներ |
3.3
2.5
2.5
3,0 |
5,0
9,0 |
10,0 |
40-80
- |
11. Երկարօրյա խմբերի համար համակողմ սենքեր՝ ընդունվում են մեկ հատ մեկ դասարանին:
12. Աշխատանքի, տեխնիկական խաղալիքների և մոդելավորման, գեղագիտության, բնության սենյակ՝ ընդունվում են մեկ հատ մեկ տարրական դպրոցին: 13. ՈՒսուցչանոցի մակերեսն ընդունվում է դասարանների քանակին համապատասխան, բայց ոչ պակաս 40 մ2։ Թույլատրվում է տեղակայել ուսումնական բլոկից դուրս։ |
Աղյուսակ 2
ՄԻՋԻՆ ԴՊՐՈՑԻ ՍԵՆՔԵՐԻ ԿԱԶՄԸ ԵՎ ՄԱԿԵՐԵՍՆԵՐԻ ՀԱՇՎԱՐԿԱՅԻՆ ՑՈՒՑԱՆԻՇՆԵՐԸ
Հ/Հ |
Սենքեր |
Մակերես /ոչ պակաս/, մ2 | |
1 աշակերտին 24 տեղ |
1 դասար. | ||
1.
2.
3. |
Դասարան-կաբինետ
Ռեսուրսային կենտրոն
Անհատական պարապմունքների աշխատանքային սենյակներ |
2,5-3,0 |
12,0
10,0 |
4.2,5 մ2` ճակատային դասավանդման, 3.0 մ2` խառը և անհատական դասավանդման դեպքում:
Ռեսուրսային կենտրոնը թույլատրվում է տեղակայել՝ 5. բոլոր դասարան-կաբինետներին կից, 6. կենտրոնացված, մեկ ուսումնական սեկցիայի համար, 7. ուսումնական սեկցիաների խմբի համար, մեկ հարկի սահմաններում։ |
Աղյուսակ 3
ԱՎԱԳ ԴՊՐՈՑԻ ՍԵՆՔԵՐԻ ԿԱԶՄԸ ԵՎ ՄԱԿԵՐԵՍՆԵՐԻ ՀԱՇՎԱՐԿԱՅԻՆ ՑՈՒՑԱՆԻՇՆԵՐԸ
Հ/Հ |
Սենքեր |
Մակերես /ոչ պակաս/, մ2 | |
1 սովորողին` 24 տեղ |
1 դասարանին | ||
1
2
3 |
Դասարան-կաբինետ
Ռեսուրսային կենտրոն
Անհատական պարապմունքների աշխատանքային սենյակներ |
3,5 |
10,0
15,0 |
4. Ռեսուրսային կենտրոնը թույլատրվում է տեղակայել՝
1) բոլոր դասարան-կաբինետներին կից, 2) կենտրոնացված, մեկ ուսումնական սեկցիայի համար, 3) ուսումնական սեկցիաների խմբի համար, մեկ հարկի սահմաններում։ |
Աղյուսակ 4
ՄԻՋԻՆ ԵՎ ԱՎԱԳ ԴՊՐՈՑԻ ՄԱՍՆԱԳԻՏԱՑՎԱԾ ՍԵՆՔԵՐԻ ԿԱԶՄԸ ԵՎ ՄԱԿԵՐԵՍՆԵՐԻ ՀԱՇՎԱՐԿԱՅԻՆ ՑՈՒՑԱՆԻՇՆԵՐԸ
Հ/Հ |
Սենքեր |
Մակերես /ոչ պակաս/, մ2 | ||
1 սովորողին |
1 դասարանին | |||
24 տեղ |
12 տեղ | |||
1
2
3
4 |
1) Բնագիտության կաբինետ` ա. ֆիզիկայի գործնական-լաբորանտական, բ. քիմիայի գործնական-լաբորանտական, գ. բնագիտության գործնական-լաբորանտական,
2) Ըստ առանձին առարկաների բնական գիտությունների ուսումնական կաբինետներ /ֆիզիկա, քիմիա, բնագիտություն/ ` ա. առանձին առարկաների լաբորատորիաներ /դասախոսությունների սենքեր/ , բ. առանձին առարկաների գործնական պարապմունքների սենքեր, գ. առանձին առարկաների լաբորանտականներ,
3) Մասնագիտացված կաբինետներ՝ ա.օտար լեզուների, բ. ինֆորմատիկայի և հաշվիչ տեխնիկայի, գ. համակարգչային դասարան, դ. Տեխնիկական գծագրության,
Թեքումով ուսուցման համար մասնագիտացված սենքեր: |
3,0
3,0
3,3 |
4,2
3,5 7,5 6,0 6,0 |
36,0 36,0 36,0
18,0-32,0 |
5.Վարժարանների համար ընդունվում է 3 գործնական մեկ առարկայի համար:
6. Օտար լեզուների համար քանակը սահմանվում է ուսուցման ծրագրերին համապատասխան: 7. Ցանկացած ուսումնական հաստատությունում ինֆորմատիկայի և հաշվիչ տեխնիկայի, համակարգչային դասարանը պետք է լինի մեկական սենքից ոչ պակաս, թեքումով ուսումնական հաստատությունում քանակը սահմանվում է ուսուցման ծրագրերին համապատասխան։ |
Աղյուսակ 5
ՀԱՆԴԻՍՈՒԹՅՈՒՆՆԵՐԻ ԴԱՀԼԻՃՆԵՐԻ ՍԵՆՔԵՐԻ ԿԱԶՄԸ ԵՎ ՄԱԿԵՐԵՍՆԵՐԻ ՀԱՇՎԱՐԿԱՅԻՆ ՑՈՒՑԱՆԻՇՆԵՐԸ
Հ/Հ |
Սենքեր |
Մակերես /ոչ պակաս/, մ2 |
Տեղերի քանակը |
1 |
Դահլիճ |
1 տեղին 0.7 մ2 |
Դահլիճում տեղերի քանակը ընդունվում է աշակերտների 60%-ի տեղավորման հաշվարկով, լրացուցիչ նախատեսելով մեկ դասարանին 2 ուսուցչի տեղ: |
2 |
Բեմ |
90 |
|
3 |
Գույքի պահեստ |
ոչ պակաս 2-ից, յուրաքանչյուրը 10 մ2 |
|
4 |
Դերասանների հանդերձարան |
ոչ պակաս 2-ից, յուրաքանչյուրը 10 մ2 |
|
5 |
Տեխնիկական կենտրոն /ռադիոհանգույց, հաղորդավարի սենյակ, տեխնիկայի վերանորոգման սենյակ/ |
48
/36/ /12/ |
|
6 |
|||
7.Դահլիճը նախագծվում է այն որպես կինոդահլիճ և երգի, երաժշտության դասավանդման լսարան: 8.Բեմը նախագծվում է այն որպես պարարվեստի դասավանդման դասարան, բեմի հատակը դահլիճի հատակից պետք է բարձր լինի 0.9 մ-ով: |
Աղյուսակ 6
ՈՒՍՈՒՄՆԱՄԱՐԶԱԿԱՆ ԴԱՀԼԻՃՆԵՐԻ ԵՎ ԼՈՂԱՎԱԶԱՆՆԵՐԻ ՍԵՆՔԵՐԻ ԿԱԶՄԸ ԵՎ ՄԱԿԵՐԵՍՆԵՐԻ ՀԱՇՎԱՐԿԱՅԻՆ ՑՈՒՑԱՆԻՇՆԵՐԸ
Հ/Հ |
Սենքեր |
Մակերես ոչ պակաս մ2 |
Չափերը, մ |
Ջրի խորությունը, մ | ||
երկար. |
լայն. |
բարձր. | ||||
1 |
Ուսումնամարզական դահլիճներ |
270 |
18 |
15 |
4.6-6 |
- |
366 |
24 |
15 |
6-7 |
- | ||
540 |
30 |
18 |
7-8 |
- | ||
648 |
36 |
18 |
7-8 |
- | ||
1008 |
42 |
24 |
7-8 |
- | ||
2 |
Հանդիսատեսների համար տեղեր |
քանակը նախագծման առաջադրանքով | ||||
3 |
Լողավազաններ |
450 |
25 |
11.5 |
6 |
1.2-1.8 |
330 |
16.6 |
11.5 |
5.4 |
1.2-1.8 | ||
180 |
10 |
6 |
4.2 |
0.6-0.85 |
Աղյուսակ 7
ՈՒՍՈՒՄՆԱՄԱՐԶԱԿԱՆ ԴԱՀԼԻՃՆԵՐԻՆ ԵՎ ԼՈՂԱՎԱԶԱՆՆԵՐԻՆ ԿԻՑ ՕԺԱՆԴԱԿ ՍԵՆՔԵՐԻ ԿԱԶՄԸ ԵՎ ՄԱԿԵՐԵՍՆԵՐԻ ՀԱՇՎԱՐԿԱՅԻՆ ՑՈՒՑԱՆԻՇՆԵՐԸ
ՀՀ |
Սենքեր |
Մարզադահլիճներ |
Լողավազաններ, ավազանի չափը | |||
18x15 |
24x15 30x18 |
36 x18 42 x24 |
10x6 |
16.6x11.5 25x11.5 | ||
Քանակ և մակերես /ոչ պակաս/ | ||||||
1.
2. 3.
4.
5. 6. 7.
8. |
Հանդերձարաններ, ներառյալ զուգարաններն ու ցնցուղարանները
Մարզագույքի սենք Հավաքարարի իրերի պահոց Հանդերձարաններ, ներառյալ 1) զգեստապահարան, 2) ցնցուղարան տղաների և աղջիկների 3) զուգարան տղաների և աղջիկների Մարզչի սենյակ Բուժքրոջ սենյակ, ջրի անալիզի լաբորատորիա Անձնակազմի համար կենցաղային սենք Անձնակազմի համար սենք |
36/18+18
12 4
10 |
72/4x18
16 4
10 |
84/4x21
32 4
20 |
-
6 4
78 2x12 2x10 2x4 12+6
2x6
9 |
-
6 8
78 2x12 2x10 2x4 2x10
2x6
12 |
9. Ընդունվում է 1 դահլիճների խմբի համար (հավաքարարի իրերի պահոց): 10. 2,6 մ 1 սովորողին և հանդերձարաններում 15 տեղի հաշվարկով (լողավազանների հանդերձարաններ): 11. Զգեստապահարանները, 60x30սմ հատակագծային չափերով, 0,8մ2 1 տեղին և հանդերձարաններում 15.տեղի հաշվարկով: 12. 1 ցանց 3 մարզվողին և 2մ2 մեկ ցանցի հաշվարկով (տղաների և աղջիկների զուգարաններ և ցնցուղարաններ): 13. Մարզիչի սենյակում նախատեսել սանհանգույց և ցնցուղարան (9մ2)։ |
Աղյուսակ 8
ՎԱՐՉԱՏՆՏԵՍԱԿԱՆ ՍԵՆՔԵՐԻ ԿԱԶՄԸ ԵՎ ՄԱԿԵՐԵՍՆԵՐԻ ՀԱՇՎԱՐԿԱՅԻՆ ՑՈՒՑԱՆԻՇՆԵՐԸ
Հ/Հ |
Սենքեր |
Մակերես /ոչ պակաս/, մ2 |
1 2 3 4
5 6
7
8
9 |
Հավաքավայր Նախասրահ Հանդերձարան Վարչական սենքեր՝ 1) տնօրենի կաբինետ 2) պարետի սենյակ 3) գրասենյակ-հաշվապահություն 4) դաստիարակչական գծով տնօրենի տեղակալի կաբինետ Բժշկական կաբինետ Ծնողների սենյակ Հերթապահ անձնակազմի սենյակ Տեխնիկական անձնակազմի սենյակ Սանհանգույցներ |
Նախագծով /միջինը 1,5 մ2 1 սովորողին/ 0,2-0,3 1 հաճախողին 0,15 1 հաճախողին
25 25 18 8
18 30 12 12+12 1 զուգարանակոնք և 2 միզարան 100 տղամարդուն և 1 զուգարանակոնք 50 կանանց հաշվարկով |
Աղյուսակ 9
ԳԵՂԱԳԻՏԱԿԱՆ ԴԱՍՏԻԱՐԱԿՈՒԹՅԱՆ ՍԵՆՔԵՐԻ ԿԱԶՄԸ ԵՎ ՄԱԿԵՐԵՍՆԵՐԻ ՀԱՇՎԱՐԿԱՅԻՆ ՑՈՒՑԱՆԻՇՆԵՐԸ
Հ/Հ |
Սենքեր |
Մակերեսը /ոչ պակաս/, մ2 |
Սենքերում տեղերի թիվը | |
1 տեղի համար |
1 սենքի համար | |||
1
2
3
4 5 6 7 8 |
Համակողմանի ստուդիա 1) օժանդակ սենքեր 2) հանդերձարան Գեղագիտության կաբինետ 1) լաբորանտական Մասնագիտացված խմբակներ և ստուդիաներ 1) գունանկար, գծանկար, քանդակ 2) կինոֆոտոստուդիա 3) երգի և երաժշտության դասարան 4) պարի և թատերական ստուդիա 5) կիրառական արվեստի ստուդիա Համակողմանի ակումբային սենքեր Հավաքարարի գույքի պահեստ Դասախոսական սենյակ Սանհանգույցներ Հանդերձարան-նախասրահ |
2,6 9 6
0,15 0,35 x1,5 |
144 18-36 12 80 28
108/3x36 36-54
36 18-36 18-24 4-8 |
24
8x3
24 12 12 |
9. Սենքերի քանակը և մակերեսներն ընդունվում են ստուդիաների նշանակությանը համապատասխան: 10. Գեղագիտության կաբինետ նախատեսվում է միայն մասնագիտացված հաստատությունների և վարժարանների համար: 11. Սենքերի նվազագույն քանակը՝ գեղարվեստի, երգի և երաժշտության, պարարվեստի։ 12. Հանդերձարան-նախասրահ` մակերեսը և տեղերի թիվը ընդունվում է նախատեսված սենքերի քանակին համապատասխան, պարարվեստի ստուդիային կից նախատեսել հանդերձարաններ։ |
Աղյուսակ 10
ՏԵԽՆԻԿԱԿԱՆ ՍՏԵՂԾԱԳՈՐԾՈՒԹՅՈՒՆՆԵՐԻ ԲԼՈԿԻ ՍԵՆՔԵՐԻ ԿԱԶՄԸ ԵՎ ՄԱԿԵՐԵՍՆԵՐԻ ՀԱՇՎԱՐԿԱՅԻՆ ՑՈՒՑԱՆԻՇՆԵՐԸ
Հ/Հ |
Սենքեր |
Մակերես ոչ պակաս, մ2 | |
1 տեղին |
1 սենքին | ||
1
2 3 4 5 6 7 8 9 10 |
Տեխնիկական ստեղծագործության համակողմանի սենք* լաբորանտական Տեխնիկայի կաբինետ, ռադիոտեխնիկական նախագծում Ֆիզիկատեխնիկական ստեղծագործության Փոքր մեխանիզմների նախագծում Տեխնիկական մոդելավորում՝ ավիամոդել, ավտոմոդել, նավամոդել Ճարտարապետություն և դիզայն Օժանդակ սենքեր Կինոֆոտոլաբորատորիա Դասախոսական սենյակ Հանդերձարան-նախասրահ |
9
- 9 10,5 26 7,5 13,5 - - - 0,35 x1,5 |
18
12-18 24-54 12-18 |
11. 1-6 կետերի սենքերի մակերեսներն ընդունել խմբակում 12 տեղի հաշվարկով: 12. Հանրակրթական հաստատությունների համար 1 և 7 կետերի սենքերն ընդունել 1-2 հատ: 13. 2-6 կետերի սենքերը մասնագիտացված հաստատությունների և վարժարանների համար սահմանվում է նախագծման առաջադրանքով: 14. Տեխնիկական ստեղծագործության սենքում երկու գոտի՝ 5 կետի խմբակի և արհեստանոցի: 15.Օժանդակ սենքերի քանակը սահմանվում է նախագծման առաջադրանքով։ |
Աղյուսակ 11
ԲՆԱԳԻՏԱ-ՓՈՐՁԱՐԱՐԱԿԱՆ ԳՈՐԾՈՒՆԵՈՒԹՅԱՆ ՀԱՄԱՐ ՆԱԽԱՏԵՍՎԱԾ ՍԵՆՔԵՐԻ ԿԱԶՄԸ ԵՎ ՄԱԿԵՐԵՍՆԵՐԻ ՀԱՇՎԱՐԿԱՅԻՆ ՑՈՒՑԱՆԻՇՆԵՐԸ
Հ/Հ |
Սենքեր |
Մակերեսը /ոչ պակաս/, մ2 |
Սենքերում տեղերի թիվը | |
1 տեղի համար |
1 սենքի համար | |||
1
2 3
4 5 6
7 8 9
10 11
12 13 |
Պատանի բնասերի խմբակ- փորձարարական սենք. լաբորանտական Բիոքիմիայի լաբորատորիա Բնագիտական ուսումնասիրությունների և փորձարկումների լաբորատորիա Ազգագրության և տուրիզմի կաբինետ Բնապահպանության կաբինետ Գյուղատնտեսական տեխնիկայի կաբինետ. լաբորանտական Ջերմոց կենդանաբանական անկյունով Ջերմոց- ջերմատուն Ձմեռային այգի Փոքրածավալ գյուղտեխնիկայի պահպանման սենք Այգեգործական գործիքների և պարարտանյութերի պահպանման օժանդակ սպասարկման սենքեր Դասախոսական սենյակ Հանդերձարան-նախասրահ |
-
5.6-11.3 5.6-11.3
4.5-7.2 4.5 9
0,35 x1,5 |
36 18
18 170-240 270 72-144 108-240***) 50
12-24 |
-
12 12
8-12 8-12 |
14. Պատանի բնասերի խմբակի բազային էլեմենտ : Ընդունվում է 2-4 սենք շենքի համար (մակերես): 15. Նախատեսվում է հաստատության կանաչ գոտում, տեղերի քանակ չի սահմանվում։ 16. Սահմանվում է նախագծման առաջադրանքով, բայց ոչ պակաս նշված մակերեսներից (գյուղտեխնիկայի պահման սենք)։ |
Աղյուսակ 12
ՍԱՆՀԱՆԳՈՒՅՑՆԵՐԻ ՄԱԿԵՐԵՍՆԵՐԻ ԵՎ ՍԱՆԻՏԱՐԱԿԱՆ ՍԱՐՔԵՐԻ ՔԱՆԱԿԻ ՀԱՇՎԱՐԿԱՅԻՆ ՑՈՒՑԱՆԻՇՆԵՐԸ
Հ/Հ |
Սենքեր |
Չափի միավոր |
Մակերես մ2 |
Սանիտարական սարքերի հաշվարկային քանակ |
1
2
3
4
5
6
7 |
Սովորողների համար զուգարաններ և լվացարաններ՝ 1) աղջիկների
2) տղաների
Անձնակազմի համար զուգարաններ և լվացարաններ /անհատական/ Կանանց անձնական հիգիենայի խցեր /անձնակազմի համար/ Հանդ. դահլիճներին, համադպրոցական սենքերին կից զուգարաններ և լվացարաններ Մարզադահլիճների հանդերձարաններին կից զուգարաններ և ցնցուղարաններ Ճաշարանի անձնակազմի համար զուգարաններ և ցնցուղարաններ Աղջիկների անձնական հիգիենայի խցեր |
1 սովորող
1 սովորող
2 սանհանգ.
1 խցիկ
2 սանհանգ
1 հանդերձ.
1 ս.հ, 1 ցնց.
1 խցիկ |
0,15
0,15
3
3
2
4
-
3 |
1 զուգարանակոնք 20, 1 լվացարան 30 աղջկա 1 զուգարանակոնք 30, 0,5 միզարան 40 և 1 լվացարան 30 տղայի 1 զուգարանակոնք, 1 լվացարան
1 հիգ. ցնցուղ, 1զուգ., 1 լվաց. տես հավելված կետ 2 ցնցուղ., 1զուգ., 1 լվաց.
1 ցնցուղ., 1զուգ., 1 լվաց.
1 հիգ. ցնցուղ, 1զուգ., 1 լվաց. 70 աղջկա համար |
Հավելված 8
ՀԱՆՐԱԿՐԹԱԿԱՆ ՀԱՍՏԱՏՈՒԹՅՈՒՆՆԵՐԻ ՍԵՆՔԵՐԻ ԿԱԶՄԸ ԵՎ ՄԱԿԵՐԵՍՆԵՐԸ, Մ2
Հ/Հ |
Գործառական խմբեր |
Սենքերի անվանումը |
Դասարանների լրակազմը | ||
25 սովորող | |||||
Հաստ-ն տարողունակությունը | |||||
600 սով. 24 դաս. |
900 սով. 36 դաս. | ||||
1 |
2 |
3 |
4 |
5 | |
1 |
1-ին դասարան |
1) Դասարան-խաղասենյակ |
120 2x60 |
180 3x60 | |
2) Ննջարան-խաղասենյակ |
60 |
60 | |||
3) Ռեկրեացիա /դահլիճային/ 1 մ2 /աշ. |
50 |
75 | |||
2 |
Տարրական /2-4-րդ/ դասարաններ |
1) Դասարան / առանձին խմբային պարապմունքների հնարավորությամբ |
360 6x60 |
540 9x60 | |
2) Թուլակազմ երեխաների քնի կազմակերպման հատուկ սենք |
120 2x60 |
180 3x60 | |||
3) Աշխատանքի, մոդելավորման, տեխնիկական խաղալիքների և կիրառական արվեստի սենյակ |
60 |
60 | |||
4) Ռեկրեացիա /դահլիճային/1,6մ2 /աշ. |
240 |
360 | |||
5) Մեթոդկաբինետ-ուսուցչանոց |
40 |
60 | |||
3 |
Միջին դպրոցի դասարան-կաբինետներ /5-9 դասարաններ/ |
1) Դասարան- ուսումնական 2) կաբինետ |
420 7x60 |
600 10x60 | |
3) Ռեկրեացիա /դահլիճային/ 1,6մ2 /աշ. |
280 |
400 | |||
4 |
Միջին և ավագ դպրոցի մասնագիտացված կաբինետներ |
1) Համակողմանի նշանակության ուսումնական կաբինետներ /կահավորվում է ըստ դասավանդման ուղղվածության/ ա. բնական գիտությունների ուսումնական կաբինետներ /ֆիզիկա, քիմիա, կենսաբա- նություն/ հետևյալ կազմով՝ բ. լաբորատորիա |
240 4x60
225 3x75 |
360 6x60
300 4x75 | |
գործնական |
108 3x36 |
144 4x36 | |||
2)Մասնագիտացված կաբինետներ՝ օտար լեզուների |
108 3x36 |
144 4x36 | |||
3) համակրգչային և հաշվիչ տեխնիկայի |
122 72+50 |
122 72+50 | |||
4) նկարչության և տեխնիկական գծագրության |
60 |
60 | |||
5) Ռեկրեացիա /դահլիճային/ 1,6 մ2/աշ. |
360 |
560 | |||
5 |
Տեխնոլոգիաների ուսումնասիրման սենքեր /աշխատանքի ուսուցում/ |
1) Մետաղամշակման և տեխնոլոգիաների ուսումնասիրման արհեստանոցներ |
70 |
70 | |
ա. գործիքաշինական |
18 |
18 | |||
բ. փայտամշակման և տեխնոլոգիաների ուսումնասիրման արհեստանոցներ |
70 |
70 | |||
2) Գործվածքների մշակման և տեխնոլոգիաների ուսումնասիրման արհեստանոցներ |
70 |
70 | |||
3) Խոհարարական |
50 |
50 | |||
4) Ռադիոէլեկտրո տեխնոլոգիաներ |
- |
70 | |||
6 |
Տեղեկատվական կենտրոնի խումբ |
1) Գրադարան – տեղեկատվական կենտրոն |
90 |
130 | |
2) 5-12 դասարանների ուսուցչանոց-մեթոդկաբինետ հանգստի գոտու հետ միասին |
60 |
90 | |||
7 |
Ուսումնական բլոկի նախասրահ, վարչական սենքեր, բժշկական սենքեր |
1) Տնօրենի կաբինետ |
25 |
32 | |
2) Ուսումնադաստիարակչական գծով տնօրենի տեղակալի կաբինետ |
10 |
10 | |||
3) Արտադասարանական և արտադպրոցական աշխատանքների կազմակերպչի կաբինետ |
12 |
12 | |||
4) Վարչատնտեսական գծով տնօրենի տեղակալի կաբինետ |
10 |
10 | |||
5) Գրասենյակ |
12 |
12 | |||
6) Տեխնիկական անձնակազմի սենյակ |
12 |
12 | |||
7) Հավաքարարի գույքի սենյակ |
8 |
8 | |||
8) Բժշկի կաբինետ |
21 |
21 | |||
9) Պրոցեդուրային սենք |
16 |
16 | |||
10) Ատամնաբույժի կաբինետ |
12 |
12 | |||
11) Սովորողների սանհանգույցներ |
90 |
135 | |||
12) Անձնակազմի սանհանգույցներ |
12 |
20 | |||
13) Հանդերձարան – նախասրահ |
210 |
315 | |||
8 |
Հանդիսությունների դահլիճի խումբ |
1) Հանդիսությունների դահլիճ տեղ/մակերես լսարան |
200/160 |
300/240 | |
2) Բեմահարթակ |
70 |
90 | |||
3) Բեմական գույքի պահեստ |
12 |
36 | |||
4) Դերասանականներ |
18 |
30 | |||
5) Տեխնիկական կենտրոն |
70 |
90 | |||
9 |
Արտադասարանական ազատ արվեստների խումբ |
1) Խմբակներ 2) Կիրառական արվեստի |
36 |
72 /2x36/ | |
3) Երգի և երաժշտության |
50 |
50 | |||
4) Տեխնիկական արվեստների |
60 |
60 | |||
5) Ֆոտոկինոստուդիա |
36 |
36 | |||
6) Պատանի բնասերի |
35 |
70 /2x35/ | |||
10 |
Մարզաառողջարարական գոտի |
1) Ուսումնամարզական դահլիճներ |
288 |
450 | |
2) Պարարվեստի դահլիճ-ստուդիա |
144 |
180 | |||
3) Լողավազաններ |
|||||
5) Ռազմագիտության հրաձգարան |
|||||
6) Մարզական և ռազմական գույքի պահեստներ |
52 36+36 |
52 36+36 | |||
7) Հրահանգչի սենյակ |
24 12+12 |
24 12+12 | |||
8) Հավաքարարի գույքի սենյակ |
4 |
4 | |||
9) Հանդերձարաններ, սանհանգույցներ |
126 6x21 |
126 6x21 | |||
11 |
Ճաշարան |
1) Ճաշասրահ բաշխման կետով տեղ/մակերես |
200/140 |
300/210 | |
2) Խոհանոցային բլոկ օժանդակ սենքերով |
185 |
280 | |||
Ընդամենը` հաշվարկային մակերես |
5361 |
7474 | |||
1 սովորողին հասնող հաշվարկային մակերես |
8,94 |
8,30 | |||
Ընդհանուր մակերես |
7077 |
9343 | |||
1 սովորողին հասնող ընդհանուր մակերես |
11,79 |
10,38 |
Հավելված 9
ՈՒՍՈՒՄՆԱԿԱՆ ՍԵՆՔԵՐՈՒՄ ԵՎ ԼԱԲՈՐԱՏՈՐԻԱՆԵՐՈՒՄ ԿԱՀԱՎՈՐԱՆՔԻ ՏԱՐՐԵՐԻ ՄԻՋԵՎ ՀԵՌԱՎՈՐՈՒԹՅՈՒՆՆԵՐԸ
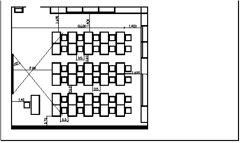
Նկար 1: ՃԱԿԱՏԱՅԻՆ ՊԱՐԱՊՄՈՒՆՔՆԵՐԻ ԴԵՊՔՈՒՄ
Նկար 2: ԽԱՌԸ ՊԱՐԱՊՄՈՒՆՔՆԵՐԻ ԴԵՊՔՈՒՄ
Նկար 3: ԽՄԲԱՅԻՆ ՊԱՐԱՊՄՈՒՆՔՆԵՐԻ ԴԵՊՔՈՒՄ
Հավելված 10
ԱՐՀԵՍՏԱԿԱՆ ԼՈՒՍԱՎՈՐՄԱՆ ԴԵՊՔՈՒՄ ՍԵՆՔԵՐԻ ԼՈՒՍԱՎՈՐՎԱԾՈՒԹՅՈՒՆԸ
Հ/Հ |
Սենքերի անվանումը |
Լուսավորվածության մակարդակը, լք | |
լյումինեսցենտային լամպերով |
շիկացման լամպերով | ||
1 |
Դասասենյակներ, ուսումնական կաբինետներ, լաբորատորիաներ, գործնական պարապմունքի սենքեր |
300 |
150 |
ուսումնական սեղանների հարթության վրա | |||
2 |
Գծագրության կաբինետ |
500 |
300 |
3 |
Մետաղամշակման արհեստանոց |
600 |
- |
համակցված լուսավորության դեպքում 1000, ընդհանուր լուսավորության 50%-ից ոչ պակաս | |||
4 |
Փայտամշակման արհեստանոց |
500 |
- |
5 |
Կարի արհեստանոց |
600 |
- |
6 |
Կիրառական արվեստի ստուդիա |
300-400 սեղանների հարթության վրա |
200-300 սեղանների հարթ. վրա |
7 |
Հանդիսությունների դահլիճներ |
300 |
150 |
8 |
Ուսումնամարզական դահլիճներ և լողավազան |
200 |
100 |
հատակին | |||
9 |
Ուսուցչանոց |
200 |
100 |
10 |
Տնօրենի առանձնասենյակ |
200 |
100 |
հատակից 0,8 մ հարթության վրա | |||
11 |
Բժշկի կաբինետ |
200 |
100 |
12 |
Ռեկրեացիա |
150 |
75 |
13 |
Նախասրահ |
100 |
50 |
14 |
Դպրոցի հողամաս |
40 |
20 |
գետնի հարթության վրա |
Հավելված 11
ԱՐԵՎԻ ՆԿԱՏՄԱՄԲ ՈՒՍՈՒՄՆԱԿԱՆ ՍԵՆՔԵՐԻ ՊԱՏՈՒՀԱՆՆԵՐԻ ԿՈՂՄՆՈՐՈՇՈՒՄԸ
Հ/Հ |
Սենքեր |
Օպտիմալ |
Թույլատրելի |
1
2
3
4 5 |
Դասասենյակներ
Կաբինետներ, լաբորատորիաներ /բացի սույն աղյուսակի 3 և 4 կետերի նշվածներից/
Գծագրության և կիրառական արվեստի, համակարգչային և հաշվիչ տեխնիկայի կաբինետներ
Կենսաբանության լաբորատորիա Ննջարան-խաղասենյակներ |
650 -ից մինչև 2000
650 -ից մինչև 2000
3000 -ից մինչև 600
1500 -ից մինչև 2100 500 -ից մինչև 3100 |
ոչ ավել 250 -ից 2000 մինչև 2950
ոչ ավել 750 -ից 2000 մինչև 650
600 -ից մինչև 1050 և 2550 - 3000
900 -ից մինչև 1500 և 2100 - 2700 |
Հավելված 12
ՀԱՆՐԱԿՐԹԱԿԱՆ ՀԱՍՏԱՏՈՒԹՅՈՒՆՆԵՐԻ ՍԵՆՔԵՐՈՒՄ ՕԴԻ ՋԵՐՄԱՍՏԻՃԱՆԸ ԵՎ ՕԴԱՓՈԽՈՒԹՅԱՆ ՀԱՇՎԱՐԿԱՅԻՆ ՑՈՒՑԱՆԻՇՆԵՐԸ
Հ/Հ |
Սենքեր |
Օդի հաշվարկային ջերմաստիճանը, Cօ |
Օդափոխանակություն 1 ժամում ներհոս/արտահոս |
1
2 3
4
5
6 7
8 9 10 11
12
13
14
15 16
17
18 |
Ուսումնական սենքեր, կաբինետներ, լաբորատորիաներ
Արհեստանոցներ Գծագրության, գեղարվեստի և կիրառական արվեստի ստուդիաներ Հանդիս. դահլիճ, դասախոսութ. լսարան, երգի և երաժշտութ. ստուդիաներ Ուսումնամարզական դահլիճներ, պարի ստուդիա Ուսուցչանոց, խմբակների սենքեր Գրադարան, վարչական կաբինետներ, հանգստի սենյակներ Բժշկական կաբինետներ Ռեկրեացիոն սենքեր Ցնցուղարաններ Հանդերձարաններ՝ 1) մարզադահլիճին կից ցնցուղարաններին կից Զուգարաններ
Լվացարաններ առանձին սենքերում Հագուստի և կոշիկների պահարան հանդերձարաններ Նախասրահ Խոհանոցային բլոկ՝ 1) տաք արտադրամաս, 2) սառը, մսի, ձկան, բանջարեղենի, վերջնամշակման արտադրամասեր, 3) Ճաշարանի ամանեղենի և խոհանոցային տարաների լվացատեղ, 4) Չոր մթերքների պահեստ, 5) Բանջարեղենի պահեստ, 6) Բեռների, տարաների պահեստ, 7) ճաշասրահ, Կինո-ֆոտոլաբորատորիա, տեխնիկական կենտրոն, Կենդանի բնության անկյուն: |
18 սովորական ապակեպատում 21 ժապավենային ապակեպատում 15 18
18
15
18 18
22 16 25 20
18
22 16
16
5 16
20
12 5 16 16 18
- |
16մ3 /ժ 1 մարդուն
20մ3 /ժ 1 մարդուն 20մ3 /ժ 1 մարդուն
20մ3 /ժ 1 մարդուն
80մ3 /ժ 1 մարդուն
- / 1,5 - / 1,0
- / 1,5
- / 5,0
- / 1,5 ցնց. արտ. ծավալով 50մ3 / 1 զ.կոնք 25մ3 / 1 միզարան - / 1,0 - / 1,5
հաշվարկով 3 / 4
4 / 6
- / 2 - / 2
տես կ 5.8 - / 2
- / 5 |
Հավելված 13
ՀԱՆՐԱԿՐԹԱԿԱՆ ՀԱՍՏԱՏՈՒԹՅՈՒՆՆԵՐԻ ԳՈՐԾԱՌԱԿԱՆ ԿԱՌՈՒՑՎԱԾՔԸ
