Հ Ա Մ Ա Ձ Ա Յ Ն Ա Գ Ի Ր
Հայաստանի Հանրապետության Կառավարության և Ռուսաստանի Դաշնության Կառավարության միջև Հայաստանի Հանրապետությունում Ռուսաստանի Դաշնության և Ռուսաստանի Դաշնությունում Հայաստանի Հանրապետության դիվանագիտական ներկայացուցչությունների տեղակայման համար անշարժ գույքի փոխադարձաբար տրամադրման մասին
Հայաստանի Հանրապետության Կառավարությունը և Ռուսաստանի Դաշնության Կառավարությունը, այսուհետ` Կողմեր, Հայաստանի Հանրապետությունում Ռուսաստանի Դաշնության դեսպանության, ք. Գյումրիում Ռուսաստանի Դաշնության գլխավոր հյուպատոսության և Ռուսաստանի Դաշնությունում Հայաստանի Հանրապետության դեսպանության գտնվելու և աշխատանքի համար պատշաճ պայմաններ ապահովելու նպատակով, ուշադրության առնելով Դիվանագիտական հարաբերությունների մասին 1961 թվականի ապրիլի 18-ի Վիեննայի կոնվենցիան, Հյուպատոսական հարաբերությունների մասին 1963 թվականի ապրիլի 24-ի Վիեննայի կոնվենցիան, համաձայնեցին ներքոգրյալի մասին.
ՀՈԴՎԱԾ 1
1. Ռուսական Կողմը Հայաստանի Հանրապետությանը որպես սեփականություն հանձնում է շենքերի և շինությունների համալիր 6506,9 (վեց հազար հինգ հարյուր վեց ամբողջ ինը տասնորդական) քմ ընդհանուր մակերեսով, որը հանդիսանում է դաշնային նշանակության ճարտարապետական հուշարձան և գտնվում է հետևյալ հասցեում` ք. Մոսկվա, Հայկական նրբանցք, շ. 2, շին. 1,2,4, Ռուսաստանի Դաշնությունում Հայաստանի Հանրապետության դեսպանության տեղակայման համար:
2. 9058,0 (ինը հազար հիսունութ) քմ մակերեսով հողամասը, որի վրա գտնվում է սույն հոդվածի 1-ին կետում նշված շենքերի և շինությունների համալիրը, վարձակալությամբ տրամադրվում է Հայաստանի Հանրապետությանը 99 տարի ժամկետով` տարեկան 1 ռուբլի վարձավճարով:
3. Հայկական կողմը պարտավորվում է կատարել սույն հոդվածի 1-ին կետում նշված շենքերի և շինությունների համալիրի և հարակից տարածքի պատշաճ պահպանման և պահպանվածության վերաբերյալ բոլոր պահանջները, որոնք ռուսական օրենսդրությամբ ներկայացվում են դաշնային նշանակության ճարտարապետական հուշարձան հանդիսացող օբյեկտների նկատմամբ` պատշաճ կերպով ձևակերպված պահպանման պարտավորությանը համապատասխան:
4. Սույն հոդվածի 2-րդ կետում նշված հողամասի գտնվելու ստույգ վայրը և սահմանները նշված են սույն Համաձայնագրի անբաժանելի մասը հանդիսացող հմ. 1 հավելվածում:
5. Սույն Համաձայնագրի ուժի մեջ մտնելուց հետո Կողմերի իրավասու մարմինները 99 տարի ժամկետով կնքում են սույն հոդվածի 2-րդ կետում նշված հողամասի վարձակալության պայմանագիր` սույն Համաձայնագրով նախատեսված պայմաններով: Հերթական 99 տարիների համար վարձակալության պայմանագիրը կնքվում է նույն պայմաններով` սույն Համաձայնագրի երկարացման ամսաթվից 30 օրվա ընթացքում` համաձայն սույն Համաձայնագրի 10-րդ հոդվածի:
6. Ռուսական կողմը սույն Համաձայնագրի ուժի մեջ մտնելուց հետո՝ ողջամիտ ժամկետում, իր հաշվին և իր պետության օրենսդրությանը համապատասխան, կապահովի սույն հոդվածի 1-ին կետում նշված շենքերի և շինությունների նկատմամբ Հայաստանի Հանրապետության սեփականության իրավունքի և 2-րդ կետում նշված հողամասի վարձակալության իրավունքի իրավաբանական ձևակերպումը և պետական գրանցումը:
7. Ռուսական կողմը պարտավորվում է սույն Համաձայնագրի ուժի մեջ մտնելուց հետո՝ հնարավորինս կարճ ժամկետում (սակայն երկու տարուց ոչ ավելի), մինչև սույն Համաձայնագրի գործողության ժամկետի ավարտն ընկած ժամանակահատվածով Հայկական կողմի հետ համաձայնեցմամբ Ռուսաստանի Դաշնությունում Հայաստանի Հանրապետության դեսպանի նստավայրի տեղակայման համար տարեկան 1 ռուբլի վարձավճարով վարձակալությամբ Հայաստանի Հանրապետությանը տրամադրել 1,0 հա-ի կարգի մակերեսով հողամաս Մոսկվա քաղաքում:
8. Սույն հոդվածի 7-րդ կետում նշված հողամասի համաձայնեցումից հետո Ռուսական կողմը դիվանագիտական ուղիներով կտեղեկացնի Հայկական կողմին նրա ստույգ գտնվելու տեղի և սահմանների մասին:
9. Սույն հոդվածի 8-րդ կետում նշված՝ Հայկական կողմի գրավոր ծանուցումն ստանալուց հետո Կողմերի իրավասու մարմինները մինչև սույն Համաձայնագրի գործողության ժամկետի ավարտն ընկած ժամանակահատվածով կնքում են սույն հոդվածի 7-րդ կետում նշված հողամասի վարձակալության պայմանագիր սույն Համաձայնագրով նախատեսված պայմաններով: Հերթական 99 տարիների համար վարձակալության պայմանագիրը կնքվում է նույն պայմաններով՝ սույն Համաձայնագրի երկարացման ամսաթվից 30 օրվա ընթացքում` համաձայն սույն Համաձայնագրի 10-րդ հոդվածի:
10. Ռուսական կողմը սույն հոդվածի 8-րդ կետում նշված՝ Հայկական կողմի գրավոր ծանուցումն ստանալուց հետո՝ ողջամիտ ժամկետում, իր հաշվին և իր պետության օրենսդրությանը համապատասխան, կապահովի սույն հոդվածի 7-րդ կետում նշված հողատարածքի վարձակալության պայմանագրի իրավաբանական ձևակերպումը և պետական գրանցումը:
11. Սույն հոդվածի 2-րդ և 7-րդ կետերում նշված հողատարածքների վրա Հայկական կողմի կառուցած շենքերն ու շինությունները հանդիսանում են Հայաստանի Հանրապետության սեփականությունը: Ռուսական կողմը շինարարության ավարտի պահից հետո՝ ողջամիտ ժամկետում, իր հաշվին և իր պետության օրենսդրությանը համապատասխան, կապահովի կառուցված շենքերի և շինությունների նկատմամբ Հայաստանի Հանրապետության սեփականության իրավունքի իրավաբանական ձևակերպումը և պետական գրանցումը:
ՀՈԴՎԱԾ 2
1. Հայկական կողմը Ռուսաստանի Դաշնությանը որպես սեփականություն հանձնում է.
1) 3,0 հա մակերեսով հողամաս 495,9 քմ ընդհանուր մակերեսով շենքերի և շինությունների հետ միասին, որոնք գտնվում են հետևյալ հասցեում` Արզական ավան, Հայաստանի Հանրապետության Կառավարության «Աղվերան» հանգստի բազա:
2) Հայաստանի Հանրապետությունում Ռուսաստանի Դաշնության դեսպանի նստավայր կառուցելու համար 1,0 հա մակերեսով հողամաս՝ հետևյալ հասցեով` ք. Երևան, Աջափնյակ վարչական տարածք, Երևան-Աշտարակ մայրուղու և «Վահագնի» թաղամասի հարևանությամբ:
3) Գյումրի քաղաքում Ռուսաստանի Դաշնության գլխավոր հյուպատոսության տեղակայման նպատակով՝ ք. Գյումրի, փող. Գարեգին Նժդեհ, տուն 5/2 հասցեում գտնվող շենքերի և շինությունների համալիր 1292.61 քմ ընդհանուր մակերեսով` 1628.26 քմ մակերեսով հողատարածքի վրա:
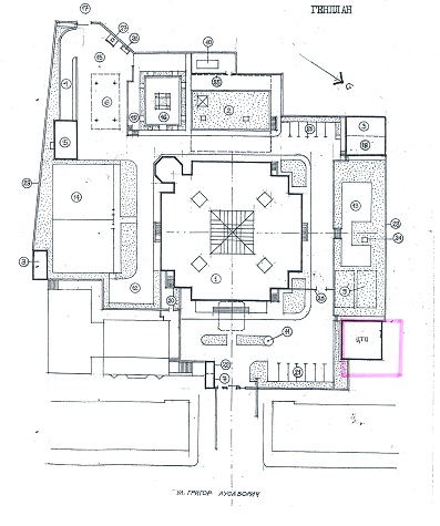
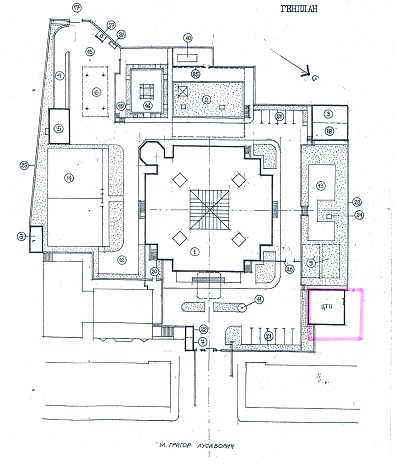
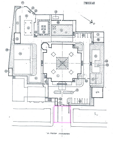
4) 158,0 քմ մակերեսով հողատարածք նախամուտքի շինարարության համար և 156 քմ մակերեսով հողամաս՝ նախկին ջերմակետի շենքով` ՀՀ-ում ՌԴ դեսպանության հյուպատոսական բաժնի տեղակայման նպատակով՝ հետևյալ հասցեով` ք. Երևան, Գրիգոր Լուսավորչի փ. 13, ապահովելով մուտք դեպի այդ շենք ՀՀ-ում ՌԴ դեսպանության տարածքի արտաքին կողմից:
2. Սույն հոդվածի 1-ին կետի 1-ին, 3-րդ, 4-րդ ենթակետերում նշված հողամասերի ստույգ գտնվելու վայրը և սահմանները նշված են սույն Համաձայնագրի անբաժանելի մասը հանդիսացող հմ. 2-րդ, 3-րդ, 4-րդ, 5-րդ հավելվածներում:
3. Հայկական կողմը սույն Համաձայնագրի ուժի մեջ մտնելուց հետո՝ ողջամիտ ժամկետում, իր հաշվին և իր պետության օրենսդրությանը համապատասխան, ապահովում է սույն հոդվածի 1-ին կետի 1-ին, 3-րդ և 4-րդ ենթակետերում նշված հողամասերի և շենքերի նկատմամբ Ռուսաստանի Դաշնության սեփականության իրավունքի իրավաբանական ձևակերպումը և պետական գրանցումը:
4. Հայկական կողմը սահմանում է սույն հոդվածի առաջին կետի 2-րդ ենթակետում նշված հողամասի ստույգ գտնվելու վայրն ու սահմանները և դրանց մասին դիվանագիտական ուղիներով գրավոր ծանուցում Ռուսական կողմին:
5. Հայկական կողմը սույն հոդվածի 4-րդ կետում նշված` Ռուսական կողմի գրավոր ծանուցումն ստանալուց հետո` ողջամիտ ժամկետում, իր հաշվին և իր պետության օրենսդրությանը համապատասխան, կապահովի սույն հոդվածի 1-ին կետի 2-րդ ենթակետում նշված հողատարածքի նկատմամբ Ռուսաստանի Դաշնության սեփականության իրավունքի իրավաբանական ձևակերպումը և պետական գրանցումը:
6. Սույն հոդվածի 1-ին կետում նշված հողատարածքների վրա Ռուսական կողմի կառուցած շենքերն ու շինությունները հանդիսանում են Ռուսաստանի Դաշնության սեփականությունը: Հայկական կողմը շինարարության ավարտի պահից հետո` ողջամիտ ժամկետում, իր հաշվին և իր պետության օրենսդրությանը համապատասխան, կապահովի կառուցված շենքերի և շինությունների նկատմամբ Ռուսաստանի Դաշնության սեփականության իրավունքի իրավաբանական ձևակերպումը և պետական գրանցումը:
ՀՈԴՎԱԾ 3
1. Սույն Համաձայնագրի 1-ին և 2-րդ հոդվածներում նշված շենքերի, շինությունների և հողամասերի վարձակալությամբ/ենթավարձակալությամբ հանձնումը երրորդ կողմի, այլ ձևով դրանց ծանրաբեռնումը հնարավոր է միայն Կողմերի համաձայնությամբ:
2. Սույն Համաձայնագրի 1-ին և 2-րդ հոդվածներում նշված շենքերն ու շինությունները կամ դրանց մի մասը վարձակալությամբ երրորդ կողմի հանձնելու դեպքում վարձակալության ողջ ժամանակահատվածում դադարեցվում է արտոնությունների և անձեռնմխելիության գործողությունը, որոնք նախատեսված են դիվանագիտական ներկայացուցչության շինությունների համար Դիվանագիտական հարաբերությունների մասին 1961 թվականի Վիեննայի կոնվենցիայով և հյուպատոսական ներկայացուցչության համար Հյուպատոսական հարաբերությունների մասին 1963 թվականի Վիեննայի կոնվենցիայով, ինչպես նաև` սույն Համաձայնագրով սահմանվող արտոնությունների գործողությունը: Վարձակալությունը դադարեցնելու և դիվանագիտական ու հյուպատոսական նպատակներով վերոհիշյալ անշարժ գույքի օգտագործումը վերսկսելու դեպքում նշված առավելությունները, արտոնությունները և անձեռնմխելիությունը կրկին սկսում են կիրառվել այդ գույքի նկատմամբ:
ՀՈԴՎԱԾ 4
Կողմերը երաշխավորում են, որ սույն Համաձայնագրի 1-ին և 2-րդ հոդվածներում նշված անշարժ գույքը գրավադրված չէ և որևէ այլ կերպով ծանրաբեռնված չէ, ինչը կխոչընդոտեր այդ գույքի օգտագործմանը սույն Համաձայնագրի նպատակներով: Տվյալ գույքն այն տրամադրող Կողմի կողմից ազատվում է պետական և տեղական հարկերից ու տուրքերից` բացի ծառայությունների կոնկրետ տեսակների դիմաց վճարումներից:
ՀՈԴՎԱԾ 5
Սույն Համաձայնագրի 1-ին և 2-րդ հոդվածներում նշված շենքերի և շինությունների վերակառուցումը, ինչպես նաև սույն Համաձայնագրի 1-ին և 2-րդ հոդվածների համաձայն տրամադրվող հողամասերի վրա նոր շենքերի և շինությունների կառուցումը կարող է իրականացվել միայն վերակառուցման և կառուցման վերաբերյալ քաղաքաշինական հայեցակարգերի համաձայնեցման և, ընդունող պետության պահանջներին համապատասխան, վերակառուցման կամ կառուցման թույլտվություն ստանալուց հետո:
ՀՈԴՎԱԾ 6
1. Սույն Համաձայնագրի 1-ին և 2-րդ հոդվածներում նշված շենքերի, զետեղարանների և շինությունների վերանորոգման և կահավորման, տրամադրվող հողամասերի պահպանման նպատակով Կողմերը իրավունք ունեն ընդունող պետության տարածք ներմուծել նյութեր և սարքավորումներ, այդ թվում` կահույք և ներքին հարդարման պարագաներ: Կողմերը միմյանց ազատում են բացառապես վերը նշված նպատակներով ներմուծվող նյութերի և սարքավորումների համար նախատեսված բոլոր տեսակի հարկերի և մաքսատուրքերի վճարումից:
2. Վերակառուցման և շինարարության նապատակների համար, Կողմերի համաձայնությամբ, նախատեսվում է Կողմերի համապատասխան ծառայությունների կողմից օգտագործվող դիվանագիտական ծանրոցների համար քանակի և տեղերի չափսերի ժամանակավոր ավելացում, որոնց իրավունք է տրվում մինչև 40 ֆուտ երկարությամբ բեռնարկղի վրա գծանշել տեսանելի արտաքին նշաններ, որոնց շնորհիվ, 1961 թ. ապրիլի 18-ի` Դիվանագիտական հարաբերությունների մասին Վիեննայի կոնվենցիայի համաձայն, այս բեռնարկղերը հավասարեցվում են դիվանագիտական ծանրոցներին:
3. Կողմերն իրավունք ունեն ընդունող պետություն ուղարկել շենքերի և շինությունների վերակառուցման և կառուցման աշխատանքների նախապատրաստման և իրականացման համար անհրաժեշտ անձնակազմ` բաղկացած շինարարներից, տեխնիկական վերահսկողության մասնագետներից և տեխնիկական աշխատակիցներից:
ՀՈԴՎԱԾ 7
Կոմունալ ծառայություններից (էլեկտրականություն, ջեռուցում, սառը և տաք ջրամատակարարում, գազ և այլն), շենքերում տեղադրված կապի միջոցներից օգտվելու, ինչպես նաև սույն Համաձայնագրի 1-ին և 2-րդ հոդվածներում նշված հողատարածքների վրա գտնվող կամ հետագայում կառուցվելիք շենքերի և շինությունների վերանորոգման ու պահպանման վճարը կատարվում է շենքերը և շինությունները շահագործող Կողմի կողմից` ընդունող պետությունում գործող նորմերով և սակագներով:
ՀՈԴՎԱԾ 8
Սույն Համաձայնագրի դրույթները կարող են փոփոխվել կամ լրացվել Կողմերի գրավոր համաձայնությամբ:
ՀՈԴՎԱԾ 9
Սույն Համաձայնագրի կատարման և մեկնաբանման հետ կապված վիճելի հարցերը Կողմերի միջև կլուծվեն բանակցությունների միջոցով:
ՀՈԴՎԱԾ 10
1. Սույն Համաձայնագիրն ուժի մեջ է մտնում ուժի մեջ մտնելու համար անհրաժեշտ` Կողմերի ազգային օրենսդրությամբ նախատեսված ներպետական ընթացակարգերի կատարման մասին դիվանագիտական ուղիներով վերջին գրավոր ծանուցումն ստանալու օրվանից և գործում է 99 տարով:
2. Սույն հոդվածի 1-ին կետում նշված ժամկետն ավարտվելուն պես սույն Համաձայնագիրն ինքնաբերաբար երկարաձգվում է հերթական 99 տարի ժամկետով, եթե Կողմերից ոչ մեկը մյուս Կողմին չի ծանուցում Համաձայնագրի գործողությունը դադարեցնելու իր մտադրության մասին ոչ ուշ, քան 12 ամիս առաջ մինչև նախնական կամ ցանկացած հերթական ժամանակահատվածի լրանալը:
Կատարված է Մոսկվա քաղաքում 2011 թվականի հոկտեմբերի 24-ին, երկու օրինակով, յուրաքանչյուրը` հայերեն և ռուսերեն, ընդ որում` երկու տեքստերն էլ հավասարազոր են:
Համաձայնագիրն ուժի մեջ է մտել 2012 թ. մարտի 30-ին
Հավելված 1
Հայաստանի Հանրապետության Կառավարության և Ռուսաստանի Դաշնության Կառավարության միջև
Հայաստանի Հանրապետությունում Ռուսաստանի Դաշնության և Ռուսաստանի Դաշնությունում Հայաստանի Հանրապետության դիվանագիտական ներկայացուցչությունների տեղակայման համար անշարժ գույքի փոխադարձաբար տրամադրման մասին համաձայնագրին կից
ք. Մոսկվա, Հայկական նրբանցք, տուն 2, շին. 1,2,4
Հավելված 2
Հայաստանի Հանրապետության Կառավարության և Ռուսաստանի Դաշնության Կառավարության միջև
Հայաստանի Հանրապետությունում Ռուսաստանի Դաշնության և Ռուսաստանի Դաշնությունում Հայաստանի Հանրապետության դիվանագիտական ներկայացուցչությունների տեղակայման համար անշարժ գույքի փոխադարձաբար տրամադրման մասին համաձայնագրին կից
Արզական ավան, Հայաստանի Հանրապետության Կառավարության «Աղվերան» հանգստի բազա
Հավելված 3
Հայաստանի Հանրապետության Կառավարության և Ռուսաստանի Դաշնության Կառավարության միջև
Հայաստանի Հանրապետությունում Ռուսաստանի Դաշնության և Ռուսաստանի Դաշնությունում Հայաստանի Հանրապետության դիվանագիտական ներկայացուցչությունների տեղակայման համար անշարժ գույքի փոխադարձաբար տրամադրման մասին համաձայնագրին կից
ք. Գյումրի, փող. Գարեգին Նժդեհ, տուն 5/2
Հավելված 4
Հայաստանի Հանրապետության Կառավարության և Ռուսաստանի Դաշնության Կառավարության միջև
Հայաստանի Հանրապետությունում Ռուսաստանի Դաշնության և Ռուսաստանի Դաշնությունում Հայաստանի Հանրապետության դիվանագիտական ներկայացուցչությունների տեղակայման համար անշարժ գույքի փոխադարձաբար տրամադրման մասին համաձայնագրին կից
ք. Երևան, Գրիգոր Լուսավորչի փ. 13,
158,0 քմ մակերեսով հողատարածք նախամուտքի շինարարության համար
Հավելված 5
Հայաստանի Հանրապետության Կառավարության և Ռուսաստանի Դաշնության Կառավարության միջև
Հայաստանի Հանրապետությունում Ռուսաստանի Դաշնության և Ռուսաստանի Դաշնությունում Հայաստանի Հանրապետության դիվանագիտական ներկայացուցչությունների տեղակայման համար անշարժ գույքի փոխադարձաբար տրամադրման մասին համաձայնագրին կից
ք. Երևան, Գրիգոր Լուսավորչի փ. 13,
156 քմ մակերեսով հողամաս` հյուպատոսական բաժնի տեղակայման համար
