«Գրանցված է»
ՀՀ արդարադատության
նախարարության կողմից
16 հոկտեմբերի 2008 թ.
Պետական գրանցման թիվ 32208316
ՀԱՅԱՍՏԱՆԻ ՀԱՆՐԱՊԵՏՈՒԹՅԱՆ
ԿԱՌԱՎԱՐՈՒԹՅԱՆՆ ԱՌԸՆԹԵՐ
ԱՆՇԱՐԺ ԳՈՒՅՔԻ ԿԱԴԱՍՏՐԻ ՊԵՏԱԿԱՆ ԿՈՄԻՏԵ
30 սեպտեմբերի 2008 թ. |
N 307-Ն |
Հ Ր Ա Մ Ա Ն
«ԱՆՇԱՐԺ ԳՈՒՅՔԻ (ՀՈՂԱՄԱՍԵՐԻ, ՇԵՆՔԵՐԻ, ՇԻՆՈՒԹՅՈՒՆՆԵՐԻ) ՀԱՇՎԱՌՄԱՆ» ՀՐԱՀԱՆԳԸ, «ԲՆԱԿԵԼԻ, ԱՌԱՆՁԻՆ ԿԱՆԳՆԱԾ ՀԱՍԱՐԱԿԱԿԱՆ, ԱՐՏԱԴՐԱԿԱՆ ՆՇԱՆԱԿՈՒԹՅԱՆ ՇԵՆՔԵՐԻ, ՇԻՆՈՒԹՅՈՒՆՆԵՐԻ ԵՎ ԴՐԱՆՑՈՎ ԶԲԱՂԵՑՎԱԾ ՀՈՂԱՄԱՍԵՐԻ ԲՆՈՒԹԱԳԻՐԸ», «ԲԱԶՄԱԲՆԱԿԱՐԱՆ ԲՆԱԿԵԼԻ ՇԵՆՔԻ ԲՆԱԿԱՐԱՆԻ, ԲԱԶՄԱԲՆԱԿԱՐԱՆ ԲՆԱԿԵԼԻ ՇԵՆՔՈՒՄ ՏԵՂԱԿԱՅՎԱԾ ՈՉ ԲՆԱԿԵԼԻ ՏԱՐԱԾՔԻ, ՀԱՍԱՐԱԿԱԿԱՆ ԵՎ ԱՐՏԱԴՐԱԿԱՆ ՆՇԱՆԱԿՈՒԹՅԱՆ ՕԲՅԵԿՏԻ ԲՆՈՒԹԱԳԻՐԸ», «ՀՈՂԱՄԱՍԻ, ՇԵՆՔ, ՇԻՆՈՒԹՅԱՆ ՀԱՐԿԵՐԻ ՄԱԿԵՐԵՍՆԵՐԻ ՀԱՇՎԱՐԿԻ» ՁԵՎԱԹՂԹԵՐԸ, «ՈՒՐՎԱԳԾԵՐԻ (ՁԵՎԱԹՂԹԵՐԻ) ԵՎ ՀՈՂԱՄԱՍԻ, ՇԵՆՔ, ՇԻՆՈՒԹՅՈՒՆՆԵՐԻ ՀԱՐԿԵՐԻ ՄԱԿԵՐԵՍՆԵՐԻ ՀԱՇՎԱՐԿԻ ՁԵՎԱԹՂԹԻ ԼՐԱՑՄԱՆ ՄԵԹՈԴԱԿԱՆ ՑՈՒՑՈՒՄՆԵՐԸ» ՀԱՍՏԱՏԵԼՈՒ ՄԱՍԻՆ
Ղեկավարվելով «Իրավական ակտերի մասին» Հայաստանի Հանրապետության օրենքի 6-րդ հոդվածի 1-ին կետի 2) ենթակետի և Հայաստանի Հանրապետության կառավարության 2002 թվականի նոյեմբերի 28-ի N 1930-Ն որոշմամբ հաստատված՝ Հայաստանի Հանրապետության կառավարությանն առընթեր անշարժ գույքի կադաստրի պետական կոմիտեի կանոնադրության 3-րդ բաժնի 12-րդ կետի
ա) ենթակետի պահանջներով՝
Հրամայում եմ`
1. Հաստատել՝
ա) «Անշարժ գույքի (հողամասերի, շենքերի, շինությունների) հաշվառման» հրահանգը՝ համաձայն հավելված N 1.
բ) «Բնակելի, առանձին կանգնած հասարակական, արտադրական նշանակության շենքերի, շինությունների և դրանցով զբաղեցված հողամասերի բնութագիրը» ձևաթուղթը՝ համաձայն հավելված N 2.
գ) «Բազմաբնակարան բնակելի շենքի բնակարանի, բազմաբնակարան բնակելի շենքում տեղակայված ոչ բնակելի տարածքի, հասարակական և արտադրական նշանակության օբյեկտի բնութագիրը»՝ ձևաթուղթը՝ համաձայն հավելված N 3.
դ) «Հողամասի, շենք, շինության հարկերի մակերեսների հաշվարկ» ձևաթուղթը՝ համաձայն հավելված N 4.
ե) «Ուրվագծերի (ձևաթղթերի) և հողամասի, շենք, շինությունների հարկերի մակերեսների հաշվարկի ձևաթղթի լրացման մեթոդական ցուցումները»՝ համաձայն հավելված N 5։
2. Սույն հրամանը սահմանված կարգով ներկայացնել Հայաստանի Հանրապետության արդարադատության նախարարություն՝ պետական գրանցման։
3. Սույն հրամանի կատարման հսկողությունը դնել կոմիտեի աշխատակազմի հաշվառման վարչության պետ Ա. Ղազեյանի վրա։
4. Սույն հրամանն ուժի մեջ է մտնում պաշտոնական հրապարակման օրվան հաջորդող տասներորդ օրը։
Կոմիտեի նախագահ՝ |
Մ. Վարդանյան |
|
Հավելված N 1 ՀՀ կառավարությանն առընթեր անշարժ գույքի կադաստրի պետական կոմիտեի նախագահի 2008 թ. սեպտեմբերի 30-ի N 307-Ն հրամանի |
Հ Ր Ա Հ Ա Ն Գ
ԱՆՇԱՐԺ ԳՈՒՅՔԻ (ՀՈՂԱՄԱՍԵՐԻ, ՇԵՆՔԵՐԻ, ՇԻՆՈՒԹՅՈՒՆՆԵՐԻ) ՀԱՇՎԱՌՄԱՆ
1. ԸՆԴՀԱՆՈՒՐ ԴՐՈՒՅԹՆԵՐ
1. Անշարժ գույքի հաշվառումը` անշարժ գույքի` հողամասերի և դրանց վրա ամրակայված շենքերի, շինությունների (այսուհետ` շինություններ) առկայության, նպատակային նշանակության, սեփականության, օգտագործման ձևերի, դրա որակի ու քանակի, տեսքերի ու տեսակների վերաբերյալ հավաք տվյալներ ստանալն է: Հողամասերը և դրանց վրա ամրակայված շինությունները, անկախ սեփականության ձևից, ենթակա են հաշվառման: Հաշվառման ենթակա են նաև ինքնակամ զբաղեցված հողամասերը և ինքնակամ կառուցված շինությունները: Հողամասերի և դրանց վրա ամրակայված շինությունների հաշվառումն իրականացվում է անշարժ գույքի նկատմամբ իրավունքների պետական գրանցման և կադաստրային գնահատման նպատակով: Հողամասերը և դրանց վրա ամրակայված շինությունները ենթակա են քանակական և որակական հաշվառման: Հողամասերի և դրանց վրա ամրակայված շինությունների քանակական հաշվառումն անշարժ գույքի առկա վիճակի վերաբերյալ տվյալների հավաքագրումն է` արտահայտված գծային չափերով (երկարություն, լայնություն, բարձրություն), մակերեսներով և ծավալներով: Անշարժ գույքի քանակական հաշվառումը կատարվում է կադաստրային քարտեզագրման և չափագրումների միջոցով: Հողամասերի և դրանց վրա ամրակայված շինությունների որակական հաշվառումն իրականացվում է հողամասի նպատակային և գործառնական նշանակության (հողատեսքերի), շինությունների նպատակային, գործառնական նշանակության, կառուցման տարեթվի, արտաքին հարդարման, ավարտվածության աստիճանի, շինանյութի տեսակի (պատերի, միջհարկային ծածկի, տանիքի), վնասվածության աստիճանի և այլ բնույթի որակական տվյալների հավաքագրման միջոցով:
2. Անշարժ գույքի վերաբերյալ տվյալների պարբերաբար ճշտման և թարմացման նպատակով անշարժ գույքի հաշվառումը նախատեսում է`
1) սկզբնական հաշվառում.
2) ընթացիկ հաշվառում:
3. Անշարժ գույքի սկզբնական հաշվառումն ընդգրկում է`
1) անշարժ գույքի վերաբերյալ հավաք տվյալների ստացումը, դասակարգումը, առկա նյութերի ուսումնասիրումը.
2) կադաստրային հանույթները, դաշտային հետազոտությունները և սրբագրական արտանկարումները, անշարժ գույքի վերաբերյալ ելակետային տվյալների և կադաստրային քարտեզների ստացումը.
3) անշարժ գույքի նպատակային նշանակության, սեփականության և օգտագործման ձևերի, տեսքերի ու տեսակների, որակական ու քանակական հատկանիշների, տեղադրության, չափսերի որոշումը և դասակարգումը.
4) սկզբնական, ելակետային նյութերի ստացումը, դասակարգումը, անշարժ գույքի առկայության և բաշխման մասին հաշվետվության ներդրումը, հաշվառման գրքերում սկզբնական, ելակետային տվյալների լրացումը:
4. Անշարժ գույքի ընթացիկ հաշվառումն իրականացվում է սկզբնական հաշվառման ելակետային տվյալների հիման վրա` տարվա ընթացքում կատարված իրավական, որակական և քանակական փոփոխությունների հայտնաբերման, իրավունքների պետական գրանցման, կադաստրային գնահատման, ինչպես նաև հաշվառման գրքերում և կադաստրային քարտեզներում արտացոլելու նպատակով: Անշարժ գույքի քանակական տվյալների (մակերեսների, գծային չափերի, ծավալների, ձևի և այլն) հավաքագրման նպատակով իրականացվում է չափագրում: Անշարժ գույքի չափագրումն իրականացվում է տարբեր չափիչ սարքերի (էլեկտրոնային տախեոմետր, լազերային հեռաչափ, ժապավենամետր և այլն) միջոցով:
5. Բնակելի, առանձին կանգնած հասարակական, արտադրական նշանակության շենքերի, շինությունների և դրանցով զբաղեցված հողամասերի հաշվառման տվյալները լրացվում են սույն հրամանով հաստատված Հավելված N 2 ձևաթղթերի (այսուհետ` ուրվագիծ), բազմաբնակարան բնակելի շենքի բնակարանի, բազմաբնակարան բնակելի շենքում տեղակայված ոչ բնակելի տարածքի, հասարակական և արտադրական նշանակության օբյեկտի հաշվառման տվյալները` Հավելված N 3 ձևաթղթերի, իսկ հողամասի, շենք-շինության հարկերի մակերեսների հաշվարկը կատարվում է սույն հրամանով հաստատված Հավելված N 4 ձևաթղթերի վրա: Հավելված N 2, N 3 և N 4 ձևաթղթերի լրացման կարգը սահմանվում է սույն հրամանով հաստատված մեթոդական ցուցումներով` հավելված N5:
2. ՀՈՂԱՄԱՍԵՐԻ ՉԱՓԱԳՐՈՒՄ
1. Հողամասերը (այդ թվում` չկառուցապատված) չափագրվում և ուրվագծի «Հողամասի և նրա վրա ամրակայված շենքերի և շինությունների դասավորվածության ուրվագիծ» բաժնում գծագրվում են իրենց սահմանային չափերով, նշելով և համարակալելով բոլոր բեկման կետերը և հողամասի տվյալ հատվածների երկարությունները: Հողամասի սահմաններից դուրս յուրաքանչյուր հատվածի վրա նշվում են սահմանակից հարևանների անվանումները:
3. ՀՈՂԱՄԱՍԵՐԻ ՎՐԱ ԱՄՐԱԿԱՅՎԱԾ ՇԻՆՈՒԹՅՈՒՆՆԵՐԻ ՉԱՓԱԳՐՈՒՄ
1. Հողամասի չափագրումն ավարտելուց հետո արտաքին չափերով չափագրվում և ուրվագծի վրա ըստ հողամասում գտնվելու տեղադրության գծագրվում են բոլոր շինությունները (բնակելի տները, առանձին կանգնած հասարակական, արտադրական նշանակության շինությունները, բազմաբնակարան և ստորաբաժանված շենքերը, պարիսպները): Ընդ որում, չափագրվում է պարիսպների երկարությունը, լայնությունը և բարձրությունը: Չափագրված շինությունները հողամասում ճիշտ տեղադրելու նպատակով` ըստ անհրաժեշտության, չափագրվում և ուրվագծում նշվում են շինությունների և հողամասի մոտակա սահմանի, ինչպես նաև շինությունների միմյանց միջև եղած հեռավորությունները, իսկ շինությունների վրա գրվում է դրանց գործառնական նշանակությունը, անվանումը (բնակելի տուն, ավտոտնակ, անասնաշենք, թոնրատուն և այլն):
2. Արտաքին չափերով շինությունների չափագրումն ավարտելուց հետո չափագրվում և ուրվագծի «Շենքերի և շինությունների ուրվագիծ» բաժնում գծագրվում են բոլոր շինությունների հատակագծերն ըստ հարկերի` դրանց ծավալում գտնվող բոլոր տարածքների ներքին չափերով: Չափագրվում է յուրաքանչյուր տարածքի երկարությունը, լայնությունը, ներքին բարձրությունը, ինչպես նաև կրող պատերի և միջնապատերի հաստությունները: Միաժամանակ յուրաքանչյուր տարածքի վրա նշվում են դրանց օգտագործման նպատակը (սենյակ, միջանցք, լողարան և այլն) և առկա դռների, պատուհանների տեղադրությունը: Տարածքների ներքին չափագրման ժամանակ նշվում են նաև աստիճանավանդակները և որմնախորշերը:
4. ԲԱԶՄԱԲՆԱԿԱՐԱՆ ԲՆԱԿԵԼԻ ՇԵՆՔԻ ԲՆԱԿԱՐԱՆԻ, ԲԱԶՄԱԲՆԱԿԱՐԱՆ ԲՆԱԿԵԼԻ ՇԵՆՔՈՒՄ ՏԵՂԱԿԱՅՎԱԾ ՈՉ ԲՆԱԿԵԼԻ ՏԱՐԱԾՔԻ, ՀԱՍԱՐԱԿԱԿԱՆ ԵՎ ԱՐՏԱԴՐԱԿԱՆ ՆՇԱՆԱԿՈՒԹՅԱՆ ՕԲՅԵԿՏԻ ՉԱՓԱԳՐՈՒՄ
1. Բազմաբնակարան բնակելի շենքի բնակարանները, ինչպես նաև բազմաբնակարան շենքում տեղակայված ոչ բնակելի տարածքները, հասարակական և արտադրական նշանակության օբյեկտները չափագրվում են միայն ներքին չափերով: Չափագրվում է և ուրվագծի «Բազմաբնակարան բնակելի շենքի բնակարանի, բազմաբնակարան բնակելի շենքում տեղակայված ոչ բնակելի տարածքի, հասարակական և արտադրական նշանակության օբյեկտի ուրվագիծ» բաժնում գծագրվում է բնակարանի, բազմաբնակարան շենքի ծավալում գտնվող ոչ բնակելի տարածքի, հասարակական և արտադրական նշանակության օբյեկտի հատակագիծը` դրա ծավալում գտնվող բոլոր տարածքների ներքին չափերով: Չափագրվում է յուրաքանչյուր տարածքի երկարությունը, լայնությունը և ներքին բարձրությունը, ինչպես նաև կրող պատերի և միջնապատերի հաստությունները: Միաժամանակ յուրաքանչյուր տարածքի վրա նշվում է դրա օգտագործման նշանակությունը (սենյակ, միջանցք, լողարան և այլն) և առկա դռների ու պատուհանների տեղադրությունը:
5. ԳՐԱՍԵՆՅԱԿԱՅԻՆ ԱՇԽԱՏԱՆՔՆԵՐ
1. Վերը նշված աշխատանքների ավարտից հետո ուրվագծերի համապատասխան մասում չափագրում կատարող մասնագետը կատարում է գրառում իր կողմից կատարված աշխատանքների վերաբերյալ, նշելով փաստացի չափագրված հողամասի և շինությունների մակերեսները (պարսպի երկարությունը): Ընդ որում, հողամասերի վրա տեղակայված շինությունների մակերեսները նշվում են արտաքին չափերով, իսկ բնակարանների, բազմաբնակարան շենքերում, ինչպես նաև բազմաբնակարան շենքերում գտնվող ոչ բնակելի տարածքների, հասարակական և արտադրական նշանակության օբյեկտների մակերեսները` ներքին չափերով:
2. Հաշվառման արդյունքների հիման վրա չափագրում կատարող մասնագետի կողմից կազմվում է եզրակացություն, որտեղ պետք է նշված լինի ՝
1) փաստացի չափագրված հողամասի և շինությունների չափերի, դիրքի, ձևի (կոնֆիգուրացիայի) և գործառնական նշանակության համապատասխանությունը կադաստրային գործում առկա տվյալների հետ և անհամապատասխանությունների դեպքում կատարվում է գրառում դրանց բնույթի մասին:
2) Եզրակացության մեջ նշվում է նաև չափագրման արդյունքում հայտնաբերված ինքնակամ զբաղեցված հողամասերի, ինքնակամ կառուցված շենքերի, շինությունների մակերեսները, ինչպես նաև դրանց ինքնակամ զբաղեցված հողամասերի և ինքնակամ կառուցված շենք, շինությունների հաշվառման մատյանում գրանցման համարը:
3. Եթե հաշվառման աշխատանքներն իրականացվել են լիցենզավորված անձի կողմից, ապա եզրակացություն չի կազմվում, այլ կատարվում է գրառում միայն կատարված աշխատանքների մասին, նշելով անուն, ազգանունը (անվանումը) և լիցենզիայի համարը:
|
Հավելված N 2 Հաստատված է ՀՀ կառավարությանն առընթեր անշարժ գույքի կադաստրի պետական կոմիտեի նախագահի 2008 թ. սեպտեմբերի 30-ի N 307-Ն հրամանով |
Ձ ԵՎ ա թ ու ղ թ
Բնակելի, առանձին կանգնած հասարակական, արտադրական նշանակության շենքերի, շինությունների ԵՎ դրանցով զբաղեցված հողամասերի բնութագիր
_____________________ |
_____________________ |
___________________________ |
_________________________________________________________ սեփականատեր (եր) օգտագործող (ներ) |
Շենքի բնութագիրը
աղ. 1
1. |
Նպատակային նշանակությունը |
||||||
2. |
Գործառնական նշանակությունը |
||||||
3. |
Կառուցման տարեթիվը |
||||||
4. |
Տանիքի նյութը |
թիթեղ, շիֆեր, կղմինդր, այլ նյութ | |||||
5. |
Ավարտվածության աստիճանը |
մինչև 50% |
50-80% |
80% և ավելի | |||
6. |
Հարկի բարձրությունները` արտաքին ներքին |
նկուղ H = h= |
կիսանկուղ H = h= |
I հարկ H = h= |
II հարկ H = h= |
III հարկ H = h= |
ձեղնահարկ H = h= |
7. |
Պատերի շինանյութի տեսակը |
Արտաքին հարդարումն ըստ կողմերի |
Միջհարկային ծածկի նյութը | ||||
տուֆ, բազալտ, երկաթբետոն, աղյուս, սնամեջ մանր բլոկ, խամքար, կոպտատաշ քար (այլ տեսակի քար), փայտ, մետաղ |
սրբատաշ, երեսպատված, սվաղած, ապակեպատ |
փայտ, ե) բետոն | |||||
ա |
Նկուղ, կիսանկուղ |
||||||
բ |
1-ին հարկ |
||||||
գ |
2-րդ հարկ |
||||||
դ |
3-րդ հարկ |
||||||
ե |
ձեղնահարկ |
Շինությունների բնութագիրը
աղ. 2
Ավտոտնակ |
գոմ |
պարիսպ |
||||
1 |
2 |
3 |
4 |
5 |
6 | |
1. |
Կառուցման տարեթիվը |
|||||
2. |
Պատերի շինանյութը |
|||||
3. |
Ծածկի նյութը |
|||||
4. |
Տանիքի նյութը |
|||||
5. |
Արտաքին բարձրությունը |
|||||
6. |
Ներքին բարձրությունը |
|||||
7. |
Արտաքին հարդարումը |
|||||
8. |
Ավարտված. աստիճանը |
Հողամասի բնութագիրը
աղ. 3
1. |
նպատակային նշանակությունը |
|
2. |
գործառնական նշանակությունը |
|
3. |
հողատեսքը |
|
4. |
խումբը |
|
5. |
հողամասի չափը՝ (հա) |
Հողամասի ԵՎ դրա վրա ամրակայված շենքերի ԵՎ շինությունների դասավորության ուրվագիծ
Շենքերի ԵՎ շինությունների ուրվագիծ
Եզրակացություն
Հաշվառման բաժին՝ ________________________________________________ կատարող՝ _________________ Գնահատման բաժին՝ ________________________________________________ կատարող՝ _________________ Գրանցման բաժին՝ ________________________________________________ կատարող՝ _________________
Չափագրումները կատարվեցին «___» ___________
չափագրող ________________________________ կողմից, իմ ներկայությամբ անուն, ազգանուն
և ներկայացված տեղեկությունների ճշտության համար ստորագրում եմ:
Սեփականատեր, օգտագործող ______________________________ ստորագրություն Չափագրող ___________________________________ ստորագրություն |
|
Հավելված N 3
Հաստատված է ՀՀ կառավարությանն առընթեր անշարժ գույքի կադաստրի պետական կոմիտեի նախագահի 2 008 թ. սեպտեմբերի 30-ի N 307-Ն հրամանով |
Ձ ԵՎ ա թ ու ղ թ
Բազմաբնակարան բնակելի շենքի բնակարանի, բազմաբնակարան բնակելի շենքում տեղակայված ոչ բնակելի տարածքի, հասարակական ԵՎ արտադրական նշանակության օբյեկտի բնութագիրը
_____________________ |
_____________________ |
___________________________ |
_________________________________________________________ սեփականատեր (եր) օգտագործող (ներ) |
աղ.
1. |
Կառուցման տարեթիվը |
|
2. |
Պատերի շինանյութի տեսակը |
քար, ե) բետոն |
3. |
Ծածկի նյութը |
փայտ, ե) բետոն |
4. |
Հարկայնությունը, հարկը |
|
5. |
Ներքին բարձրությունը |
մինչև 2.70մ., 2.70-3.0մ. 3.0 և ավելի |
6. |
Ավարտվածության աստիճանը |
մինչև 50%, 50-80%, 80% և ավելի |
7. |
Արտաքին հարդարումը |
|
8. |
Նպատակային նշանակությունը |
|
9. |
Գործառնական նշանակությունը |
Եզրակացություն
Հաշվառման բաժին՝ ________________________________________________ կատարող՝ _________________ Գնահատման բաժին՝ ________________________________________________ կատարող՝ _________________ Գրանցման բաժին՝ ________________________________________________ կատարող՝ _________________ Բազմաբնակարան բնակելի շենքի բնակարանի, բազմաբնակարան բնակելի շենքում տեղակայված ոչ բնակելի տարածքի, հասարակական ԵՎ արտադրական նշանակության օբյեկտի ուրվագիծ
Չափագրումները կատարվեցին «___» ___________
չափագրող ________________________________ կողմից, իմ ներկայությամբ անուն, ազգանուն
և ներկայացված տեղեկությունների ճշտության համար ստորագրում եմ:
Սեփականատեր, օգտագործող ______________________________ ստորագրություն Չափագրող ___________________________________ ստորագրություն |
|
Հավելված N 4
Հաստատված է ՀՀ կառավարությանն առընթեր անշարժ գույքի կադաստրի պետական կոմիտեի նախագահի 2 008 թ. սեպտեմբերի 30-ի N 307-Ն հրամանով |
Ձ Ե Վ ա թ ու ղ թ
Հողամասի, շենքԻ, շինության հարկերի մակերեսների հաշվարկի
Հողամասի մակերեսի հաշվարկ
Մակերեսի հաշվարկման բանաձևը
|
Ընդհանուր մակերեսը (քմ)
|
Այդ թվում կառուցապատված (քմ)
|
Շենքի, շինության հարկերի մակերեսների հաշվարկ
Կոդը |
Հարկը սկսած I հարկից |
Շենքի ծավալում գտնվող տարածքի համարն ըստ հատակագծի |
Շենքի ծավալում գտնվող տարածքի գործառնական նշանակությունը (սենյակ. խոհանոց. միջանցք/ |
Ներքին մակերեսների հաշվարկման բանաձևը |
Մակերեսներն ըստ ներքին չափումների (քմ/ | ||
Ընդհանուր մակերես |
Բնակելի |
Օժանդակ | |||||
1 |
2 |
3 |
4 |
5 |
6 |
7 |
8 |
Նկուղ, կիսանկուղ | |||||||
Շենքերի, շինությունների (ըստ հարկերի) մակերեսների ԵՎ ծավալների հաշվարկման աղյուսակ
Հ/հ |
շենքերի, շինությունների անվանումը (ըստ հարկերի) |
շենքերի, շինությունների արտաքին մակերեսի հաշվարկման բանաձևը |
շենքերի, շինությունների արտաքին մակերեսը (քմ) |
շենքերի, շինությունների ներքին մակերեսը (քմ) |
շենքերի, շինությունների ներքին բարձր. (մ) |
շենքերի, շինությունների ներքին ծավալը (խմ) |
1 |
2 |
3 |
4 |
5 |
6 |
7 |
Չափագրող ____________________
|
Բաժնի պետ՝_________________
|
___________________
|
____________________
|
«____» _________________200 թ. |
|
Հավելված N 5 ՀՀ կառավարությանն առընթեր անշարժ գույքի կադաստրի պետական կոմիտեի նախագահի 2008 թ. սեպտեմբերի 30-ի N 307-Ն հրամանի |
Մ Ե Թ Ո Դ Ա Կ Ա Ն Ց ՈՒ Ց ՈՒ Մ Ն Ե Ր
1. Ուրվագծերի (ձԵՎաթղթերի) ԵՎ հողամասի, շենքԵՐԻ, շինությունների հարկերի մակերեսների հաշվարկի ձԵՎաթղթի լրացման
1. Ուրվագիծը կազմվում է չափագրում կատարող մասնագետի կողմից անշարժ գույքի փաստացի չափագրման և տվյալների հավաքագրման արդյունքում: Ուրվագիծը լրացվում է գրիչով, հստակ և ընթեռնելի, առանց ջնջումների: Գծագրերը գծվում են առանց մասշտաբի պահպանման մոտ 1:100 կամ 1:200 մասշտաբով:
2. Բնակելի, առանձին կանգնած հասարակական, արտադրական նշանակության շենքերի, շինությունների ԵՎ դրանցով զբաղեցված հողամասերի բնութագրի (ՁԵՎաթուղթ հավելված N 2) լրացման կարգը
1. Ուրվագիծը լրացվում է հետևյալ կերպ.
Ուրվագծի 1-ին էջի համապատասխան տողերում լրացվում է անշարժ գույքի գտնվելու վայրը (մարզ, համայնք, հասցե) և սեփականատիրոջ (օգտագործողի) անունը, ազգանունը, հայրանունը (անվանումը):
1-ին աղյուսակի՝
1-ին կետում գրվում է շենքի նպատակային նշանակությունը (բնակելի, հասարակական, արտադրական),
2-րդ կետում գրվում է անշարժ գույքի գործառնական նշանակությունը, անվանումը (բնակելի տուն, խանութ, արհեստանոց և այլն/,
3-րդ կետում գրվում է շենքի կառուցման տարեթիվը,
4-րդ կետում ընդգծվում է շենքի տանիքի նյութը,
5-րդ կետում ընդգծվում է շենքի ավարտվածության աստիճանը,
6-րդ կետում գրվում է յուրաքանչյուր հարկի արտաքին և ներքին բարձրությունները,
7-րդ կետի ա), բ), գ), դ), ե) ենթակետերում գրվում են 7-րդ կետում նշված այն շինանյութերի տեսակը, արտաքին հարդարումը, միջհարկային ծածկի նյութ, որոնք համապատասխանում են տվյալ հարկին: Ընդ որում, արտաքին հարդարման դեպքում նշվում է նաև հարդարված կողմերի քանակը:
2-րդ աղյուսակում նշվում են շինությունների բնութագրերը:
Աղյուսակի հորիզոնական 1-ին տողի շինությունների համապատասխան ուղղահայաց սյունակներում լրացվում են տվյալ շինությունների տվյալները.
1-ին կետում նշվում են համապատասխան շինության կառուցման տարեթիվը
2-րդ կետում` պատերի շինանյութը
3-րդ կետում` ծածկի նյութը
4-րդ կետում` տանիքի նյութը
5-րդ կետում նշվում է շինության արտաքին, իսկ 6-րդ կետում` ներքին բարձրությունները
7-րդ կետում նշվում է շինության արտաքին հարդարումը
8-րդ կետում` շինության ավարտվածության աստիճանը:
Ընդ որում, պարիսպների համար լրացվում են միայն 1-ին, 2-րդ և 5-րդ կետերը
3-րդ աղյուսակում նշվում են հողամասի բնութագրերը:
1-ին կետում նշվում է հողամասի նպատակային նշանակությունը (գյուղանտեսական, բնակավայրերի և այլն)
2-րդ կետում գործառնական նշանակությունը (բնակելի կառուցապատման, հասարակական կառուցապատման և այլն)
3-րդ կետում նշվում է հողատեսքը (վարելահող, արոտավայր, բազմամյա տնկարկ և այլն), իսկ բազմամյա տնկարկների համար` նաև տեսակները (խաղող, պտուղ և այլն)
4-րդ կետում նշվում է հողամասի խումբը: 3-րդ և 4-րդ կետերը լրացվում են միայն գյուղատնտեսական և անտառային նշանակության հողամասերի համար
5-րդ կետում նշվում է հողամասի չափը հեկտարով, օրինակ՝ 0.1654 հա:
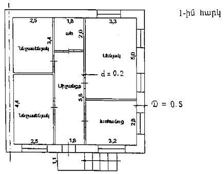
2. «Հողամասի և դրա վրա ամրակայված շենքերի, շինությունների դասավորության ուրվագիծ» բաժնում գծագրվում է հողամասի հատակագիծը, նշելով դրա սահմանների բոլոր բեկման կետերը, որոնց միջև եղած չափսերը գրվում են հողամասի սահմանի տվյալ հատվածի վրա, սահմանից դուրս: Բեկման կետերը սկսած ներքևի ձախ անկյունից ժամացույցի սլաքի պտույտի ուղղությամբ համարակալվում են:
3. Հողամասի սահմանների յուրաքանչյուր հատվածի վրա, սահմաններից դուրս նշվում են նաև սահմանակից հարևանների անվանումները (հարևանի անուն, ազգանունը, փողոց, ջրատար և այլն): Հողամասը սահմանազատող պարիսպները, ցանկապատերը, ինչպես նաև դարպասները (դռները) նշվում են իրենց պայմանական նշաններով: Հողամասի հատակագիծը գծագրելուց հետո դրանում` ըստ հողամասում փաստացի դասավորվածության և մոտավոր մասշտաբների, պատկերվում են շենքերն ու շինությունները, ընդ որում, գծագրվում են նաև շենք, շինությունների ծավալներից դուրս գտնվող պատշգամբները և աստիճանները (աստիճանների ճիշտ քանակով): Միաժամանակ շենքերի ու շինությունների համապատասխան կողմերի վրա նշվում են արտաքին չափերը, իսկ կենտրոններում գրվում է դրանց գործառնական նպատակը, անվանումը (բնակելի տուն, ավտոտնակ, անասնաշենք, թոնրատուն և այլն): Շինությունների հատակագծերն ուղղանկյունաձև լինելու դեպքում նշվում են երկու կողմերի չափերը: Եթե հողամասում առկա են նույն գործառնական նշանակության 2 և ավելի շինություններ, ապա դրանք նաև համարակալվում են: Պարիսպների առկայության դեպքում ուրվագծված պարսպի վրա նշվում է դրա երկարությունը և հաստությունը: Չափագրված շինությունները հողամասում ճիշտ տեղադրելու նպատակով ուրվագծում նշվում են շինությունների և հողամասի մոտակա սահմանի, ինչպես նաև շինությունների միմյանց միջև եղած հեռավորությունները: Եթե ուրվագծում հստակ չեն երևում որևէ փոքր հանգույցի չափերը, ապա հանգույցը սլաքով հանվում է ուրվագծի որևէ ազատ տեղ և գծագրվում է ավելի մեծ մասշտաբով:
4. Արտաքին չափերով կատարված հողամասի և դրա վրա ամրակայված շենքերի և շինությունների գծագրումն ավարտելուց հետո ուրվագծի «Շենքերի և շինությունների ուրվագիծ» բաժնում գծագրվում են բոլոր շենքերի ու շինությունների հատակագծերն ըստ հարկերի: Հատակագծերի գծագրումը սկսվում է շենք, շինությունների ստորին հարկից, էջի վերևի մասից, դրա տակ պատկերելով մնացած հարկերն ըստ հերթականության: Յուրաքանչյուր հարկի հատակագծի վերևի աջ անկյունում նշվում է շենք, շինության, ինչպես նաև տվյալ հարկի անվանումը (նկուղ, 1-ին հարկ, ձեղնահարկ և այլն), իսկ շինությունների դեպքում` նաև ներքին բարձրությունը: Եթե բաժանմունքների ներքին բարձրությունները տարբեր են, ապա յուրաքանչյուր բաժանմունքի վրա նշվում է իր բարձրությունը: Հատակագծում կրող պատերի և միջնապատերի վրա նշվում են նաև դրանց հաստությունները: Գծագրված շենքի, շինության յուրաքանչյուր բաժանմունքի վրա նշվում է դրա անվանումը, դռների և պատուհանների տեղադրություն (համապատասխան չափերով) ըստ պայմանական նշանների: Բաժանմունքների յուրաքանչյուր կողմի վրա գրվում է տվյալ հատվածի երկարությունը: Բաժանմունքների հատակագծերն ուղղանկյունաձև լինելու դեպքում նշվում են երկու կողմերի չափերը: Այլ սեփականատիրոջ պատկանող շենք, շինության ընդհանուր պատի առկայության դեպքում տվյալ պատի երկարությամբ կետագծով ցույց է տրվում առանցքը:
5. Ուրվագծի կազմման և լրացման աշխատանքների ավարտից հետո ուրվագծի եզրակացության «Հաշվառման բաժին» մասում հաշվառում կատարող մասնագետը կատարում է գրառում իր կողմից կատարված աշխատանքների վերաբերյալ, նշելով փաստացի չափագրված հողամասի և շինությունների մակերեսները (պարսպի երկարությունը): Ընդ որում, հողամասերի վրա տեղակայված շինությունների մակերեսները նշվում են արտաքին չափերով: Հաշվառման արդյունքների հիման վրա չափագրում կատարող մասնագետի կողմից կազմվում է եզրակացություն, որտեղ պետք է նշված լինի՝
1) փաստացի չափագրված հողամասի և շինությունների չափերի, դիրքի, ձևի (կոնֆիգուրացիայի) և գործառնական նշանակության համապատասխանությունը կադաստրային գործում առկա տվյալների հետ և անհամապատասխանությունների դեպքում կատարվում է գրառում դրանց բնույթի մասին:
2) Եզրակացության մեջ նշվում է նաև չափագրման արդյունքում հայտնաբերված ինքնակամ զբաղեցված հողամասերի, ինքնակամ կառուցված շենքերի, շինությունների, լրացուցիչ հարկերի, աստիճանների և աստիճանահարթակների մակերեսները, ինքնակամ ձևափոխված դռների և պատուհանների, չափագրված գույքի ծավալում գտնվող կրող պատերի ձևափոխությունները, ինչպես նաև դրանց ինքնակամ զբաղեցված հողամասերի և ինքնակամ կառուցված շենք, շինությունների հաշվառման մատյանում գրանցման համարը: Եզրակացությունը ստորագրվում է կատարող մասնագետի և բաժնի պետի կողմից, իսկ եթե հաշվառման աշխատանքներն իրականացվել են լիցենզավորված անձի կողմից, ապա եզրակացություն չի կազմվում, այլ կատարվում է գրառում միայն կատարված աշխատանքների մասին, նշելով լիցենզիայի համարը: Ուրվագծի համապատասխան տողերում ստորագրում են սեփականատերը (օգտագործողը) և չափագրում կատարող մասնագետը: Վերջինիս կողմից նշվում է ուրվագծի կազմման ամիսը, ամսաթիվը, տարեթիվը և իր անուն-ազգանունը:
6. Եզրակացության «Գնահատման բաժինը» լրացվում և ստորագրվում է գնահատման բաժնի կատարող մասնագետի և բաժնի պետի կողմից: Գնահատման բաժնի կողմից լրացվում է նաև հավելված N 2 ուրվագծի 3-րդ աղյուսակի 4-րդ տողի տվյալը (հողամասի խումբը): Եզրակացության «Գրանցման բաժինը» լրացվում և ստորագրվում է գրանցման բաժնի կատարող մասնագետի, ենթաբաժնի և բաժնի պետերի կողմից:
3. Բազմաբնակարան բնակելի շենքի բնակարանի, բազմաբնակարան բնակելի շենքում տեղակայված ոչ բնակելի տարածքի, հասարակական ԵՎ արտադրական նշանակության օբյեկտի բնութագրի (ՁԵՎաթուղթ հավելված N 3) լրացման կարգը
1. Ուրվագիծը լրացվում է հետևյալ կերպ.
Ուրվագծի 1-ին էջի համապատասխան տողերում լրացվում է անշարժ գույքի գտնվելու վայրը (մարզ, համայնք, հասցե) և սեփականատիրոջ (օգտագործողի) անունը, ազգանունը, հայրանունը (անվանումը):
Աղյուսակի 1-ին կետում գրվում է բազմաբնակարան շենքի կառուցման տարեթիվը։
Աղյուսակի հաջորդ կետերը լրացվում են միայն բազմաբնակարան բնակելի շենքի բնակարանի, բազմաբնակարան բնակելի շենքում տեղակայված ոչ բնակելի տարածքի, հասարակական և արտադրական նշանակության օբյեկտի համար:
2-րդ կետում ընդգծվում է պատերի շինանյութի տեսակը,
3-րդ կետում ընդգծվում է ծածկի նյութը,
4-րդ կետում գրվում է տեղակայման հարկը և բազմաբնակարան շենքի հարկայնությունը,
5-րդ կետում ընդգծվում է ներքին բարձրությունը,
6-րդ կետում ընդգծվում է ավարտվածության աստիճանը,
7-րդ կետում գրվում է արտաքին հարդարումը (երեսպատված, սրբատաշ և այլն): Ընդ որում, արտաքին հարդարման դեպքում նշվում է նաև հարդարված կողմերի քանակը: 7-րդ կետը բնակարանների համար չի լրացվում,
8-րդ կետում գրվում է նպատակային նշանակությունը (բնակելի, հասարակական, արտադրական),
9-րդ կետում գրվում է գործառնական նշանակությունը (բնակարան, խանութ և այլն):
2. «Բազմաբնակարան բնակելի շենքի բնակարանի, բազմաբնակարան բնակելի շենքում տեղակայված ոչ բնակելի տարածքի, հասարակական և արտադրական նշանակության օբյեկտի ուրվագիծ» բաժնում գծագրվում է բազմաբնակարան բնակելի շենքի բնակարանի, բազմաբնակարան բնակելի շենքում տեղակայված ոչ բնակելի տարածքի, հասարակական և արտադրական նշանակության օբյեկտի հատակագիծը` դրա ծավալում գտնվող բոլոր բաժանմունքների ներքին չափերով: Գծագրված յուրաքանչյուր տարածքների վրա նշվում է դրանց անվանումը (սենյակ, միջանցք, լողարան և այլն), դռների և պատուհանների տեղադրությունն (համապատասխան չափերով)` ըստ պայմանական նշանների: Բաժանմունքների յուրաքանչյուր կողմի վրա գրվում է տվյալ հատվածի երկարությունը: Բաժանմունքների հատակագծերն ուղղանկյունաձև լինելու դեպքում նշվում են երկու կողմերի չափերը: Հատակագծում կրող պատերի և միջնապատերի վրա նշվում են նաև դրանց հաստությունները: Մեկ գույքային միավոր հանդիսացող երկու և ավելի հարկեր ունեցող բնակարանները, բազմաբնակարան շենքի ծավալում գտնվող ոչ բնակելի տարածքները, հասարակական և արտադրական նշանակության օբյեկտները գծագրվում են առանձին հարկերով սկսած ստորին հարկից, էջի վերևի մասից, դրա տակ պատկերելով մնացած հարկերն ըստ հերթականության:
3. Ուրվագծի կազմման և լրացման աշխատանքների ավարտից հետո ուրվագծի եզրակացության «Հաշվառման բաժին» մասում հաշվառում կատարող մասնագետը կատարում է գրառում իր կողմից կատարված աշխատանքների վերաբերյալ, նշելով փաստացի չափագրված բնակարանի, բազմաբնակարան շենքում, ինչպես նաև բազմաբնակարան շենքում գտնվող ոչ բնակելի տարածքների, հասարակական և արտադրական նշանակության օբյեկտի ներքին մակերեսը:
4. Հաշվառման արդյունքների հիման վրա չափագրում կատարող մասնագետի կողմից կազմվում է եզրակացություն, որտեղ պետք է նշված լինի՝
1) փաստացի չափագրված բնակարանի, բազմաբնակարան շենքում, ինչպես նաև բազմաբնակարան շենքում գտնվող ոչ բնակելի տարածքների, հասարակական և արտադրական նշանակության օբյեկտի չափերի դիրքի, ձևի (կոնֆիգուրացիայի) և գործառնական նշանակության համապատասխանությունը կադաստրային գործում առկա տվյալների հետ և անհամապատասխանությունների դեպքում կատարվում է գրառում դրանց բնույթի մասին:
2) Եզրակացության մեջ նշվում է նաև չափագրման արդյունքում հայտնաբերված ինքնակամ կառուցված կցակառույցների, լրացուցիչ հարկերի (ձեղնահարկերի) աստիճանների և աստիճանահարթակների, ինքնակամ ձևափոխված դռների և պատուհանների, չափագրված գույքի ծավալում գտնվող կրող պատերի ձևափոխության և մակերեսների փոփոխության մասին, ինչպես նաև դրանց ինքնակամ կառուցված շենք, շինությունների հաշվառման մատյանում գրանցման համարը: Եզրակացությունը ստորագրվում է կատարող մասնագետի և բաժնի պետի կողմից, իսկ եթե հաշվառման աշխատանքներն իրականացվել են լիցենզավորված անձի կողմից, ապա եզրակացություն չի կազմվում, այլ կատարվում է գրառում միայն կատարված աշխատանքների մասին, նշելով լիցենզիայի համարը: Ուրվագծի համապատասխան տողերում ստորագրում են սեփականատերը (օգտագործողը) և չափագրում կատարող մասնագետը: Վերջինիս կողմից նշվում է ուրվագծի կազմման ամիս, ամսաթիվը, տարեթիվը և իր անուն-ազգանունը:
5. Եզրակացության «Գնահատման բաժինը» լրացվում և ստորագրվում է գնահատման բաժնի կատարող մասնագետի և բաժնի պետի կողմից: Եզրակացության «Գրանցման բաժինը» լրացվում և ստորագրվում է գրանցման բաժնի կատարող մասնագետի, ենթաբաժնի և բաժնի պետերի կողմից:
4. Հողամասի, շենքԻ, Շինության հարկերի մակերեսների հաշվարկի ձԵՎաթղթի (հավելված N 4) լրացման կարգը
1. Ձևաթուղթը լրացվում է հետևյալ կերպ.
1-ին սյունակում գրվում է հողամասի մակերեսի հաշվարկման բանաձևը, 2-րդում հողամասի ընդհանուր մակերեսը (քմ), 3-րդում` կառուցապատված մակերեսը (քմ): Եթե հողամասն ունի անկանոն երկրաչափական տեսք, ապա այն բաժանվում է մի քանի երկրաչափական պարզ պատկերների և հաշվարկվում է այդ պատկերների (եռանկյունի, սեղան և այլն) մակերեսների հաշվարկման բանաձևերով:
Ձևաթղթի «Շենքի, շինության հարկերի մակերեսների հաշվարկ» բաժինը լրացվում է հետևյալ կերպ.
1-ին կետում նշվում է շենքի, շինության կոդը.
2-րդ կետում՝ հարկը (վերգետնյա առաջին հարկից սկսած).
3-րդ կետում շենքի, շինության ծավալում գտնվող տարածքի համարն ըստ հատակագծի.
4-րդ կետում տարածքի գործառնական նշանակությունը (սենյակ, խոհանոց, միջանցք և այլն).
5-րդ կետում` տվյալ տարածքի ներքին մակերեսի հաշվարկման բանաձևը.
6-րդ կետում նշվում է տարածքի ընդհանուր մակերեսը (քմ).
7-րդ կետում նշվում են բնակելի մակերեսը (քմ).
8-րդ կետում նշվում է օժանդակ մակերեսը (քմ)։
Նույն կարգով՝ ըստ տարածքների, լրացվում են նաև նկուղների և կիսանկուղների ներքին մակերեսները:
Այնուհետև լրացվում է «Շենքերի, շինությունների (ըստ հարկերի) մակերեսների և ծավալի հաշվարկման աղյուսակը»
1-ին կետում նշվում է հերթական համարը.
2-րդ կետում նշվում է շենքերի, շինությունների անվանումը (ըստ հարկերի)
3-րդ կետում՝ շենքերի և շինությունների արտաքին մակերեսի հաշվարկման բանաձևը
4-րդ կետում՝ շենքերի և շինությունների արտաքին մակերեսը (քմ)
5-րդ կետում՝ շենքերի և շինությունների ներքին մակերեսը (քմ)
6-րդ կետում՝ շենքերի և շինությունների ներքին բարձրությունը (մ)
7-րդ կետում՝ շենքերի, շինությունների ներքին ծավալը (խմ)։
Նույն կարգով՝ ըստ տարածքների, լրացվում են նաև նկուղների և կիսանկուղների արտաքին մակերեսները և ներքին ծավալները:
Նշված ձևաթուղթը լրացնում է չափագրում կատարած մասնագետը, ստորագրվում է չափագրում կատարող մասնագետի և բաժնի պետի կողմից, միաժամանակ նշվում է ձևաթղթի կազմման ամիսը, ամսաթիվը, տարեթիվը:
