ՀԱՅԱՍՏԱՆԻ ՀԱՆՐԱՊԵՏՈՒԹՅԱՆ ԿԱՌԱՎԱՐՈՒԹՅՈՒՆ
Ո Ր Ո Շ ՈՒ Մ
9 օգոստոսի 2007 թվականի N 1034-Ն
ՀԱՅԱՍՏԱՆԻ ՀԱՆՐԱՊԵՏՈՒԹՅԱՆ ԼՈՌՈՒ ՄԱՐԶԻ ՏԱՇԻՐԻ ՔԱՂԱՔԱՅԻՆ ՀԱՄԱՅՆՔԻ (ԲՆԱԿԱՎԱՅՐԻ) ԳԼԽԱՎՈՐ ՀԱՏԱԿԱԳԻԾԸ ՀԱՍՏԱՏԵԼՈՒ ՄԱՍԻՆ
«Քաղաքաշինության մասին» Հայաստանի Հանրապետության օրենքի 10-րդ, 14.3-րդ և 17-րդ հոդվածներին համապատասխան` Հայաստանի Հանրապետության կառավարությունը որոշում է.
1. Հաստատել Հայաստանի Հանրապետության Լոռու մարզի Տաշիրի քաղաքային համայնքի (բնակավայրի) գլխավոր հատակագիծը (այսուհետ` գլխավոր հատակագիծ)` համաձայն հավելվածի:
2. Հայաստանի Հանրապետության քաղաքաշինության նախարարին` գլխավոր հատակագծի իրականացման մոնիթորինգն ապահովել համաձայն Հայաստանի Հանրապետության կառավարության 1999 թվականի դեկտեմբերի 31-ի «Պետական քաղաքաշինական կադաստրի վարման և քաղաքաշինական գործունեության մոնիթորինգի անցկացման կարգը հաստատելու մասին» N 802 որոշմամբ սահմանված կարգի:
3. Հայաստանի Հանրապետության պետական կառավարման մարմինների ղեկավարներին` ճյուղային և համայնքային զարգացման ծրագրերում սահմանված կարգով ներառել գլխավոր հատակագծի իրականացման համապատասխան միջոցառումները` ըստ առաջնահերթության:
4. Առաջարկել Տաշիրի քաղաքապետին համայնքի զարգացման ծրագրերում սահմանված կարգով ներառել գլխավոր հատակագծի իրականացման միջոցառումները` ըստ առաջնահերթության:
5. Սահմանել, որ գլխավոր հատակագծով նախատեսված հողամասերի նպատակային նշանակության փոփոխությունները կատարվում են Հայաստանի Հանրապետության հողային օրենսդրությամբ սահմանված կարգով` ըստ գլխավոր հատակագծով նախատեսված կառուցապատման հերթականության:
6. Սույն որոշումն ուժի մեջ է մտնում պաշտոնական հրապարակմանը հաջորդող օրվանից:
|
Հայաստանի Հանրապետության |
Ս. Սարգսյան |
|
|
|
Հավելված ՀՀ կառավարության 2007 թվականի օգոստոսի 9-ի N 1034-Ն որոշման |
ՀԱՅԱՍՏԱՆԻ ՀԱՆՐԱՊԵՏՈՒԹՅԱՆ ԼՈՌՈՒ ՄԱՐԶԻ ՏԱՇԻՐԻ ՔԱՂԱՔԱՅԻՆ ՀԱՄԱՅՆՔԻ (ԲՆԱԿԱՎԱՅՐԻ) ԳԼԽԱՎՈՐ ՀԱՏԱԿԱԳԻԾ
ՏԵՔՍՏԱՅԻՆ ՄԱՍ
Ներածություն
Գ լ ու խ I
ՏԱՇԻՐԻ ՔԱՂԱՔԱՅԻՆ ՀԱՄԱՅՆՔԻ ԳՈՅՈՒԹՅՈՒՆ ՈՒՆԵՑՈՂ ԻՐԱՎԻՃԱԿԻ ՎԵՐԼՈՒԾՈՒԹՅՈՒՆ ԵՎ ՏԱՐԱԾՔԻ ՀԱՄԱԼԻՐ ԳՆԱՀԱՏԱԿԱՆ
I-1. Պատմական ակնարկ և նախկինում մշակված գլխավոր հատակագծերի հիմնադրույթների իրականացման վերլուծություն
I-1.1. Պատմական ակնարկ
I-1.2. Նախկինում մշակված գլխավոր հատակագծերի հիմնադրույթների իրականացման վերլուծություն
I-2. Տաշիրի քաղաքային համայնքը Լոռու մարզի տարաբնակեցման համակարգում
I-3. Տաշիր քաղաքի տարածքի համալիր գնահատականը
I-3.1. Տաշիր քաղաքի քաղաքաշինական զարգացման ռեժիմը
I-3.2. Տաշիր քաղաքի տարածքի բարենպաստության աստիճանը
I-3.2.1. Տարածքի գործոնային գնահատականն ըստ բնական պայմանների
I-3.2.1.1. Կլիմայական պայմաններ
3.2.1.2. Առողջարանային ռեսուրսներ
I-3.2.1.3. Տարածքի գեոմորֆոլոգիական, հիդրոգրաֆիկական, հիդրոերկրաբանական, ինժեներաերկրաբանական, սեյսմատեկտոնական պայմանները:
I-3.2.1.4. Լանդշաֆտների դասակարգումը և գնահատականը
I-3.2.1.5. Տաշիրի քաղաքային համայնքի ինժեներական նախապատրաստման միջոցառումներ
I-3.2.2. Տարածքի գնահատականն ըստ հատակագծային պայմանների
I-3.2.2.2. Պատմամշակութային հուշարձաններ
Գ լ ու խ II
ՏԱՇԻՐԻ ՔԱՂԱՔԱՅԻՆ ՀԱՄԱՅՆՔԻ ՀԵՌԱՆԿԱՐԱՅԻՆ ԶԱՐԳԱՑՈՒՄԸ
II-1. Հեռանկարային զարգացման հայեցակարգ
II-1.1. Արդյունաբերության զարգացման հեռանկարները
II-1.2. Արդյունաբերության բազային, կոմպլեքսաստեղծ ճյուղերի զարգացման պոտենցիալ հնարավորությունները
II-1.3. Ագրոարդյունաբերական համալիրի զարգացման հնարավորությունը
II-1.4. Ռեկրեացիայի հեռանկարային քաղաքաշինական կազմակերպումը
II-2. Բնակչություն և բնակելի ֆոնդ
II-3. Հասարակական սպասարկման ոլորտ
II-4. Քաղաքի տարածքի ճարտարապետահատակագծային կազմակերպում և գործառական կառուցվածք
II-4.1. Քաղաքի տարածքային զարգացման հիմնական սկզբունքները
II-4.2. Հատակագծային հեռանկարային կառուցվածք
II-4.3. Քաղաքի տարածքի գործառական գոտիավորում և կառուցապատման ռեժիմներ
II-5. Տաշիրի քաղաքային համայնքի տրանսպորտային ենթակառուցվածքների հեռանկարային զարգացումը
II-5.1. Արտաքին տրանսպորտ
II-5.2. Տրանսպորտային ուղիների զարգացման հեռանկարները
II-5.3. Ներքին տրանսպորտ
II-5.4. Տաշիր քաղաքի տարածքում ավտոմոբիլային տրանսպորտի արտանետումների հաշվարկ
II-6. Ինժեներական ենթակառուցվածքների հեռանկարային զարգացումը
II-6.1. Ջրամատակարարում
II-6.2. Ջրահեռացում (կոյուղի)
II-6.3. Էներգամատակարարում
II-6.3.1. Էլեկտրամատակարարում
II-6.3.2. Գազամատակարարում
II-6.3.3. Ջերմամատակարարում
II-6.4. Կապ
II-7. Շրջակա միջավայրի պահպանություն
II-7.1. Շրջակա միջավայրի քաղաքաշինական էկոլոգիական վիճակի վերլուծություն
II-7.2. Մթնոլորտային օդի պահպանություն
II-7.3. Մակերևութային և խորքային ջրերի պահպանություն
II-7.4. Տարածքային և հողային ռեսուրսների պահպանություն
II-7.4.1. Տարածքային ռեսուրսների պահպանություն
II-7.4.2. Հողաբուսական ծածկույթի պահպանություն
II-7.5. Պատմամշակութային հուշարձանների պահպանություն
II-8. Քաղաքացիական պաշտպանության միջոցառումներ
II-9. ՀՀ Լոռու մարզի Տաշիրի քաղաքային համայնքի գլխավոր հատակագծի հիմնական տեխնիկատնտեսական ցուցանիշներ
Գ Լ ՈՒ Խ III
ՏԱՇԻՐ ՔԱՂԱՔԻ ՏԱՐԱԾՔԻ ԳՈՏԻԱՎՈՐՄԱՆ ՆԱԽԱԳԻԾ
III-1. Ընդհանուր դրույթներ
III-1.1. Գոտիավորման նախագծի իրավազորությունը
III-1.2. Գոտիավորման նախագծի հիմնական նպատակները
III-1.3. Գոտիավորման նախագծի կիրառման բնագավառը
III-1.4. Գոտիավորման համակարգի կառուցվածքը
III-1.5. Գոտիավորման նախագծի իրավական հիմքերն են
III-1.6. Գոտիավորման նախագծի կապը գլխավոր հատակագծի հետ
III-2. Տարածքների փաստացի օգտագործման և նախագծային հիմնական բնութագրեր
III-2.1. Սահմաններ
III-2.2. Կլիմայական պայմաններ
III-2.3. Հողածածկույթ
III-2.4. Ինժեներաերկրաբանական պայմաններ
III-2.5. Սեյսմատեկտոնական պայմաններ
III-2.6. Ինժեներական ենթակառուցվածքներ
III-3. Շրջակա միջավայրի պահպանություն
III-4. Գոտիավորման նախագծի կազմը
III-5. Գոտիներում թույլատրելի օգտագործումների (կառուցապատումների) սահմանափակումների հիմնավորումները
III-6. Թույլատրելի օգտագործման ձևերի աղյուսակ
III-7. Գոտիներ
III-8. Կառուցապատման կանոններ
III-9. Տերմիններ և սահմանումներ
ՏԱՇԻՐԻ ՔԱՂԱՔԱՅԻՆ ՀԱՄԱՅՆՔԻ ԳԼԽԱՎՈՐ ՀԱՏԱԿԱԳԾԻ ՀԻՄՆԱԴՐՈՒՅԹՆԵՐԻ ԻՐԱԿԱՆԱՑՄԱՆ ԱՌԱՋՆԱՀԵՐԹ ՄԻՋՈՑԱՌՈՒՄՆԵՐ
ՕԳՏԱԳՈՐԾՎԱԾ ԳՐԱԿԱՆՈՒԹՅՈՒՆ
ՀԱՎԵԼՎԱԾՆԵՐ
|
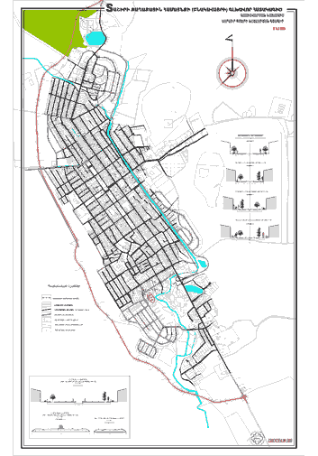
ՏԱՇԻՐ ՔԱՂԱՔԱՅԻՆ ՀԱՄԱՅՆՔԻ (ԲՆԱԿԱՎԱՅՐԻ) ԳԼԽԱՎՈՐ ՀԱՏԱԿԱԳԻԾ | |
|
ՔԱՂԱՔԱՅԻՆ ՀԱՄԱՅՆՔԻ (ԲՆԱԿԱՎԱՅՐԻ) ԴԻՐՔԸ ՄԱՐԶԻ ՏԱՐԱԲՆԱԿԵՑՄԱՆ ՀԱՄԱԿԱՐԳՈՒՄ ՏՐԱՆՍՊՈՐՏԱՅԻՆ ՀԵՌԱՆԿԱՐԱՅԻՆ ԿԱՊԵՐԸ |
1 |
|
ՏԱՐԱԾՔԻ ՓԱՍՏԱՑԻ ՕԳՏԱԳՈՐԾՄԱՆ ՀԱՏԱԿԱԳԻԾ (ՀԵՆԱԿԵՏԱՅԻՆ ՀԱՏԱԿԱԳԻԾ) |
2 |
|
ՊԱՏՄՈՒԹՅԱՆ ԵՎ ՄՇԱԿՈՒԹԱՅԻՆ ՀՈՒՇԱՐՁԱՆՆԵՐԻ ՊԱՀՊԱՆՈՒԹՅԱՆ ԳՈՏԻՆԵՐ |
3 |
|
ՏԱՐԱԾՔԻ ՀԱՄԱԼԻՐ ԳՆԱՀԱՏՄԱՆ ՀԱՏԱԿԱԳԻԾ |
4 |
|
ՕԳՏԱԿԱՐ ՀԱՆԱԾՈՆԵՐԻ ՏԵՂԱԴԻՐՔԻ ՍԱՀՄԱՆԱԳԾԵՐ |
5 |
|
ԵՐԹԵՎԵԿՈՒԹՅԱՆ ԱՆՑՈՒԴԱՐՁԻ ՔԱՐՏԵԶԱԳԻՐ |
6 |
|
ԼԱՆԴՇԱՖՏԱՅԻՆ ԿԱԶՄԱԿԵՐՊՄԱՆ ՈՒՐՎԱԳԻԾ |
7 |
|
ՀԱՄԱՅՆՔԻ ՏԱՐԱԾՔԱՅԻՆ ԶԱՐԳԱՑՄԱՆ ՀԱՏԱԿԱԳԻԾ (ՀԻՄՆԱԿԱՆ ԳԾԱԳԻՐ) |
8 |
|
ՏՐԱՆՍՊՈՐՏԻ ՈՒՐՎԱԳԻԾ |
9 |
|
ԻՆԺԵՆԵՐԱԿԱՆ ԵՆԹԱԿԱՌՈՒՑՎԱԾՔՆԵՐԻ ՈՒՐՎԱԳԻԾ |
10 |
|
ՇՐՋԱԿԱ ՄԻՋԱՎԱՅՐԻ ՊԱՀՊԱՆՈՒԹՅՈՒՆ և ԲԱՐԵԼԱՎՄԱՆ ՄԻՋՈՑԱՌՈՒՄՆԵՐ |
11 |
|
ՌԵԿՐԵԱՑԻՈՆ ԵՆԹԱԳՈՏՈՒ ՀԵՌԱՆԿԱՐԱՅԻՆ ՔԱՂԱՔԱՇԻՆԱԿԱՆ ԿԱԶՄԱԿԵՐՊՈՒՄԸ |
12 |
|
ՏԱՇԻՐ ՔԱՂԱՔԱՅԻՆ ՀԱՄԱՅՆՔԻ (ԲՆԱԿԱՎԱՅՐԻ) ԳՈՏԻԱՎՈՐՄԱՆ ՆԱԽԱԳԻԾ | |
|
ՏԱՐԱԾՔԻ ԳՈՏԻԱՎՈՐՄԱՆ ԳԾԱԳԻՐ |
13 |
|
ԿԱՐՄԻՐ ԳԾԵՐԻ ՆՇԱՀԱՐՄԱՆ ԳԾԱԳԻՐ |
14 |
|
ԻՆԺԵՆԵՐԱԿԱՆ ԵՆԹԱԿԱՌՈՒՑՎԱԾՔՆԵՐ |
15 |
Ներածություն
Տաշիրի քաղաքային համայնքի գլխավոր հատակագիծը` համատեղված քաղաքի գոտիավորման նախագծի հետ, մշակվել է ՀՀ կառավարության որոշմամբ, ՀՀ քաղաքաշինության նախարարության պատվերով (պայմանագիր N ՄԲԱՇՁԲ-06/12-1 02.05.06):
Նախագծման համար ուղեցույց են ծառայել հետևյալ նորմատիվային և նախագծային փաստաթղթերը.
● ՀՀ օրենքը քաղաքաշինության մասին:
● Կարգ ՀՀ քաղաքային և գյուղական համայնքների գլխավոր հատակագծերի մշակման, փորձաքննության, համաձայնեցման, հաստատման և փոփոխման (հաստատված ՀՀ Կառավարության 02.05.03թ. N 609-Ն որոշմամբ):
● Կարգ բնակավայրերի տարածքների գոտիավորման նախագծերի մշակման, փորձաքննության, համաձայնեցման և փոփոխման (հաստատված 14.05.01 N408 որոշմամբ):
● Տարբեր տարիներին նախագծային ինստիտուտներում մշակված Տաշիր (նախկին Կալինինո) քաղաքի գլխավոր հատակագծերը, քաղաքի տարբեր թաղամասերի մանրամասն հատակագծման և կառուցապատման նախագծերը:
● ՀՀ Կառավարության, շահագրգիռ նախարարությունների, ՀՀ Կառավարությանն առընթեր անշարժ գույքի կադաստրի պետական կոմիտեի, Ջրային ռեսուրսների պետական կոմիտեի, ՀՀ Լոռու մարզպետարանի, Տաշիրի քաղաքապետարանի, տարբեր կազմակերպությունների Տաշիր քաղաքին վերաբերող ելակետային նյութերը, որոշումները, ծրագրային փաստաթղթերը:
● ՀՀ Կառավարությանն առընթեր անշարժ գույքի կադաստրի պետական կոմիտեի կադաստրային քարտեզները:
● «Հայնախագիծ» ԲԲԸ-ում մշակված և Կառավարության կողմից հաստատված (10.04.03թ. N 610-Ն) «ՀՀ տարաբնակեցման գլխավոր նախագծի» հիմնադրույթները:
● Տաշիր քաղաքի տարածքի սեյսմամիկրոշրջանացման քարտեզը` մշակված «Գեոռիսկ» գիտահետազոտական ընկերության կողմից:
Նախագծում հաշվի են առնված նաև ՍԵՄԱԹ-ի «Հիմնադիր սկզբունքները Եվրոպական մայրցամաքի կայուն զարգացման» և «Հայաստանում Եվրոպական լանդշաֆտային կոնվենցիայի» միջոցառումները և տարածքային պլանավորման փոխկապակցության սկզբունքները, որոնք կարելի է խմբավորել հետևյալ բլոկներով.
● Տնտեսության կայուն զարգացում, որն ընդգրկում է`
- Արդյունաբերության «բազային» կոմպլեքսաստեղծ ճյուղերը,
- Գիտատար արդյունաբերական արտադրությունը,
- Ագրոարտադրական համալիրը,
- Ռեկրեացիոն ոլորտը,
- Բնապահպանական միջոցառումների իրականացումը:
● Քաղաքաշինության կայուն զարգացում, որն ընդգրկում է.
- Բնակելի շինարարությունը,
- Բնակելի-կոմունալ շինարարությունը,
- Լանդշաֆտի ռացիոնալ օգտագործումը,
- Բնապահպանական միջոցառումների իրականացումը:
● Ինժեներական, տրանսպորտային և տեխնիկական ենթակառուցվածքների զարգացում, որն ընդգրկում է`
- Տրանսպորտային ենթակառուցվածքը,
- Ջրամատակարարման, ջրահեռացման համակարգը,
- Էներգամատակարարման համակարգը,
- Թափոնների ուտիլիզացիան,
- Բնապահպանական միջոցառումների իրականացումը:
Տաշիրի քաղաքային համայնքի գլխավոր հատկագծի մշակման հիմնական նպատակը քաղաքի հեռանկարային տնտեսական զարգացման և տարածքային աճի ուղղությունների, տարածքների ֆունկցիոնալ նշանակության որոշումն է` տրանսպորտային, ինժեներական, տեխնիկական ենթակառուցվածքների սկզբունքային լուծումներով, տարածքների հողօգտագործման և կառուցապատման պարտադիր պահանջների սահմանումով:
Գ Լ ՈՒ Խ I
ՏԱՇԻՐ ՔԱՂԱՔԻ ՏԱՐԱԾՔԻ ԳՈՅՈՒԹՅՈՒՆ ՈՒՆԵՑՈՂ ՎԻՃԱԿԻ ՔԱՂԱՔԱՇԻՆԱԿԱՆ ՎԵՐԼՈՒԾՈՒԹՅՈՒՆ ԵՎ ՀԱՄԱԼԻՐ ԳՆԱՀԱՏԱԿԱՆ
I-1 Պատմական ակնարկ և նախկինում մշակված գլխավոր հատակագծերի հիմնադրույթների իրականացման վերլուծություն
I-1.1. Պատմական ակնարկ
Տաշիր քաղաքը նախկինում կոչվել է գյուղ Վորոնցովկա և հիմնադրվել է 1834 թ. Ռուսաստանից վերաբնակեցված ռուսների կողմից: 1935 թ. վերանվանվել է Կալինինո ի պատիվ Մ.Ի. Կալինինի, իսկ 1937 թ-ից եղել է Կալինինոյի վարչական շրջանի շրջկենտրոնը:
1961-1983 թթ. ունեցել է քաղաքատիպ ավանի կարգավիճակ:
1962-1964 թթ. Կալինինոյի շրջանը միացած է եղել Ստեփանավանի շրջանին:
1983-1995 թթ. ունեցել է շրջանային ենթակայության քաղաքի կարգավիճակ, միաժամանակ լինելով Կալինինոյի շրջանի շրջկենտրոնը:
1995թ.-ից Տաշիրը (նախկին Կալինինոն) քաղաքային համայնք է Լոռու մարզի կազմում:
Կալինինոյի շրջանի տարածքը մ.թ.ա. II-IV դդ. եղել է Մեծ Հայքի Գուգարք նահանգի Տաշիր գավառի մի մասը և մտել Հայոց Արտաշեսյան, ապա` Արշակունյաց թագավորության մեջ: IX դարից գավառին տիրում էին Բագրատունիները: X դարում Տաշիր-Ձորագետի կամ Լոռու ֆեոդալական թագավորությունը հանդիսանում էր Անի-Շիրակի վասալը: Հետագայում Տաշիր գավառն անցնում է Պարսկաստանի և թուրք-սելջուկյան տարբեր ցեղապետերի տիրապետության տակ: XIX դարի սկզբին Տաշիրի մի մասը Վրաստանի հետ միասին մտնում են Ռուսաստանի կազմի մեջ: Մինչև սովետական կարգերի հաստատումը Տաշիրը մտել է Թիֆլիսի նահանգի Ղազախ-Շամշադին դիստանցիայի մեջ: 1919թ.-ից մինչև 1920թ. նոյեմբերը եղել է Լոռու «Չեզոք գոտու» մեջ:
Դաշնակցական Հայաստանի և մենշևիկյան Վրաստանի միջև ծագած հակասությունների պատճառով Լոռին ժամանակավոր անջատվեց Հայաստանից: 1918 թ. Հայաստան նեխուժած թուրքական զորքերի առաջխաղացումը դեպի Վրաստան կանգնեցնելու համար Լոռի մտան Վրաստանի մենշևիկյան կառավարության զորքերը: 1918թ. բռնկվեց հայ-վրացական պատերազմ Լոռու համար: 1919թ. հունվարին, Թիֆլիսում հայ-վրացական կոնֆերանսի որոշումով նախկին Բորջալուի գավառի Ալավերդու, ՈՒզունլարի և Վորոնցովկայի (այժմյան Տաշիր) շրջանները «Չեզոք գոտի» ճանաչվեց և Լոռին վերածվեց անգլո-ամերիկյան ռազմական գաղութի:
1921թ. փետրվարին Սովետական զորքերի օգնությամբ Լոռին միացվեց Սովետական Հայաստանին:
1920թ. դեկտեմբերի 26-ի ՀՍԽՀ Հեղկոմի Դեկրետով վերացվել էր երկրի հին վարչատարածքային բաժանումը նահանգների և շրջանների, ստեղծվել էին 6 գավառ, իսկ 1921թ. հուլիսի 21-ի դեկրետով ստեղծվեց 8 գավառ, այդ թվում «Չեզոք գոտուց» ազատագրված Լոռու գավառը, որի կազմում էր Տաշիրի (նախկին Վորոնցովկան) գավառամասը: 1937թ. դեկտեմբերի 31-ի ՀՍԽՀ Կենտգործկոմի նախագահության որոշումով կազմավորվում են վարչական շրջաններ, այդ թվում Կալինինոյի շրջանը` Կալինինո շրջկենտրոնով:
1961թ. ՀՍՍՀ-ի Գերագույն Խորհրդի որոշումով Կալինինոյին տրվում է քաղաքատիպ ավանի կարգավիճակ:
1983-1995թ.թ. Կալինինոն շրջանային ենթակայության քաղաք էր: 1995թ. դեկտեմբերի 4-ի «ՀՀ վարչատարածքային բաժանման մասին» օրենքով Կալինինոյի, Ստեփանավանի, Գուգարքի, Թումանյանի, Սպիտակի վարչական շրջանների միավորումով կազմավորվել է Լոռու մարզը, որի կազմում է Տաշիրի քաղաքային համայնքը (նախկին Կալինինոն):
I-1.2. Նախկինում մշակված գլխավոր հատակագծերի հիմնադրույթների իրականացման վերլուծություն
Տաշիր քաղաքի առաջին գլխավոր հատակագիծը մշակվել է 1971 թ. «Հայպետնախագիծ» ինստիտուտում (նախագծի գլխավոր ինժեներ Հովհաննիսյան Գ.Մ.):
Ըստ գլխավոր հատակագծի, քաղաքային տարածքը 1971թ . տվյալներով կազմում էր 495.34 հա, որից բնակելի գոտին` 243.92 հա, արդյունաբերական գոտին` 45.52 հա, կոմունալ-պահեստային գոտին` 39.60 հա, մնացածը` գյուղատնտեսական, անտառային և այլ հողեր:
Ըստ 2000թ. համար մշակված հեռանկարի` քաղաքային տարածքը պետք է կազմեր 1275.0 հա, որից բնակելի տարածքը` 455.75 հա, արդյունաբերական տարածքը` 170.10 հա, կոմունալ-պահեստային գոտին` 39.60 հա:
Բնակչությունը 1971թ. կազմում էր 7.3 հազ. մարդ, իսկ հեռանկարային բնակչությունը 2000թ.-ին պետք է կազմեր 20.0 հազ. մարդ (հաշվարկված աշխատանքային հաշվեկշռի մեթոդով):
Քաղաքի տարածքում, ըստ գլխավոր հատակագծի, ընդգրկված էին քաղաքի արևմտյան մասում տեղակայված անտառապաշտպան անտառաշերտը, ինչպես նաև արևելյան մասում գտնվող բլուրները, որոնց վրա նախատեսվում էր անտառ-այգի և հանգստի գոտի: Հանգստի գոտին, փաստորեն, շրջափակում էր քաղաքը արևմուտքից, արևելքից, հյուսիսից: Քաղաքից դուրս էր հանվում անասնապահական էքսպերիմենտալ բազան, գյուղարտադրության օբյեկտները և հատուկ տարածքները: Արդյունաբերական, կոմունալ-պահեստային օբյեկտները, կենտրոնացվել էին քաղաքի արևմտյան և հարավային մասերում:
1976թ. «Հայպետնախագիծ» ինստիտուտում առաջին անգամ մշակվել է Կալինինոյի վարչական շրջանի «Շրջանային հատակագծման նախագիծը»: Ըստ նախագծի հիմնադրույթների 2000թ. Կալինինոյի շրջանի բնակչությունը կանխատեսվել էր 49.0 հազ. մարդ, իսկ Կալինինո շրջկենտրոնինը` 20.0 հազ. մարդ (առ 01.01.77թ. շրջանի բնակչությունը կազմում էր 34.2 հազ. մարդ, իսկ Կալինինո շրջկենտրոնինը` 8.9 հազ. մարդ):
Կանխատեսումները չեն իրականացել, քանի որ առ 01.01.2000թ. Կալինինոյի շրջկենտրոնի բնակչությունը կազմում էր 36.6 հազ. մարդ, Կալինինո շրջկենտրոնինը` 14.2 հազ. մարդ:
Տաշիր քաղաքի (նախկին Կալինինո) երկրորդ գլխավոր հատակագիծը մշակվել է 1988թ. երկրաշարժից հետո, 1992թ.: Մինչ այդ քաղաքը հիմնականում կառուցապատվել է տարերայնորեն, որոշ հատվածներ` մանրամասն հատակագծման նախագծերով:
Ըստ գլխավոր հատակագծի հիմնադրույթների` ընդարձակվում էր քաղաքի տարածքը` 567.7 հա-ից հասցնելով 893.2 հա, իսկ բնակչությունը` 12700-ից մինչև 17000 մարդու (2000թ.-ի համար), 20000 մարդու (2010թ.-ի համար):
Նախատեսված էր զարգացնել արդյունաբերությունը, հիմնականում մեքենաշինությունը: Արդյունաբերությունում զբաղվածների թիվը 2010թ. պետք է հասցվեր 3500 մարդու:
Գլխավոր հատակագծի հիմնադրույթներով քաղաքի հեռանկարային զարգացման համար ընտրվել են հարավ-արևելյան և հարավ-արևմտյան ուղղությունները: Քաղաքի ընտրված հատակագծային լուծումն ունի գծային քաղաքին հատուկ կառուցվածք, որտեղ արդյունաբերական և կոմունալ պահեստային գոտիները տեղադրված են բնակելի գոտուն զուգահեռ: Բնակելի կառուցապատումը նախատեսված է իրականացնել պետական և անհատական տիպերով, ընդ որում անհատական կառուցապատումն ապահովվել է 400 մ2 տնամերձերով:
1971 և 1988 թթ. մշակված գլխավոր հատակագծերի հիմնադրույթները (բնակչության, տարածքային, արդյունաբերության աճերը) հիմնականում չեն իրականացել սովետական շրջանի կանխատեսումային մեթոդների անկատարելիության և սոցիալ-տնտեսական փուլի փոփոխման, անցումային փուլի դժվարությունների պատճառով:
I-2. Տաշիրի քաղաքային համայնքը Լոռու մարզի տարաբնակեցման համակարգում
Տաշիրի քաղաքային համայնքի տարածքը տեղակայված է Լոռու մարզի հյուսիսարևմտյան մասում, Ձորագետի ձախափնյա վտակ Տաշիրի հովտում, Երևան-Ապարան-Սպիտակ-Ստեփանավան-Տաշիր-Վրաստանի սահման միջպետական ճանապարհի վրա:
Հաշվի առնելով Տաշիր քաղաքի տեղադրվածությունը մարզի ինտենսիվ յուրացված գոտում, մարզի ինժեներական, տրանսպորտային ենթակառուցվածքների ընդհանրությունը, ռեսուրսների համատեղ օգտագործման անհրաժեշտությունը, Տաշիր քաղաքի զարգացման տնտեսական և քաղաքաշինական ուղղությունները դիտարկվել են «ՀՀ տարաբնակեցման գլխավոր նախագծի» Լոռու մարզին վերաբերող հիմնախնդիրների հետ փոխկապակցված:
Մարզը կազմավորվել է 1995թ. դեկտեմբերի 4-ին ընդունված «ՀՀ վարչատարածքային բաժանման մասին» օրենքով Գուգարքի, Սպիտակի, Ստեփանավանի, Տաշիրի, Թումանյանի նախկին վարչական շրջանների ընդգրկումով: Մարզն ունի 113 համայնք, որից 8-ը` քաղաքային (Վանաձոր, Ստեփանավան, Ալավերդի, Սպիտակ, Տաշիր, Ախթալա, Թումանյան, Շամլուղ) և 105-ը` գյուղական համայնք:
Մարզի տարածքն ըստ քաղաքաշինական-տնտեսական յուրացվածության աստիճանի բաժանվում է ինտենսիվ, թույլ յուրացված, ռեկրեացիոն-բնապահպանական, տարաբնակեցման համար անբարենպաստ գոտիների («ՀՀ տարաբնակեցման գլխավոր նախագծի» հիմնադրույթներ):
- Ինտենսիվ յուրացված գոտիները ձգվում են Փամբակ, Աղստև, Դեբեդ, Ձորագետ, Տաշիր գետերի հովիտներով, գոտիների տարածքները զբաղեցված են արժեքավոր գյուղատնտեսական հողերով, տարածված են խմելու հանքային ջրերի աղբյուրներ, արտեզյան ջրերի հորիզոններ, ինչպես նաև մետաղային, ոչ մետաղային օգտակար հանածոների հանքավայրեր, առկա են էկոլոգիական կոնֆլիկտային իրավիճակներ:
- Գոտու համար սահմանված է զարգացման սահմանափակման ռեժիմ (բնակավայրերի, այդ թվում Տաշիր քաղաքի տարածքային աճի սահմանափակում, միջազգային ստանդարտներին համապատասխանող տեխնոլոգիաներով արդյունաբերական օբյեկտների տեղադրում, գյուղատնտեսական արժեքավոր հողերի օտարման արգելում շինարարական նպատակների համար, բնապահպանական միջոցառումների լայն համալիրի կիրառում):
- Թույլ յուրացված գոտիները զբաղեցնում են ինտենսիվ յուրացված գոտիներին հարող լեռնալանջերը (մինչը 2000-2100 մ նիշերը), որտեղ բնակվում է բնակչության 10.4 %-ը: Թույլ յուրացված գոտիներում սահմանված է առաջնահերթ զարգացման ռեժիմ (բնակավայրերի տարածքային աճ, ռեսուրսների ռացիոնալ օգտագործում, ինժեներական, տրանսպորտային ենթակառուցվածքների զարգացում և կատարելագործում, բնապահպանական միջոցառումների իրականացում):
- Ռեկրեացիոն-բնապահպանական գոտին զբաղեցնում է մարզի տարածքի 26.3 %-ը, զբաղեցված է հիմնականում անտառտնտեսության հողերով (ըստ 1993թ. անտառային հողերի հաշվեկշռի` 983 հա) և ռեկրեացիոն օբյեկտներով: Այժմ, երկրաշարժից հետո ընկած ժամանակահատվածում խիստ փոքրացել է անտառտնտեսության հողերում անտառածածկվածության տոկոսը (մոտ 40-50 %):
- Տարաբնակեցման համար անբարենպաստ գոտին սկսվում է 2000 մետրից մինչև լեռնագագաթները (2500-3550 մ) և զբաղեցնում է մարզի 18.5 %-ը: Գոտու ռեժիմը նախատեսում է անասնապահության և ձմեռային ռեկրեացիայի զարգացում` բնապահպանական միջոցառումների կիրառումով (հակահեղեղային, պայքար ձյունահոսքերի դեմ, արոտների օգտագործման շեմային ժամկետների որոշում):
Մարզը ապահովված է հաղորդակցության ուղիներով: Մարզի տարածքով են անցնում Հյուսիս-Հարավ և Արևելք-Արևմուտք միջպետական նշանակության Մարգարա-Վանաձոր-Տաշիր-Վրաստանի սահման, Վանաձոր-Ալավերդի-Վրաստանի սահման և Վանաձոր-Դիլիջան-Ադրբեջանի սահման մայրուղիները, ինչպես նաև Երևան-Գյումրի-Վանաձոր-Ալավերդի-Թբիլիսի և Հրազդան-Իջևան երկաթգծերը: Գործում է նաև օդանավակայանը Սարատովկա գյուղից հարավ ընկած տարածքում:
Մարզում կան անհամամասնություններ ավտոմայրուղիների բարենպաստ ազդեցության գոտում (5 կմ) տարածքների ընդգրկելու տեսանկյունից: Ինտենսիվ յուրացված գոտու բնակավայրերի մոտ 89 %-ը գտնվում է ավտոմայրուղիների բարենպաստ ազդեցության գոտում, իսկ թույլ յուրացված գոտու բնակավայրերի` միայն 23 %-ը: Այս անհամամասնությունները վերացնելու համար անհրաժեշտ է առաջնահերթ տեղական և հանրապետական նշանակության ճանապարհային ցանցի կատարելագործում:
Մարզը հարուստ է ջրային, հումքային, ռեկրեացիոն ռեսուրսներով: Խմելու ջրի ընդհանուր պաշարները կազմում են 327.2 հազ. մ3/օր, որից միայն Լոռու սարահարթի հանքավայրինը Տաշիրի շրջակայքում կազմում է 150.2 հազ. մ3/օր:
Մարզի դեմոգրաֆիական տարողունակությունն ըստ խորքային և մակերեսային ջրերի օգտագործման, կազմում է 962.0 հազ. մարդ: Մարզի ընդունված դեմոգրաֆիական տարողունակությունն ըստ տարածքային ռեսուրսների առկայության կազմում է 518.7 հազ. մարդ (գոյություն ունեցող բնակչությունն ըստ 2001թ. մարդահամարի կազմում է 286.4 հազ. մարդ), իսկ 2006թ. տվյալներով` 13.3 հազ. մարդ:
Մարզի հումքային ռեսուրսներից արժանի է նշել Ալավերդու, Շամլուղի, Տեխուտի պղնձի, պղինձ-մոլիբդենային հանքավայրերը, Արմանիսի, Մարցիգետի ոսկու, ոսկի բազմամետաղային խոշոր հանքավայրերը, բազմաթիվ շինարարական քարերի և շինանյութերի հանքավայրեր:
«Լեռնամետալուրգիայի» ինստիտուտում հատուկ ուսումնասիրության են ենթարկվել Տաշիր քաղաքի տրանսպորտային բարենպաստ մատչելիության գոտում (Տաշիրի տարածաշրջան) գտնվող հանքավայրերը, որոնք կարող են առաջնային հումք ծառայել արդյունաբերության «բազային» ճյուղերի զարգացման համար, որոնց վերջնական արտադրանքը կարելի կլինի օգտագործել Տաշիր քաղաքի արդյունաբերական օբյեկտներում (մանրամասն տրված է «Արդյունաբերության «բազային» ճյուղերի զարգացման պոտենցիալ հնարավորությունները» ենթագլխում):
Մանրամասն ուսումնասիրվել են նաև Տաշիրի տարածաշրջանի ռեկրեացիոն ռեսուրսները, որոնք ներկայացված են կլիմայաբուժության, ձմեռային սպորտի տարբեր ձևերի, ձմեռային հանգստի զարգացման համար բարենպաստ պայմաններով և տեղամասերով, պատմամշակութային, հնագիտական հուշարձաններով:
Ըստ «ՀՀ տարաբնակեցման գլխավոր նախագծի» հիմնադրույթների Տաշիրի տարածաշրջանն ընդգրկված է Լոռու մարզային ռեկրեացիոն գոտու Ձորագետի և դրա վտակների ենթագոտում (մանրամասն տրված է «Ռեկրեացիոն ենթագոտու հեռանկարային քաղաքաշինական կազմակերպումը» ենթագլխում):
Այսպիսով, Տաշիրի տարածաշրջանի հումքային և ռեկրեացիոն ռեսուրսների պոտենցիալ հնարավորությունների օգտագործումը` համակցված մարզի հեռանկարային ինժեներական-տրանսպորտային ենթակառուցվածքների հետ, վստահելի բազա են ստեղծում Տաշիր քաղաքում տնտեսության ճյուղերի (արդյունաբերություն, ռեկրեացիա) և սպասարկման ոլորտի զարգացման համար:
I-3. Տաշիր քաղաքի տարածքի համալիր գնահատականը
Տարածքի համալիր գնահատականը տրվել է երկու փուլով: Առաջին փուլում (քաղաքը Լոռու մարզի տարաբնակեցման համակարգում) հիմնավորվել է քաղաքի զարգացման քաղաքաշինական ռեժիմը, իսկ երկրորդ փուլում որոշվել է քաղաքապատկան տարածքի բարենպաստության աստիճանը կառուցապատման համար:
I-3.1. Տաշիր քաղաքի քաղաքաշինական զարգացման ռեժիմը սահմանվել է ելնելով քաղաքի դիրքից, դերից հանրապետության, մարզի տարաբնակեցման համակարգում: Տարաբնակեցման անհավասարակշռված համակարգի աստիճանական կարգավորման նպատակով սահմանված է քաղաքի տարածքային աճի սահմանափակման ռեժիմ` հատակագծային կառուցվածքի ինտենսիվացումով, բնապահպանական, ինժեներական նախապատրաստման միջոցառումների իրականացումով:
I-3.2. Տաշիր քաղաքի տարածքի բարենպաստության աստիճանը կառուցապատման համար որոշվել է բնական և հատակագծային գործոնների համալիրներով:
I-3.2.1. Տարածքի գործոնային գնահատականն ըստ բնական պայմանների տրվել է կլիմայական, կլիմայաբուժության, գեոմորֆոլոգիական, ինժեներաերկրաբանական, սեյսմատեկտոնական, լանդշաֆտային պայմաններով և ինժեներական պաշտպանության միջոցառումների հաշվառումով:
I-3.2.1.1. Կլիմայական պայմաններ
Տաշիր քաղաքի տարածքը (ըստ ՀՀՇՆ II-7.01.96 շինարարական նորմերի) գտնվում է «չափավոր-Չ» շինարարակլիմայական գոտում` չափավոր տաք ամառով, չափավոր ցուրտ ձմեռով, օդի խոնավության բարենպաստ չափերով (58-62 %), քամու բարենպաստ ռեժիմով (միջին տարեկան արագությունը 2.1 մ/վրկ, միջին ամսական արագությունները` 1.6-3.4 մ/վրկ):
Ձմեռը երկարատև է, կայուն ձյան շերտով: Ձմեռը, միջին տվյալներով, սկսվում է հոկտեմբերի վերջին և նոյեմբերի սկզբին և վերջանում է ապրիլի երկրորդ տասնօրյակում: Հունվարի միջին ջերմաստիճանը` - 4.80 C, բացարձակ նվազագույնը հասնում է - 340 C: Ձմռանը եղանակը կայուն է: Ձմեռը հիմնականում չափավոր մեղմ է: Երբեմն ձևավորվում են «զգալի սառնամանիքներով» եղանակներ, որոնք տևում են 1-2 օր: Եղանակային ռեժիմում գերիշխում են տաքացումներով եղանակներ, երբ օրվա ընթացքում ջերմաստիճանը բարձրանում է 00-ից: Այդ եղանակները դիտվում են ամսվա կեսից ավելին: «Չափավոր ցուրտ» եղանակները հունվարին դիտվում են 8-10 օր, իսկ արևոտ «թույլ սառնամանիքային» եղանակները անհողմ են և միանգամայն բարենպաստ ձմեռային կլիմայաբուժության համար: Թթվածնի պարունակությունը մթնոլորտային օդում հունվարին կազմում է 262 գ/մ3:
Գարունը երկարատև է, 12 շաբաթ ցուրտ, ցրտահարությունները միջին տվյալներով ավարտվում են մայիսի երկրորդ տասնօրյակում: Գարնան սկիզբը սառն է, համեմատաբար չոր, իսկ երկրորդ կեսը բարեխառն` ամպամած և անձրևային եղանակների մեծ կրկնվածությամբ: Թթվածնի պարունակությունը մթնոլորտային օդում ապրիլին կազմում է 244 գ/մ3:
Ամառը կարճ է, զով և խոնավ: Եղանակները փոփոխական են: Հուլիսի, օգոստոսի միջին ջերմաստիճանը` 17.60 C մինչև 17.90 C , բացարձակ առավելագույնը` 360 C: Ամռանը իսպառ բացակայում են «շատ շոգ» և «շատ չոր» եղանակային տիպերը: Գերիշխում են «արևոտ չափավոր խոնավ» եղանակները (ամսական 12-15 օր), իսկ «չոր և շոգ» եղանակները դիտվում են ընդամենը 3-4 օր: Հանրապետության համար ամենաչոր ամիսներին (հուլիս, օգոստոս), մթնոլորտային տեղումներն այստեղ հասնում են 57-86 մմ, իսկ հարաբերական խոնավությունը` 76-77 %: Ամառային եղանակները բնութագրվում են կայունությամբ: Թթվածնի պարունակությունը մթնոլորտային օդում հուլիսին կազմում է 231 գ/մ3:
Աշունը զով է, առաջին կեսին գերակշռում են տաք, քիչ ամպամած եղանակները, երկրորդ կեսին եղանակները փոփոխական են: Աշնանային վաղ ցրտահարությունները սկսվում են սեպտեմբերի վերջին, հոկտեմբերի սկզբին: Աշնանը գերիշխում են «արևոտ տաք» եղանակային տիպերը: Աշնան երկրորդ կեսին նվազում է «արևոտ չափավոր խոնավ» եղանակների կրկնվածության տոկոսը: հաճախ օրական ջերմաստիճանը իջնում է 00-ից: Թթվածնի պարունակությունը մթնոլորտային օդում հոկտեմբերին կազմում է 244 գ/մ3:
Անսառնամանիք օրերի թիվը կազմում է 130-150 օր, տեղումների միջին քանակը` 722 մմ:
Այսպիսով, կլիմայական հիմնական ցուցանիշները համապատասխանում են բնակության, հանգստի և գյուղատնտեսության վարման համար բարենպաստ պայմաններին:
Ստորև բերվում է Տաշիր քաղաքի կլիմայական ռեժիմը բնութագրող աղյուսակները (Տաշիրի օդերևութաբանական կայանի, բացարձակ բարձրությունը 1507 մ):
Օդի ջերմաստիճանը
աղ. N Վ-1
|
Բնակավայրը |
Միջին ամսական, ըստ ամիսների |
միջին տարեկան |
բացարձակ նվազագույնը |
բացարձակ առավելագույնը | |||||||||||
|
I |
II |
III |
IV |
V |
VI |
VII |
VIII |
IX |
X |
XI |
XII | ||||
|
Տաշիր |
-4.8 |
-3.8 |
-0.7 |
6.7 |
10.4 |
13.3 |
16.0 |
15.7 |
12.1 |
7.4 |
2.2 |
-2.5 |
5.9 |
-34 |
34 |
Օդի խոնավությունը
աղ. N Վ-2
|
Բնակավայրը |
Օդի հարաբերական խոնավությունն ըստ ամիսների (%) |
միջին տարեկան |
միջին ամսական ժ. 13-ին | ||||||||||||
|
I |
II |
III |
IV |
V |
VI |
VII |
VIII |
IX |
X |
XI |
XII |
ամենացուրտ ամսվա |
ամենատաք ամսվա | ||
|
Տաշիր |
69 |
69 |
72 |
72 |
76 |
78 |
78 |
76 |
79 |
76 |
73 |
70 |
74 |
58 |
62 |
Մթնոլորտային տեղումները և ձյունածածկույթը
աղ. N Վ-3
|
Բնակավայրը |
Տեղումների քանակը միջին ամսական/օրական առավելագույնը, մմ |
տարեկան |
տասնօրյա առավելագույնը (սմ) |
ձյան ծածկույթը | ||||||||||||
|
I |
II |
III |
IV |
V |
VI |
VII |
VIII |
IX |
X |
XI |
XII |
օրերի թիվը |
ջրի առավելագույն քանակը ձյան մեջ (մմ) | |||
|
Տաշիր |
22/26 |
28/31 |
39/32 |
71/36 |
129/116 |
133/61 |
83/61 |
61/54 |
58/64 |
44/40 |
34/33 |
20/23 |
722/116 |
96 |
72 |
150 |
Քամի
աղ. N Վ-4
|
Բնակա- վայրը
|
Տարվա ամիսը
|
Քամու ուղղությունների կրկնելիությունը % Քամու միջին արագությունը մ/վրկ |
Անհողմու-թյունների կրկնե-լիությունը |
Քամու |
Քամու |
Ուժեղ |
Քամու հաշվարկային արագությունը (մ/վրկ), որը հնարավոր է մեկ անգամ տարիների ընթացքում | |||||||||
|
ըստ ուղղությունների |
20
|
50
|
100
| |||||||||||||
|
հս. |
հս. արևելյան |
արևելյան |
հվ. արևելյան |
հվ. |
հվ. արևմտյան |
արևմտյան |
հս. արևմտյան | |||||||||
|
Տաշիր |
I |
22/2.2 |
3/2.2 |
2/2.6 |
3/3.2 |
8/5.1 |
35/7.2 |
16/6.6 |
11/3.2 |
39 |
3.4 |
2.1 |
22 |
29 |
32 |
36 |
|
IV |
36/2.6 |
10/2.7 |
3/2.6 |
4/2.3 |
6/3.1 |
16/4.8 |
12/4.5 |
13/2.9 |
37 |
2.2 |
|
|
|
|
| |
|
VII |
46/2.4 |
25/2.5 |
4/2.4 |
2/2.0 |
2/1.9 |
2/2.0 |
4/2.9 |
15/3.4 |
44 |
1.8 |
|
|
|
|
| |
|
X |
4/2.2 |
8/2.3 |
3/1.8 |
3/1.3 |
5/2.5 |
14/4.4 |
10/3.6 |
17/2.1 |
42 |
1.6 |
|
|
|
|
| |
Հաշվարկային կլիմայական հարաչափեր
Տարվա ցուրտ ժամանակաշրջանի կլիմայական հարաչափերը
աղ. N Վ-5
|
Բնակա-վայրը |
Օդի ջերմաստիճանը, 0 C |
Ամենա- ցուրտ ամսվա խոնա-վությունը (%) |
Մթն. տեղումները և գրունտի սառածության խորությունը |
Քամի | ||||||||||||
|
Ամենա-ցուրտ օրվա |
Ամենա- ցուրտհնգօր-յակի |
Ամենա- ցուրտ ժամանա-կաշրջանի միջինը |
Բացար- ձակ նվազա-գույնը |
Ամենա- ցուրտ ամսվա օրական միջին ամպլիտուդը |
Տևողությունը (օր) |
|
|
Տեղումների քանակը նոյեմբեր- մարտ ամիսներին(մմ) |
Գրունտի սառչման առավե- լագույն խորությունը (սմ) |
Գերակշռող ուղղ. դեկտեմբեր-փետրվար ամիսներին |
Միջին արագու-թյուններից առավելագույնն ըստ ուղղ. հունվարին (մ/վրկ) | |||||
|
Ապահովվածությունը |
միջին ջերմ. ժամանակաշրջանի | |||||||||||||||
|
0.98 |
0.92 |
0.98 |
0.92 |
0 |
8 |
10 | ||||||||||
|
Տաշիր |
-25 |
-22 |
-21 |
-18 |
-5.1 |
-34 |
- |
114/-3.0 |
197/-0.1 |
223/1.0 |
69 |
58 |
143 |
71 |
- |
- |
Տարվա տաք ժամանակաշրջանի կլիմայական հարաչափերը
աղ. N Վ-6
|
Բնակա- վայրի անվա-նումը |
Օդի ջերմաստիճանը (0C) |
ամենատաք ամսվա հարաբ. խոնավությունը (%) |
մթնոլորտային տեղումները (մմ) |
քամի | |||||||
|
ապահով-վածությամբ |
բացարձակ առավե-լագույնը |
ամենատաք ամսվա միջին առավելագույնը |
ամենատաք ամսվա միջին օրական ամպլիտուդը |
միջին ամսական |
միջին ամսական ժ.15-ին |
տեղումների քանակը ապրիլ-հոկտեմբեր |
տեղումների օրվա առավե-լագույնը |
գերակշռող ուղղութ. հունիս-օգոստոս ամիսներին |
միջին արագու-թյունների նվազա-գույնն ըստ ուղղ. հուլիսին (մ/վրկ) | ||
|
0.95 |
0.99 | ||||||||||
|
Տաշիր |
22 |
23 |
34 |
22 |
12.2 |
78 |
62 |
579 |
116 |
- |
- |
Այսպիսով, կլիմայական պայմանները բարենպաստ են բնակության համար, միայն սահմանափակ բարենպաստ է ձմեռային ամիսների քամու ռեժիմը: Հունվար ամսին քամու միջին արագությունները հասնում են 6.6-7.2 մ/վրկ` հարավ-արևմտյան և արևմտյան ուղղություններով: Ուղղությունների կրկնելիությունը ամսում կազմում է 16-350: Ամառային ամիսների քամու ռեժիմը բարենպաստ է, տատանվում է 2.0-3.4 մ/վրկ:
I-3.2.1.2. Առողջարանային ռեսուրսներ
Կլիմայաբուժության պայմանները տրված են «Կուրորտաբանության և ֆիզիկական բժշկության» ԳՀԻ մշակումների համաձայն, ըստ որի կլիմայաբուժության օպտիմալ պայմանները որոշված են քամու, օդի ջերմաստիճանի և խոնավության համատեղ ազդեցությամբ մարդու օրգանիզմի վրա (ջերմային զգացողություն): Ջերմային զգացողությունները որոշված են էկվիվալենտ-էֆեկտիվ ջերմաստիճաններով (ԷԷՋ), ռադիացիոն էկվիվալենտ-էֆեկտիվ ջերմաստիճաններով (ՌԷԷՋ), որտեղ հաշվի է առնված նաև ռադիացիոն ռեժիմը, էֆեկտիվ ջերմաստիճաններով` առանց քամու (ԷՋ):
Կլիմայաբուժության պայմանները ստորաբաժանվում են.
ԷԷՋ-ն < 80 C - ցուրտ պայմաններ
ԷԷՋ-ն 9-160 C - ինդիֆերենտ (չեզոք) պայմաններ
ԷԷՋ-ն 17-220 C - կոմֆորտային պայմաններ
ԷԷՋ-ն >230 C - գերտաքացման պայմաններ
Կլիմայաբուժության օդերևութաբանական պայմանները տարվա սեզոններին տարբեր են:
Գարնան առաջին կեսին օդային միջավայրը դեռ այնքան սառն է, որ դոզավորված կլիմայաբուժական պրոցեդուրաները բնական պայմաններում հնարավոր չեն: Այս ժամանակահատվածը բնութագրվում է դիսկոմֆորտային պայմաններով, երբ գերիշխում են սառը պայմաններ: Մայիս ամսից սկսած արևի ճառագայթային էներգիայի մուտքի ավելացման հետ աճում է նաև «բարեխառն» (ԷԷՋ 9-160) օդային լոգանքների կրկնվածության տոկոսը, իսկ մայիսի 25-ից արդեն «կոմֆորտային» օդային լոգանքներ կարելի է ընդունել 10-12 օր: Հունիսի 15-ից «սառը» օդային լոգանքների տոկոսի նվազման հետևանքով աճում է «կոմֆորտային» (ԷԷՋ 16-22.50) լոգանքների կրկնվածությունը, հասնելով 31 % (աղ. N Վ-7): Այստեղ օդաբուժության կիրառման հնարավոր ժամանակաշրջանը բնական պայմաններում տևում է 5 ամիս` մայիսից մինչև սեպտեմբեր ներառյալ: Սակայն առանձին օրերին, երբ դիտվում են ամպամած և անձրևային եղանակներ, կլիմայաբուժության հնարավորությունը կրճատվում է: Սկսած հունիսի 15-ից մինչև սեպտեմբեր արևաբուժության կոմֆորտային պայմաններ դիտվում են 10-12 օր, երբեմն էլ դիտվում են դիսկոմֆորտային պայմաններ, երբ ՌԷԷՋ>230-ից, սակայն սրանք աննշան տոկոս են կազմում (աղ. N Վ-8.):
Աշնան սկզբին բարենպաստ և կայուն եղանակային ռեժիմը ստեղծում է օպտիմալ պայմաններ կլիմայաբուժության համար մինչև սեպտեմբերի վերջը: Առանձին օրեր, երբ եղանակային պայմանները բարենպաստ չեն, առաջարկվում է կլիմայաբուժությունը կազմակերպել առանձին տաղավարներում, աէրարիներում, ժամանակակից սարքավորումներով համալրված կլիմայաբուժության համար նախատեսված պատշգամբներում, մեկուսացված ապակեպատ խցիկներում:
Տաշիրի լանդշաֆտային պայմանները (անտառաշերտի պակաս) և լեռնագրությունը (սարահարթը շրջապատող լեռներ) պատճառ են հանդիսանում անընդհատ դիտվող քամիների: Ամռանը օրվա ընթացքում զարգանում է լեռնահովտային, իսկ ձմռանը ֆյոնային շրջանառությունը: Առաջարկվում է առանձնահատուկ ուշադրություն դարձնել քամու սառեցնող ազդեցությունը չեզոքացնելու վրա, ինչի հետևանքով մայիսի օդաբուժության «սառը» պայմանները 47 %-ից հասնում է 9 %-ի: Հուլիս-օգոստոս ամիսներին համապատասխանաբար տարբերությունը մեծանում է (աղ. N Վ-7.): Այսինքն Տաշիրում ջերմային պայմանները բարենպաստ են, այստեղ քամու ազդեցությունն է բացասական, ինչը տարբերում է Տաշիրը մյուս շրջաններից, քանի որ քամին այստեղ օրվա ընթացքում ոչ շատ ուժեղ է, սակայն անընդհատ դիտվում է, հատկապես ձմռան ընթացքում, այն դեպքում, երբ հանրապետության ամբողջ տարածքում, բացի բարձր լեռնային շրջաններից և լեռնանցքներից, իշխում է անտիցիկլոնային ռեժիմ` բարձր ճնշման դաշտ, որն էլ ուղեկցվում է անհողմ եղանակների գերակշռությամբ: Իսկ Տաշիրում և Ստեփանավանում վերը նշված պայմանների հետևանքով, հատկապես ձմռանը, եղանակը ձևավորում է ցածր ճնշման դաշտը:
Տաշիրում ակտինոմետրիկ դիտարկումների բացակայության պատճառով մեզ չհաջողվեց որոշել արևաբուժության պայմանները: Սակայն, հաշվի առնելով, որ արևի տաքացումից մարդու մաշկի ջերմաստիճանը բարձրանում է 6-80-ով, և կիրառելով Գ.Ցուցկերիձեի մեթոդը, մեր կողմից որոշված և հաշվարկված են արևաբուժության լոգանքների պայմանները (աղ. N Վ-8.): Արևաբուժություն հնարավոր է կազմակերպել մայիսի 15-ից մինչև սեպտեմբերը ներառյալ «կոմֆորտային» զոնայում, իսկ քամու ազդեցության վերացման դեպքում` մայիսի 10-ից ամեն օր մինչև հոկտեմբերը ներառյալ, ժամը 13-ին, երբ ուլտրամանուշակագույն ճառագայթների ինտենսիվությունն ավելի մեծ է: Ամբողջ տարվա ընթացքում ուլտրամանուշակագույն ճառագայթների բալանսը դրական է և դրանց «քաղցը» ամբողջ հանրապետությունում բացակայում է:
Արևափայլի տևողությունը տարեկան 2203 ժամ է:
Այսպիսով, Տաշիրի տարածաշրջանն իր լանդշաֆտա-կլիմայական, եղանակային, կլիմայաբուժական պայմաններով յուրովի տարբերվում է մյուս շրջաններից: Ընդարձակ անտառային զանգվածները շրջապատող լեռների լանջերին, շրջանառության պրոցեսները օժանդակում են ամպամած և անձրևային տիպի եղանակների առաջացմանը, որն էլ իջեցում է կլիմայաբուժության պայմանների կրկնվածության տոկոսը: Գարնանը գերիշխում են օդային լոգանքների «չափավոր սառը» պայմանները, ամռանը «կոմֆորտային» օդային լոգանքների պայմանների կրկնվածությունը կազմում է 31 %, իսկ «չափավոր սառը» լոգանքներինը, որոնք կրում են կոփող-մարզող բնույթ` 60 %: Արևաբուժության «կոմֆորտային պայմանները» հասնում են 43-51 %: Անբարենպաստ եղանակների ժամանակ դոզավորված կլիմայաբուժությունը կիրառել տաղավարներում, հատուկ խցիկներում: Օդային միջավայրի սառեցնող ազդեցության մեջ որոշակի դեր է խաղում քամին: Հետևաբար քամու սառեցնող ազդեցությունը վերացնող հատուկ սարքավորումների (վահաններ, անտառատնկումներ) կիրառման դեպքում, կարելի է ավելացնել «կոմֆորտային» օդային լոգանքների պայմանների տոկոսը, ինչի հետևանքով «կոմֆորտային» պայմանների կրկնվածության տոկոսը հուլիսին հասնում է մինչև 69 %: Ուրեմն քամու ազդեցությունը վերացնելուց հետո մայիսից մինչև հոկտեմբեր գերակայում են օդային և հատկապես արևային լոգանքների «կոմֆորտային» պայմանները:
Ցուրտ կիսամյակի ընթացքում կլիմայաբուժությունը կիրառվում է որպես կոփող, կանխարգելող մեթոդ մաքուր օդում զբոսանքների, խաղերի, սպորտային միջոցառումների, ինչպես նաև հատուկ պատշգամբներում բուժական քնի ձևով: Ամսվա 20-25 օրը լիովին պիտանի են ձմեռային կլիմայաբուժության համար:
Ձմռանը ուլտրամանուշակագույն ճառագայթման ինտենսիվության քչացումը թուլացնում է արևային լոգանքների արդյունավետությունը և կլիմայաբուժության հիմնական ձևը հանգիստն է: Ձմեռային տաղավարներում խորհուրդ է տրվում օգտագործել հատուկ պոլիէթիլենային թաղանթներ, որոնք անցկացնում են ուլտրամանուշակագույն և ինֆրակարմիր ճառագայթները, պահպանելով դրանց բուժական կենսաբանական ազդեցությունը: Ձմեռային կլիմայաբուժության մեջ կարելի է ընդգրկել դահուկային և սահնակային զբոսանքներ, սպորտային միջոցառումներ և մրցումներ:
Այսպիսով, Տաշիրի լանդշաֆտակլիմայական պայմանները միանգամայն բարենպաստ են բուժական հիմնարկների շուրջտարյա գործունեության համար և Տաշիրը համարվում է միջին լեռնային մերձարևադարձային գոտու առողջավայր` եղանակների չափավոր, համեմատաբար խոնավ տիպերով (ըստ Ուշվերիձեի):
Տաշիրում դիտվող օդերևութաբանական անոմալիան (ամռանը խոնավությունն ավելի մեծ է, քան ձմռանը) բարենպաստ պայմաններ է ստեղծում ամռանը շնչառական անբավարարություն ունեցող հիվանդների բուժման համար:
Ստորև բերվում են կլիմայաբուժության օդերևութաբանական պայմանները բնութագրող աղյուսակները.
Օդաբուժության օդերևութաբանական պայմանները (%)
աղ. N Վ-7.
|
Էկվիվալենտ-էֆեկտիվ ջերմաստիճան (ԷԷՋ) քամու առկայությամբ |
Էֆեկտիվ ջերմաստիճան (ԷՋ) առանց քամու | |||||||
|
ամիսներ |
< 80 |
9-160 |
17-220 |
> 230 |
< 80 |
9-160 |
17-220 |
> 230 |
|
մայիս |
47 |
49 |
4 |
|
9 |
60 |
13 |
|
|
հունիս |
20 |
62 |
11 |
|
2 |
55 |
43 |
|
|
հուլիս |
6 |
60 |
30 |
4 |
|
24 |
62 |
7 |
|
օգոստոս |
6 |
60 |
31 |
1 |
|
33 |
60 |
2 |
|
սեպտեմբեր |
20 |
60 |
19 |
1 |
3 |
57 |
39 |
1 |
Արևաբուժության օդերևութաբանական պայմանները (%)
աղ. N Վ-8.
|
Ռադիացիոն-էկվիվալենտ-էֆեկտիվ ջերմաստիճան (ՌԷԷՋ) քամու առկայությամբ |
Ռադիացիոն-Էֆեկտիվ ջերմաստիճան (ՌԷՋ) առանց քամու | |||||||
|
ամիսներ |
< 80 |
9-160 |
17-220 |
> 230 |
< 80 |
9-160 |
17-220 |
> 230 |
|
մայիս |
40 |
37 |
23 |
|
30 |
21 |
45 |
4 |
|
հունիս |
15 |
54 |
28 |
3 |
|
36 |
53 |
11 |
|
հուլիս |
|
35 |
43 |
22 |
|
27 |
58 |
15 |
|
օգոստոս |
|
38 |
51 |
11 |
|
29 |
61 |
10 |
|
սեպտեմբեր |
7 |
38 |
46 |
9 |
2 |
30 |
58 |
10 |
Աղյուսակի տվյալներից երևում է, որ օդաբուժության և արևաբուժության կոմֆորտային պայմանները (ԷԷՋ-17-220) քամու ազդեցությունը վերացնելուց հետո կարող են մեծանալ: Օրինակ` մայիս ամսին օդաբուժության կոմֆորտային պայմանները 4 %-ից կարող է հասնել 13 %-ի, իսկ արևաբուժության պայմանները համապատասխանաբար 23 %-ից կհասնի 45 %-ի (2%-1 օր):
Տաշիրը շրջափակող լեռները բարենպաստ են ձմեռային սպորտի տարբեր ձևերի կազմակերպման համար:
Ստորև բերված աղյուսակներում տրված են ձմեռային սեզոնը բնութագրող աղյուսակները:
Դահուկային սեզոնի սկիզբը, վերջը և տևողությունն ըստ բարձրության
աղ. N Վ-9.
|
Բարձրությունը ծովի մակերևույթից (մ) |
Սկիզբը |
Վերջը |
Տևողությունը (օրեր) | ||||||
|
միջինը |
հարավային լանջերին |
հյուսիսային լանջերին |
միջինը |
հարավային լանջերին |
հյուսիսային լանջերին |
միջինը |
հարավային լանջերին |
հյուսիսային լանջերին | |
|
1800 |
22.XII |
8.I |
6.XII |
21.III |
6.III |
5.IV |
89 |
57 |
120 |
|
1900 |
17.XII |
2.I |
2.XII |
27.III |
11.III |
13.IV |
100 |
68 |
132 |
|
1950 |
15.XII |
31.XII |
30.XI |
29.III |
13.III |
15.IV |
104 |
72 |
136 |
|
2000 |
11.XII |
25.XII |
27.XI |
1.IV |
16.III |
17.IV |
110 |
81 |
141 |
|
2100 |
7.XII |
20.XII |
24.XI |
7.IV |
23.III |
22.IV |
121 |
93 |
149 |
|
2200 |
1.XII |
10.XII |
20.XI |
13.IV |
30.III |
26.IV |
133 |
110 |
157 |
|
2300 |
24.XI |
1.XII |
17.XI |
21.IV |
9.IV |
2.V |
148 |
129 |
166 |
|
2400 |
19.XI |
25.XI |
13.XI |
26.IV |
16.IV |
6.V |
158 |
142 |
174 |
|
2500 |
15.XI |
20.XI |
10.XI |
3.V |
24.IV |
11.V |
169 |
155 |
182 |
|
2600 |
11.XI |
16.XI |
7.XI |
8.V |
1.V |
16.V |
178 |
166 |
189 |
|
2700 |
7.XI |
12.XI |
3.XI |
17.V |
9.V |
22.V |
191 |
178 |
200 |
|
2800 |
4.XI |
8.XI |
1.XI |
21.V |
15.V |
27.V |
198 |
188 |
207 |
|
2900 |
1.XI |
4.XI |
28.X |
29.V |
22.V |
4.VI |
210 |
199 |
219 |
|
3000 |
28.X |
1.XI |
25.X |
5.VI |
30.V |
10.V |
220 |
210 |
228 |
Ձյունածածկույթի գոյացման և վերացման, կայուն ձյունածածկույթի առաջացման և քայքայման ժամկետները
աղ. N Վ-10.
|
Ձյունածածկույթով օրերի քանակը |
Ձյունածածկ. գոյացման ժամկետները |
Կայուն ձյունածածկույթի առաջացման ժամկետները |
Կայուն ձյունածածկույթի քայքայման ժամկետները |
Ձյունածածկույթի վերացման ժամկետները | ||||||||
|
միջին |
վաղ |
ուշ |
միջին |
վաղ |
ուշ |
միջին |
վաղ |
ուշ |
միջին |
վաղ |
ուշ | |
|
72 |
14.XI |
7.X |
7.I |
6. I |
14.XI |
- |
8.III |
- |
9. IV |
11.IV |
7.III |
8.V |
Ձյունածածկույթի միջին տասնօրյակային բարձրությունը (սմ)
աղ. N Վ-11.
|
նոյեմբեր |
դեկտեմբեր |
հունվար |
փետրվար |
մարտ |
ապրիլ |
Ձյունածածկ տասնօրյակային առավելագույն բարձրությունը | ||||||||||||||
|
1 |
2 |
3 |
1 |
2 |
3 |
1 |
2 |
3 |
1 |
2 |
3 |
1 |
2 |
3 |
1 |
2 |
3 |
միջին |
մաքսիմ |
մինիմ. |
|
|
1 |
3 |
3 |
4 |
5 |
6 |
6 |
7 |
7 |
5 |
7 |
8 |
6 |
4 |
2 |
1 |
- |
17 |
37 |
2 |
I-3.2.1.3. Տարածքի գեոմորֆոլոգիական, հիդրոգրաֆիկական, հիդրոերկրաբանական, ինժեներաերկրաբանական, սեյսմատեկտոնական պայմանները
● Տաշիր քաղաքի տարածքը տեղադրված է Լոռու դաշտի հարավարևելյան մասում, Տաշիր գետի գետահովտում, Տաշիրի ֆիզիկաաշխարհագրական տեղամասում:
Տաշիրի տեղամասը մի տափարակ, համարյա չմասնատված հարթավայր է (1500-1700 մ), կազմված ալյուվիալ-պրոլյուվիալ նստվածքներից: Տեղ-տեղ հանդիպում են մինչև 5-6 մ բարձրության թմբեր և բլրակներ` կազմված ավազաշերտերից և գլաքարերից:
Տաշիրի տեղամասը շրջափակված է հյուսիս-արևելքից` Վիրահայոց լեռներով, որի ամենաբարձր լեռը Լեջանն է, արևմուտքից` Ջավախքի լեռնավահանով, հարավից` Ձորագետով, որտեղից սկսվում է Լոռու դաշտի Ձորագետի տեղամասը:
Գարնանային առատ անձրևները (մայիսին 100-150 մմ), ամռան ցածր ջերմաստիճանները մեծացնում են հողի խոնավությունը, բարձրացնում ստորերկրյա ջրերի մակարդակը և գոգավոր ռելիեֆի պայմաններում առաջացել են ճահճապատ տեղամասեր:
Տարածքը թույլ մասնատված է (0.2-0.6 կմ/կմ2), թեքությունները չեն գերազանցում 30-ը:
Տարածքով հոսում է Տաշիր գետը` Ձորագետի ձախափնյա վտակը, որը սկիզբ է առնում Խոնավ լեռներից, վերին հոսանքներով հոսում է խորը կիրճերով, իսկ քաղաքի տարածքի հարթ տարածքում հոսում է դանդաղ` առաջացնելով ճահճապատ տեղամասեր: Քաղաքի տարածքից դուրս գետի հունը նորից նեղանում է` առաջացնելով մինչև 90 մ խորությամբ կիրճ: Գետը սնվում է գրունտային (մինչև 30 %), ձնհալքի (20-25 %) և անձրևաջրերով (40-45 %):
Գարնանային հորդացումները սկսվում են ապրիլի կեսից և վերջանում հունիսի վերջին տասնօրյակում:
Այսպիսով, գեոմորֆոլոգիական տեսակետից հիմնականում բարենպաստ է շինարարության համար: Սահմանափակող գործոն է համարվում հեղեղատների առկայությունը: Անհրաժեշտության դեպքում փոքր խորության հեղեղատները կարելի է լցնել հողաշերտով, տափանել և օգտագործել շինարարության համար, իսկ ավելի խորը հեղեղատները կարելի է օգտագործել խողովակաշարերի տեղադրման համար:
● Տաշիրի տեղամասը հարուստ է խորքային` արտեզյան ջրերով և աղբյուրներով: Արտեզյան ավազանը գտնվում է Տաշիր գետի վերին հոսանքներում: Տեղամասը ներկայացված է ալյուվիալ-դելյուվիալ նստվածքներով, որոնք ծածկում են լավային ապարների (բազալտներ, անդեզիտա-բազալտներ) հզոր շերտը: Արտեզյան ավազանում 2 ճնշումային ջրային հորիզոնները հայտնաբերված են 70 մետրից մինչև 90 մետր խորությունների վրա:
Քաղաքային տարածքի հյուսիսարևմտյան և հարավարևմտյան մասերում գրունտային ջրերի մակարդակը բարձր է և տատանվում է 0-2 մետր:
Ստորերկրյա ջրերը խոշոր աղբյուրների ձևով (Սարատովկայի, Նովոսելցովոյի, Ակսյուտինի, Կիզկալայի) դուրս են գալի Լոռու սարահարթում: Աղբյուրների հաշված և հաստատված պաշարները կազմում են 150.1 հազ. մ3/օր:
Այսպիսով, Տաշիր քաղաքի տարածքը հիդրոերկրաբանական տեսակետից բարենպաստ է շինարարության համար: Սահմանափակող գործոն է ցածրադիր տեղամասերում գետի և վտակների ողողահուներում ճահճացումները, որոնց դեմ պայքարելու հիմնական միջոցը մակերեսային ջրերի հավաքումն է և գետափերի ամրացումները:
● Տաշիր քաղաքի տարածքը ինժեներաերկրաբանական տեսակետից ներկայացված է մինչև 30 մետր հզորություն ունեցող հողմնահարված բազալտներով և անդեզիտա բազալտներով, որոնք որոշակի հատվածներում ծածկված են 1-6 մ հզորություն ունեցող մակերեսային նստվածքներով: Մակերեսային նստվածքները ներկայացված են կավերով, կավաավազներով, ավազակավերով, խճային նստվածքներով` ավազակավերի և կավաավազների լցանյութերով (մինչև 30 %):
Գեոդինամիկ պրոցեսներից են Տաշիր գետի և վտակների հեղեղաբերությունը, ինչպես նաև մակերեսային հոսքերով պայմանավորված էրոզիոն պրոցեսները:
Այսպիսով, ինժեներաերկրաբանական տեսակետից Տաշիր քաղաքի տարածքը հիմնականում (90 %) բարենպաստ է շինարարության համար:
Ինժեներաերկրաբանական տեսակետից սահմանափակ բարենպաստ տարածքներն են քաղաքի հյուսիսարևմտյան և հարավարևմտյան մասում գտնվող տեղամասերը (2-5 հա) գրունտային ջրերի բարձր մակարդակով` ներկայացված ավազակավային-տիղմային գրունտներով, ինչպես նաև բնակավայրի կենտրոնական մասում, գետի աջ ափին ընկած տեղամասը` (15 հա), ներկայացված թույլ կրողունակություն ունեցող գրունտներով (տես «Ինժեներաերկրաբանական շրջանցում» քարտեզը):
● Քաղաքի տարածքի սեյսմատեկտոնական պայմանները բարենպաստ են: Տարածքի սեյսմատեկտոնական պայմանների գնահատման ընթացքում խիստ կարևորվում է ակտիվ խզվածքների ազդեցության գոտիների բացահայտումը և գրունտային պայմանների հաշվառումով սեյսմիկ վտանգի ելակետային արժեքների որոշումը:
Տաշիր քաղաքի տարածքում ակտիվ տեկտոնական ճեղքերը բացակայում են: Գրունտների առավելագույն արագացումները տատանվում են 0.2-0.25 գ, որը համապատասխանում է 8 և 8.25 բալի (գծագիր «Տարածքի համալիր գնահատական»):
(Հիդրոերկրաբանական, ինժեներաերկրաբանական, սեյսմատեկտոնական պայմանները մանրամասն տրված են առանձին գրքով` մշակված «Գեոռիսկ» գիտահետազոտական ընկերությունում:)
I-3.2.1.4. Լանդշաֆտների դասակարգումը և գնահատականը
Տաշիր քաղաքային համայնքի տարածքը գտնվում է Ջավախքի բնական լանդշաֆտային լեռնահովտային շրջանի, Լոռու դաշտի ենթաշրջանում, լեռնատափաստանային և մարգագետնատափաստանային լանդշաֆտային գոտում:
Լանդշաֆտային այս գոտու տարածքը, գտնվելով Ջավախքի լեռնավահանի և Վիարահայոց լեռների անկյունում, ձմռանը պաշտպանված է ցուրտ օդի ներխուժումից, բայց հանրապետության ամենախոնավ վայրերից է, տեղումների քանակը հասնում է 700 մմ:
Տարածված են հիմնականում սևահողեր և փետրախոտաշյուղային և լեռնաչորասեր խոտաբույսեր:
Գոտու տարածքը մի տափարակ, համարյա չմասնատված հարթություն է (1500-1700 մ), երբեմն հանդիպում են բլուրներ:
Այս գոտում առանձնացվում են.
● Տաշիր գետի ողողահունային լանդշաֆտներ,
● Գետի աջափնյա հարթ, քիչ թեքությամբ (մինչև 5 %) լանդշաֆտներ,
● Գետի ձախափնյա թեք, բլրապատ տարածքներ:
● Տաշիր գետի ողողահունը քաղաքի հիմնական կառուցապատված տարածքում կարգավորված է, ամրացված է հենապատերով: Քաղաքի հարավային մասում ողողահունը լայնանում է, կան ճահճացված տարածքներ:
● Գետի աջափնյա հարթ, քիչ թեքությամբ լանդշաֆտները հիմնականում կառուցապատված են կամ գյուղատնտեսական նշանակության բարձրարժեք հողահանդակներ են.
● Գետի ձախափնյա թեք, բլրապատ տարածքները գյուղատնտեսական նշանակության ցածրարժեք հողատեսքեր են:
Հաշվի առնելով լանդշաֆտային գոտու ռելիեֆային պայմանների համարյա միօրինակությունը, լանդշաֆտների հետագա դասակարգման տաքսոնոմիկ միավոր է ընդունվել լանդշաֆտի օգտագործման քաղաքաշինական ձևերը, ըստ որի տարբերակվում են.
● Կառուցապատված և կառուցապատման ենթակա հարթ լանդշաֆտներ,
● Ռեկրեացիոն նշանակության լանդշաֆտներ,
● Գյուղատնտեսական նշանակության լանդշաֆտներ,
● Դեգրադացվող լանդշաֆտներ:
● Կառուցապատված և կառուցապատման ենթակա լանդշաֆտները տարածված են Տաշիր գետի աջ և ձախ ափերին, հարթ տարածքների վրա` հյուսիսից հարավ ձգվելով 6 կմ, իսկ լայնությունը արևելք-արևմուտք ուղղությամբ կազմում է միջինը 1.5 կմ: Քաղաքը կառուցապատված է հիմնականում մենատներով` 1200 մ2 հողամասերով: Հասարակական կենտրոնը և սպասարկման օբյեկտները գտնվում են տարածքի ուղիղ կենտրոնում, բայց քաղաքի ձգվածության պատճառով դժվարամատչելի են ծայրամասերում բնակվող բնակիչների համար:
Մարգարա-Էջմիածին-Ստեփանավան-Տաշիր-Վրաստանի սահման (M-3) միջպետական ճանապարհը անցնում է քաղաքի կենտրոնական փողոցով, որին արևմուտքից միանում է Երևան-Գյումրի-Վրաստանի սահման (M-1) միջպետական ճանապարհը:
Կառուցապատման համար պիտանի են քաղաքի կառուցապատված տարածքի հարավարևմտյան և հարավարևելյան մասերին հարող տարածքները, որոնք ծածկված են ցածրարժեք գյուղատնտեսական հողերով:
Կառուցապատված և կառուցապատման ենթակա լանդշաֆտների օգտագործման ռեժիմը նախատեսում է.
- կառուցապատման կանոնակարգում` բնակչության և կառուցապատման համապատասխան խտությունների կիրառումով,
- Հարմարավետ կապերի ստեղծում, միջպետական տարանցիկ ճանապարհի դուրս բերում քաղաքի տարածքից,
- Տարբեր օբյեկտների և ենթակառուցվածքների սանպահպանման գոտիների պահանջների կիրառում:
- Ինժեներական նախապատրաստման միջոցառումների կիրառում (մակերեսային ջրերի հեռացում, հակահեղեղային միջոցառումներ, ուղղաձիգ հատակագծում):
● Ռեկրեացիոն նշանակության լանդշաֆտներն ընդգրկում են քաղաքի հյուսիսարևմտյան մասի անտառապուրակային գոտին և գետի աջափնյա վտակների հեղեղային հոսքերը հավաքող սելավատարի (լեռնային առու), պահպանական նշանակության անտառի և կառուցապատված տարածքների միջև ընկած չկառուցապատված հատվածները:
Ռեկրեացիոն նշանակության լանդշաֆտների օգտագործման ռեժիմը նախատեսում է.
- Ջրային նոր մակերեսների ստեղծում, գոյություն ունեցող ջրային մակերեսների մաքրում ճահճային բուսականությունից,
- Անտառածածկ տարածքների մեծացում,
- Ռեկրեացիոն օբյեկտների տեղադրում:
● Քաղաքը շրջապատող գյուղատնտեսական հողահանդակները հիմնականում բարձրարժեք վարելահողեր են (57-90 բալ), որոնք ըստ ՀՀ հողային օրենսգրքի արգելվում է օգտագործել ոչ գյուղատնտեսական նպատակներով:
Ցածրարժեք գյուղատնտեսական հողատեսքեր կան քաղաքի հյուսիսային, հարավարևմտյան և հարավարևելյան մասերում (23-30 բալլ):
Գյուղատնտեսական նշանակության հողահանդակների օգտագործման ռեժիմը նախատեսում է.
- Ագրոտեխնիկական միջոցառումների համալիրի կիրառում (հիմնականում վնասատուների դեմ պայքարի նպատակով թունաքիմիկատների կիրառման սահմանափակում` աստիճանաբար անցնելով կենսաբանական մեթոդների կիրառմանը, պարարտանյութերի պահեստավորում, դրանց օգտագործման թույլատրելի չափանիշների որոշում և այլն):
● Դեգրադացվող լանդշաֆտը քաղաքի հարավ-արևելյան մասում գտնվող բազալտի հանքավայրն է, որի առանձին հատվածները շահագործելուց հետո անհրաժեշտ է ենթարկել ռեկուլտիվացիայի:
I-3.2.1.5. Տաշիրի քաղաքային համայնքի ինժեներական նախապատրաստման միջոցառումներ
Լոռու հարթավայրը հանդիսանում է Տաշիր գետի հիմնական ջրհավաք ավազանը: Գետը հոսում է հարթավայրի արևելյան եզրով, իսկ գետի աջափնյա վտակները հոսում են հարթավայրի ամբողջ տարածքով հիմնականում արևմուտք-արևելք ուղղությամբ:
Քաղաքի բնակելի տարածքի մեծ մասը տեղադրված է գետի աջ ափին, ուստի հորդառատ անձրևների և գարնանային ինտենսիվ ձնհալի ժամանակ ջրհեղեղները վնասում են քաղաքային տնտեսությանը: Ներկայումս, «Էկոպրոյեկտ» ՍՊԸ-ի կազմած մի նախագծով կառուցվում է ջրահեռացման մի համակարգ, որի նպատակն է կտրել ջրերի հոսքը քաղաքի հարավարևելյան մասում և այն ուղղել քաղաքի վերջում Տաշիր գետը թափվող մի վտակի մեջ: Սելավատարը սկսվում է Տաշիրից դեպի Գյումրի գնացող ճանապարհից: Սելավատարի երկարությունը 3.5 կմ է, լայնությունը` 3 մ, բարձրությունը` 2 մ: Սելավատարը հեղեղումներից կպաշտպանի մոտ 1000 անհատական բնակարան և տնամերձ (տրված է «Տարածքի համալիր գնահատականը» գծագրի վրա):
1983 թ. գարնանային վարարումների ժամանակ Տաշիր գետը հունից դուրս է եկել և մեծ վնաս հասցրել քաղաքային տնտեսությանը, չնայած գետը երիզված է ափային հենապատերով, որոնց միջև հեռավորությունը հավասար է 21 մ: Գետի ափերից դուրս գալու հիմնական պատճառներն են.
● Գետի հունը լցված է աղբով, ինչը փոքրացնում է հունի կտրվածքը և խանգարում ջրի հոսքին:
● Ափամերձ պատերը տեղ-տեղ քանդված են, ինչը առիթ է տալիս ջրի արտահոսքին: Հետևաբար, անհրաժեշտ է մաքրել գետի հունը աղբից: Քաղաքի սահմաններում գետը վերածվել է աղբավայրի և քաղաքից դուրս գալիս այն նման է կոյուղու: Այսպիսով, նախագծով նախատեսվում է մաքրել գետը ջրաբերուկներից և վերականգնել հենապատերը և կամուրջները:
I-3.2.2. Տարածքի գնահատականն ըստ հատակագծային պայմանների
Տաշիր քաղաքի տարածքը գնահատվել է ըստ ջրամատակարարման, ջրահեռացման, էներգամատակարարման պայմանների, հաղորդակցության ուղիներով ապահովվածությամբ, պատմամշակութային հուշարձանների առկայությամբ և դրանց նշանակությամբ:
● Ջրամատակարարման աղբյուրների առկայության տեսանկյունից Տաշիր քաղաքը գտնվում է բարենպաստ պայմաններում: Քաղաքի շրջակայքում գտնվող Լոռու հանքավայրի Նովոսելցովոյի, Աքսյուտինի, Սարատովկայի աղբյուրների պաշարները բավարար են ապահովելու քաղաքի խմելու և տեխնիկական նշանակության ջրի նաև հեռանկարային պահանջները; Անբավարար վիճակում է ջրամատակարարման ամբողջ ցանցի և օրվա կարգավորիչ ջրամբարների տեխնիկական վիճակը:
Անհրաժեշտ է ջրամատակարարման ամբողջ համակարգի վերազինում (ներքին ցանցի բարելավում, գոտիավում և կառուցում):
Տաշիր քաղաքի ջրամատակարարման բարելավման աշխատանքներն ընդգրկված են «Համայնքային ջրամատակարարում և ջրահեռացում» վարկային ծրագրում: Նախագծային աշխատանքների ավարտման ժամկետը 01.12.2006թ. (ըստ ՀՀ ջրային տնտեսության պետական կոմիտեի տվյալների):
● Անբավարար է համարվում քաղաքի կոյուղացման համակարգը: Կոյուղացված են միայն վարչական և նախկին պետական բազմահարկ բնակելի շենքերը: Բնակչության մեծ մասն օգտվում է բակային հորերից: Կոյուղու հոսքային ջրերն` առանց մաքրվելու, թափվում են Տաշիր գետը:
Տաշիր քաղաքի 2.2 կմ կոյուղու ցանցը շահագործվում է ավելի քան 30 տարի: Կոյուղու ցանցը գտնվում է անբավարար վիճակում և հրատապ վերանորոգման կարիք ունի: Վերջին տարիներին հաճախ են տեղի ունենում վթարներ և կենցաղային ու արտադրական կեղտաջրերն` առանց մաքրման, լցվում են Տաշիր գետը:
Անհրաժեշտ է Տաշիր քաղաքի ջրահեռացման ցանցի բարելավում (գոյություն ունեցող կոյուղացանցի վերանորոգում, նոր կոյուղու ցանցի, կոլեկտորի և նոր մաքրման կայանի կառուցում):
Ջրահեռացման համակարգի հրատապ բարելավումը նպատակ ունի նաև Տաշիր գետի ամբողջ աջափնյա մասում Լոռու խմելու ջրերի հանքավայրն աղտոտումից ապահովելը:
● Քաղաքի էներգետիկ բազան ունի բավարար ռեզերվային հզորություններ նոր շինարարության տեղադրման ժամանակ: Մայրուղային գազամուղի ազդեցության գոտին չի գերազանցում 10 կմ-ը, իսկ բարձր լարման 220 և 110 կվ էլեկտրահաղորդման գծերն անցնում են քաղաքի տարածքով:
Անվտանգությունն ապահովելու նպատակով անհրաժեշտ է բարձրավոլտ էլեկտրահաղորդման գծերի դուրսբերում քաղաքի տարածքից:
Էլեկտրահաղորդման և գազամատակարարման համար վերը նշված հզորությունները բավարար են և արտաքին ցանցի ընդլայնման կարիք չի զգացվում: Հետագա շինարարության իրականացման և քաղաքի գազամատակարարման կենցաղային կարիքները բավարարելու համար անհրաժեշտ է համակարգի վերազինում և բնակելի տների (բազմահարկ և սակավահարկ) գազիֆիկացման ապահովում:
Ջերմամատակարարման համակարգի վերականգնումը նախատեսվում է հիմնականում լոկալ ջեռուցիչներով և կաթսայատներով (մանրամասն տրված է «Ինժեներական ենթակառուցվածքների հեռանկարային զարգացումը» ենթագլխում):
● Տաշիր քաղաքը գտնվում է հաղորդակցության ուղիներով ապահովվածության սահմանափակ բարենպաստ գոտում: Քաղաքի տարածքում են հատվում Գյումրի-Սպիտակ-Վրաստանի սահման (M-1) ճանապարհի ճյուղավորությունը (Վարդաղբյուր-Տաշիր հանրապետական նշանակության ճանապարհը) և Մարգարա-Էջմիածին-Վանաձոր-Տաշիր-Վրաստանի սահման միջպետական ճանապարհները (M-3):
Քաղաքը տարածաշրջանի մյուս բնակավայրերի հետ կապված է տեղական նշանակության, ցածր տեխնիկական կարգերի (4-5 կարգ) ճանապարհներով: Երկաթգծի ամենամոտ կայարանը (Թումանյան) գտնվում է 50 կմ հեռավորության վրա:
«ՀՀ տարաբնակեցման գլխավոր նախագծով» արդեն նախատեսված է Տաշիր քաղաքի շրջանցումը «Ապարան-Արջուտ-Ամրակից-Ուռուտ-Պրիվոլնոյե-Վրաստանի սահման» ուղղությամբ:
Հաղորդակցության ուղիների բարելավման միջոցառումներն ավելի մանրամասն տրված է «Տրանսպորտի հեռանկարային զարգացումը» ենթագլխում և համապատասխան գծագրում:
I-3.2.2.1. Պատմամշակութային հուշարձաններ
Լոռու մարզը շատ հարուստ է պատմամշակութային հուշարձաններով, որոնք հիմնականում կուտակված են Ձորագետի և Դեբեդի հովիտներում:
Տաշիր քաղաքում և շրջակայքում նույնպես կան հուշարձաններ, որոնք տարբեր են ըստ կառուցման ժամանակահատվածի (Ք.Ա 3-2 հազարամյակ, 10-14 դար և ժամանակակից): Հուշարձանների պահպանվածության աստիճաններընույնպես տարբեր են` սկսած ավերակներից մինչև վերականգնվածները:
Տաշիր քաղաքի և շրջակայքի հուշարձանները հիմնականում հանրապետական նշանակության են և կարող են ընդգրկվել ՀՀ տուրիստական ռազմավարական նշանակություն ունեցող երթուղիներում:
Ստորև աղյուսակում տրվում է Տաշիր քաղաքի և շրջակայքի հուշարձանների ցուցակը.
աղ. N Վ-12.
|
N |
Հուշարձանը |
Ժամանակահատվածը |
Գտնվելու վայրը |
Նշանակությունը |
Ծանոթություն |
|
1 |
Ամրոց |
Ք.ա. 3-2 հազ. |
քաղաքից 1 կմ արլ. |
Հ |
|
|
2 |
Բերդաքաղաք |
|
Տաշիր կամ Կզլկալա վայրում |
Հ |
|
|
3 |
Գյուղատեղի |
|
Տաշիր գետի ձախ ափին, խճուղու մոտ |
Հ |
|
|
4 |
Գյուղատեղի |
|
քաղաքից արլ. ճանապարհի ձախ կողմում |
Հ |
ավերված |
|
5 |
Գյուղատեղի |
միջնադար |
քաղաքից հս-արլ. Տաշիր գետակի ափին |
Հ |
«Գալոյի» վայր |
|
5.1 |
Եկեղեցի «Միլիտկա» |
10-12 դդ. |
|
Հ |
|
|
6 |
Դամբարանադաշտ |
Ք.ա. 2 հազ. 1 կես |
|
Հ |
|
|
7 |
Եկեղեցի |
13-14 դդ. |
Տաշիր բերդի արլ. կողմի ձորում քաղաքից մոտ 1 կմ արլ. |
Հ |
ավերված |
|
8 |
Կամուրջ |
|
Տաշիրի ձորում |
Հ |
ավերված |
|
9 |
Հուշարձան II աշխարհամարտում զոհվածներին |
1961թ. |
քաղաքի մեջ |
Հ |
|
|
10 |
Ջրաղաց |
|
Տաշիր գետի ձորում |
Հ |
|
|
11 |
Քարայր-կացարան |
|
Տաշիր գետի ձորում |
Հ |
|
|
12 |
Քարայր-կացարան |
|
Ձորագետի ձորում |
Հ |
ամրացված |
Գ Լ ՈՒ Խ II
ՏԱՇԻՐԻ ՔԱՂԱՔԱՅԻՆ ՀԱՄԱՅՆՔԻ ՀԵՌԱՆԿԱՐԱՅԻՆ ԶԱՐԳԱՑՈՒՄԸ
II-1. Հեռանկարային զարգացման հայեցակարգ
Տաշիր քաղաքի, ինչպես և Հայաստանի Հանրապետության բոլոր քաղաքների տնտեսական և տարածքային զարգացման հիմնախնդիրները քաղաքաշինական գործունեության ներկա փուլի առավել սուր և բարդ պրոբլեմներից են: Այս կապակցությամբ քաղաքի զարգացման հիմնախնդիրները դիտարկվել են հետևյալ գործոնների հետ փոխկապակցված.
- Քաղաքի դիրքը և դերը Հայաստանի Հանրապետության և Լոռու մարզի տարաբնակեցման համակարգում,
- Բնակչության աճի դինամիկան,
- Տարածքային ռեսուրսների օգտագործման տենդենցները և արդյունավետությունը,
- Տրանսպորտային կապերի առկայությունը, դրանց կատարելագործման հնարավորությունները,
- Տրանսպորտային բարենպաստ մատչելիության գոտում գտնվող ռեսուրսային պոտենցիալի օգտագործման հնարավորությունները և արդյունավետությունը,
- Տնտեսության տարբեր ճյուղերի փոխկապակցվածության, գերակա ճյուղերի զարգացման խնդիրները,
- Ինժեներական, տեխնիկական ենթակառուցվածքների զարգացման և կատարելագործման հնարավորությունները:
● Տաշիր քաղաքը, գտնվելով Լոռու մարզի ինտենսիվ յուրացված գոտում, Լոռու ընդարձակ սարահարթի վրա` շրջապատված ՀՀ ամենաարժեքավոր գյուղատնտեսական հողերով, կարող է վերաճել Լոռու մարզի ագրոարդյունաբերական խոշոր կենտրոնի:
● Տաշիր քաղաքը, գտնվելով հզոր հանքահումքային բազա ունեցող Լոռու մարզի կենտրոնական մասում, Ալավերդի, Ստեփանավան, Վանաձոր, Ախթալա քաղաքների ազդեցության ոլորտներում, տնտեսության գերակա ագրոարդյունաբերական ճյուղից բացի կարող է զարգացնել արդյունաբերական «բազային» ճյուղերի վերջնական արտադրանքը օգտագործող արտադրություններ` առաջնությունը տալով գյուղատնտեսական պարարտանյութերի արտադրությանը:
● Տաշիր քաղաքի դիրքը Մարգարա-Վանաձոր-Տաշիր-Վրաստանի սահման (Մ-3) միջպետական ճանապարհի և Գյումրի-Վարդաղբյուր-Տաշիր հանրապետական նշանակության ճանապարհների խաչմերուկում կարող է վերաճել տուրիստական ենթակենտրոնի` կապելով Շիրակի, Լոռու մարզերը Վրաստանի հետ:
Սահմանափակող գործոն է ճանապարհների ցածր տեխնիկական կարգերը: Անհրաժեշտ է ճանապարհների վերանորոգում` բարձրացնելով տեխնիկական կատեգորիաները, ինչպես նաև տեղական նշանակության ճանապարհային ցանցի զարգացում:
● Այսպիսով, Տաշիրի քաղաքային համայնքի հեռանկարային տնտեսական զարգացման հիմնական ուղղություններն են.
- Ագրոարդյունաբերական համալիրի ձևավորում և զարգացում,
- Արդյունաբերության «բազային» ճյուղերին սպասարկող արտադրության, գիտատար արտադրական օբյեկտների ձևավորում և զարգացում,
- Ռեկրեացիոն ոլորտը և այն սպասարկող արտադրության զարգացում:
II-1.1. Արդյունաբերության զարգացման հեռանկարները
Սույն նախագծով արդյունաբերության հեռանկարները դիտարկվում են բնական (հումքային, ռեկրեացիոն, գյուղատնտեսական) ռեսուրսների, հանրապետության արդի տնտեսական-քաղաքական փուլի վերափոխումների ընձեռած լայն հնարավորությունների, տնտեսական գործունեության նոր մոտեցումների տեսանկյունով, որոնցից կարևորագույնն են.
● Տարածաշրջանի հումքային ռեսուրսների ռացիոնալ օգտագործումը արդյունաբերության «բազային» ճյուղերի զարգացման համար:
● Տարածաշրջանի գյուղատնտեսական արտադրության օգտագործումը` ագրոարդյունաբերական ճյուղի զարգացման համար:
● Փոքր և միջին բիզնեսի (գործարարության) խթանումը և աջակցումը` ներդրումների համար բարենպաստ միջավայրի ձևավորմամբ: Փոքր և միջին բիզնեսի օբյեկտները շատ հարմար կառույցներ են հանդիսանում հատկապես բարձր տեխնոլոգիաներով արտադրությունների ներդրման և սպասարկման համար, քանի որ համեմատաբար արագ և փոքր ծախսերով յուրացնել նոր տեխնոլոգիաները և նորարարությունները, արագ են հարմարվում շուկայի պահանջներին և սպասարկման արդիական ձևերին:
● Գիտատեխնիկական ճյուղի արդյունաբերական օբյեկտների տեղադրում:
● Տարածաշրջանային և միջմարզային ինտեգրման ճանապարհով տնտեսական կապերի ստեղծում:
● Արդյունաբերական օբյեկտներում ժամանակակից, միջազգային ստանդարտներին համապատասխանող, շրջակա միջավայրին նվազագույն վնաս հասցնող տեխնոլոգիաների կիրառում:
● Աշխատունակ բնակչության բարձր ներուժի օգտագործում:
● Իրավական և գործարարական տեղեկատվական կենտրոնի ստեղծում` բնակչությանը, հիմնականում ներդրողներին իրազեկելու նպատակով:
II-1.2. Արդյունաբերության «բազային» կոմպլեքսաստեղծ ճյուղերի զարգացման հնարավորությունները
Անցած սոցիալ-տնտեսական փուլում Տաշիր (Կալինինո) քաղաքում գործում էին մեքենաշինության (կազմում էր արդյունաբերական արտադրանքի 45.9 %), թեթև արդյունաբերության (կազմում էր արդյունաբերական արտադրության 30.8 %), սննդի, էներգետիկայի և այլ ճյուղերի արդյունաբերական օբյեկտներ` 1560 աշխատատեղերով:
Այժմ այդ օբյեկտները սեփականաշնորհված են և չեն գործում:
Չգործող արդյունաբերական օբյեկտներում նոր արտադրություններ դնելու և վերագործարկելու նպատակով սույն նախագծով կատարված է հանքահումքային ռեսուրսների վերլուծություն և տրվել է գնահատական:
Տաշիրի տարածաշրջանն ունի որոշ հեռանկարներ` կապված ոսկի-պղինձ-բազմամետաղային հանքավայրերի ոչ մետաղային հումքի օգտագործման հետ:
Որպես առաջնահերթ արդյունաբերական կենտրոն կարող է հանդիսանալ Պրիվոլնու հանքային դաշտը, որն ընդգրկում է Չերեմշա գետի ավազանը և Պրիվոլնի գյուղի տարածքը` զբաղեցնելով Յագարդաշ լեռան արևմտյան լանջերը: Այստեղ հայտնի է հնում շահագործված «Մեդնայա գորա» տեղամասը, որից արդյունահանվել և տեղում մշակվել է պղնձի հանքաքար, և մի շարք տեղամասերում (Չերեմշա, Կլոր բլուր, Վյուչնիյ և այլն) արդյունահանվել է ոսկի-բազմամետաղային հանքաքար, որոնք նույնպես մշակվել են տեղում: Պրիվոլնի հանքային դաշտի հանքերևակումների և հանքավայրերի արդյունաբերական շահագործման հեռանկարները վերագնահատված են և ներկայումս այս հանքավայրերը գտնվում են «Metal Prince» ընկերության տնօրինության տակ: Անհրաժեշտ է նշել, որ Պրիվոլնու դաշտից արդյունահանված պղնձի հանքաքարը կամ լավագույն դեպքում պղնձի խտանյութը, եթե իհարկե իրականանա տեղում հանքահարստացուցիչ ֆաբրիկայի կառուցումը, կտեղափոխվեն «ACP» ընկերությանը պատկանող` Ալավերդու հանքահարստացուցիչ ֆաբրիկա կամ պղնձաձուլական գործարան: Ինչ վերաբերում է բազմամետաղային հանքաքարին (պղինձ, կապար, ցինկ), ապա հանքաքարը կամ լավագույն դեպքում խտանյութերը կտեղափոխվեն «Metal Prince» ընկերությանը պատկանող Ախթալայի հանքահարստացուցիչ ֆաբրիկա, իսկ հետագայում խտանյութերը կօտարվեն: Եթե Պրիվոլնու հանքային դաշտում, ինչպես նախատեսվում է, կառուցվի հանքահարստացուցիչ ֆաբրիկա, ապա բազմամետաղային խտանյութերը կօտարվեն` մինչև Ալավերդում կամ Ախթալայում կստեղծվեն համապատասխան մետալուրգիական արտադրություններ:
Տաշիրի տարածաշրջանը մեծ հեռանկարներ ունի պարարտանյութերի արտադրության գործում, ինչպես նաև տեղական նյութից վառելահումքի պատրաստման բնագավառներում: Վերջինս, հատկապես, վերաբերում է տորֆերից (Կալինինո, Սարատովկա, Մեծավան) և ցածրորակ ածուխներից և այրվող թերթաքարերից (Նորաշեն) վառելիքային բրիկետներից պատրաստմանը` տեղական սպառման նպատակով: Միաժամանակ հնարավոր է այդ նյութերից պատրաստել նաև պարարտանյութեր: Նկատի ունենանք, որ ինչպես տորֆերը, այնպես էլ Նորաշենի ածուխները և այրվող թերթաքարեը մետաղաբեր են և չի բացառվում, որ բարձր տեխնոլոգիաների ներդրման դեպքում կապահովվի հումքի ռացիոնալ օգտագործումը, որի նպատակը կլինի ստանալ նաև թանկարժեք մետաղներ: Այդ հետազոտությունները ներկայումս տարվում են հանրապետությունում և հեռանկարային են:
Տաշիրի տարածաշրջանի համար սկզբունքային նշանակություն ունեն կալիում պարունակող ռիոլիտ-դացիտային տուֆերը, որոնք մեծ տարածում ունեն Սարատովկա-Սվերդլով գյուղերի շրջանում և ըստ անցկացված արդյունաբերական փորձարկումների հանդիսանում են էժան, բարձրորակ պարարտանյութեր` հացահատիկային և բանջարաբոստանային կուլտուրաների համար:
Տարածաշրջանը բավականին հարուստ է շինանյութերով, որոնցից ուշադրության են արժանի բազալտների, անդեզիտների, անդեզիտադացիտների, ֆելզիտային տուֆերի, տուֆաավազաքարերի, հրաբխաավազաքարերի, կավերի, հրաբխային ավազների և հրաբխային խարամների զգալի պաշարները, որոնք կարող են լիովին ապահովել ինչպես տարածաշրջանի, այնպես էլ շրջակա բնակավայրերի և արդյունաբերական ձեռնարկությունների շինարարական նյութերի պահանջարկը:
Տաշիրի տարածաշրջանում ըստ առաջնահերթության անջատվում են Պրիվոլնու` հանքային, Կալինինոյի` վառելիքապարարտանյութային և Մեծավանի` շինանյութերի, պարարտանյութերի և զարդաքարերի հնարավոր արդյունաբերական կենտրոնները:
Տաշիրի տարածաշրջանում ստեղծվող, ինչպես նաև Լոռու մարզում գոյություն ունեցող հանքահումքային կենտրոնների վերջնական արտադրանքը կարող է օգտագործվել Տաշիր քաղաքի արդյունաբերական օբյեկտների չօգտագործվող ծավալներում` շրջապատին նվազագույն վնաս հասցնող արտադրության կազմակերպումով:
Հեռանկարում առանձնացված է արդյունաբերական տարածք (տրված է «Հեռանկարային հատակագծային կառուցվածք» ենթագլխում և համապատասխան գծագրում):
II-1.3. Ագրոարդյունաբերական համալիրի զարգացման հնարավորությունները
Նախկին սոցիալ-տնտեսկան փուլի պետական-պլանային օրենքներով գործող ագրոարդյունաբերական համալիրը փլուզվել է: Այժմ գործում են այդ համալիրի նոր ստեղծված պանրի, կարագի արտադրության մի քանի փոքր օբյեկտներ:
Տաշիրի տարածաշրջանը հարուստ է գյուղատնտեսական հողահանդակներով, հատկապես արոտներով: Խիստ զարգացած է եղել անասնապահությունը (1988 թ. խոշոր եղջերավոր անասունների գլխաքանակը կազմում է 4774 գլուխ): Հիմնական մասնագիտացումներն են` կաթնային տավարաբուծությունը, բուսաբուծությունը (կերային կուլտուրաներ, հացահատիկ, կարտոֆիլ):
Գյուղատնտեսության զարգացման և ճյուղի ապրանքային արտադրությունը կազմակերպելու, հողային ֆոնդի ռացիոնալ օգտագործման նպատակով նպատակահարմար է իրականացնել փոքր (50-60 հա), միջին (150-200 հա) չափի ֆերմերային տնտեսությունների ստեղծումը` կոոպերացիայի փայատիրական սկզբունքներով միավորելով և խոշորացնելով հողերը, որը կպահանջի իրագործել ագրո-զոոտեխնիկական, մելիորատիվ միջոցառումներ: Նշված միջոցառումները կնպաստեն նաև վերջին 10-15 տարիներին շրջանառությունից դուրս մնացած հողերն օգտագործել նպատակային նշանակությամբ:
Տաշիր քաղաքում ագրոարդյունաբերական համալիրի զարգացումն ապահովելու նպատակով անհրաժեշտ է տեղական ինքնակառավարման մարմինների և ներդրողների համագործակցությունը` տարածաշրջանային և միջմարզային տնտեսական կապերի ստեղծումով: Ագրոարդյունաբերական համալիրի արտադրանքը կարող է սպասարկել նաև նախատեսվող ռեկրեացիոն ոլորտին:
II-1.4. Ռեկրեացիայի քաղաքաշինական հեռանկարային կազմակերպումը
Տաշիրի քաղաքային համայնքի տնտեսության զարգացման ճյուղերից նախատեսվում է նաև ռեկրեացիոն ոլորտը, հիմնականում տուրիզմի ճյուղը:
Տաշիր քաղաքը գտնվում է «ՀՀ տարաբնակեցման գլխավոր նախագծով» նախատեսված Ձորագետի ռեկրեացիոն գոտու հյուսիսային ծայրամասում` Տաշիր գետի հովտում, որտեղ նախատեսվում է կազմակերպել Տաշիրի ռեկրեացիոն ենթագոտին: Ենթագոտին ընդգրկում է Տաշիր գետի միջին, ստորին հոսանքները` հյուսիսից շրջափակելով անտառ-այգով, լճակներով, արևմուտքից` պաշտպանական նշանակության անտառաշերտերով, արևելքում` ցածր հարաբերական բարձրության լեռնաշղթաներով:
Ռեկրեացիոն ենթագոտու կազմակերպման համար ակտիվ գործոններն են`
- Քաղաքի դիրքը տուրիստական ռազմավարական նշանակության Վրաստանի սահման-Տաշիր-Ստեփանավան-Վանաձոր-Գյումրի-Թուրքիայի սահման ավտոմայրուղու վրա` իր ճյուղավորություններով դեպի հանրապետության մյուս մարզերը:
- Տաշիր քաղաքի շուրջտարյա կլիմայաբուժության բարենպաստ պայմանները (օդաբուժություն, արևաբուժություն):
- Ձմեռային սպորտի կազմակերպման հնարավորությունները:
- Պատմամշակութային հուշարձանների առկայությունը,
- Ռեզերվային տարածքների առկայությունը:
- Խմելու ջրի մեծ պաշարները:
- Տեղական բնակչության կարճատև հանգստի կազմակերպման անհրաժեշտությունը:
(Ռեկրեացիոն ռեսուրսների բնութագիրը, ռեկրեացիայի տարբեր ձևերի կազմակերպման բարենպաստության աստիճանը տրված է «Տարածքի համալիր գնահատականը» գլխում` I-3.2.1.2., I-3.2.1.4., I-3.2.2.):
Հաշվարկված է ռեկրեացիոն ենթագոտու ֆունկցիոնալ տարողունակությունը (տեղացի և եկվոր բուժվողների, հանգստացողների, տուրիստների ընդհանուր քանակը, որոնք կարող են միաժամանակ օգտվել ռեկրեացիոն տարածքներից և ռեսուրսներից` առանց խախտելու բնապահպանության սահմանված կանոնները և հանգստացողների հոգեբանական կոմֆորտը):
Ենթագոտու ֆունկցիոնալ տարողունակության որոշման համար հիմք են ծառայել.
- Կլիմայաբուժության համար բարենպաստ օրերի թիվը յուրաքանչյուր ամսում,
- Ռեկրեացիայի տարբեր ձևերի կազմակերպման համար հողատարածքների միջինացված չափերը,
- Բնական լանդշաֆտների բեռնվածության թույլատրելի նորմերը ռեկրեացիայի կազմակերպման համար,
- Գետի լողափի չափերը,
- Ճանաչողական տուրիզմի օբյեկտների առկայությունը, դրանց կուտակման հենակետային վայրերը:
Ստորև բերված աղյուսակում տրված են ռեկրեացիոն համալիրների միջինացված տեխնիկական ցուցանիշները.
աղ. N Հ-1.
|
N |
Ռեկրեացիոն համալիր |
Տարածք (հա) տարողունակություն (հազ. մարդ) |
1 մարդ/տեղ (մ2) |
Լանդշաֆտներ |
Լանդշաֆտի թույլատրված բեռնվածությունը (մարդ/հա) |
|
1 |
Կլիմայաբուժություն |
60.0 |
120 |
մերձլճային, մերձգետային լողափ |
1000-2000 |
|
2 |
Հանգիստ, տուրիզմ |
30.0 |
100 |
անտառ-այգի |
20 |
|
3 |
Ճանաչողական տուրիզմ |
25.0 |
100 |
մարգագետին-այգի |
70 |
|
4 |
Լեռնադահուկային |
40.0 |
- |
անտառ-մարգագետին |
30 |
Այսպիսով, ռեկրեացիոն ենթագոտու ֆունկցիոնալ տարողունակությունը կկազմի 0.8-1.0 հազ. տեղ:
Տաշիրի ռեկրեացիոն ենթագոտու օգտագործման քաղաքաշինական ռեժիմը նախատեսում է.
● Ռեկրեացիոն օբյեկտների լայն շինարարության (շուրջտարյա կլիմայաբուժական առողջարաններ, հանգստյան տներ, կեմպինգներ, մոթելներ, տուրիստական հանգրվաններ, վրանային հանգրվաններ և այլն):
● Սպասարկման և մշակույթի օբյեկտների շինարարության (հյուրանոցներ, ռեստորաններ, սննդի օբյեկտներ, զվարճանքի տներ, թանգարաններ և այլն):
● Ինժեներական, տրանսպորտային, տեխնիկական ենթակառուցվածքների զարգացում և կատարելագործում:
● Բնապահպանական միջոցառումների լայն համալիրի կիրառում.
- Անտառածածկ տարածքների մեծացում,
- Անտառի որակական կազմի (բոնիտետի) բարելավում,
- Անտառահատման արգելում,
- Ինժեներական նախապատրաստման, բարեկարգման աշխատանքների իրականացում (հակահեղեղային):
Ռեկրեացիոն ենթագոտու կազմակերպումը կնպաստի.
● ՀՀ տուրիստական քաղաքականության ռազմավարական ուղղությունների իրականացումը հետևյալ երթուղիներով`
- Վրաստանի սահման-Տաշիր-Ստեփանավան-Վանաձոր-Գյումրի-Թուրքիայի սահման,
- Վրաստանի սահման-Տաշիր-Ստեփանավան-Վանաձոր-Սևանի ավազան` ճյուղավորվելով դեպի Արցախ և Պարսկաստանի սահման:
Վերը նշված երթուղիներից Տաշիրից կարող են ճյուղավորվել հետևյալ տեղական ուղղությունները.
- Տաշիր-Նորաշեն-Ապավեն-Արծնի-Սարչապետ-Պրիվոլնոյե-Կրուգլայա Շիշկա-Տաշիր,
- Տաշիր-Բլագոդարնոյե-Դաշտադեմ-Ձյունաշող-Մեծավան-Տաշիր:
Ռեկրեացիոն ենթագոտու կազմակերպումը կնապստի նաև.
● Տեղական բնակչության ամենօրյա և կարճատև հանգստի կազմակերպմանը,
● Նոր տիպի առողջարանների ստեղծմանը (օդաբուժություն, արևաբուժություն),
● Նոր աշխատատեղերի ստեծմանը,
● Կրթական մակարդակի բարձրացմանը,
● Բժշկական սպասարկման կատարելագործմանը,
● Տեղեկատվության տարածման նոր ձևերի ներմուծմանը,
● Տարածաշրջանի գյուղական բնակավայրերի խոշորացմանը:
II-2. Բնակչություն և բնակելի ֆոնդ
Տաշիր քաղաքի բնակչությունը (ըստ ՀՀ Ազգային վիճակագրական ծառայության 2001թ. մարդահամարի տվյալների) կազմում է 9.5 հազ. մարդ, իսկ 01.01.06թ. կազմել է 13.3 հազ. մարդ:
Տաշիր քաղաքի բնակչության թվաքանակի դինամիկան 1990-2000թ.թ. ժամանակահատվածում տրված է ստորև բերված աղյուսակում:
աղ. N Հ-2.
|
Տարեթիվը |
Բնակչությունը (հազ. մարդ) |
|
1990 |
13.5 |
|
1991 |
13.2 |
|
1992 |
13.5 |
|
1993 |
14.3 |
|
1994 |
14.3 |
|
1995 |
14.2 |
|
1996 |
14.2 |
|
1997 |
14.3 |
|
1998 |
14.3 |
|
1999 |
14.3 |
|
2000 |
14.2 |
|
2001 թ. մարդահամար |
9.5 |
Ինչպես երևում է աղյուսակից, բնակչության քանակը նվազել է կտրուկ և հասել 9.5 հազարի, իսկ մինչև 01.01.2006թ. տեղի է ունեցել բնակչության աճ` հասնելով մինչև 13.3 հազ. մարդու:
Բնակչության հեռանկարային քանակը հաշվարկված է 25.0 հազ. մարդ` քաղաքապատկան տարածքի դեմոգրաֆիական տարողունակության մեթոդով (ըստ «ՀՀ տարաբնակեցման գլխավոր նախագծի» հիմնադրույթների):
Բնակչության աճի համար ժամկետներ չեն նախատեսված, այն կախված է քաղաքի, մարզի, հանրապետության սոցիալ-տնտեսական զարգացման տեմպերից:
Քաղաքի բնակելի ֆոնդը կազմում է 732380 մ2: Բնակչության միջին ապահովվածությունը բնակելի մակերեսով` 55.0 մ2: Քաղաքը կառուցապատված է հիմնականում 1-2 հարկանի տնամերձ հողամասերով տներով (2775 հատ) և 40 հատ բազմաբնակարան շենքերով, ընդ որում առանձնատներում բնակվում է 8847 մարդ, իսկ բազմաբնակարան շենքերում` 4538 մարդ:
II-3. Հասարակական սպասարկման ոլորտ
Նոր սոցիալ-տնտեսական փուլում հասարակական սպասարկման ոլորտի օբյեկտների նպատակամղված զարգացումն ընթացել է հիմնականում բուժական և կրթական ցանցերի վերականգնման ուղղությամբ, մեծ մասամբ արտասահմանյան և տեղական ներդրողների միջոցներով:
Կուլտուր-կենցաղային օբյեկտների ցանցն ընդլայնվում է շուկայական տնտեսության պահանջներին համապատասխան:
Հասարակական սպասարկման օբյեկտների հեռանկարային տեղադրման գոտիները տրված են գոտիավորման նախագծում:
Սպասարկման հաստատությունների ցուցանիշները և հողամասերի չափերը*
(Հեռանկարային բնակչության հաշվառումով)
|
հհ |
Անվանումը |
Չափ. միավ. |
Քանակը |
Զբաղեցրած տարածքը (հա) |
|
1 |
2 |
3 |
4 |
5 |
|
Կրթության հիմնարկություններ | ||||
|
1 |
Մանկական նախադպրոցական հիմնարկություններ, այդ թվում |
տեղ |
3383 |
10.1 |
|
ա) ընդհանուր տիպի |
-//- |
2786 |
8.3 | |
|
բ) մասնագիտացված |
-//- |
119 |
0.4 | |
|
գ) կազդուրիչ-առողջարարական |
-//- |
478 |
1.4 | |
|
2 |
Նախադպրոցականների համար ծածկած լողավազաններ |
օբյեկտ |
ըստ նախագծային առաջադրանքի |
- |
|
3 |
Հանրակրթական դպրոցներ, այդ թվում |
աշակերտ |
1756 |
8.7 |
|
ա) I-VIII դասարաններ |
-//- |
1756 |
- | |
|
4 |
Մասնագիտացված** |
-//- |
ըստ նախագծային առաջադրանքի |
ըստ նախագծային առաջադրանքի* |
|
5 |
Մանկապատանեկան սպորտային դպրոց** |
-//- |
10 |
-//- |
|
6 |
Արվեստի մանկական դպրոց, երաժշտական, գեղարվեստական պարարվեստի դպրոց** |
-//- |
12 |
-//- |
|
4 |
Գիշերօթիկ դպրոցներ |
-//- |
ըստ նախագծային առաջադրանքի |
-//- |
|
5 |
Միջնակարգ մասնագիտական և մասնագիտատեխնիկական ուսումնական հաստատություններ, բարձրագույն ուսումնական հաստատություններ |
սովորող |
ըստ նախագծային առաջադրանքի՝ հաշվի առնելով քաղաք-կենտրոնի և դրա ազդեցության գոտու այլ բնակավայրերի բնակչությունը |
-//- |
|
Առողջապահական, սոցիալական ապահովության հիմնարկություններ | ||||
|
6 |
Գիշերօթիկ տներ մեծահասակների, հաշմանդամների համար |
տեղ |
ըստ նախագծային առաջադրանքի |
-//- |
|
7 |
Հատուկ տիպի բնակելի տներ և բնակարաններ ծերերի, վետերանների, հաշմանդամների ու միայնակների համար |
տեղ |
ըստ նախագծային առաջադրանքի |
-//- |
|
8 |
Առողջապահական ստացիոնարներ /հիվանդանոց/ |
մահճակալ |
տարողությունը և կառուցվածքը որոշվում է առողջապահական մարմնի կողմից և ներկայացվում է նախագծման առաջադրանքում |
-//- |
|
9 |
Պոլիկլինիկաներ, ամբուլատորիաներ, առանց ստացիոնարի դիսպանսերներ |
հերթում հաճախում |
-//- |
-//- |
|
10 |
Շտապ բուժական օգնության կայաններ |
ավտոմեքենա |
3 |
0.15 |
|
Առողջարանակուրորտային և կազդուրչական, հանգստի և տուրիզմի հիմնարկություններ | ||||
|
11 |
Առողջարանակուրորտային և կազդուրչական, հանգստի և զբոսաշրջության հիմնարկություններ, հյուրանոցներ |
տեղ |
ըստ նախագծային առաջադրանքի |
ըստ նախագծային առաջադրանքի* |
|
Մարմնակրթական, սպորտային կառույցներ | ||||
|
12 |
Մարմնակրթական-սպորտային կառույցներ, այդ թվում |
հա |
- |
17.5 |
|
|
ա) ընդհանուր օգտագործման սպորտային դահլիճներ |
մ2 |
1750 |
ըստ նախագծային առաջադրանքի* |
|
13 |
Ընդհանուր օգտագործման բաց և ծածկած լողավազաններ |
մ2 |
625 |
-//- |
|
Մշակույթի և արվեստի հիմնարկություններ | ||||
|
14 |
Համերգային դահլիճներ |
տեղ |
87 |
-//- |
|
15 |
Պարային դահլիճներ |
-//- |
150 |
-//- |
|
16 |
Կինոթատրոններ |
-//- |
625 |
|
|
17 |
Թատրոններ |
-//- |
125 |
-//- |
|
18 |
Քաղաքային գրադարաններ |
ընթերցատեղ |
50 |
-//- |
|
Առևտրի, հասարակական սննդի և կենցաղային սպասարկման հիմնարկություններ | ||||
|
19 |
Շուկայական համալիրներ |
մ2 առևտրական մակերես |
600 |
0.4 |
|
20 |
Հասարակական սննդի ձեռնարկություններ |
տեղ |
1000 |
1 |
|
21 |
Կենցաղային սպասարկման ձեռնարկություններ |
աշխատատեղ |
225 |
- |
|
22 |
Կոմունալ սպասարկման ձեռնարկություններ, |
|
|
|
|
|
ա) լվացքատներ |
կգ սպիտակեղեն |
3000 |
ըստ նախագծային առաջադրանքի* |
|
23 |
Քիմմաքրման կետեր |
-//- |
285 |
-//- |
|
24 |
Քաղաքային բաղնիք |
տեղ |
125 |
0.3 |
|
Կառավարման կազմակերպություններ և հիմնարկություններ, վարկաֆինանսական հիմնարկություներ և կապի ձեռնարկություններ | ||||
|
25 |
Կապի հանգույց |
Ըստ Կապի նախարարության նորմերի և կանոնների |
|
|
|
26 |
Բանկի բաժանմունք |
Ըստ նախագծային առաջադրանքի* |
|
|
|
27 |
Կառավարման կազմակերպություններ և հիմնարկություններ |
-//- |
|
|
|
28 |
Քաղաքային դատարան |
տեղ |
- |
- |
|
29 |
Իրավաբանական կոսուլտացիա, նոտարական գրասենյակ |
-//- |
-//- |
ըստ նախագծային առաջադրանքի* |
|
Բնակելի-կոմունալ տնտեսության հիմնարկություններ | ||||
|
30 |
Հրշեջ դեպո |
հրշեջ ավտոմեքենա |
5 |
0.6 |
|
31 |
Հյուրանոցներ |
տեղ |
150 |
0.45 |
|
32 |
Հանրային զուգարաններ |
սարք. |
25 |
- |
|
33 |
Ավանդական թաղման գերեզմանատուն |
հա |
- |
10.0 |
*- Строительные нормы и правила, Градостроительство, Планировка и застройка городских и сельских поселений СНиП 2.07.01.-89, Москва, 1989 г.
**- միևնույն շենքային համալիրում տեղակայված (արտադպրոցական կենտրոն)
II-4. Քաղաքային տարածքի ճարտարապետահատակագծային կազմակերպում և գործառական կառուցվածք
II-4.1. Քաղաքի տարածքային զարգացման հիմնական սկզբունքները
● Քաղաքի հատակագծային հեռանկարային կառուցվածքի ձևավորման մեթոդական հիմք են ծառայել.
- «ՀՀ տարաբնակեցման գլխավոր նախագծի» հիմնադրույթներով ամրագրված քաղաքի տարածքային աճի սահմանափակման սկզբունքը,
- Սեյսմիկ վտանգի պայմաններում քաղաքի բոլոր կառուցվածքային-հատակագծային տարրերի հուսալիությունն ու կայունությունն ապահովող սկզբունքները (բնակելի գոտու ռելիեֆին և սեյսմիկ վտանգին համապատասխանեցված խտություններ, ներքին ռեզերվային տարածքների ընդգրկում, կանաչ գոտու ընդլայնում),
- Հին և նոր թաղամասերի հատակագծային օրգանական կապերի ապահովումը` ընդգրկելով քաղաքի գործառական տարածքում ռեկրեացիայի կազմակերպման համար բարենպաստ տեղամասերը:
II-4.2. Հատակագծային հեռանկարային կառուցվածք
Տաշիր քաղաքի գոյություն ունեցող գծային հատակագծային կառուցվածքը ձևավորվել է Երևան-Վրաստանի սահման միջպետական ճանապարհի երկարությամբ նախկին Վորոնցովկա գյուղի կառուցապատման աստիճանական ընդլայնման ճանապարհով: Ընդ որում ընդլայնումը հիմնականում իրականացվել է Տաշիր գետի աջափնյա հատվածում, հետագայում կառուցապատումն անցել է նաև ձախ ափը:
Տաշիր քաղաքի ներկայիս տարածքը հյուսիսից-հարավ ձգվում է 7-8 կմ միջին լայնությունը` 1.5 կմ:
Քաղաքի փողոցային ցանցը հիմնականում կանոնավոր է` հյուսիս-արևմուտք ուղղությամբ ձգվող երկայնական փողոցներով, որոնք հատվելով լայնակի ուղղությամբ ձգվող փողոցների հետ, առաջացնում են տարբեր չափերի ուղղանկյուն թաղամասեր: Միայն քաղաքի հյուսիսային ծայրամասում փողոցային ցանցը կտրուկ փոխում է իր ուղղությունը` թեքվելով դեպի հյուսիս-արևելք դարձյալ իրար զուգահեռ ձգվող փողոցներով:
Փողացային ցանցն անկանոն է քաղաքի ծայր հարավային մասում` կապված տարածքի ճահճացումների հետ:
Կառուցապատումը հիմնականում իրականացված է 1-2 հարկանի մենատներով` տարբեր տարիներին տարբեր չափի տրամադրված տնամերձ հողամասերով (1200-400 մ2):
Բազմահարկ կառուցապատումը (40 շենք) կենտրոնացված է քաղաքի կենտրոնական, հարավ-արևմտյան, հյուսիս-արևմտյան հատվածներում:
Արդյունաբերական-արտադրական և կոմունալ պահեստային օբյեկտները հիմնականում տեղաբաշխված են քաղաքի արևմտյան, հյուսիսային, հարավային մասերում: Քաղաքի արևելյան մասով անցնում են բարձրավոլտ էլեկտրական գծեր, որոնք խանգարում են կառուցապատման կանոնակարգմանը:
Քաղաքի հասարակական կենտրոնի շուրջը ձևավորվել է հասարակական կանաչ գոտին:
Ուսումնական հաստատությունները տեղակայված են տարբեր թաղամասերի բարենպաստ մատչելիության գոտիներում:
Տաշիր քաղաքի հատակագծային կառուցվածքը կազմակերպված է Տաշիր գետի ափին, ընդ որում բնակելի կառուցապատման գերակշիռ մեծամասնությունը տեղակայված է գետի աջափնյա հարթ տարածքում և միայն փոքր հատվածը՝ ձախ ափում։
Քաղաքն ունի ընդհանուր ձգվածություն գետի երկայնքով՝ ձևավորելով քաղաքի գծային կառուցվածք։ Փողոցային ցանցը կազմակերպված է կանոնավոր, ուղղանկյուն հատակագծման սկզբունքներով, գետին զուգահեռ և ուղղահայաց փողոցների փոխհատումով` ձևավորելով գրեթե միևնույն չափերի ուղղանկյուն թաղամասեր։
Քաղաքը բաժանված է երկու թաղամասերի նաև գետին ուղղահայաց ուղղությամբ՝ արևելյան կողմի զույգ բլուրների միջին մասով անցնող առանցքով, որի շուրջ էլ ձևավորված է կենտրոնական ճեմուղին: Այդ առանցքը կենտրոնական հարապարակի մակարդակում շարունակվում է ճեմուղուն ուղղահայաց՝ գետին զուգահեռ ձգվող հիմնական զբոսայգով (քաղաքի հասարակական նշանակության կանաչապատ տարածքի հիմնական շերտը)։
Այս առանցքի վրա, երկու բլուրների միջև ընկած տարածքում է տեղակայված քաղաքի տարանջատված արդյունաբերական գոտու հյուսիսային հատվածը՝ քամիների վարդի հիմնական ուղղությունների հաշվառմամբ։ Ներկայումս արդյունաբերական տարածքների զգալի մասը անգործության է մատնված կամ գործում է չնչին հզորությամբ։ Որպես հեռանկարային պահուստ առաջարկվում է պահպանել արտադրական տարածքները՝ հասցնելով առավելագույն հզորություններին կամ վերապրոֆիլավորելով։ Հարավային գոտում է տեղակայված արդյունաբերության երկրորդ հատվածը։ Որոշ արդյունաբերական օբյեկտներ տեղակայված են բնակեցման գոտում։ Վերջիններս առաջարկվում է վերապրոֆիլավորել անվտանգ, փոքր սանիտարական գոտիներ պահանջող արտադրություննների կամ աստիճանաբար տեղափոխել հյուսիսային և հարավային արդյունաբերական տարածքներ։
Ներկայումս քաղաքի կառուցապատված տարածքում է հայտնվել նաև գլխավոր էլեկտրական իջեցնող «Տաշիր» ենթակայանը և բարձր լարման էլեկտրագծերը: Նպատակահարմար է դուրս բերել դրանք դեպի գերեզմանոցի հարակից կամ նախկին ՇՄՇ12-ի հարակից տարածքը և ազատված տարածքներն օգտագործել որպես պահուստ՝ քաղաքի հեռանկարային զարգացման համար։
Հասարակական բնույթի օբյեկտները կենտրոնացած են գլխավոր հրապարակի, Ջահուկյան փողոցի շուրջ։ Երևանյան փողոցի (ներկայումս միջպետական նշանակության մայրուղու) որոշ հատվածը ձևավորված է որպես առևտրի համքաղաքային գոտի։
Կառուցապատման գերակշիռ մասը ձևավորված է անհատական բնակելի տներով և միայն աննշան մասը՝ բազմահարկ շենքերով, որոնք տարալուծված են անհատական կառուցապատման մեջ։ Քաղաքի կենտրոնական հատվածում տեղակայված անհատական բնակելի ֆոնդի զգալի մասն ունի մաշվածության բարձր տոկոս (80-90 %)։
Ուսումնակրթական և կենցաղ-սպասարկման օբյեկտները հավասարաչափ բաշխված են քաղաքի տարածքում։
Հեռանկարային հատակագծային կառուցվածքով առաջարկվում է միջպետական նշանակության ավտոմոբիլային ճանապարհը տեղափոխել քաղաքի տարածքից՝ ազատելով քաղաքի կենտրոնական հատվածը տարանցիկ երթևեկության պատճառով առաջացող անհարմարությունից՝ աղմուկից, վիբրացիայից և արտանետումներից։ Տարանցիկ երթևեկությունը նախատեսվում է առաջնահերթ կազմակերպել գետի երկու ափերով՝ առանձնացված ուղղություններով, իսկ ուշ հեռանկարում այն դուրս է բերվում քաղաքից` դեպի արևելք (տես «Տրանսպորտի հեռանկարային զարգացումը» գծագիրը)։
Քաղաքի կենտրոնական փողոցների երկարությամբ անհատական բնակելի կառուցապատումից առաջարկվում է առանձնացնել առավել պահպանված թաղամասերից մեկը և համապատասխան վերանորոգման և բարեկարգման աշխատանքներից հետո՝ պահպանել այն որպես արգելոցային տարածք` ներկայացնելով քաղաքի կառուցապատման ավանդույթները, առավել արժեքավոր կառույցներում կազմակերպելով քաղաքի պատմության, ավանդույթների, տարազների, կերակրատեսակների և այլնի հետ ծանոթացման ցուցասրահ-թանգարան։
Մնացած հատվածների կառուցապատումը մաշվածության տոկոսին համապատասխան աստիճանաբար փոխարինել.
- կենտրոնական զբոսայգուն և ճեմուղուն հարակից առավել արժեքավոր հատվածներում առավել բարձր խտությամբ բազմաբնակարան կառուցապատմամբ, որն աստիճանաբար կմարի ըստ հարկայնության դեպի ծայրամասերը, ընդ որում նորացնելով հնացած ֆոնդը։
Կենտրոնական փողոցներին անմիջականորեն հարող հատվածը կազմակերպել խառը կառուցապատմամբ՝ հասարակական նշանակության և առևտրի կառույցներով, ապահովելով սակայն հիմնական ճանապարհներից ապահով և անվտանգ մոտեցումները, ավտոկայանատեղերը։
Հեռանկարային կառուցապատման համար տարածքներ են առաջարկված քաղաքի արևելյան, հյուսիսարևմտյան, արևմտյան (պաշտպանական անտառներից մինչև հեղեղապաշտպան լեռնային առուն ընկած տարածքը) և հյուսիսային հատվածներում։ Հարավային հատվածում տեղաբաշխված ազատ տարածքները ներկայումս աջափնյա լանջերի մակերեսային հոսքի, արտեզյան ջրերի և գետից ներծծվող ջրերի առկայության հետևանքով գտնվում է ճահճապատ վիճակում։ Գետի աջափնյա վտակների հակահեղեղային միջոցառումների (լեռնային առու) իրականացմամբ չորացվող տարածքները ևս առաջարկվում է օգտագործել որպես պահուստ՝ առանձին, ինքնաբավարար, բազմաբնակարան և անհատական կառուցապատմամբ թաղամասի ձևավորման համար։
Ձախափնյա (արևելյան) և աջափնյա (հյուսիսարևմտյան) թաղամասերը նախատեվում է կառուցապատել հիմնականում անհատական հողամասերով առանձնատնային կառուցապատմամբ՝ նախապես կատարելով գոյություն ունեցող քամապաշտպան անտառատնկումների՝ դեպի հյուսիս ընդլայնման աշխատանքներ՝ գերակշիռ քամիներից նախատեսվող կառուցապատումը պաշտպանելու համար։
Քաղաքի հասարակական նշանակության կանաչապատ տարածքները կազմում են մոտ 10 հա։ Քաղաքի հեռանկարային բնակչության՝ հասարակական նշանակության կանաչապատ տարածքների պահանջը միջին չափի քաղաքի համար կկազմի 7 ք.մ. յուրաքանչյուր բնակչի հաշվով՝ համաքաղաքային նշանակության կանաչ տարածքների, և 6 ք.մ.՝ ներթաղամասային նշանակության կանաչապատ տարածք։ Այսպիսով, ստացվում է 17.5 հա համաքաղաքային նշանակության, և 15 հա ներթաղամասային նշանակության կանաչապատ տարածքներ։ Հաշվի առնելով գոյություն ունեցող հասարակական նշանակության 10 հա կանաչ տարածքները, կստացվի հեռանկարային 7.5 հա համաքաղաքային նշանակության կանաչի պահանջ, որը նախատեսվում է իրականացնել քաղաքի հյուսիսային հատվածում մասնակիորեն ձևավորված պուրակի հետագա կազմակերպումով (ջրային մակերեսներ, սպորտային կառույցներ, մարզահրապարակներ, որոնք գրեթե բացակայում են քաղաքի գոյություն ունեցող հատակագծային կառուցվածքում` ըստ ՀՀՇՆ 3-9.02-98 նորմատիվային պահանջների)։
Ուսումնակրթական օբյեկտների ներկայիս քանակը և տեղաբաշխումը բավարարում է գոյություն ունեցող բնակչության պահանջները։ Հեռանկարային պահուստների կառուցապատման դեպքում նախատեսվում է 2 դպրոցի և 4 մսուր մանկապարտեզների տեղադրում «Վրացական» և հարավային թաղամասերում։
Քաղաքի հյուսիսային ձախափնյա տարածքում առաջարկվում է կազմակերպել նաև տոնավաճառային գոտի՝ աշխուժացնելու շրջակա գյուղերի և քաղաքի միջև առևտրա-գործարարական կապերը (հաշվի առնելով նաև Վրաստանի սահմանի մոտիկությունը, մաքսատան առկայությունը Տաշիր-Վրաստան ճանապարհին և հնարավոր հեռանկարային զարգացումները)։
II-4.3. Քաղաքի տարածքի գործառական գոտիավորում և կառուցապատման ռեժիմներ
Հաշվի առնելով գերակշռող գործառական օգտագործումը, կառուցապատման կանոնակարգման անհրաժեշտությունը, քաղաքային տարածքը բաժանված է հետևյալ հիմնական գոտիների.
● Բնակավայրերի հողեր, որոնք ըստ գործառական նշանակության դասակարգվում են հետևյալ օժանդակ գոտիների.
- բնակելի կառուցապատման,
- հասարակական կառուցապատման,
- խառը կառուցապատման,
- ընդհանուր օգտագործման հողերի,
- այլ հողերի:
● Արդյունաբերության և այլ արտադրական նշանակության հողեր, որոնք ըստ գործառական նշանակության դասակարգվում են հետևյալ օժանդակ գոտիների.
- արդյունաբերական օբյեկտների,
- գյուղատնտեսական արտադրական օբյեկտների,
- պահեստարանների:
● Էներգետիկայի, տրանսպորտի, կապի, կոմունալ ենթակառուցվածքների օբյեկտների հողեր:
● Հատուկ պահպանվող տարածքների հողեր, որոնք ըստ գործառական նշանակության դասակարգվում են հետևյալ օժանդակ գոտիների.
- բնապահպանական,
- առողջարարական նպատակներով նախատեսված,
- հանգստի համար նախատեսված,
- պատմական և մշակութային:
● Հատուկ նշանակության հողեր:
● Անտառային, ջրային և պահուստային հողեր:
Հաշվի առնելով հիմնական գոտիների քաղաքաշինական, բնապահպանական, սեյսմատեկտոնական, ինժեներաերկրաբանական և այլ բնույթի սահմանափակումները, վերջիններս դասակարգվել են ըստ գործառական նշանակության և թույլատրված օգտագործումների, հողամասերի ծավալատարածական չափորոշիչների.
● Բնակելի կառուցապատման գոտիները նախատեսված են հիմնականում բնակելի կառուցապատման, դրանց ենթակառուցվածքների, հասարակական նշանակության օբյեկտների առաջնային տեղակայման համար: Բնակվելու տարածքն ըստ ծավալատարածական (օժանդակ) գոտիավորման բաժանվում է ցածր խտության, միջին խտության, բարձր խտության բնակելի գոտիների:
- Ցածր խտության բնակելի գոտիները նախատեսված են տնամերձ հողամասեր ունեցող 1-2 հարկանի առանձնատներով կառուցապատման համար: Այս գոտիներն առանձնացված են հիմնականում արդեն կազմավորված առանձնատնային կառուցապատում ունեցող թաղամասերի հետագա զարգացման և կանոնակարգման համար: Այս գոտիներում բնակչության խտությունը չպետք է գերազանցի 100 մարդ/հա:
- Միջին խտության բնակելի գոտիները նախատեսված են բազմահարկ և առանձնատներով խառը կառուցապատման տարածքների համար: Բնակչության խտությունը չպետք է գերազանցի 200 մարդ/հա:
- Բարձր խտության բնակելի գոտիներն ընդգրկում են բազմահարկ տներով կառուցապատված տարածքները: Բնակչության խտությունը չպետք է գերազանցի 300 մարդ/հա:
Բնակելի գոտու ռեժիմը նախատեսում է շինությունների (բնակելի տներ, սպասարկման օբյեկտներ) համապատասխան խտությունների պահպանում, սանիտարական պահպանման գոտիների սահմանում, ինժեներական ենթակառուցվածքների կատարելագործում:
● Հասարակական կառուցապատման (գործառույթների) զարգացման գոտիները նախատեսված են բնակչության սոցիալական սպասարկման, ինչպես նաև համաքաղաքային նշանակության գործառույթների կազմակերպման համար, վարչական և տեղական կառավարման շենքերի կենտրոնացման, գործարարական, ֆինանսական գործունեությունը քաղաքի տարածքում կենտրոնացնելու համար` քաղաքի զարգացմանը զուգընթաց:
● Խառը կառուցապատման գոտիները նախատեսված են ինչպես բնակելի, այնպես էլ հասարակական կառուցապատման համար, առանց որևէ մեկի գերակայության:
● Ընդհանուր օգտագործման գոտիները նախատեսված են բնակչության ժամանցի և կապերի (տրանսպորտային և հետիոտն) կազմակերպման համար:
● Այլ հողերը նախատեսված են որպես պահուստներ` հեռանկարային կառուցապատման համար (քաղաքի հյուսիսային, արևմտյան, հարավարևմտյան և հարավարևելյան հատվածները): Քաղաքը շրջապատող անտառային և գյուղատնտեսական հողերը, որոնք կարող են ծայրահեղ իավիճակների դեպքում օգտագործվել հրատապ միջոցառումների իրականացման համար, նախատեսված են որպես բուֆերային գոտիներ:
● Արդյունաբերության և այլ արտադրական նշանակության տարածքները նախատեսված են արդյունաբերական, արտադրական և պահեստային օբյեկտների, դրանց ենթակառուցվածքների առաջնային տեղակայման համար: Գոյություն ունեցող արդյունաբերական և արտադրական օբյեկտները պահպանվում են: Գոտու ռեժիմը նախատեսում է առաջավոր, շրջակա միջավայրին նվազագույն վնաս հասցնող տեխնոլոգիաների կիրառում (թափոնների կրկնակի վերամշակում, թափոնների վնասազերծում, փակ ցիկլեր և այլն):
● Էներգետիկայի, տրանսպորտի, կապի, կոմունալ ենթակառուցվածքների օբյեկտների տարածքները նախատեսված են համապատասխան ենթակառուցվածքների, դրանց համապատասխան կառույցների տեղակայման համար: Գոտու ռեժիմը նախատեսում է սանիտարական և անվտանգության գոտիների սահմանում և պահպանում և հատուկ իրավական ռեժիմների (սերվիտուտների) կիրառում:
Սանիտարական գոտիները նախատեսվում է կանաչապատել` աղմուկի ազդեցությունը և մթնոլորտային օդի, հողային և ջրային ավազանների աղտոտվածությունը փոքրացնելու նպատակով:
● Հատուկ պահպանվող տարածքների հողերը նախատեսված են ռեկրեացիոն հանգստի, բուժ-առողջարարական (կլիմայաբուժություն, օդաբուժություն), զբոսաշջություն, սպորտային գործունեության կազմակերպման համար:
Գոտին ընդգրկում է քաղաքի տարածքում տեղակայված պատմական արժեք ներկայացնող հուշարձանները, պաշտպանական նշանակության անտառները, նախատեսելով սահմանափակումներ` դրանց ընկալման, ազդեցության գոտիների քաղաքաշինական կազմակերպման և բնապահպանական նկատառումներով:
● Հատուկ նշանակության գոտին ընդգրկում է քաղաքի տարածքում տեղակայված զինվորական օբյեկտները, դրանց սպասարկող ենթակառուցվածքների տարածքները: Գոտու ռեժիմը` ըստ վարչական պատկանելիության:
● Անտառային, ջրային և պահուստային հողերն ընդգրկում են անտառտնտեսությանը պատկանող (ինչպես անտառապատ, այնպես էլ ոչ անտառապատ) տարածքները, գետերը, ոռոգման ջրանցքները, աղբրակապման կառուցվածքները, դրանց սանիտարական գոտիները: Գոտու ռեժիմները տրված են նախագծի համապատասխան բաժիններում:
II-5. Տաշիրի քաղաքային համայնքի տրանսպորտային ենթակառուցվածքների հեռանկարային զարգացումը
II-5.1. Արտաքին տրանսպորտ
Տաշիր քաղաքը տեղակայված է Լոռու սարահարթի արևելյան կողմում, ծովի մակերևույթից 1500 մ բարձրության վրա: Տաշիրը սահմանային քաղաք է, քաղաքից մինչև Վրաստանի սահման ուղիղ գծով կազմում է ընդամենը 10 կմ: Քաղաքի ամբողջ երկարությամբ անցնում է Մ-3 միջպետական նշանակության Մարգարա-Վանաձոր-Տաշիր-Վրաստանի սահման ճանապարհը: Մայրուղու Ստեփանավան-Տաշիր-Վրաստանի սահման հատվածը III կարգի է: Մ-3 մայրուղին, մինչև Ստեփանավան բարեկարգ վիճակում է: Ներկայումս ավարտված է նաև Ստեփանավան-Տաշիր տեղամասի նորոգումը: ճանապարհը ծայր աստիճան անբարեկարգ է Տաշիր-Վրաստանի սահման հատվածում: Դրությունը նույնն է նաև սահմանից այն կողմ, Վրաստանի տարածքում:
Սահմանների ազատության պայմաններում աշխույժ առևտուր ու եռուզեռ էր տիրում Հայաստանի հյուսիսային բարձրադիր շրջանների և Վրաստանի հարավային շրջանների միջև: Այդ անցուդարձն այժմ նվազել է, 2002թ. տվյալներով, Տաշիր-Վրաստանի սահման ճանապարհահատվածում երթևեկության անցուդարձը կազմել է օրական 136 ավտոմոբիլ:
Տաշիր քաղաքի տարածքում Մ-3-ին է միանում Հ-31 հանրապետական նշանակության Վարդաղբյուր-Տաշիր 45.3 կմ երկարությամբ ճանապարհը: Այն կապում է Շիրակի դաշտավայրը Լոռու հարթավայրին: Դեռևս խորհրդային տարիներին ճանապարհն անբարեկարգ վիճակում էր, չնայած կարևոր ռազմավարական նշանակությանը: Շիրակի դաշտավայրին մոտենալիս ճանապարհն անցնում է Ջավախեթի և Բազումի լեռնաշղթայի մի թումբով, որի բարձրակետը ծովի մակերևույթից կազմում է 2320 մ, իսկ 2200 մետրից բարձր նիշերով անցած ուղին մոտ 20 կմ է:
Հասկանալի է, որ ճանապարհի պահպանման և շահագործման պայմանները չափազանց անբարենպաստ են, սակայն դա Շիրակի և Լոռու մարզերը կապող սահմանամերձ միակ ուղին է:
Տաշիրը հանգուցային քաղաք է, որտեղից սկիզբ են առնում շրջակա գյուղերը տանող ևս 4 ճանապարհ:
Պետք է նշել, որ շրջանի տեղական նշանակության ճանապարհները գտնվում են անբարեկարգ վիճակում, իսկ տեղ-տեղ նույնիսկ անանցանելի են: Դա բերում է նյութական մեծ կորուստների, ինչպես նաև տնտեսության առաջընթացի խոչընդոտման: Ցածրանում է նաև տարածաշրջանի ներդրումային գրավչությունը:
Մոտակա երկաթուղին անցնում է բավականաչափ հեռավորությամբ, Սպիտակ-Վանաձոր-Ալավերդի ուղղությամբ, այնպես որ քաղաքը երկաթուղային փոխադրումներից, կարելի է ասել, զրկված է:
Քաղաքից ընդամենը 6-7 կմ դեպի հարավ ընկած է Ստեփանավանի օդանավակայանը, որտեղից, ցավոք սրտի, թռիչքներ են կատարվում միայն Ռուսաստանի Դաշնության մի քանի քաղաքներ:
II-5.2. Տրանսպորտային ուղիների զարգացման հեռանկարները
Համաձայն «ՀՀ տարաբնակեցման գլխավոր նախագծի» Հյուսիս-Հարավ հիմնական ուղղությունը դիտարկվող շրջանի տարածքով պետք է անցնի Ստեփանավան, Ուռուտ, Պրիվոլնոյե բնակավայրերի շրջանցումով:
Վրաստանի սահմանագլխին, Սոմխեթի լեռնաշղթայի տակով ճանապարհը պետք է անցնի թունելով:
Քանի որ Մ-3 ճանապարհը ներկայումս անցնում է Տաշիրի ամբողջ երկարությամբ, ապա բնական է, որ տարանցիկ երթևեկությունը կխանգարի տեղական երթևեկությանը: Սակայն, այսօրվա դրությամբ, տարանցիկ տրանսպորտի անցուդարձը դեռևս չնչին է, և քաղաքը շրջանցող ճանապարհի կարիք չի զգացվում: Հետագայում, երբ քաղաքի կենտրոնական փողոցով երթևեկության ժամային անցուդարձը կկազմի 15 ավտոմոբիլ 1 ժամում, արդեն հարկ կլինի քաղաքը շրջանցող ճանապարհ կառուցել, նպատակահարմար է արևելյան կողմից: Ճանապարհի երկարությունը կկազմի 9.0 կմ և կպահանջվի ներդնել մոտ 1 միլիարդ դրամ:
II-5.3. Ներքին տրանսպորտ
Տաշիր քաղաքի փողոցային ցանցն ուղղանկյունաձև է: Քաղաքը ձգված է միջպետական նշանակության Մ-3 Մարգարա-Վանաձոր-Տաշիր-Վրաստանի սահման ճանապարհի երկարությամբ: Համաքաղաքային նշանակության փողոցային ցանցը պատկերված է գծագրում: Մայրուղային փողոցների ընդհանուր երկարությունը կազմում է 10.62 կմ: Բնակելի 1 կմ2 տարածքին ընկնում է 0.4 կմ երկարությամբ մայրուղային փողոց: 2006 թ. օգոստոս ամսին կատարվել է համաքաղաքային նշանակության փողոցներով տրանսպորտային միջոցների անցուդարձի հաշվառում: Երթևեկության քարտոգրամը ցուցադրված է գծագրում, հաշվառման արդյունքները բերված են աղյուսակում:
Տաշիր քաղաքի համաքաղաքային նշանակության փողոցներով տրանսպորտի անցուդարձը 2006 թ. և հեռանկարային 2016 թ.
աղ. N Հ-3.
|
Փողոցի անվանումը |
Երկարությունը, մ |
Երթևեկային մասի լայն., մ |
Մայթերի լայն., մ |
2006 թ. |
2016 թ. | |||
|
Երթ. անցուդարձը, ավտ/ժամ |
Բեռնվածության մակարդակը |
Երթ. անցուդարձը, ավտ/ժամ |
Բեռնվածության մակարդակը | |||||
|
1 |
2 |
3 |
4 |
5 |
6 |
7 |
8 | |
|
1 |
I հատված |
1170 |
13.0 |
2x2.0 |
110 |
0.07 |
259 |
0.17 |
|
|
II հատված |
1100 |
13.0 |
2x2.0 |
150 |
0.10 |
354 |
0.24 |
|
|
III հատված |
950 |
12.5 |
2x8.0 |
185 |
0.12 |
436 |
0.29 |
|
|
IV հատված |
1100 |
12.5 |
2x8.0 |
140 |
0.09 |
330 |
0.22 |
|
|
V հատված |
1280 |
12.5 |
2x8.0 |
88 |
0.06 |
208 |
0.14 |
|
2 |
|
450 |
7.0 |
2x1.5 |
24 |
0.02 |
57 |
0.06 |
|
3 |
I հատված |
800 |
7.0 |
2x1.0 |
21 |
0.02 |
50 |
0.05 |
|
|
II հատված |
800 |
7.0 |
2x1.0 |
22 |
0.02 |
52 |
0.05 |
|
4 |
I հատված |
300 |
13.5 |
2x7.5 |
69 |
0.05 |
163 |
0.11 |
|
|
II հատված |
600 |
13.5 |
2x7.5 |
34 |
0.02 |
80 |
0.05 |
|
5 |
|
850 |
9.0 |
2x1.5 |
25 |
0.03 |
59 |
0.06 |
|
6 |
|
300 |
9.0 |
2x1.5 |
12 |
0.01 |
28 |
0.03 |
|
7 |
|
400 |
9.0 |
2x1.5 |
32 |
0.03 |
76 |
0.08 |
|
8 |
|
520 |
9.0 |
2x1.5 |
16 |
0.02 |
38 |
0.04 |
Աղյուսակից հետևում է, որ այսօրվա դրությամբ քաղաքի բոլոր մայրուղային փողոցներն աշխատում են ազատ ռեժիմով: Աղյուսակի վերջին սյունակներում բերված են 2016թ. այդ փողոցների անցուդարձերը տրանսպորտի տարեկան 10 % աճի դեպքում: Պարզվում է, որ այդ դեպքում էլ քաղաքի փողոցները կաշխատեն ազատ ռեժիմով, այսինքն թերբեռնված:
Համենայնդեպս, Տաշիրը տարանցիկ քաղաք է, և տարանցիկ երթևեկությունը քաղաքացիներին անհարկի անհարմարավետություն է պատճառում: Մոտակա հեռանկարում տարանցիկ երթևեկությունը քաղաքի կենտրոնական փողոցից կարելի է դուրս բերել և տանել Տաշիր գետի աջ և ձախ ափերով անցնող փողոցով: Այդ փողոցն այսօրվա դրությամբ անբարեկարգ է, առանց պատվածքի: Որպեսզի այն դառնա տարանցիկ, պետք է Ստեփանավանի կողմից երկարացնել 650 մետրով և տրանսպորտային հանգույցով (շեփոր տիպի) միացնել կենտրոնական փողոցին: Մյուս ծայրից փողոցը պետք է շարունակել Տաշիր գետի ափով մինչև Մ-3 ճանապարհի հետ միանալը: Այսպիսով, Գետափնյա փողոցը տարանցիկ դարձնելու համար հարկ կլինի կառուցել երկու կամուրջ, երկու ուղեկամուրջ և 2.25 կմ նոր ճանապարհ:
Ավելի ուշ կարելի է կառուցել նաև մոտ 5 կմ երկարությամբ նոր ճանապարհ, որով լիովին կլուծվի քաղաքի շրջանցման հարցը:
Քաղաքում ուղևորատար հասարակական տրանսպորտ այսօրվա դրությամբ չի աշխատում:
Այս տարի քաղաքի մի քանի փողոցներ մասնավոր ներդրումների հաշվին վերանորոգվում են: Մյուս փողոցները անբարեկարգ են: Երբեմնի ասֆալտի պատվածքից հետք անգամ չի մնացել: Տեղ-տեղ ավտոմոբիլները երթևեկում են մայթերով:
Այս երևույթի պատճառը, բացի այն բանից, որ փողոցները չեն նորոգվում, ճանապարհային ջրահեռացման բացակայությունն է: Հայտնի է, որ Լոռու բարձրավանդակը, որտեղ և գտնվում է քաղաքը, հայտնի է իր խիստ կլիմայով և տեղումների առատությամբ: Իսկ քանի որ քաղաքի տարածքի մեծ մասը տեղավորված է հարթավայրում, ջրահեռացման բացակայության պայմաններում, փողոցների պատվածքը արագորեն շարքից դուրս է գալիս:
Տաշիր գետի ափամերձ փողոցի վերակառուցումից հետո համաքաղաքային նշանակության փողոցների ընդհանուր երկարությունը կկազմի 15.02 կմ, իսկ դրանց խտության ցուցանիշը հավասար կլինի 2.6 կմ/կմ2:
II-5.4. Տաշիր քաղաքի տարածքում ավտոմոբիլային տրանսպորտի արտանետումների հաշվարկ
Ավտոմոբիլային տրանսպորտի արտանետումներից մարդու առողջության համար ամենավտանգավորներն են.
ածխածնի մոնօքսիդը - CO
ազոտի օքսիդները - NOx
տարատեսակ ածխաջրածինները - CmHn
կոշտ արտանետումները-ծանր մետաղները և դրանց միացությունները
Տարեկան կտրվածքով նյութի արտանետումները հաշվված են հետևյալ բանաձևով.
Q=365 T (qմkմ +qբkբ) N fաfբfi L/ V [մգ/տարեկան]
որտեղ T- օրվա մեջ տրանսպորտի ակտիվ աշխատանքի ժամերն են,
qմ և qբ - մարդատար և բեռնատար ավտոմոբիլի` տվյալ նյութի արտանետման չափն է մեկ վայրկյանում,
kմ և kբ - մարդատար և բեռնատար ավտոմոբիլների քանակն է հոսքում,
N - փողոցով տրանսպորտի ժամային անցուդարձն է,
fա, fբ և fi - գործակիցներ են, որոնք հաշվի են առնում հոսքի արագության, ծովի մակարդակից տեղանքի բարձրության և փողոցների թեքության ազդեցությունը արտանետումների վրա,
Լ - փողոցի երկարությունն է,
V - տրանսպորտային հոսքի միջին արագությունն է:
Հաշվարկները ցույց են տալիս, որ վերը թվարկված թունավոր նյութերի արտանետումները Տաշիր քաղաքում տարեկան կազմում են.
ածխածնի մոնօքսիդ (CO) - 138 տ
ազոտի օքսիդներ (NOx) - 6.6 տ
ածխաջրածիններ (CmHn) - 13.7 տ
կոշտ նյութեր - 0.19 տ
II-6. Ինժեներական ենթակառուցվածքների հեռանկարային զարգացումը
Ինժեներական ենթակառուցվածքների ուրվագծերը նախագծելու համար որպես ելակետային տվյալներ օգտագործվել են`
- Տաշիր քաղաքի հատակագծային հորինվածքը կատարված «Հայնախագիծ» ԲԲԸ-ի կողմից:
- ՀՀ «Հայջրմուղկոյուղի» ՓԲԸ հյուսիսարևելյան տարածքային մասնաճյուղի «Տաշիր» ենթատեղամասի տվյալները քաղաքի առկա ջրամատակարարման և կոյուղացման վիճակի վերաբերյալ:
- ՀՀ «Հայաստանի էլեկտրացանցեր» ՓԲԸ «Դեբետ» մասնաճյուղի «Տաշիր» ցանցի տվյալները (N 047 28.06.06 թ.):
- «Հայռուսգազարդ» ՓԲԸ Լոռի Գ.Գ.Մ. «Տաշիր» տարածքային տեղամասի տվյալները (N 19/41 27.06.06 թ.) քաղաքի գազամատակարարման առկա վիճակի մասին:
- ՀՀ առողջապահության նախարարության պետական հիգիենիկ և համաճարակային տեսչության Լոռու մարզային կենտրոնի տվյալները Տաշիր քաղաքի սանիտարահիգիենիկ վիճակի վերաբերյալ:
- ՀՀ տարածքային կառավարման նախարարության ջրային տնտեսության պետական կոմիտեի նամակը (N16- ԳԱ 08/889 05.06.06 թ.) քաղաքի ջրամատակարարման բարելավման նախագծանախահաշվային փաստաթղթերի կատարման ժամկետների վերաբերյալ:
II-6.1. Ջրամատակարարում
Տաշիր քաղաքի խմելու-կենցաղային և արտադրական օբյեկտների խմելու որակի ջրամատակարարումն իրականացվում է Ակսյուտինի և Բազումի աղբյուրների համակարգերով, ըստ որում` Ակսյուտինի աղբյուրներից մեխանիկական եղանակով, Բազումի աղբյուրներից` ինքնահոս: Քաղաք մտնող ընդհանուր ջրաքանակը վերը նշված երկու աղբյուրներից կազմում է 79.0 լ/վրկ:
Ակսյուտինի համակարգի ջրատարը կառուցվել է 1994 թ. պողպատե խողովակներով (d=320 մմ, երկարությունը` 9.5 կմ):
Բազումի համակարգի ջրատարը կառուցվել է 1968 թ. պողպատե և չուգունե խողովակներով (d=319 մմ, երկարությունը` 35 կմ):
Երկու համակարգի ջրագծերում մեծ են հոսքակորուստները և դրանք կարիք ունեն վերանորոգման, վերականգնման:
Բնակավայրի ջրմուղի ներքին բաշխիչ ցանցը նույնպես կարիք ունի վերակառուցման և վերականգնման, իսկ որոշ հատվածներում` շրջանցման: Կորուստները ցանցում հասնում են մինչև 65 %-ի: Ջրմուղի գործող ներքին ցանցի 4.5 կմ-ը կարիք ունի հիմնանորոգման:
Քաղաք մուտք գործող Ակսյուտինի աղբյուրի ջուրը մղվում է ՕԿՋ, որը սնում է բնակավայրի տարածքի 60 % սպառողներին: Բազումի համակարգի ջուրն ուղղակի միացվում է մնացած 40 % տարածքի ջրամատակարարման ցանցին:
Գործող ՕԿՋ-ի ծավալը 2000 մ3 է: Նախկինում գործող 2x350 մ3 ծավալով ՕԿՋ-ները չեն գործում, կարիք ունեն վերակառուցման:
Մուտք գործող ջրերից աղտահանում կատարվում է միայն Ակսյուտինի աղբյուրների գլխամասային կառույցներում` հեղուկ քլորով: Բազումի համակարգի ջրերը չեն վարակազերծվում: Անհրաժեշտ է կառուցել քլորակայան:
Ջրամատակարարման նորմերը և հաշվարկային ժամանակաշրջանի ջրապահանջը և ջրահեռացման քանակը
Ջրամատակարարումը նախատեսվում է բնակչության խմելու, տնտեսակենցաղային, արտադրական այն ձեռնարկությունների համար, որոնց արտադրական կարիքների համար անհրաժեշտ է խմելու որակի ջուր, ինչպես նաև բնակավայրի հակահրդեհային կարիքների բավարարման համար:
Բնակչության մեկ մարդու միջին օրական ջրապահանջի քանակը, համաձայն ներկայումս գործող նորմերի, ընդունված է 200 լ/օր:
Չունենալով արտադրական ձեռնարկությունների արտադրանքի տեսականու և քանակի վերաբերյալ տվյալներ, որոնք հիմնականում չեն գործում, արտադրական կարիքների համար պահանջվող խմելու որակի ջրի քանակն ընդունված է բնակչության հաշվարկային ջրապահանջի 25 %-ի չափով:
Հակահրդեհային կարիքների համար պահանջվող ջրաքանակը հաշվարկված է համաձայն գործող նորմերի պահանջների (25-50 հազ. բնակչությամբ բնակավայրերի համար, միաժամանակյա արտաքին հրդեհների քանակը 2x20 լ/վրկ, իսկ ներքին հրդեհների համար` 2x2.5 լ/վրկ):
Հակահրդեհային նպատակների համար ընդհանուր ջրապահանջը կազմում է` 2x20+2x2.5=45 լ/վրկ: Հրդեհի տևողությունն ընդունվում է 3 ժամ:
Q=(45x3x3600):1000=486մ3
Հակահրդեհային ջրապահանջի վերականգնումը 24 ժամվա ընթացքում, որի համար անհրաժեշտ է`
Q=(486x1000):24x3600=5.6 լ/վրկ
Այդ նպատակով ընդհանուր ջրամատակարարման պահանջարկում հաշվարկված է 5.6լ/վրկ լրացուցիչ ջրաքանակ:
Խմելու, տնտեսական, արտադրական ձեռնարկությունների և հակահրդեհային կարիքների համար պահանջվող միջին օրական ջրաքանակի հաշվարկը:
աղ. N Հ-4.
|
N |
Ջրասպառողները |
քանակը (հազ.) |
ջրասպառման նորման լ/օր |
ջրապահանջը |
ջրահեռացում | ||
|
մ3/օր |
լ/վրկ |
մ3/օր |
լ/վրկ | ||||
|
1 |
Բնակչություն |
25.0 |
200 |
5000.0 |
58.0 |
5000.0 |
58.0 |
|
2 |
Արտադրություն |
25 % |
|
1250.0 |
14.5 |
1000.0 |
11.5 |
|
3 |
Հակահրդեհային կարիքներ |
|
|
486.0 |
5.6 |
- |
- |
|
Ընդամենը |
|
|
6736.0 |
78.0 |
6000.0 |
69.5 | |
|
4 |
Կորուստներ 20 % |
|
|
1347.0 |
16.0 |
- |
- |
|
Ամբողջը |
|
|
8083.0 |
94.0 |
6000.0 |
69.5 | |
* Արդյունաբերության համար հաշվարկված ջրապահանջը հետագայում անհրաժեշտ կլինի ճշտել:
Այսպիսով, ըստ կատարված հաշվարկների հեռանկարային ժամանակաշրջանի համար Տաշիր քաղաքի խմելու որակի ջրապահանջը կազմում է 8083.0 մ3/օր (94.0 լ/վրկ): Կեղտաջրերի քանակը 6000.0 մ3/օր (69.5լ/վրկ):
Քաղաքի հեռանկարային զարգացման խմելու որակի ջրապահանջը կբավարարվի Ակսյուտինի և Բազումի աղբյուրների համակարգերից: Ակսյուտինի աղբյուրներից պոմպի միջոցով, Բազումի աղբյուրներից` ինքնահոս, անջատելով Բազումի ջրատարի N 3 մարիչ հորը:
Ջրամատակարարման համակարգը և գոտիները
Տաշիր քաղաքի ջրամատակարարման համակարգը կենտրոնացված է` բնակչության խմելու-կենցաղային, արդյունաբերական և հակահրդեհային ջրապահանջներն իրականացվում են մեկ ջրատարով:
Հաշվի առնելով քաղաքի կառուցապատված տարածքի և ներկայացվող նոր գլխավոր հատակագծով նախատեսված կառուցապատման ենթակա տարածքների նիշերի ոչ մեծ տարբերությունը (1520մ-1485մ=35 մ), ջրմուղի ցանցում անհրաժեշտ թույլատրելի ճնշում և պահանջվող ջրաքանակ ապահովելու համար քաղաքի ջրամատակարարման ցանցը հետագայում ևս նախատեսվում է մեկ գոտիանի: Ջրամատակարարումը կիրականացվի ներկայումս գործող 2x2000 մ3 տարողությամբ ՕԿՋ-ներից, որոնց հատակի նիշը 1553 մ է:
Ըստ կատարված հաշվարկների, Տաշիր քաղաքում շուրջօրյա ջրամատակարարում ապահովելու, ինչպես նաև հակահրդեհային ջրաքանակ պաշարելու համար անհրաժեշտ է ունենալ 6700 մ3 ընդհանուր տարողությամբ ՕԿՋ-ներ: Ստորև բերվում է հաշվարկը.
- կարգավորման ծավալը Wկ=9886x0.3=2966 մ3
- հակահրդեհային կարիքներ Wհհ=486 մ3
- վթարային Wվթ=(9886x8):24=3295 մ3
Ընդհանուր ծավալը Wընդ=2966+486+3295=6682.0 մ3
Ներկայումս գործող ՕԿՋ-ների ծավալը 2x2000=4000 մ3, չգործող ՕԿՋ-ների ծավալը 2x350=700 մ3, նախատեսվում է վերագործարկել: Նախատեսվում է հաշվարկային ժամանակաշրջանի համար կառուցել ևս մեկ հատ 2000 մ3 ծավալով ՕԿՋ:
Այսպիսով, քաղաքի ընդհանուր օրվա կարգավորիչ ջրամբարների ծավալը կլինի 3x2000+2x350=6700 մ3, հատակի նիշը` 1553 մ, իրենց անհրաժեշտ սանպահպանության գոտիով:
II-6.2. Ջրահեռացում (կոյուղի)
Քաղաքը ներկայումս կոյուղացված է: Կոյուղու փողոցային ներքին ցանցը կառուցվել է 1960-1991 թթ., ասբոցեմենտե խողովակներով, տրամագծերը` 150-400 մմ, ընդհանուր երկարությունը` 15.2 կմ: Կոյուղու գլխավոր կոլեկտորը կառուցվել է 1995 թ., ասբոցեմենտե խողովակներով, երկարությունը` 11.6 կմ, տրամագիծը` 700 մմ: Կոյուղու տեխնիկական վիճակը խիստ անբավարար է, հաճախակի են խցանումները, կան կոտրված խողովակներ:
Հիմնանորոգման ենթակա հատվածների ընդհանուր երկարությունը 6600 մ է:
Ներկայումս քաղաքը չունի կոյուղու կեղտաջրերի մաքրման կայան: Կեղտաջրերն առանց մաքրման և վարակազերծման թափվում են Տաշիր գետը` համաճարակային հիվանդությունների լուրջ վտանգ առաջացնելով:
«Հայկոմուննախագիծ» ինստիտուտի կողմից 1990 թ. նախագծված 10.0 հազ. մ3/օր հզորությամբ մաքրման կայանի շինարարությունը չիրականացավ՝ ֆինանսական միջոցների բացակայության պատճառով (կայանը նախատեսված էր շրջակա բնակավայրերի ընդգրկման հաշվառումով): Վերը նշված նախագծով մաքրման կայանը նախատեսվում էր Տաշիր գետի ձախ ափին: Անավարտ մնաց նաև գետի աջ ափին կառուցվող պոմպակայանի շենքի շինարարությունը:
Նկատի ունենալով տարածքի ավելի մեծ թեքությունը (ավելի քիչ հողային աշխատանքների կատարում), սույն ուրվագծով նախատեսվում է նոր մաքրման կայանի կառուցում՝ գետի աջ ափին: Անհրաժեշտ է կատարել մաքրման կայանի վերանախագծում՝ հզորությունն ընդունելով 6.0 հազ. մ3/օր՝ նկատի ունենալով ջրամատակարարման նորմերի ներկայիս ընդունված քանակները:
Ըստ կատարված նախնական հաշվարկների, քաղաքի մաքրման ենթակա կեղտաջրերի միջին օրական քանակը հեռանկարային զարգացման ժամանակաշրջանի համար կազմում է 6000 մ3/օր:
Փողոցային և միջթաղամասային կոյուղատարներով կենցաղային և արտադրական կեղտաջրերը կհավաքվեն, կենթարկվեն լրիվ կենսաբանական մաքրման, որից հետո միայն կթափվեն Տաշիր գետը` պահպանելով շրջակա միջավայրի պահպանության սանիտարական պայմաններն ու պահանջները, ինչպես նաև հաշվի առնելով «Մակերևութային ջրերը հոսքային ջրերով աղտոտումից պահպանելու կանոններ»-ի պահանջները:
Արդյունաբերական ձեռնարկությունների կեղտաջրերն անհրաժեշտության դեպքում միայն կմիացվեն քաղաքի կոյուղու ցանցին:
Համաձայն ՀՀ ջրային տնտեսության պետական կոմիտեի N16-ԳԱ 08/889 05.06.06 գրության, Տաշիր քաղաքի ջրամատակարարման բարելավման աշխատանքներն ընդգրկված են համաշխարհային բանկի «Համայնքային ջրամատակարարում և ջրահեռացում» վարկային ծրագրում: Նախատեսված նախագծանախահաշվային փաստաթղթերի կատարման ժամկետը` մինչև 2006 թ. վերջը:
Նախագծային առաջարկություններ
Քաղաքի ջրամատակարարման վիճակը բարելավելու համար անհրաժեշտ է.
- Ջրամատակարարման գործող համակարգերի` գլխամասային կառույցների, սնող ջրատարների վերակառուցման և վերականգնման աշխատանքներ` վերացնելով կորուստները:
- Ջրամատակարարման ներքին ցանցի վերակառուցում` ըստ սույն նախագծով առաջարկված ջրամատակարարման գոտիավորման:
- Պահանջվող անհրաժեշտ տրամագծերի ճշտում` ըստ ջրամատակարարման ներքին բաշխիչ ցանցի ջրագծերի հիդրավլիկական հաշվարկի:
- Ջրասպառողներին անընդմեջ անհրաժեշտ ճնշում և ջրաքանակ ապահովելու համար իրականացնել օրվա կարգավորիչ ջրամբարների համապատասխան ծավալներ` իրենց սանպահպանման գոտիներով:
- Քաղաքի չկոյուղացված տարածքների, ինչպես նաև սույն գլխավոր հատակագծով նախատեսվող կառուցապատման տակ դրվող տարածքների կոյուղացում:
- Վթարված և շարքից դուրս եկած կոյուղագծերի և դիտահորերի վերակառուցում:
- Նոր մաքրման կայանի նախատեսում (նախագծված մաքրման կայանի վերանախագծում) գետի աջ ափին` քաղաքի հարավային մուտքի մոտ, 6.0 հազ. մ3/օր հզորությամբ:
- Նախքան Տաշիր գետը լցնելը` կեղտաջրերի լրիվ մաքրում և վնասազերծում` հաշվի առնելով մակերևութային ջրերն աղտոտումից պահպանելու պահանջները:
II-6.3.Էներգամատակարարում
II-6.3.1. Էլեկտրամատակարարում
Ներկայումս Տաշիր քաղաքի էլեկտրամատակարարման գլխավոր աղբյուր է հանդիսանում «Տաշիր» 110/35/10 կվ լարման, 2x10000 կվա հզորությամբ տրանսֆորմատորներով ենթակայանը: Կապը հանրապետության էլեկտրահամակարգի հետ իրականացվում է «Վանաձոր-2» 220/110/35/10 կվ լարման 2x125 Մվա հզորությամբ ենթակայանից` 110 կվ լարման մոտ 50 կմ երկարությամբ երկշղթա օդային գծերով: Քաղաքի բնակելի հասարակական, արտադրական օբյեկտների և արտաքին լուսավորության պահանջները բավարարվում են վերը նշված գլխավոր «Տաշիր» ենթակայանից: Էլեկտրամատակարարման բաշխիչ ցանցի 10 կվ լարման օդային գծերի երկարությունը 21.8 կմ է, մալուխային գծերինը` 0.3 կմ, 0.4 կվ լարման մալուխային գծերի երկարությունը 12.0 կմ, իսկ օդայինը` 62.4 կմ: Քաղաքում գործող 10/0.4 կվ լարման ենթակայանների քանակը 50 հատ է, որից 4 հատը` երկտրանսֆորմատորային, 46 հատը` մեկ տրանսֆորմատորային, ընդհանուր հզորությունը` 16.0 ՄՎԱ:
Էլեկտրաէներգիայի տարեկան գումարային ծախսը կազմում է 5950.0 հազ. կվտ.ժամ, որից կոմունալ-կենցաղայինը` 5400.0 հազ. կվտ. ժամ/տարի, իսկ արտադրական կարիքներինը` 550.0 հազ. կվտ. ժամ/տարի:
Քաղաքի էլեկտրամատակարարման տեխնիկական վիճակը բավարար է:
Էլեկտրական բեռնվածքների հաշվարկը հաշվարկային ժամանակաշրջանի համար
Առավելագույն հզորությունների քանակի որոշման համար հիմք է հանդիսացել ներկայացվող գլխավոր հատակագծի տվյալները, ըստ որի Տաշիր քաղաքի բնակչության հեռանկարային ժամանակաշրջանի քանակը 25.0 հազար է:
Հաշվարկային առավելագույն հզորությունը հաշվված է որպես հզորությունների գումար.
- Կոմունալ-կենցաղային պահանջների, հասարակական, կուլտուր կենցաղային շինությունների, ինչպես նաև արտաքին լուսավորության:
- Արդյունաբերական ձեռնարկությունների բեռնվածությունների:
Կոմունալ-կենցաղային, հասարակական, կուլտուր-կենցաղային շինությունների, արտաքին լուսավորության, ինչպես նաև ինժեներական ենթակառուցվածքների պահանջարկների հաշվարկը կատարված է համաձայն գործող նորմերի, ըստ որի մեկ մարդուն տարեկան հասանելիք էլեկտրաէներգիայի խոշորացված ցուցանիշն ընդունված է 1700 կվտ ժամ/տարի, իսկ տարվա ընթացքում օգտագործվող ժամերի քանակը` 5200:
Արտադրական ձեռնարկությունների կողմից պահանջվող էլեկտրաէներգիայի քանակը հետագայում կճշտվի, քանի որ հիմնականում չեն գործում չկա տվյալներ նրանց արտադրանքի, տեսականու քանակի վերաբերյալ:
Տաշիր քաղաքի էլեկտրաէներգիայի գումարային պահանջարկի հաշվարկը` զարգացման հաշվարկային ժամանակաշրջանի համար
աղ. N Հ-5.
|
N |
Սպառողները |
քանակը հազ. |
մեկ մարդու համար պահանջվող էլ.էներգիայի քանակը կվտ/ժամ/տարի |
էլ.էներգիայի գումարային ծախսը հազ.կվտ ժամ/տարի |
Տարվա օգտագործվող ժամերի քանակը ժամ |
մաքսիմալ պահանջվող հզորությունը կվտ |
|
1 |
Բնակչությունը |
25.0 |
1700 |
42500.0 |
5200 |
8773.0 |
|
2 |
Կորուստները և չնախատեսված ծախսեր 30 % |
|
|
12750.0 |
|
2632.0 |
|
Ընդամենը |
|
|
55250.0 |
|
11405.0 | |
|
3 |
Արտադրություն |
|
|
1200.0 |
|
2281.0 |
|
Ամբողջը |
|
|
56450.0 |
|
13686.0 | |
Ըստ կատարված հաշվարկների քաղաքի հեռանկարային զարգացման ժամանակաշրջանի համար պահանջվող հզորությունը կազմում է մոտ 14.0 Մվա.
- կոմունալ-կենցաղայինը` 11.4 Մվա,
- արտադրական կարիքներինը` 2.3 Մվա:
Վերը նշված պահանջարկը, ինչպես ներկայումս, այնպես էլ հեռանկարային զարգացման ժամանակաշրջանի համար, կբավարարվի գործող «Տաշիր» ենթակայանից, որի ընդհանուր հզորությունը 20.0 Մվա է:
Նախագծային առաջարկություններ
- Էլեկտրական համակարգի արդիականացում, վերազինում ժամանակակից պահանջներին համապատասխան:
- Համակարգի համապատասխանեցում անվտանգության տեխնիկայի պահանջներին:
- Էլեկտրաէներգիայի անխափան մատակարարում ապահովելու համար համակարգում 2-3 բաշխիչ կետերի իրականացում, 10/0.4 լարման ցանցային ենթակայանների անցում երկտրանսֆորմատորային կայանների:
- Նոր թաղամասերի համար անհրաժեշտ 10 կվ և 0.4 կվ լարման ցանցի նախատեսում:
- Փայտյա հենասյուների, 10 և 0.4 կվ լարման մալուխային գծերի փոխարինում նորերով:
II-6.3. 2.Գազամատակարարում
Տաշիր քաղաքը գազիֆիկացված է: Գազամատակարարումն իրականացվում է ՀՀ գազամատակարարման համակարգի Վրաստան-Ալավերդի-Վանաձոր բարձր ճնշման գազատարի «Հեր-հեր» գկկ-ից սկիզբ առնող 219 մմ տրամագծով գազատարի Հերհեր-Ստեփանավան-Տաշիր հատվածից:
Համաձայն «Հայռուսգազարդ» փբը-ի Տաշիր մասնաճյուղի գրավոր տվյալների 27.06.06 թ. N 19/14 շահագործվող գազատարների ընդհանուր երկարությունը 29.6 կմ է, գործող գազակարգավորիչ կետերի քանակը 11 հատ է, որից 3 գկկ, իսկ 8-ը պգկկ:
Գազաօգտագործման ընդհանուր քանակը 2005 թ. դրությամբ կազմել է 2526.0 հազ. մ3, որից կոմունալ կենցաղային կարիքների համար` 1945.0 հազ. մ3, արտադրական կարիքների համար` 581.0 հազ. մ3: Բաժանորդների ընդհանուր քանակը` 2296:
Ներկայումս քաղաքում գործող կաթսայատներ չկան:
Գազի ծախսը հաշվարկային ժամանակաշրջանի համար
Գազի ընդհանուր պահանջարկի նախնական հաշվարկները կատարելիս հաշվի է առնված բնական գազով ապահովել.
- Բոլոր բնակելի և հասարակական նշանակության շենքերի (կրթական, առողջապահական, մշակութային, վարչական) ջեռուցման համար անհրաժեշտ կարիքների բավարարումը:
- Բնակչության տաք ջրամատակարարման և սննդի պատրաստման համար անհրաժեշտ պահանջարկը:
- Հասարակական նշանակության օբյեկտների և բնակչության սպասարկման ձեռնարկությունների համար անհրաժեշտ պահանջարկը:
- Արտադրական ձեռնարկությունների ջեռուցման, օդափոխության և տեխնոլոգիական կարիքների համար պահանջարկը:
Արտադրական ձեռնարկությունների պահանջարկը հետագայում կարիք ունի ճշգրտելու, քանի որ ներկայումս դրանք հիմնականում չեն գործում:
Գազամատակարարման աղբյուրը, ինչպես ներկայումս, այնպես էլ հետագայում կլինի «Տաշիր» գազաբաշխիչ կայանը:
Ըստ կատարված նախնական հաշվարկների, Տաշիր քաղաքի գազի տարեկան ծախսը հեռանկարային ժամանակաշրջանի համար կազմում է 5300.0 հազ.մ3, որից կոմունալ-կենցաղային կարիքների համար` 3500.0 հազ. մ3, արտադրական կարիքների համար` 1800.0 հազ. մ3:
Նախագծային առաջարկություններ
Ներկայացվող գլխավոր հատակագծի ուրվագծով քաղաքի բնակչության կենցաղային, տնտեսական, ինչպես նաև արտադրական կարիքների բավարարման համար ջերմային աղբյուր է հանդիսանում բնական գազը, ինչի արդյունավետ և անվտանգ շահագործման համար առաջարկվում է.
- Գազափոխադրման համակարգի վերակառուցում և վերազինում:
- Միջբնակարանային ցանցի անվտանգ շահագործում և հուսալիության բարձրացում:
- Գազամատակարարման ներտնային ցանցի տեխնիկական վիճակի բարելավում:
- Ծխաօդատար ուղիների հաճախակի ստուգումներ:
- Գազասպառման ճշգրիտ և թափանցիկ հաշվառում:
- Կառուցապատման տակ դրվող տարածքների գազամատակարարման նախագծանախահաշվային փաստաթղթերի կատարում և իրականացում:
II-6.3.3. Ջերմամատակարարում
Մինչև 1991 թ.-ը Տաշիր քաղաքում գործել է կենտրոնացված ջերմային համակարգ: Հարկաշատ բնակելի հասարակական շենքերի ջեռուցման կարիքներն իրականացվում էր հինգ փոքր հզորության կաթսայատներից, տեղակայված «Տուլա-3» տիպի կաթսաներով: Արդյունաբերական օբյեկտների (էմալապատ ամանեղենի գործարան և պանրի գործարան) ջերմամատակարարումն իրականացվում էր սեփական կաթսայատներից «Տուլա-3» տիպի կաթսաներով:
Շուրջ 15 տարի չի գործել քաղաքի ջերմային համակարգը, շարքից դուրս են եկել ամբողջ արտաքին և ներտնային ջերմային ցանցերը, թալանվել են կաթսայատները, սպառել են շահագործման գերնորմատիվային ժամկետները: Համակարգի գործունեության ընթացքում սպառողների կողմից կային մշտական բողոքներ, մեծ էին ջերմային կորուստները: Դրանք հասնում էին 30-40 %-ի, ինչի հետևանքով կաթսայատներում ավել գազ էր այրվում, որն էլ իր հերթին բերում էր օրական գումարային ծախսերի, ինչպես նաև օդի աղտոտվածության:
Ցածրահարկ բնակելի շենքերի և առանձնատների ջեռուցումը, ինչպես նախկինում, այնպես էլ ներկայումս, իրականացվում է բնակարանային փոքր հզորության կաթսաներով կամ գազավառարաններով:
Տաք ջրի ստացումն իրականացվում է գազասարքավորումների միջոցով կամ էլեկտրականությամբ:
Ելնելով իրավիճակից, բարձրահարկ բնակելի և հասարակական շենքերի ջեռուցումը նախատեսվում է իրականացնել լոկալ ջեռուցման համակարգով, կառուցելով առանձին կաթսայատուն մեկ կամ մի քանի շենքերի համար` կարճ ջերմային ցանցերով:
Նախագծային առաջարկություններ
Այսպիսով, Տաշիր քաղաքի բազմաբնակարան, քոթեջային, հասարակական, առողջապահական, մշակութային, վարչական շենքերի ջեռուցման կարիքների բավարարումը նախատեսվում է ապակենտրոնացված ջերմամատակարարման համակարգով:
- Կառուցել առանձին փոքր հզորության կաթսայատուն մեկ կամ մի քանի շենքերի համար` կարճ արտաքին ցանցերով:
- Հնարավոր տարբերակ է նաև ջերմությունը սպառող շենքերի տանիքներում փոքր հզորության կաթսայատան տեղադրումը, որով կբավարարվի տվյալ շենքի ջերմային ծախսերը` չունենալով արտաքին ջերմային ցանց:
- Վերը նշված դեպքերում, ինչպես նաև առանձին բնակարաններում ջերմային կարիքները ապահովելու համար փոքր հզորության կաթսայի կամ վառարանի տեղադրման դեպքում անվտանգության պահանջների խստագույն պահպանում:
II-6.4. Կապ
Տաշիր քաղաքի հեռախոսային կապն իրականացվում է «Արմենթել» ՓԲԸ-ի «Տաշիր» մասնաճյուղի 3100 համարով ավտոմատ կայանի միջոցով: Կայանում գործում է 2800 համար: Կայանի հզորությունը կմեծացվի պահանջարկի դեպքում:
II-7. Շրջակա միջավայրի պահպանություն
II-7.1. Շրջակա միջավայրի քաղաքաշինական-էկոլոգիական վիճակի վերլուծություն
● Շրջակա միջավայրի պահպանության հիմնական պահանջները սկզբունքորեն կիրառվել են նախագծման ընթացքում: Յուրաքանչյուր քաղաքաշինական-հատակագծային լուծում (քաղաքային տարածքի աճի սահմանափակում, անտառտնտեսության և գյուղատնտեսական հողերի առավելագույն պահպանում, բնական լանդշաֆտների գնահատում, բնական ռեսուրսների պոտենցիալ հնարավորությունների բացահայտում, ռեկրեացիոն գոտիների կազմկակերպում, ինժեներական պաշտպանության միջոցառումների մշակում, ինժեներական, տրանսպորտային, տեխնիկական ենթակառուցվածքների կատարելագործում) իր մեջ ներառում է շրջակա միջավայրի բարելավման, տարածքային և բնական ռեսուրսների ռացիոնալ օգտագործման հիմունքները:
● Շրջակա միջավայրի պահպանության հիմնական սկզբունքները (կառուցապատման համար տարածքների բարենպաստության աստիճաններ, գեոդինամիկ պրոցեսներ և երևույթներ, սեյսմատեկտոնական պայմաններ, լանդշաֆտների դասակարգում և գնահատում) դիտարկված են նաև «Տարածքի համալիր գնահատական» (I-3.1, I-3.2) և «Քաղաքի դիրքը մարզի տարաբնակեցման համակարգում» ենթագլուխներում:
● Սույն ենթագլխում տրված են շրջակա միջավայրի պահպանության միջոցառումները` հաշվի առնելով.
- Անտրոպոգեն բեռնվածության չափը (մթնոլորտային օդի, հողածածկույթի, մակերևութային և խորքային ջրերի, բնական այլ տարբեր աղտոտվածության աղբյուրները և աղտոտվածության բնութագիրը):
- Բնական միջավայրի ինքնամաքրման հատկանիշները:
II-7.2. Մթնոլորտային օդի պահպանություն
Տաշիր քաղաքի տեղադրվածությունը Լոռու դաշտի հյուսիսային մասում, Տաշիր գետի լայն գետահովտում, շրջափակվածությունը խոնավ լեռների (Սոմխեթի) ճյուղավորություններով, անհողմությունների կրկնելիությունը (ձմռանը` 39 %, գարնանը` 37 %, ամռանը` 44 %, աշնանը` 42 %), բարձր հարաբերական խոնավությունը (միջին տարեկան` 74 %), քամու գերակշռող ուղղությունները գետահովտի ուղղությամբ (հյուսիսային, հարավարևմտյան), փոքր արագությունները (2.1 մ/վրկ) պայմանավորել են մթնոլորտի աղտոտվածության միջին պոտենցիալ (ամռանը` 4 կարգի, ձմռանը` 4-5 կարգի), որը սահմանափակում է շրջակա միջավայրը (հատկապես մթնոլորտային օդը) աղտոտող արդյունաբերական օբյեկտների տեղադրումը:
Ըստ գործող նորմատիվային փաստաթղթերի բնակավայրի գոյություն ունեցող (9.5 հազ.) և հեռանկարային (25.0 հազ.) բնակչության քանակով նախագծում հաշվարկվել է օդն աղտոտող տարրերի միջինացված քանակները.
աղ. N Հ-6.
|
Բնակչության քանակը |
Կոնցենտրացիան օդում մգ/մ3 | |||
|
ծծմբական գազ |
ազոտի երկօքսիդ |
ածխածնի օքսիդ |
փոշի | |
|
15-50 |
0.1 |
0.04 |
3.0 |
0.4 |
Տաշիր քաղաքում 01.01.2006թ. դրությամբ մթնոլորտային օդն աղտոտող արդյունաբերական օբյեկտներ չկան: Քաղաքում գործում են մի քանի ՍՊԸ-ներ, որոնք օդը չեն աղտոտում և թափոններ չեն առաջացնում:
Մթնոլորտային օդի աղտոտվածություն է առաջացնում քաղաքի կենտրոնով անցնող Երևան-Ստեփանավան-Տաշիր-Վրաստանի սահման միջպետական ավտոմայրուղով իրականացվող տարանցիկ փոխադրումները:
Ըստ գործող նորմատիվային փաստաթղթերի (տես օգտագործված գրականությունը) մայրուղիների ինտենսիվության մեծացման և բնակչության լրիվ դեմոգրաֆիական տարողունակության տեղաբաշխման պայմաններում քաղաքում արտանետումների քանակը կարող է հասնել` ածխածնի օքսիդինը` 2.5-15 հազ. տոննա/տարի, իսկ ազոտի երկօքսիդինը` 0.37-1.5 հազ.տոննա/տարի:
Փողոցային ցանցը նույնպես պատճառ է հանդիսանում աղմուկի դիսկոմֆորտային պայմանների առաջացմանը: Հաշվի առնելով, որ աղմուկի էկվիվալենտ չափման համար տվյալներ չկան, կատարվել են հաշվարկներ աղմուկի մակարդակի որոշման համար` օգտագործելով աղմուկի աղբյուրի ակուստիկ բնութագրերն ըստ գործող ստանդարտների և մեթոդական հանձնարարականների միջինացված տվյալների (մանրմասն տրված է «Տրանսպորտի հեռանկարային զարգացումը» ենթագլխում): Քաղաքի բնակելի գոտում աղմուկի հաշվարկային մակարդակը կհասնի 52.0-54.5 դԲԱ (թույլատրելի նորմերը` 55 դԲԱ ցերեկը, 45 դԲԱ գիշերը):
Մթնոլորտային օդի և աղմուկի մակարդակի աղտոտվածության օջախների ազդեցությունը փոքրացնելու նպատակով նախագծով նախատեսված է.
- Արդյունաբերական օբյեկտների վերագործարկում և նորերի կառուցում միջազգային ստանդարտներին համապատասխանող, շրջակա միջավայրին նվազագույն վնաս հասցնող առաջավոր տեխնոլոգիաներով:
- Տարանցիկ միջպետական ճանապարհի դուրսբերում քաղաքից:
- Հասարակական կանաչ զանգվածների մեծացում` հասցնելով նորմատիվային չափերին, ճանապարհների, փողոցների և այլ օբյեկտների (արդյունաբերական, ագրոարդյունաբերական օբյեկտներ, գերեզմանոցներ) սանպահպանման գոտիների կանաչապատում (տրված է «Քաղաքի հատակագծային կառուցվածքը» ենթագլխում և համապատասխան գծագրում):
II-7.3. Մակերևութային և խորքային ջրերի պահպանություն
● Տաշիր քաղաքի տարածքով հոսում է Տաշիր գետը, իսկ քաղաքային տարածքի (հիմնականում Տաշիր գետի աջափնյա մասը) տեղադրված է Լոռու խորքային խմելու ջրերի հանքավայրի արևելյան մասում:
Հանքավայրի խոշոր ջրատար հորիզոնը, որը սնվում է Խոնավ լեռներից, ուղղված է դեպի հարավ-արևելք և բեռնաթափվում է Տաշիր և Ձորագետ գետերի հովիտներում: Ջրատար հորիզոնը բեռնաթափվում է աղբյուրների երեք հզոր խմբերով (Նովոսելցևո` 505.2 լ/վրկ, Ակսյուտինի` 345.5 լ/վրկ, Կիզկալայի (Ախթալա)` 653.0 լ/վրկ պաշարներով), որոնք օգտագործվում են ջրամատակարարման նպատակով:
Բացի վերը նշված հիմնական ջրատար հորիզոնից, մակերևույթից 0.5-10 մ խորության վրա տարածված է ալյուվիալ-պրոլյուվիալ նստվածքների հետ կապված ջրատար հորիզոն (0.5-25.0 մ հզորությամբ), որի պաշարները կազմում են 24.7 լ/վրկ «B» խմբով: Այդ ջրերը հորատանցքերի միջոցով կարող են օգտագործվել ոչ կենտրոնացված ոռոգման նպատակով:
Տարածված է նաև հրաբխային նստվածքների հետ կապված ջրային հորիզոն` 28.8 լ/վրկ (C1-խմբի):
Լոռու խմելու ջրերի հանքավայրի և Տաշիր գետի ջրերն աղտոտվում են Տաշիր քաղաքի կոմունալ-կենցաղային ջրերից, որոնք կոյուղատարով հեռացվում են և առանց մաքրման լցվում Տաշիր գետը: (ՀՀ առողջապահության նախարարության պետական հիգիենիկ և հակահամաճարակային տեսչության Լոռու մարզային կենտրոնի պետի նամակը):
Այսպիսով, քաղաքի և շրջակա բնակավայրերի ոչ լրիվ կոյուղացման, գոյություն ունեցող կոյուղատարի մաշվածության և մաքրման կայանի բացակայությունը վտանգ է սպառնում խմելու ջրի հանքավայրին և Տաշիր գետին:
● Տաշիր գետը սկիզբ է առնում Խոնավ լեռներից, քաղաքի հարթ տարածքով հոսում է դանդաղ` առաջացնելով ճահճապատ տեղամասեր: Գետը սնվում է գրունտային (30 %), ձնհալքի (20-25 %) և անձրևաջրերով: Գարնանային հորդացումները սկսվում են ապրիլի կեսերից և վերջանում հունիսի վերջին տասնօրյակում:
Տաշիր գետը նաև հեղեղաբեր է, հեղեղները կարող են վնաս հասցնել շրջակա միջավայրին: Քաղաքի տարածքում գետի ափերը ամրացված են հենապատերով, գետի լայնությունը համապատասխանում է հեղեղների, վարարումների առավելագույն ելքերին: Բայց գետի հունը ծանրաբեռնված է բերվածքներով, որի հետևանքով առավելագույն ելքերը կարող են ողողել քաղաքի տարածքը: Առաջնահերթ անհրաժեշտ է գետի հունի մաքրում, հենապատերի վերանորոգում:
Այսպիսով, մակերևութային և խորքային ջրերն աղտոտումից պաշտպանելու համար նախատեսված է.
- Արդյունաբերական և ագրոարդյունաբերական օբյեկտների տեղադրում միջազգային ստանդարտներին համապատասխանող, շրջակա միջավայրին նվազագույն վնաս հասցնող տեխնոլոգիաներով, օբյեկտների սանպահպանման գոտիների ապահովում:
- Կոյուղու ցանցի վերանորոգում, վերազինում` կոյուղու մաքրման կայանի կառուցումով քաղաքի հարավային հատվածում միջազգային ստանդարտներին համապատասխանող տեխնոլոգիաներով (ապահովելով սանիտարական պահպան գոտին), իրականացնելով կեղտաջրերի եռաստիճան մաքրումը (մեխանիկական, ֆիզիկական-քիմիական, կենսաբանական), հետագա խորը մաքրումով:
- Ջրամատակարարման ցանցի վերակառուցում, վերազինում` ջրամատակարարման գոտիների հաստատումով:
- Ջրի որակի ապահովման նպատակով բակտերոլոգիական և քիմիական լաբորատորիաների կառուցում և վերակառուցում:
- Ջրամատակարարման քլորակայանների վերակառուցում, նոր տիպի քլորատորների տեղադրում:
- Ջրամատակարարման, ջրահեռացման համակարգի տվյալների բազայի ստեղծում:
- Տաշիր գետի հունի մաքրում, հենապատերի վերանորոգում:
- Հակահեղեղային միջոցառումների իրականացում (Տաշիր գետի աջափնյա վտակների վրա):
II-7.4. Տարածքային և հողային ռեսուրսների պահպանություն
II-7.4.1. Տարածքային ռեսուրսների պահպանություն
Տաշիր քաղաքը տեղակայված է Լոռու սարահարթի վրա, Տաշիր գետի հովտում: Քաղաքի տարածքը հարթ է, բացարձակ բարձրությունները տատանվում են 1475-1530 մ, միջին բարձրությունը` 1507 մ:
Քաղաքային տարածքը շրջապատված է գյուղատնտեսական նշանակության բարձր որակի հողերով: Միայն քաղաքի հյուսիսային, հյուսիսարևմտյան, հյուսիսարևելյան, հարավարևմտյան մասերում տարածված են ցածրարժեք արոտավայրեր:
Տարածքի էկոլոգիական հավասարակշռության պահպանման, տարաբնակեցման համակարգի անհավասարակշռության աստիճանական վերացման, ինչպես նաև գյուղատնտեսական հողերի պահպանման նպատակով քաղաքի համար սահմանված է տարածքային աճի սահմանափակման ռեժիմ` ներքաղաքային տարածքային ռեզերվների օգտագործմամբ (քաղաքի հյուսիսային, հյուսիս-արևմտյան, հարավ-արևմտյան, հարավ-արևելյան հատվածներում):
Բնակելի բոլոր թաղամսերի համար ընտրված են բնակչության և կառուցապատման նորմերին համապատասխանող խտություններ, մշակված են ինժեներական նախապատրաստման միջոցառումներ` տարածքների կայունությունն ապահովելու նպատակով:
II-7.4.2. Հողաբուսական ծածկույթի պահպանություն
● Տաշիր գետի գետահովիտը, որտեղ տեղադրված է Տաշիր քաղաքը, գտնվում է լեռնատափաստանային գոտում: Գոտու հողերը հիմնականում օգտագործվում են որպես խոտհարքներ: Այդ հողերը հաճախ կոչվում են «Ճալաքարային սևահողեր», քանի որ դրանց կտրվածքում 25-50 սմ խորության վրա կուտակված են կավախառն ճալաքարային շերտերը: Հողերը հիմնականում օգտագործվում են գյուղատնտեսական նպատակներով (խոտհարքեր, վարելահողեր): Տաշիր քաղաքում տնամերձ հողամասերն օգտագործվում են որպես այգիներ և բանջարանոցներ: Գոտու բուսական ծածկույթը ներկայացված է մարգագետնատափաստանային բուսական խմբակցություններով: Խոտհարքներում գերիշխում են կատվադաղձը, անմոռուկը, թթվիճները, խոշոր կակաչները, անիսոնը, հրանունկները, պարսկական լվածաղիկը և օշոշը: Ռելիեֆի առավել գոգավոր մասերում կան լճակներ, որոնցիցի մեծ մասն արդեն բուսակալված են բոշխի կամ ջրոսպի թավուտներով:
Միանգամայն հնարավոր է միջամտել լճակների (քաղաքի հյուսիսային, հարավային մասերում) հետագա բուսակալման պրոցեսին և ընդհատել այն` կտրատելով ու դուրս հանելով կուտակված օրգանական զանգվածը, որը կարելի է օգտագործել որպես օրգանական պարարտանյութ կամ վառելիք:
Լճակների պահպանումն ունի լանդշաֆտային և ջրատնտեսական նշանակություն:
● Տաշիր քաղաքի հողածածկույթին վնաս են հասցնում Տաշիր գետի և դրա վտակների (հատկապես աջափնյա) հեղեղումները: Սույն նախագծով մշակված են հակահեղեղային միջոցառումներ (տրված է I-3.2.1.5. ենթագլխում):
● Հողածածկույթին վնաս են հասցնում նաև կենցաղային կոշտ թափոնները: Տաշիր քաղաքում գոյություն ունեցող (քաղաքից 3 կմ հարավ, Երևան-Տաշիր ճանապարհի ձախ կողմում) հարմարեցված աղբավայրը չի համապատասխանում սանպահպանման նորմերին: Նախագծով աղբամշակման պահանջը հաշվարկված է ըստ գործող նորմերի (СИиП 2 07.01.89) գոյություն ունեցող (9.5) և հեռանկարային (25.0 հազ.) բնակչության համար:
աղ. N Հ-7.
|
Կենցաղային կոշտ թափոններ |
Կենցաղային աղբը 1 մարդ/տարի հաշվարկով (կգ) |
9.5 հազ. բնակչ.համար (հազ. տոննա/տարի) |
25.0 հազ. բնակչ. համար (հազ. տոննա/տարի) |
|
Քաղաքում ընդհանուր քանակը հասարակական շենքերի հաշվառումով |
200-250 |
2.3 |
6.2 |
Նախագծով նախատեսված է նոր աղբավայրի քաղաքից հարավ-արևելք ընկած տարածքում (նախկին անասնապահական ֆերմայի տեղում) սանպահպանման նորմերին համապատասխան:
● Հողային ծածկույթը, ինչպես նաև մակերևութային և խորքային ջրերն աղտոտվում են նաև տնամերձ և սեփականաշնորհված հողամասերում, որտեղ մանր հողակտորների պայմաններում անկանոն և չկառավարվող է դարձել հանքային պարարտանյութերի և թունաքիմիկատների օգտագործումը:
Նախագծով նախատեսվում է պարարտանյութերի և թունաքիմիկատների կենտրոնացում համայնքի ենթակայության տալ` համապատասխան տեխնոլոգիաներով պահեստների կառուցումով, ինչպես նաև մասնագիտական մակարդակով պարարտանյութերի և թունաքիմիկատների չափաբաժինների որոշում, որը հնարավոր է փոքր և միջին ֆերմերային տնտեսությունների կայունացման ճանապարհով:
● Հողային ծածկույթի, ինչպես նաև մակերևութային և խորքային ջրերի աղտոտման աղբյուր են հանդիսանում գերեզմանոցները: Տաշիր քաղաքի գերեզմանոցը գտնվում է քաղաքի արևմտյան մասում, արդյունաբերական գոտում: Գերեզմանոցի սանպահպանման գոտին պահպանված է, ունի ռեզերվային տարածք: Գերեզմանոցը ցանկապատված է:
Որպես առաջնահերթ միջոցառում նախատեսվում է ցանկապատի պարագծով կանաչապատում:
● Հողերի աղտոտման տեսակետից առավել վտանգավոր է ավտոմոբիլային տրանսպորտի գործունեությունը, որը հիմնականում պոլիքլորացված արոմատիկ ածխաջրածինների (ՊԱԱ) աղբյուր է: Արտանետումների քանակը Տաշիր քաղաքում տրված է II-5.4. «Տրանսպորտի հեռանկարային զարգացումը» ենթագլխում:
Ավտոտրանսպորտից հողերի աղտոտման աղբյուրը փոքրացնելու նպատակով նախատեսված է տարանցիկ ճանապարհի դուրս բերում քաղաքից, ճանապարհների և փողոցների սանպահպանման գոտիների կանաչապատում, ինչպես նաև հասարակական կանաչի մեծացում` հասցնելով գործող նորմերին:
● Այսպիսով, հողաբուսական ծածկույթը դեգրադացումից, աղտոտումից պաշտպանելու նպատակով սույն նախագծով նախատեսվում է.
- Հակահեղեղային միջոցառումներ,
- Նոր աղբավայրի տարածքում, ՀՀ կառավարության կողմից հավանության արժանացած, միջազգային ստանդարտներին համապատասխանող աղբամշակման գործարանի կառուցումով (փոքր մոդուլներով):
- Հասարակական կանաչ տարածքների համապատասխանեցում գործող նորմերին:
- Տարբեր օբյեկտների (արդյունաբերական, ագրոարդյունաբերական օբյեկտներ, պահեստներ, գերեզմանոցներ, աղբավայրեր, ճանապարհներ, փողոցներ) սանպահպանման գոտիների սահմանում և կանաչապատում:
- Փոքր և միջին չափի ֆերմերային տնտեսությունների ստեղծում` ագրոտեխնիկական, ագրոմելիորատիվ միջոցառումների իրականացման հնարավորությունների ստեղծում:
II-7.5. Պատմամշակութային հուշարձանների պահպանություն
Տաշիր քաղաքի դիրքը Երևան-Վանաձոր-Ստեփանավան-Տաշիր-Վրաստանի սահման միջպետական և Տաշիրը Գյումրի-Վրաստանի սահման միջպետական ճանապարհի հետ կապող հանրապետական նշանակության ճանապարհների խաչմերուկում, քաղաքի շրջակայքի, ինչպես նաև տարածաշրջանի պատմամշակութային հուշարձանների առկայությունը, տարածաշրջանի համայնքների գոյություն ունեցող և նախագծվող կապերը Տաշիր քաղաքի հետ հնարավորություն են տալիս քաղաքը դիտարկելու որպես հենակետային բնակավայր:
Տաշիրի սույն նախագծով նախատեսված ռեկրեացիոն ենթագոտու պատմամշակութային հուշարձանների վերահսկողությունը և տուրիստական երթուղիների կազմակերպումն իրականացնելու համար (հուշարձանների անվանացանկը և բնութագրերը տրված են «Տարածքի համալիր գնահատականը» ենթագլխում):
Սույն նախագծով «Պատմամշակութային հուշարձաններ» գծագրի վրա (ՀՀ Մշակույթի և երիտասարդության հարցերով նախարարության տվյալներով) տրված են.
- Հուշարձանների բուն տարածքները, որտեղ արգելվում են ցանկացած շինարարական կամ այլ բնույթի աշխատանքներ,
- Հուշարձանների խմբային պահպանման գոտիները,
- Մշակութային շերտի պահպանման գոտիները (պեղման գոտի),
- Պոտենցիալ պեղման գոտիները:
Վերջին երեք գոտիներում ցանկացած շինարարական աշխատանքներ կարելի է սկսել միայն պեղումների ավարտից հետո:
Նախագծով պահպանվում են բոլոր վերը նշված գոտիների սահմանված ռեժիմները:
II-8. Քաղաքացիական պաշտպանության միջոցառումներ
Ներածություն
Քաղաքի տարածքի ինժեներաերկրաբանական նախապատրաստումը, տարերային և տեխնածին վտանգավոր երևույթներից պաշտպանությունը, ինչպես նաև քաղաքացիական պաշտպանության ինժեներատեխնիկական միջոցառումների իրականացումը նպատակաուղղված են բնակավայրի տարածքում անվտանգ, բարենպաստ, կայուն կենսամիջավայրի ձևավորման ապահովմանը:
Քաղաքացիական պաշտպանության կարևորագույն միջոցառումներից է բնակչության պատսպարումը ապաստարաններում, որոնք ներկայումս քաղաքի տարածքում բացակայում են: Գլխավոր հատակագծում ներկայացված ապաստարանների անհարժեշտ ծավալները հաշվի առնելով պետք է ստեղծվեն ապաստարաններ, դրանք պահվեն պատրաստ վիճակում և օգտագործվեն առաջին իսկ անհրաժեշտության դեպքում:
Քաղաքի գլխավոր հատակագծում քաղաքացիական պաշտպանության հարցերին լուծումներ տալու համար հիմք են հանդիսացել «Քաղաքացիական պաշտպանության ինժեներատեխնիկական միջոցառումների նախագծման «Гражданстрой»-ի ВСН ГО - 38-82 և ВСН ГО - 38-83 հրահանգները»:
Ընդհանուր բնութագիրը
Տաշիր քաղաքը գտնվում է Թումանյան երկաթուղային կայարանի հյուսիսարևմտյան կողմում, 47 կմ հեռավորության վրա:
Տնտեսության առաջավոր ճյուղը պանրագործությունն է, որը հիմնված է զարգացած անասնապահության և համապատասխանորեն կերային կուլտուրաների լայնորեն մաշկման վրա:
Քաղաքում գործում են երեք հանրակրթական միջնակարգ դպրոց և պրոֆտեխուսումնարան:
Տարերային վտանգավոր երևույթները
Տաշիր քաղաքը ՀՀՇՆ-II 2.0294 ՀՀՇՆ-II 2. 0306 նորմատիվ սեյսմիկ շրջանացման քարտեզների համաձայն, տեղակայված է երկրորդ գոտում, որտեղ հնարավոր ուժեղ երկրաշարժերի դեպքում գրունտների հորիզոնական առավելագույն արագացումները գնահատված են 0,3 g. ինտենսիվությունը 8-9 բալ: Քաղաքը տեղակայված է Ձորագետի Տաշիր վտակի ավազանում, որտեղ գեոմորֆոլոգիական տեսակետից փոքր թեքություններով ներկայացված սարահարթ է: Տարածքին բնորոշ են մակերեսային ողողումները, սեզոնային հատկապես գետերի գարնանային հեղեղումներն ու առափնյա տարածքների ջրածածկումները:
Տեխնածին վտանգավոր երևույթները
Տաշիր քաղաքում քիմիական վտնագավոր օբյեկտներ չկան:
Քաղաքում տեխնածին արտակարգ իրավիճակների օջախներ են համարվում՝
- կոմունալ և կենցաղային գազատարները,
- քաղաքի խմելու ջրագծերը, էներգամատակարարման և կոյուղագծերը,
- կամուրջները,
Տեխնածին արտակարգ իրավիճակներից խուսափելու համար անհարժեշտ է՝
- քաղաքի համար կառուցել կենցաղային կեղտաջրերի կենսաբանական մաքրման կայան և ապահովել դրա արդյունավետ աշխատանքը.
- ապահովել քաղաքի կոմունալ, կենցաղային գազատարների, խմելու ջրագծերի կոյուղագծերի, էնեգամատակարարման գծերի, ճանապարհների անխափան աշխատանքը՝ ժամանակին կատարելով դրանց պլանային նախազգուշական վերանորոգման պրոֆիլակտիկ աշխատանքները.
- բենզագազալցավորման կայանները տեղակայել գոյություն ունեցող նորմաների համաձայն.
- արտակարգ իրավիճակներում քաղաքի բնակչության նվազագույն կարիքները բավարարելու նպատակով ստեղծել խմելու ջրի պահուստային պաշարներ.
- բնակչության պաշտպանության նպատակով կառուցել և կահավորել ապաստարաններ.
- բարձրացնել էլեկտրաէներգետիկ համակարգերի հուսալիությունը՝ բացառելով բնակչության էլեկտրամատակարարման երկարատև անջատումները.
- բնակարանների գազով տաքացման համար օգտագործել վառարաններ, որոնք ունեն գազի այրման արգասիքների երաշխավորված հեռացման հնարավորւթյուն.
- ապահովել երկաթուղով թունավոր, հրդեհապայթյունավտանգ նյութերի տեղափոխման անվտանգությունը:
Նախագծի հիմնական դրույթները
- Քաղաքի բնակչության թվաքանակը՝ 17,3 հազար, (հեռանկարայինը` 25.0 հազ. մարդ),
- Քաղաքի տարածքը՝ 327 հա,
- Հարկայնությունը` 1-5 հարկ:
Հաշվի առնելով այն հանգամանքը, որ քաղաքը գտնվում է սեյսմիկ վտանգի գոտում, նախատեսվում են վտանգավոր օբյեկտների, բնակելի շենքերի և բնակչության կենսապահովման օբյեկտների պաշտպանությանն ուղղված միջոցառումներ:
- Արտակարգ իրավիճակներում քաղաքի տարածքի ռացիոնալ օգտագործման և կենսագործունեության կայունության բարձրացման համար նախագծում նախատեսված է տարբեր ֆունկցիոնալ գոտիների և համայքի տրանսպորտային ցանցի մանրամասն լուծումներ:
- Մայրուղիների և փողոցների նախագծային լայնությունը, կարմիր գծերում, ընդունված է նվազագույնը 12.0 մ, որպեսզի շենքերի և կառույցների փլուզման դեպքում ապահովվի փրկարարական ստորաբաժանումների մոտեցումը:
- Ինժեներական հաղորդակցության ուղիների նախագծման հիմքում դրված է քաղաքի կենսագործունեության հուսալի ապահովումը, ինչպես խաղաղ, այնպես էլ արտակարգ իրավիճակներում:
- Ջրամատակարարման համակարգը կենտրոնացված է, համատեղված է խմելու և հակահրդեհային ծախսերը մեկ ջրատարով:
- Նախատեսվում է քաղաքի ռադիոֆիկացում և հեռախոսաֆիկացում:
Քաղաքի բնակչության պատսպարումը
Արտակարգ իրավիճակներում բնակչության պատսպարումը պետք է իրականացվի հետևյալ պաշտպանական կառույցներում`
- Ստորգետնյա հատուկ շինություններում` ապաստարաններում, նկուղներում, կիսանկուղներում, խորացված տարածքներում.
- Բնակելի ֆոնդի տարածքներում` առաջին հարկի տարածքներ` հարմարեցված որպես ապաստարաններ:
Բնակչության պատսպարման համալիր միջոցառումներն ընդգրկում են`
- Պաշտպանական կառույցների վաղօրոք կառուցումը.
- Պաշտպանական կառույցների պահպանումը պատրաստի վիճակում.
- Պաշտպանական կառույցների նպատակային օգտագործման կազմակերպումը.
- Արագ կառուցվող ապաստարանների շինարարության կազմակերպումն ու ապահովումը պատերազմի սպառնալիքի ժամանակ:
Արտակարգ իրավիճակներում քաղաքի կենսագործունեությունն ապահովող ձեռնարկությունների ապաստարաններում պատսպարվում են նշված ձեռնարկությունների աշխատակիցները:
Նկուղային և այլ խորացված տարածքներում, պատսպարման նպատակով նախատեսված շենքերի և շինությունների առաջին հարկերում, պարզագույն թաքստոցներում պատսպարվում է մնացած բնակչությունը:
Տաշիր քաղաքում ապաստարաններ չկան: Անհրաժեշտ է ապաստարանները նախատեսել ըստ ներկայացվող հաշվարկի:
Բնակչությանն ապաստարաններով ապահովման հաշվարկ
Տաշիր քաղաքի ներկայիս բնակչության թիվը կազմում է 17,3 հազար մարդ:
աղ. N Հ-8.
|
N |
Բնակչության խմբեր |
Ներկա ժամանակահատվածում |
Հաշվարկային ժամկետում | ||
|
Թվաքանակը (հազ. մարդ) |
Ենթակա են պատսպարման (հազ. մարդ) |
Թվաքանակը (հազ. մարդ) |
Ենթակա են պատսպարման (հազ. մարդ) | ||
|
1 |
2 |
3 |
4 |
5 |
6 |
|
1. |
Աշխատավայրում գտնվող բնակիչներ |
6,5 |
5,4 |
9,7 |
8,0 |
|
2. |
Տանը գտնվող չաշխատող բնակիչներ |
4,3 |
3,9 |
7,5 |
6,9 |
|
3. |
Ուսման վայրում գտնվող ուսանողներ, դպրոցականներ, նախադպրոցական երեխաներ |
3,6 |
3,4 |
4,2 |
3,9 |
|
4. |
Տնային պայմաններում գտնվող ուսանողներ, դպրոցականներ, նախադպրոցական երեխաներ |
2,9 |
2,9 |
3,6 |
3,5 |
|
Ընդամենը |
17,3 |
15,6 |
25,0 |
22,3 | |
Ապաստարանների ընդհանուր մակերեսների հաշվարկ` ըստ խմբերի
աղ. N Հ-9.
|
N |
Բնակչության խմբեր |
Ներկա ժամանակահատվածում |
Հաշվարկային ժամկետում | ||
|
Բնակչության թվաքանակը |
Ապաստարանների անհրաժեշտ մակերեսը, մ2 |
Բնակչության թվաքանակը |
Ապաստարանների անհրաժեշտ մակերեսը, մ2 | ||
|
1 |
2 |
3 |
4 |
5 |
6 |
|
1. |
Նախադպրոցական տարիքի երեխաներ` իրենց խնամակալների հետ |
5200 |
6240 |
8000 |
9600 |
|
2. |
Քաղաքի մնացած բնակչությունը |
12100 |
9075 |
17000 |
12750 |
|
Ընդամենը |
17300 |
15315 |
25000 |
22350 | |
Ծանոթագրություն.
- Անհրաժեշտ ծավալով ապաստարանների ընդհանուր մակերեսը հաշվարկվել է գործող նորմաների համաձայն: Նախատեսվող մակերեսների չափերում հաշվի են առնվել նաև սանիտարական, պահեստային և այլնի համար նախատեսվող անհրաժեշտ օժանդակ մակերեսները:
Բնակչության իրազեկումը և տեղեկացումը
Պաշտպանական կառույցներում բնակչության պատսպարումը տեղի է ունենում քաղաքացիական պաշտպանության ազդանշաններով`
- շչակի անընդհատ հնչեցման դեպքում («Օդային տագնապ» ազդանշան) բնակչությունն անմիջապես պատսպարվում է պաշտպանական կառույցներում.
- շչակի անընդհատ հնչեցման դեպքում («Ուշադրություն բոլորին» ազդանշան) բնակչությունը պարտավոր է միացնել հեռուստացույցները և ռադիոընդունիչները, որոնցով փրկարարական պետական մարմինների կողմից տրվում են հաղորդագրություններ տեղանքի քիմիական կամ ճառագայթային վարակի սպառնալիքի կամ դրանց առաջացման և բնակչության գործողությունների մասին ու գործում` համաձայն այդ հաղորդագրությունների:
Ստանալով համապատասխան ազդանշան` պաշտպանական կառույցներն սպասարկող խմբերի և օղակների անձնակազմերը բերվում են պատրաստականության և ժամանելով իենց աշխատատեղերը, պաշտպանական կառույցները պատրաստում են պատսպարվողների ընդունման համար:
Պետական կառավարման տարածքային, տեղական ինքնակառավարման մարմիններն արտակարգ իրավիճակների և քաղաքացիական պաշտպանության մարմինների հետ համատեղ կազմակերպում են բնակչության պատսպարման համալիր միջոցառումներ:
Պաշտպանական կառույցներում բնակչության պատսպարումն իրականացվում է նախապես մշակված և հաստատված պլանների համաձայն:
Աշխատանքային հերթափոխի աշխատողներն ու ծառայողներն օբյեկտների համապատասխան պաշտոնատար անձանց ղեկավարությամբ զբաղեցնում են պաշտպանական կառույցները` համաձայն օբյեկտի արտակարգ իրավիճակների և քաղաքացիական պաշտպանության պետի կողից նախապես մշակված պլանների, իսկ անհատական բնակարաններում ապրողները՝ իրենց հարմարեցված նկուղները և այլ շինությունները:
Բնակչության տարահանումը
Քաղաքի վրա հակառակորդի անմիջական հարձակման դեպքում բնակչության լրիվ տարահանում չի պլանավորվում: Բնակչության հրատապ վերաբնակեցումը քաղաքի առանձին տարածքներից հնարավոր է հակառակորդի կողմից հարձակման ժամանակակից միջոցների օգտագործման դեպքում, որի ընթացքում կարող են առաջանալ քիմիական, ճառագայթային, մանրէաբանական վարակի օջախներ:
Տարերային աղետներից բնակչության համար առավել մեծ վտանգ են ներկայացնում երկրաշարժերը, որոնց դեպքում որպես պաշտպանության հիմնական ձև հանդիսանում է բնակչության տարահանումը անվտանգ վայրեր:
Աղետից հետո իրականացվում է այն շենքերի բնակիչների տարահանումը, որոնցում բնակվել հնարավոր չէ:
Տեխնածին աղետների դեպքում պաշտպանական հիմնական ձևը բոլոր միջոցներով բնակչության դուրս բերումն է, տարահանումը վարակման օջախից քամու հակառակ ուղղությամբ:
Ներկայումս Տաշիր քաղաքի բնակչության տարահանման պլանը մշակման ընթացքի մեջ է և վերջնական որոշված չեն տարահանման ուղիներն ու բնակավայրերը, որոնք քաղաքից պետք է ունենան առնվազն 20 կմ հեռավորություն: Հարցի լուծման համար պետք է հաշվի առնվեն տարահանման հետևյալ ձևերն ու միջոցները`
- քաղաքի բնակչությունը կարող է տարահանվել հետիոտն շարասյուներով կամ տրանսպորտային միջոցներով` ավտոշարասյուներով, ինչպես նաև երկաթուղային շարժակազմերով.
- առանձին դեպքերում տարահանման համար, Հայաստանի Հանրապետության օրենսդրությամբ սահմանված կարգով, կարող են տրամադրվել նաև օդային տրանսպորտային միջոցներ:
Արտակարգ իրավիճակների դեպքում քաղաքի կառավարման կազմակերպումը
Աղետի սպառնալիքի կամ առաջացման վտանգի դեպքում կառավարումն իրականացվում է քաղաքի կառավարման կետից (քաղաքապետի աշխատասենյակ) և Լոռու մարզային փրկարարական վարչությունից:
Օպերատիվ խումբը ժ+45 րոպեի ընթացքում զբաղեցնում է հիմնական կառավարման կետը և ժ + 60 րոպեի ընթացքում կազմակերպում է շուրջօրյա հերթապահություն:
Մարզային փրկարարական վարչության անձնակազմը ժ+45 րոպեի ընթացքում ժամանում է և ժ + 60 րոպեի ընթացքում կազմակերպում է շուրջօրյա հերթապահություն և անահրաժեշտ փրկարարական աշխատանքեր:
Աղետի սպառնալիքի կամ առաջացման դեպքում կառավարումը կազմակերպվում է Լոռու մարզպետի կողմից և իրականացվում է կառավարման հիմնական կետից: Անհրաժեշտության դեպքում կառավարումն իրականացվում է պահեստային կամ շարժական կառավարման կետերից:
Անհատական պաշտպանության միջոցների (ԱՊՄ) պահանջվող քանակի հաշվարկ` ըստ տարիքային խմբերի
աղ. N Հ-10.
|
Հ/Հ |
Բնակչության թվաքանակը` ըստ տարիքային խմբերի |
Ընդամենը (մարդ) |
Պահանջվող ԱՊՄ-ի քանակը (հատ) և մակնիշը | |
|
Քանակը գումարած 10% պահուստ |
Մակնիշը | |||
|
1. |
0-2 տարեկան |
1700 |
1870 |
Մ.Հ |
|
2. |
3-14 տարեկան |
6500 |
7150 |
թկ-5 թկ-7 (մանկական) |
|
3. |
15-18 տարեկան և ավելի |
9100 |
10010 |
թկ-5, թկ-7 |
|
|
Ընդամենը |
17300 |
19030 |
|
- Բնակչությանը ԱՊՄ բաշխումը, համաձայն ՀՀ կառավարության 25.10.2000թ. թիվ 679 որոշման` իրականացվում է երկրորդ հերթին: Բաշխումն իրականացվում է ՀՀ կառավարության որոշմամբ, իսկ կազմակերպություններում` տվյալ կազմակերպության ղեկավարի որոշմամբ:
II-9. ՀՀ Լոռու մարզի Տաշիրի քաղաքային համայնքի գլխավոր հատակագծի հիմնական տեխնիկատնտեսական ցուցանիշներ*
|
Ցուցանիշները |
Չափման միավորը |
Գոյություն ունեցող |
Հեռանկարային |
|
1. |
2. |
3. |
4. |
|
Տարածքը |
|
|
|
|
Համայնքի վարչական սահմաններում ընդգրկված հողերի ընդհանուր մակերեսը |
|
|
|
|
ընդամենը, այդ թվում՝ |
հա |
7609.49 |
7609.49 |
|
Բնակավայրի հողեր, որից. |
հա |
479.29 |
553.36 |
|
բնակելի կառուցապատման |
- ‘’ - |
286.44 |
390.96 |
|
հասարակական կառուցապատման |
- ‘’ - |
32.09 |
79.16 |
|
խառը կառուցապատման |
- ‘’ - |
4.97 |
12.74 |
|
Ընդհանուր օգտագործման հողեր, որից. |
- ‘’ - |
74.87 |
32.5 |
|
ընդհանուր օգտագործման կանաչապատ տարածքներ |
- ‘’ - |
10.0 |
32.5 |
|
Այլ հողեր |
- ‘’ - |
80.92 |
38.0 |
|
Արդյունաբերության, ընդերքօգտագործման և այլ արտադրական նշանակության հողեր |
- ‘’ - |
125.27 |
125.27 |
|
Արդյունաբերական օբյեկտների |
- ‘’ - |
11.25 |
11.25 |
|
գյուղատնտեսական արտադրական օբյեկտների |
- ‘’ - |
92.89 |
92.89 |
|
Պահեստարանների |
- ‘’ - |
7.69 |
7.69 |
|
ընդերքի օգտագործման |
- ‘’ - |
13.44 |
13.44** |
|
Էներգետիկայի, կապի, տրանսպորտի կոմունալ ենթակառուցվածքների հողեր, որից |
- ‘’ - |
34.57 |
34.57 |
|
Էներգետիկայի |
- ‘’ - |
1.54 |
1.54 |
|
Կապի |
- ‘’ - |
0.69 |
0.69 |
|
տրանսպորտի |
- ‘’ - |
26.23 |
26.23 |
|
կոմունալ ենթակառուցվածքների |
- ‘’ - |
6.10 |
6.10 |
|
Հատուկ պահպանվող տարածքների հողեր, որից՝ |
- ‘’ - |
35.73 |
39.63 |
|
առողջարարական նպատակներով նախատեսված |
- ‘’ - |
3.73 |
3.73 |
|
հանգստի համար նախատեսված |
- ‘’ - |
- |
3.9 |
|
պատմական եվ մշակութային |
- ‘’ - |
32.00 |
32.0 |
|
Հատուկ նշանակության |
- ‘’ - |
208.39 |
208.39 |
|
Գյուղատնտեսական նշանակության հողեր, որից |
- ‘’ - |
5760.84 |
5687.27 |
|
վարելահող |
- ‘’ - |
2604.50 |
2602.0 |
|
բազմամյա տնկարք |
- ‘’ - |
- |
- |
|
խոտհարքներ |
- ‘’ - |
1626.67 |
1626.67 |
|
արոտավայրեր |
- ‘’ - |
1403.9 |
1332.83 |
|
այլ հողատեսքեր |
- ‘’ - |
125.72 |
125.72 |
|
Անտառային հողեր |
- ‘’ - |
888.06 |
883.66 |
|
Ջրային հողեր |
- ‘’ - |
77.34 |
77.34 |
|
Պահուստային տարածքներ |
- ‘’ - |
- |
- |
|
Դեմոգրաֆիական տվյալներ |
|
|
|
|
բնակչության թիվը |
հազ. մարդ |
13.3 |
25.0 |
|
բնակչության խտությունը |
հազ. մարդ/հա |
0.028 |
0.05 |
|
Բնակելի ֆոնդը |
|
|
|
|
Ընդհանուր բնակելի ֆոնդը, որից. |
հազ. մ2 |
732.3 |
875.0 |
|
Նոր բնակելի շինարարության հարաբերությունը ըստ հարկայնության |
% |
- |
100 |
|
Սակավահարկ |
% |
- |
95 |
|
Բազմահարկ |
% |
- |
5 |
|
Բնակչության մշակութակենցաղային սպասարկման հիմնարկությունների համակարգը |
|
|
|
|
մանկական նախադպրոցական հիմնարկներ |
տեղ |
520 |
3903 |
|
հանրակրթական դպրոցներ |
տեղ |
2744 |
4500 |
|
հիվանդանոցներ |
մահճա-կալ |
50 |
*** |
|
պոլիկլինիկաներ |
հերթում հաճախում |
80 |
*** |
|
Տրանսպորտային սպասարկումը |
|
|
|
|
Ուղևորատար հասարակական տրանսպորտի գծերի երկարությունը` |
|
|
|
|
Արտաքին տրանսպորտ |
կմ |
- |
- |
|
Ավտոբուս, միկրոավտոբուս |
ե-ե |
- |
13.9 |
|
Ճոպանուղի |
ե-ե |
- |
- |
|
Մայրուղային ճանապարհների և փողոցների երկարությունը (ընդամենը) |
կմ |
10.62 |
15.02 |
|
Փողոցաճանապարհային ցանցի խտությունը |
|
|
|
|
քաղաքային կառուցապատման սահմաններում |
կմ/կմ2 |
2.2 |
2.6 |
|
Կամուրջներ, ուղեկամուրջներ |
հատ |
3 |
7 |
|
Ինժեներական սարքավորումներ և բարեկարգում |
|
|
|
|
Ընդհանուր ջրօգտագործումը |
հազ. մ3/օր |
6700.0 |
8083.0 |
|
- տնտեսական – խմելու նպատակով |
ե-ե |
- |
5000.0 |
|
- արտադրական կարիքների համար |
ե-ե |
- |
1250.0 |
|
Ջրամատակարարման համակարգի գլխամասային կառույցների հզորությունը |
լ/վրկ |
140.0 |
140.0 |
|
Ջրամատակարարման օգտագործման աղբյուրները |
ե-ե |
Ակսյուտին, Բազում |
Ակսյուտին, Բազում |
|
Մաքուր ջրօգտագործումը |
լ/վրկ |
- |
|
|
այդ թվում տնտեսական-խմելու նպատակով |
մ3/օր |
- |
6736.0 |
|
Կոյուղի |
|
|
|
|
Կեղտաջրերի ընդհանուր ելքը (ընդամենը), այդ թվում՝ |
մ3/օր |
- |
6000.0 |
|
կենցաղային կոյուղի |
ե-ե |
- |
5000.0 |
|
արտադրական կոյուղի |
ե-ե |
- |
1000.0 |
|
Կոյուղու մաքրման կայանի արտադրողականությունը |
ե-ե |
չկա |
6000.0 |
|
Էլեկտրամատակարարում |
|
|
|
|
Էլեկտրաէներգիայի գումարային օգտագործումը այդ թվում՝ |
հազ. կվտ. ժամ/տարի |
5950.0 |
56450.0 |
|
արտադրական օբյեկտների կարիքների համար |
ե-ե |
550.0 |
1200.0 |
|
կոմունալ-կենցաղային կարիքների համար |
ե-ե |
5400.0 |
42500.0 |
|
1 մարդու կողմից տարեկան էլեկտրաէներգիայի օգտագործումը |
կվտ/ժամ տարի |
205 |
1700 |
|
Էլեկտրաբեռնվածության ծածկման աղբյուրներ, այդ թվում |
ՄՎԱ |
«Տաշիր» 110/35/10 կվ, 2x10.0 ենթակայան |
«Տաշիր» 110/35/10 կվ, 2x10.0 ենթակայան |
|
Ջերմամատակարարում |
|
|
|
|
Ջերմամատակարարում |
|
չի գործում |
լոկալ համակարգ |
|
Բնակավայրի վառելիքային հաշվեկշռում գազի տեսակարար կշիռը |
% |
90 |
100 |
|
Գազի օգտագործումը (ընդամենը), այդ թվում |
հազ. մ3/տարի |
2526.0 |
5300.0 |
|
Կոմունալ-կենցաղային կարիքների համար |
հազ. մ3/տարի |
1945.0 |
3500.0 |
|
Արտադրական կարիքների համար |
ե-ե |
581.0 |
1800.0 |
|
Տարածքի ինժեներական նախապատրաստումը |
|
|
|
|
Հեղեղատարի երկարությունը |
կմ |
- |
2.0 |
|
Հեղեղապաշտպան պատնեշներ |
հատ |
- |
- |
|
Գետափերի ամրացում և կարգավորում |
մ3 |
6 |
8 |
|
Կենցաղային աղբի ծավալը |
հազ. տ. տարի |
2.3 |
6.2 |
|
Շրջակա միջավայրի պահպանությունը |
|
|
|
|
Աղբի այրման և աղբավերամշակման կազմակերպություններ |
|
աղբավայր |
աղբավայր |
|
Սանիտարապաշտպանիչ գոտիներ աղտոտվածության աղբյուրներից, աղմուկի ներգործությունից (ընդամենը) |
հա |
- |
28.0 |
|
այդ թվում՝ կանաչապատում |
հա |
- |
5.6 |
|
Մթնոլորտային օդի աղտոտվածության մակարդակը |
% սահմ. թույլատ. խտ.-ից (ՍԹԽ) |
ՍԹԽ-ից ցածր |
ՍԹԽ-ից ցածր |
|
Ջրամբարների աղտոտվածության մակարդակը |
ե-ե |
ՍԹԽ-ից ցածր |
ՍԹԽ-ից ցածր |
|
Հողի և ընդերքի աղտոտվածության մակարդակը |
ե-ե |
ՍԹԽ-ից ցածր |
ՍԹԽ-ից ցածր |
|
Աղմուկի ազդեցության մակարդակը |
դեցիբել (ԴՑԲ) |
57-66 |
55 |
* - կիրառված են համայնքի հողային ֆոնդի առկայության և բաշխման մասին գոյություն ունեցող ցուցանիշները՝ ըստ ՀՀ կառավարությանն առընթեր անշարժ գույքի կադաստրի պետական կոմիտեի 01.01.06 թվականի հաշվետվության
** - տվյալները չեն լրացվում՝ հեռանկարային շահագործման ինտենսիվության կանխատեսման անհնարինության պատճառով
*** - Строительные нормы и правила, Градостроительство, Планировка и застройка городских и сельских поселений СНиП 2.07.01.-89, Москва, 1989 г.
Գ Լ ՈՒ Խ III
ՏԱՇԻՐ ՔԱՂԱՔԻ ՏԱՐԱԾՔԻ ԳՈՏԻԱՎՈՐՄԱՆ ՆԱԽԱԳԻԾ
Ներածություն
Տաշիր քաղաքի գոտիավորման նախագիծը մշակվել է ըստ ՀՀ Քաղաքաշինության նախարարության ՄԲ ԱՇՁԲ-06/12-1 պայմանագրի, տեխնիկական առաջադրանքի և գոտիավորման կարգի պահանջների համաձայն:
Գոտիավորման նախագծի հիմնորոշ սկզբունքներն են՝
Ø գոյություն ունեցող ճարտարապետաքաղաքաշինական ավանդույթների պահպանումը,
Ø պատմաճարտարապետական արժեք չունեցող և միջավայրի գեղագիտական անբողջական կերպարը խաթարող կառույցների աստիճանական վերացումը,
Ø պատմամշակութային հուշարձանների պահպանման և դրանց առավել շահեկան օգտագործման ապահովումը,
Ø կազմավորված միջավայրին անհարիր խոշոր արդյունաբերական ձեռնարկությունների վերատեղաբաշխումը,
Ø տրանսպորտային-հետիոտն ակտիվության կանոնակարգումը և կարգավորումը,
Ø բնական այգեպուրակային լանդշաֆտի վերականգնման, պահպանման և հետագա օգտագործման միջոցառումների իրականացումը,
Ø թանգարանային գործի, հուշարձանների գիտական ցուցադրման, ավանդական արհեստների արտադրության, զբոսաշրջիկների սպասարկման ու գովազդի հետ կապված հնարավորությունների խրախուսումը:
III-1. ԸՆԴՀԱՆՈՒՐ ԴՐՈՒՅԹՆԵՐ
III-1.1. Գոտիավորման նախագծի իրավազորությունը
Սույն գոտիավորման նախագիծը՝ հանդիսանալով քաղաքաշինական ծրագրային փաստաթուղթ, ծառայում է որպես քաղաքաշինական գործունեությունը կարգավորող հիմնական իրավական միջոց, սահմանելով բնակավայրի փաստացի և հեռանկարային օգտագործման և կառուցապատման նկատմամբ պարտադիր պահանջները՝ բարենպաստ կենսամիջավայրի ձևավորման նպատակով։
Գոտիավորման նախագծով սահմանված յուրաքանչյուր գոտու համար անհրաժեշտ է մշակել միասնական կառուցապատման նախագիծ: Համապատասխան ընթացակարգով հաստատվելուց հետո, նախագիծը դառնում է գոտիավորման նախագծի անբաժանելի մասը և կատարում է նրա բոլոր գործառույթները: Ընդ որում, հաստատվելուց հետո կառուցապատման նախագծի բոլոր դրույթները դառնում են առաջնային՝ տվյալ գոտու համար գոտիավորման նախագծի նախանշումների նկատմամբ:
III-1.2. Գոտիավորման նախագծի հիմնական նպատակները
Ø Հասարակության առողջության, անվտանգության, և բարեկեցության ապահովումը քաղաքաշինական գործունեության, հողհատկացման և կառուցապատման գործընթացների կարգավորման և համակարգման միջոցով։
Ø Քաղաքի զարգացման ընթացքում առողջ և գրավիչ միջավայրի ձևավորման ապահովումը։
Ø Հողօգտագործման տեսակների դասակարգումն ըստ դրանց նպատակային օգտագործման։
Ø Շրջակա միջավայրի և պատմամշակութային արժեքների պահպանումը։
Ø Քաղաքի կազմավորված, պատմաճարտարապետական արժեք ներկայացնող հատվածների վերակառուցման և վերանորոգման խրախուսումը՝ միջավայրի առանձնահատուկ ճարտարապետական կերպարի պահպանմամբ։
Ø Կազմավորված քաղաքաշինական միջավայրին համապատասխան գեղագիտական քաղաքականության ապահովումը՝ ժամանակակից դինամիկ զարգացման պահանջների հաշվառումով:
III-1.3. Գոտիավորման նախագծի կիրառման բնագավառը
Գոտիավորման նախագծի դրույթները, պահանջները և նորմերը պարտադիր են՝
Ø Քաղաքի տարածքում կատարվող վերակառուցողական, շինարարական, վերականգնողական, վերանորոգման, բարեկարգման, կանաչապատման աշխատանքների, ինչպես նաև հողերի և առանձին օբյեկտների նպատակային օգտագործմանը և շահագործմանը վերագրվող պահանջները գործնականում իրականցնելու և պահպանելու համար:
Ø Գոտիավորման նախագծի դրույթները, պահանջները և նորմերը կարգավորում են նաև շենքերի և շինությունների ներսում կատարվող գործունեության այն հետևանքները, որոնք ազդում են շրջակա միջավայրի բնականոն վիճակի վրա, այն է՝ աղմուկին, վնասակար արտանետումներին, տրանսպորտային և հետիոտն հոսքերի մեծ զանգվածներ առաջացնող գործունեության տարբեր տեսակներին վերաբերող հատուկ պահանջների սահմանումը և այլն:
Ø Գոտիավորման նախագծի դրույթները, պահանջները և նորմերը պարտադիր են նաև կառուցապատման և հողամասերի օգտագործման ինտենսիվության, շենքերի և շինությունների հարկայնության, դրանց արտաքին ճակատների ձևավորման, հարդարանքի, գովազդների, ցուցանակների, փոքր ճարտարապետական ձևերի տեղադրման համար:
III-1.4. Գոտիավորման համակարգի կառուցվածքը
Գոտիավորման նախագիծը հիմնվում է «ընդունված գոտի-թույլատրելի օգտագործման ձև» սկզբունքի վրա: Նախագծում, ըստ առանձին գոտիների, սահմանվում են հողօգտագործման և կառուցապատման թույլատրելի օգտագործման տեսակները, որոնց համապատասխանող քաղաքաշինական գործունեության իրականացման համար լրացուցիչ պահանջներ, քննարկումներ, համաձայնեցումներ չեն նախատեսվում։ Սահմանվել են թույլատվության հետևյալ ձևերը՝
Ø թույլատրվում է,
Ø չի թույլատրվում:
Պահանջները տարբերակվում են մեկից մյուս գոտի անցնելիս, բայց հաստատուն են յուրաքանչյուր գոտու ներսում:
III-1.5. Գոտիավորման նախագծի իրավական հիմքերն են
Ø Բնակավայրերի տարածքների գոտիավորման նախագծերի մշակման, փորձաքննության, համաձայնեցման, հաստատման և փոփոխման կարգը
Ø ՀՀ բնակավայրերի հատակագծման և կառուցապատման նորմերը,
Ø Տաշիր քաղաքի գլխավոր հատակագիծը,
Ø ՀՀ գործող օրենքները և ենթաօրենսդրական ակտերը։
III-1.6. Գոտիավորման նախագծի կապը գլխավոր հատակագծի հետ
Գոտիավորման նախագիծը քաղաքի գլխավոր հատակագծի իրագործման հիմնական ծրագրային քաղաքաշինական փաստաթուղթն է: Այն անմիջականորեն կապված և համաձայնեցված է քաղաքի գլխավոր հատակագծում նախանշված գաղափարների, զարգացման ուղղությունների, բոլոր տեսակի հողերի նպատակային օգտագործման, կառուցապատման ինտեսիվության և բնակչության տեղաբաշխման իրականացման գործընթացի հետ:
Նախագծում հաշվի են առնված նաև հողօգտագործման սխեմայում ներառված դրույթները։
III-2. ՏԱՐԱԾՔՆԵՐԻ ՓԱՍՏԱՑԻ ՕԳՏԱԳՈՐԾՄԱՆ ԵՎ ՆԱԽԱԳԾԱՅԻՆ ՀԻՄՆԱԿԱՆ ԲՆՈՒԹԱԳՐԵՐ
III-2.1. Սահմաններ
Նախագծվող տարածքի սահմանները համապատասխանում են գլխավոր հատակագծում առանձնացված գոտիավորման տարածքի սահմաններին։ Տարածքի ընդհանուր մակերեսը 50 հա:
Գոտիավորման շրջանների (գոտիների) սահմանները
Նախագծվող գոտիավորման շրջանների (գոտիների) սահմանները որոշվում են հետևյալ կերպ՝
Ø Եթե գոտիավորման շրջանի սահմանը համընկնում է հողամասի սահմանի հետ, ապա այդ հողամասի սահմանը համարվում է գոտիավորման շրջանի սահմանը,
Ø Եթե գոտիավորման շրջանի սահմանը անցնում է փողոցով, ճեմուղով, երկաթգծի ուղիներով, գետով կամ այլ գծային ծրագիծ ունեցող տարածքային միավորներով, ապա գոտիավորման շրջանի սահման է համարվում դրանց առանցքային գիծը,
Ø Եթե գոտիավորման շրջանի սահմանը անցնում և կիսում է ինչ որ մի առանձին տիրույթ, ապա գոտիավորման շրջանի սահմանը որոշվում է գծագրում բերված համապատասխան եզրագծով, կամ հեռավորության նշումով։
III-2.2. Կլիմայական պայմաններ
Նախագծվող տարածքը գտնվում է շինարարակլիմայական չափավոր գոտում (հունվարի միջին ջերմաստիճանը՝ 0օC մինչև - 5օC, հուլիսինը՝ 16օC մինչև 20օC, հարաբերական խոնավությունը ձմռանը՝ 50-70%, ամռանը՝ 45-60%, քամու ռեժիմը՝ ամռանը՝ 2.5-3 մ/վրկ, ձմռանը՝ 3-5 մ/վրկ):
III-2.3. Հողածածկույթ
Նախագծվող տարածքի հողածածկույթը բարենպաստ է կանաչապատման համար:
III-2.4. Ինժեներաերկրաբանական պայմաններ
Քաղաքի տարածքի գետին հարող հատվածներում դիտվում է գրունտային ջրերի բարձր մակարդակ (0-3 մ), մակերևութային հոսք, հեղեղաբերություն (առաջարկված են պաշտպանության միջոցառումներ՝ լեռնային առուների կառուցմամբ)։
III-2.5. Սեյսմատեկտոնական պայմաններ
Ըստ սեյսմավտանգավորության աստիճանի տարածքում գրունտների հաշվարկված ա սեյսմիկ արագացումները տատնվում են 0.20-0.25 g (որը համապատասխանում է 8.0-8.25 բալի)։
III-2.6. Ինժեներական ենթակառուցվածքներ
Ջրամատակարարում
Տաշիր քաղաքի ջրամատակարարման վիճակն անբավարար է՝ ցանցի տեխնիկական անբարեկարգ վիճակի պատճառով։ Առաջարկվում է ջրամտակարարման ցանցի վերազինում, վերակառուցում։
Կոյուղացում
Կոյուղատար ցանցը կառուցվել է տարիներ առաջ, տեխնիկական վիճակը խիստ անբավարար է, կոյուղու մաքրման կայանի բացակայության պատճառով կեղտաջրերը լցվում են գետը, ստեղծելով հակասանիտարական վիճակ։ Կոյուղու ցանցը ենթակա է հիմնովին վերակառուցման: Նախատեսված է նոր մաքրման կայան՝ քաղաքի հարավային մասում։
Էներգամատակարարում
Էլեկտրամատակարարում
Քաղաքի էլեկտրամատակարարումն իրականացնում է ՀՀ «Հյուսիսային» էներգոցանց համակարգի «Տաշիր» էլեկտրական ցանցեր մասնաճյուղի կողմից։ Էլեկտրամատակարարման աղբյուր են հանդիսանում «Տաշիր-1» 110/35/6 լարման ենթակայանը։
Գորտիավորման տարածքների էներգամատակարարումը կիրականացվի քաղաքի գործող էլեկտրամատակարարման համակարգին միացման միջոցով, որի պահանջը կապահովվի նշված աղբյուրներից։ Նախատեսվում է համակարգի արդիականացում։
Գազամատակարարում
Քաղաքը գազիֆիկացված է, կատարվում են վերագազաֆիկացման աշխատանքներ։ Գազամատակարարումն իրականացնում է ՀՀ գազամատակարարման համակարգի բարձր ճնշման 500 մմ տրամագծով գազատարի ԳԲԿ-ի հատվածից։
Գոտիավորման տարածքների գազամատակարարումը կիրականացվի նախատեսվող գազակարգավորիչ կետերի միջոցով։
Ջերմամատակարարում
Մինչև 1991 թվականը քաղաքում գործել է կենտրոնացված ջերմային համակագ, հարկաշատ, բնակելի, առողջապահական, կրթական շինությունների ջերմային կարիքների բավարարման համար, որն իրականացվել է նախկինում գործող կաթսայատների միջոցով, Ներկայումս այդ կաթսայատները, հայտնի պատճառներով, չեն գործում: Սարքավորումները և ջերմամատակարարման ցանցը շարքից դուրս են եկել:
Նախատեսվում է ջերմային համակարգը վերականգնել` լոկալ փոքր հզորության կաթսայատներից: Գոտիավորման տարածքի բազմահարկ կառուցապատման սեկտորներում ջերմամատակարարումը կիրականացվի նշված լոկալ կաթսայատների միջոցով, սակավահարկ թաղամասերում՝ ապակենտրոնացված ջերմամատակարարման՝ լոկալ ջեռուցմամբ։
Կապ
Տաշիր քաղաքի հեռախոսային կապն իրականացվում է «Արմենթել» ՓԲԸ մասնաճյուղի կողմից:
III-3. Շրջակա միջավայրի պահպանություն
Տաշիր քաղաքային համայնքի գլխավոր հատակագծի մշակման փուլում նախատեսված են միջոցառումներ գոտիավորման տարածքների հողածածկույթի, մակերևութային և խորքային ջրերի, մթնոլորտային օդի պահպանության վերաբերյալ:
III-4. Գոտիավորման նախագծի կազմը
Գոտիավորման նախագծի կառուցվածքային հիմնական բաղկացուցիչներն են գոտիավորման գծագրական ու տեքստային մասերը:
Նախագիծը ներառում է
Ø Գործառական գոտիավորումը՝ հողատարածքների առանձնացումն ըստ գործառական օգտագործման՝ սահմանելով թույլատրելի օգտագործման տեսակները, ամրագրելով ընդհանուր տարածքի մակերեսի նկատմամբ վերջիններիս սահմանային չափաբաժինները։
Ø Ծավալատարածական գոտիավորումը՝ ամրագրելով կառուցապատման բնույթն արտահայտող ցուցանիշները (կառուցապատման խտություն, շենքերի, շինությունների բարձրություն, կառուցապատված և կանաչապատ մակերեսների հարաբերակցություն և այլն), տվյալ տարածքում թույլատրելի չափաբաժինների հաշվառմամբ։
III-5. Գոտիներում թույլատրելի օգտագործումների (կառուցապատումների) սահմանափակումների հիմնավորումները
Հողերը գոտիավորված են ըստ հիմնական և օժանդակ գոտիների։
Հիմնական գոտիներ*
Հիմնական են համարվում հողերի գոտիավորումը ըստ նպատակային նշանակության և ըստ քաղաքաշինական, բնապհպանական, պատմամշակութային, գյուղատնտեսական, ինժեներաերկրաբանականև այլ բնույթի սահմանափակումների։
Միևնույն տարածքային միավորին համապատասխանում է միայն մեկ հիմնական գոտի:
Քաղաքի գոտիավորման տարածքում ըստ նպատակային նշանակության առանձնացված են հետևյալ հիմնական գոտիները.
● Բնակավայրերի հողեր,
● Արդյունաբերության, ընդերքօգտագործման և այլ արտադրական նշանակության հողեր
● Էներգետիկայի, տրանսպորտի, կապի, կոմունալ ենթակառուցվածքների օբյեկտների հողեր,
● Հատուկ պահպանվող տարածքների հողեր,
● Անտառային հողեր,
● Ջրային հողեր։
Օժանդակ գոտիներ*
Օժանդակ է համարվում հողամասերի գոտիավորումը՝ ըստ գործառական նշանակության, հողատեսքերի և թույլատրված օգտագործումների, ինչպես նաև հողամասերի ծավալատարածական գոտիավորումը՝ ըստ կառուցապատման չափորոշիչների։
Հիմնական գոտիներն իրենց հերթին ստորաբաժանվել են աստիճանական զարգացման և համալիր հատակագծման հետևյալ օժանդակ գոտիների ըստ թույլատրելի օգտագործումների*.
Աստիճանական զարգացման գոտիների առանձնացման հիմնական նպատակն է որոշակի տարածքների փուլ առ փուլ երկարաժամկետ զարգացման և կառուցապատման խրախուսումն ու երաշխավորումը: Սահմանվում են հետևյալ աստիճանական զարգացման հիմնական գոտիներ՝
● Բնակելի կառուցապատման գոտի,
● Խառը կառուցապատման գոտի
● Հասարակական գործառույթների զարգացման գոտի
● Ընդհանուր օգտագործման տարածքների գոտի (հասարակական կանաչ)
● Հասարակական սպասարկման և առևտրի գոտի
● Անտառապուրակային գոտի
● Բուժական գոտի
● Ուսումնական գոտի
● Հանգստի համար նախատեսված գոտի
● Բուֆերային գոտի
● Ինժեներական ենթակառուցվածքների գոտի
Համալիր հատակագծման օժանդակ գոտիների առանձնացման հիմնական նպատակներն են՝
- խրախուսել տարածքի բազմաբնույթ օգտագործումը համալիր նախագծման միջոցով,
- ապահովել համաքաղաքային համալիրների օպտիմալ տեղաբաշխումը,
- ներդաշնակորեն ինտեգրել հատուկ նախագծվող համալիրները կազմավորվող քաղաքաշինական միջավայրում։ ____________________________________________________________
* - «Քաղաքաշինության մասին» ՀՀ օրենք՝ ընդունված ՀՀ ԱԺ կողմից 05.05.98 թ., վավերացված ՀՀ նախագահի կողմից 26.05.98 թ., Գլուխ VI, հոդված 14
Սահմանվում են հետևյալ համալիր հատակագծման հիմնական գոտիներ՝
● Առևտրի համաքաղաքային գոտի,
● Տոնավաճառային գոտի,
● Արտաքին տրանսպորտի գոտի։
|
Անհատական բնակելի կառուցապատման գոտի, ԱԿԳ Բազմաբնակարան բնակելի կառուցապատման գոտի, ԲԿԳ Խառը կառուցապատման գոտի, ԽԿԳ Հասարակական-վարչական կառուցապատման գոտի, ՀԿԳ Հասարակական սպասարկման և առևտրի գոտի, ՀՍԱԳ Հասարակական օգտագործման կանաչ գոտի, ՀՕԿԳ Ինժեներական ենթակառուցվածքների գոտի, ԻԵԳ Բուժական գոտի, ԲԺԳ Ուսումնական գոտի, ՈՒԳ Ռեկրեացիոն գոտի, ՌԳ Տոնավաճառային գոտի, ՏԳ Արտաքին տրանսպորտի գոտի, ԱՏԳ Արտադրական և կոմունալ-պահեստային գոտի, ԱԳ Բուֆերային գոտի, ԲՖԳ Անտառապուրակային գոտի, ԱՆՊԳ |
Ծանոթություն. Յուրաքանչյուր գոտու վրա տարածվում են նաև լրացուցիչ սահմանափակումներ, կապված քաղաքի հատակագծային կառուցվածքում առանձնակի կարևորություն ունեցող գոտիների (համապատասխանաբար պատմաճարտարապետական հուշարձանների պահպանման և առավելագույն ընկալման հնարավորությունների բացահայտման, հասարակական կենտրոնի, քաղաքային մուտքի ազդեցության տարածման) առաջադրած պահանջների, սանիտարահիգիենիկ կամ բնապահպանական պահանջների բավարարման (բնական լանդշաֆտի արժեքավոր ձևերի վերականգնման, էկոհամակարգերի տարբեր խախտումների փոխհատուցման գործընթացների կանոնակարգման, ինժեներական նախապատրաստման համալիր միջոցառումների պարտադիր իրականացման ապահովման հետ պայմանավորված կառուցապատման սահմանափակումների և այլն), տարբեր տիպի կառուցապատումների, հաղորդակցության ուղիների, դրանց կառուցվածքների և ինժեներական ենթակառուցվածքների ազդեցության, սանպահպանման կամ օտարման գոտիների ապահովման պահանջների հետ։
Գոտիներում հիմնական օգտագործման ձևերն են՝
1. Բնակելի կառուցապատում
Ø Առանձնատներ տնամերձ հողամասերով։
Ø Բազմաբնակարանոց տներ։
2 Հյուրանոցային ծառայություններ՝
Ø Հյուրանոցներ (սահմանափակ կոնտինգենտի համար, մինչև 200 տեղ),
Ø Մոթելներ (առանց սահմանափակումների),
Ø Հյուրանոցներ, մոթելներ, քեմփինգներ սահմանափակված մինչև 20 տեղ,
Ø Հանրակացարաններ։
3. Կրթական հաստատություններ
Ø Մանկապարտեզներ, մանկամսուրներ ։
Ø Միջնակարգ դպրոցներ։
Ø Վճարովի և կիրակնօրյա դպրոցներ։
Ø Համալսարաններ, ինստիտուտներ, քոլեջներ։
4. Բուժական հիմնարկություններ
Ø Բուժական կաբինետներ,
Ø Պոլիկլինիկաներ։
5. Վարչական, ֆինանսական հիմնարկություններ և ծառայություններ
Ø Մարզային և քաղաքային նշանակության վարչակառավարման հիմնարկներ,
Ø Անհատական գրասենյակներ (օֆիսներ)։
Ø Բանկեր, բորսաներ և դրամավարկային այլ հաստատություններ, դրանց գրասենյակներ։
Ø Փոստատներ, կապի բաժանմունքներ։
Ø Ոստիկանական տեղամասեր։
Ø Հրշեջ ծառայություններ,
Ø Քաղաքացիական պաշտպանություն։
Ø Ապաստարաններ։
6. Կենցաղ սպասարկման առաջնային ծառայություններ
Ø Վարսավիրանոցներ,
Ø Քիմմաքրման ընդունման կետեր, լվացքատներ,
Ø Կոշիկի, հագուստի և կենցաղային տեխնիկայի վերանորոգման արհեստանոցներ,
Ø Հասարական բաղնիքներ, սաունաներ,
Ø Հասարակական սանհանգույցներ,
Ø Աղբարկղեր։
7. Հասարակական օգտագործման և մարզական հաստատություններ
Ø Գրադարաններ, թանգարաններ, ցուցահանդեսներ, պատկերասրահներ, արվեստի սրահներ,
Ø Ակումբներ և հասարակական հավաքատեղիներ, գիշերային ակումբներ,
Ø Թատրոններ և կինոթատրոններ ,
Ø Բուսաբանական, կենդանաբանական, մշակույթի, հանգստի և մանկական տարբեր տիպի այգիներ,
Ø Սեղանի թենիս, բիլիարդի դահլիճներ, բոուլինգ դահլիճներ, մարզադահլիճներ, ջրավազաններ և այլ մարզական կառույցներ,
Ø Մարզադաշտեր, խաղադաշտեր,
Ø Մասնավոր բացօթյա ռեկրեացիոն կառույցներ՝ լողի, թենիսի և այլ ակումբներ,
Ø Պուրակներ անիվավոր չմուշկների և այլնի համար,
Ø Հրաձգարաններ։
8. Առևտրական օբյեկտներ
Ø Սուպերմարքեթներ, հանրախանութներ, առևտրի կենտրոններ,
Ø Մանրածախ առևտրի, խանութներ, տաղավարներ, կրպակներ,
Ø Ավտոպահեստամասերի վաճառք,
Ø Տոնավաճառներ, ֆերմերային շուկաներ (բացառությամբ կենդանիների վաճառքի),
Ø Կենդանի ձկների վաճառք,
Ø Բացօթյա մանրածախ, մեծածախ առևտուր,
Ø Կենդանիների վաճառք։
9. Հասարակական սննդի օբյեկտներ
Ø Ավանդական ուտեստների խոհանոց, պանդոկներ, խորտկարաններ, մառաններ, ճաշարաններ,
Ø Ռեստորաններ, սրճարաններ և բարեր ոչ ավելի քան 20 նստելատեղով,
Ø Բացօթյա ռեստորաններ, բարեր, սրճարաններ,
Ø Ռեստորաններ, սրճարաններ և բարեր (առանց սահմանափակումների),
Ø Արագ պատրաստվող ուտեստների խորտկարաններ։
10. Արտադրական օբյեկտներ
Ø Արդյունաբերական օբյեկտներ,
Ø Արտադրական օբյեկտներ, որոնց գործունեությունը կապված չէ աղմուկի, պայթուցիկ և հրդեհավտանգ նյութերի, մթնոլորտի աղտոտման (ծուխ, գազեր) հետ,
Ø Փոքր բիզնեսի արտադրություններ, որոնք կապված չեն աղմուկի, պայթուցիկ և հրդեհավտանգ նյութերի, մթնոլորտի աղտոտման (ծուխ, գազեր) հետ,
Ø Հացի, հրուշակեղենի, ոչ ոգելից ըմպելիքի, սննդամթերքների փոքրածավալ արտադրություն,
Ø Գյուղատնտեսական մթերքների արտադրություն,
Ø Տնայնագործական արտադրություն (վերամշակում, վերանորոգում, նորոգում, ներկում, մաքրում, սարքավորումների հավաքում, սեփական արտադրանքի առևտուր։
11. Ավտոծառայություններ և տրանսպորտային կառույցներ
Ø Ավտոբուսային կայարաններ,
Ø Տրանսպորտի հավաքակայաններ,
Ø Բենզալցավորման կայաններ,
Ø Ավտոկայանատեղեր։
12. Գյուղատնտեսական
Ø Գյուղատնտեսական մթերքների վերամշակում, արտադրություն,
Ø Գյուղատնտեսական աշխատանքներ (այգեգործություն),
Ø Գյուղատնտեսական աշխատանքներ (անասնապահական համալիրներ՝ ընտանի կենդանիների բուծում),
Ø Տնկարաններ, անտառային տնտեսություն։
13. Ինժեներական ենթակառուցվածքներ և սարքավորումներ
Ø Խմելու ջրի օրվա կարգավորիչ ջրամբարներ (ՕԿՋ),
Ø Ոչ մետաղական (պոլիէթիլենային, բետոնե) ստորգետնյա խողովակաշարեր,
Ø Մետաղական խողովակաշարեր (երկաթբետոնե, թուջե),
Ø Ջրամատակարարման բաշխիչ հորեր,
Ø Կոյուղու ցանցային հորեր,
Ø Վերգետնյա հաղորդալարեր,
Ø Մալուխային էլեկտրահաղորդագծեր,
Ø Էլեկտրական ենթակայաններ,
Ø Ավտոմատ գազաբաշխիչ կայան (ԱԳԿ),
Ø Գազակարգավորիչ պահարանային կետեր (ԳՊԿ),
Ø Փոքր հզորության լոկալ կաթսայատներ մինչև 5 ՀԿ/ժամ,
Ø Հեռախոսային կապի բախշիչ կետեր (պահարանային),
Ø Կապի ավտոմատ հեռախոսային կայան։
14. Ոչ հիմնական շինություններ
Ø Տաղավարներ,
Ø Ճարտարապետական փոքր ձևեր։
III-6. ԹՈՒՅԼԱՏՐԵԼԻ ՕԳՏԱԳՈՐԾՄԱՆ ՁԵՎԵՐԻ ԱՂՅՈՒՍԱԿ
|
Օգտագործման ձևեր |
ԱԿԳ |
ԲԿԳ |
ԽԿԳ |
ՀԿԳ |
ՀՕԿԳ |
ՀՍԱԳ |
ՏԳ |
ԻԵԳ |
ԲԺԳ |
ԱՆՊԳ |
ՈՒԳ |
ԱՏԳ |
ԱԳ |
ԲՖԳ |
ՌԳ |
|
Բնակելի կառուցապատման ձևեր |
|
|
|
|
|
|
|
|
|
|
|
|
|
|
|
|
Առանձնատներ տնամերձ հողամասերով՝ |
● |
|
● |
|
|
|
|
|
|
|
|
|
|
|
|
|
Բազմաբնակարանանոց տներ |
|
● |
● |
|
|
|
|
|
|
|
|
|
|
|
|
|
Հյուրանոցային ծառայություններ |
|
|
|
|
|
|
|
|
|
|
|
|
|
|
|
|
Հյուրանոցներ (մինչև 200 տեղ) |
|
|
|
● |
|
● |
|
|
|
|
|
|
|
|
● |
|
Մոթելներ (առանց սահմ.) |
|
|
|
|
|
● |
|
|
|
|
|
|
|
|
● |
|
Ճանապարհամերձ տներ (վարձ. տրվող գյուղ.տներ) |
● |
|
● |
|
|
|
|
|
|
|
|
|
|
|
|
|
Հյուրանոցներ, մոթելներ (սահմանափակ կոնտինգենտով) |
● |
● |
● |
● |
|
|
|
|
|
|
|
● |
|
|
|
|
Հանրակացարաններ |
|
● |
● |
|
|
|
|
|
|
|
● |
|
|
|
|
|
Պանսիոնատներ, առողջարանային մասնաշենքեր |
|
● |
|
|
|
|
|
|
|
|
|
|
|
|
● |
|
Կրթական հաստատություններ |
|
|
|
|
|
|
|
|
|
|
|
|
|
|
|
|
Մանկապարտեզներ, մանկամսուրներ |
|
|
● |
|
|
|
|
|
|
|
● |
|
|
|
|
|
Վճարովի և կիրակնօրյա դպրոցներ |
|
|
● |
|
|
|
|
|
|
|
● |
|
|
|
|
|
Միջնակարգ դպրոցներ |
|
|
● |
|
|
|
|
|
|
|
● |
|
|
|
|
|
Համալսարաններ, ինստիտուտներ, քոլեջներ |
|
|
● |
|
|
|
|
|
● |
|
● |
|
|
|
|
|
Բուժական |
|
|
|
|
|
|
|
|
|
|
|
|
|
|
|
|
Բուժական կաբինետներ |
● |
● |
● |
● |
|
|
● |
|
● |
|
|
● |
|
|
|
|
Հիվանդանոցներ և պոլիկլինիկաներ |
|
|
● |
|
|
|
|
|
● |
|
|
|
|
|
|
|
Վարչական, ֆինանսական հիմնարկություններ և ծառայություններ |
|
|
|
|
|
|
|
|
|
|
|
|
|
|
|
|
Քաղաքային նշանակության վարչակառավարման հիմնարկներ, դրանց գրասենյակներ (օֆիսներ) |
|
|
|
● |
|
|
|
|
|
|
|
|
|
|
|
|
Անհատական գրասենյակներ (օֆիսներ) |
● |
● |
● |
|
|
● |
● |
|
|
|
|
● |
|
|
|
|
Բանկեր, բորսաներ և դրամավարկային այլ հաստատություններ, դրանց գրասենյակներ |
|
|
● |
● |
|
|
|
|
|
|
|
|
|
|
|
|
Փոստատներ, կապի բաժանմունքներ |
|
● |
● |
● |
|
|
|
|
|
|
|
● |
|
|
|
|
Ոստիկանական տեղամասեր |
|
|
● |
● |
|
|
|
|
|
|
|
● |
|
|
|
|
Քաղ. պաշտպանության ապաստարաններ |
● |
● |
● |
● |
● |
● |
● |
|
● |
|
● |
● |
● |
|
● |
|
Կենցաղ սպասարկման առաջնային ծառայություններ |
|
|
|
|
|
|
|
|
|
|
|
|
|
|
|
|
Վարսավիրանոցներ |
● |
● |
● |
|
|
● |
● |
|
|
|
|
● |
|
|
● |
|
Քիմմաքրման ընդունման կետեր, լվացքատներ |
● |
● |
● |
|
|
● |
● |
|
|
|
|
|
|
|
|
|
Կոշիկի, հագուստի և կենցաղային տեխնիկայի վերանորոգման արհեստանոցներ |
● |
● |
● |
|
|
● |
● |
|
|
|
|
● |
|
|
|
|
Հասարական բաղնիքներ, սաունաներ |
● |
● |
● |
|
|
● |
● |
|
|
|
|
● |
|
|
|
|
Հասարակական սանհանգույցներ |
|
|
● |
|
● |
|
● |
|
|
|
|
● |
|
|
|
|
Աղբարկղեր |
● |
● |
● |
● |
● |
● |
● |
● |
● |
● |
● |
● |
● |
● |
● |
|
Կրոնական հիմնարկություններ |
|
|
|
|
|
|
|
|
|
|
|
|
|
|
|
|
Եկեղեցիներ, մատուռներ |
|
|
|
● |
|
|
|
|
|
|
|
|
|
|
|
|
Այլ կառույցներ եկեղեցականների համար |
|
|
|
● |
|
|
|
|
|
|
|
|
|
|
|
|
Մշակութային, մարզական, հասարակական նշանակության հիմնարկություններ |
|
|
|
|
|
|
|
|
|
|
|
|
|
|
|
|
Գրադարաններ, թանգարաններ, ցուցահանդեսներ պատկերասրահներ, արվեստի սրահներ, |
|
|
● |
● |
|
|
|
|
|
|
|
|
|
|
● |
|
Ակումբներ և հասարակական հավաքատեղիներ, գիշերային ակումբներ |
|
|
● |
|
|
● |
|
|
|
|
|
|
|
|
● |
|
Թատրոններ և կինոթատրոններ |
|
|
● |
● |
|
|
|
|
|
|
|
|
|
|
|
|
Բուսաբանական, կենդանաբանական, մշակույթի, հանգստի և մանկական տարբեր տիպի այգիներ |
|
|
|
|
● |
|
|
|
|
|
|
|
|
|
● |
|
Կեգլախաղարաններ, սեղանի թենիս, բիլիարդի դահլիճներ, մարզադահլիճներ |
|
|
● |
|
● |
|
|
|
|
|
|
|
|
|
● |
|
Խաղադաշտեր |
|
|
|
|
● |
|
|
|
|
|
● |
|
|
|
● |
|
Մարզադաշտեր |
|
|
|
|
● |
|
|
|
|
|
|
|
|
|
|
|
Բացօթյա ռեկրեացիոն կառույցներ, լողի, թենիսի և այլ ակումբներ |
|
|
|
|
● |
|
|
|
|
|
|
|
|
|
● |
|
Պուրակներ անվավոր չմուշկների և այլնի համար |
|
|
|
|
● |
|
|
|
|
|
|
|
|
|
● |
|
Հրաձգարաններ (տիրեր) |
|
|
|
|
● |
|
|
|
|
|
|
|
|
|
|
|
Առևտրական |
|
|
|
|
|
|
|
|
|
|
|
|
|
|
|
|
Սուպերմարքեթներ և հանրախանութներ |
|
|
● |
|
|
● |
● |
|
|
|
|
|
|
|
|
|
Առևտրի կենտրոններ |
|
|
● |
|
|
● |
|
|
|
|
|
|
|
|
|
|
Մանրածախ առևտրի, խանութներ, տաղավարներ, կրպակներ |
● |
● |
● |
|
● |
● |
● |
|
●* |
|
|
● |
|
|
|
|
Ավտոպահեստամասերի վաճառք |
|
|
|
|
|
● |
|
|
|
|
|
|
|
|
|
|
Տոնավաճառներ, ֆերմերային շուկաներ՝ բացառությամբ կենդանիների վաճառքի |
|
|
|
|
|
|
● |
|
|
|
|
|
|
|
|
|
Կենդանի ձկների վաճառք |
|
|
|
|
|
|
● |
|
|
|
|
|
|
|
|
|
Բացօթյա մեծածախ, մանրածախ առևտուր |
|
|
|
|
|
|
● |
|
|
|
|
|
|
|
|
|
Կենդանիների վաճառք |
|
|
|
|
|
|
|
|
|
|
|
|
● |
|
|
|
Հասարակական սնունդ |
|
|
|
|
|
|
|
|
|
|
|
|
|
|
|
|
Ավանդական ուտեստների խոհանոցներ, պանդոկներ, խորտկարաններ, մառաններ, ճաշարաններ |
|
|
● |
|
|
|
● |
|
|
|
|
|
|
|
|
|
Ռեստորաններ ոչ ավելի քան 20 նստելատեղով |
●** |
●** |
● |
|
|
|
|
|
|
|
|
|
|
|
|
|
Սրճարաններ և բարեր ոչ ավելի քան 20 նստելատեղով |
● |
● |
● |
|
|
|
|
|
|
|
|
|
|
|
|
|
Ռեստորաններ, սրճարաններ և բարեր (առանց սահմանափակ) |
|
|
|
● |
|
● |
● |
|
|
|
|
● |
|
|
● |
|
Բացօթյա ռեստորաններ, բարեր, սրճարաններ |
|
|
|
● |
|
● |
● |
|
|
|
|
● |
|
|
● |
|
Արագ պատրաստվող ուտեստների խորտկարաններ |
● |
● |
● |
|
|
● |
● |
|
|
|
|
● |
|
|
|
|
Արտադրություն |
|
|
|
|
|
|
|
|
|
|
|
|
|
|
|
|
Արդյունաբերական օբյեկտներ, պահեստարաններ |
|
|
|
|
|
|
|
|
|
|
|
|
● |
|
|
|
Փոքր բիզնեսի արտադրություններ, որոնք կապված չեն աղմուկի, պայթուցիկ և հրդեհավտանգ նյութերի և մթնոլորտի աղտոտման (ծուխ, գազեր) հետ |
● |
● |
● |
|
|
|
|
|
|
|
|
|
● |
|
|
|
Հացի, հրուշակեղենի, ոչ ոգելից ըմպելիքի, մթերքների (բացի մսի) արտադ. |
● |
● |
● |
|
|
|
|
|
|
|
|
|
● |
|
|
|
Գյուղատնտեսական մթերքի արտադրություն |
|
|
|
|
|
|
|
|
|
|
|
|
● |
|
|
|
Տնայնագործական արտադրություն, սեփական արտադրանքի առևտուր |
● |
|
● |
|
|
|
|
|
|
|
|
|
● |
|
|
|
Արհեստագործական արտադրամասեր և արհեստանոցներ (ավանդական իրերի արտադրություն) |
● |
● |
● |
|
|
|
|
|
|
|
|
|
● |
|
|
|
Հաղորդակցություններ, ավտոծառայություններ և տրանսպորտային կառույցներ |
|
|
|
|
|
|
|
|
|
|
|
|
|
|
|
|
Ավտոբուսային կայարաններ |
|
|
|
|
|
|
|
|
|
|
|
● |
|
|
|
|
Տրանսպորտի հավաքակայաններ և կառույցներ |
|
|
|
|
|
|
|
|
|
|
|
● |
|
|
|
|
Բենզալցավորման կայաններ* |
● |
● |
● |
● |
|
|
|
|
|
|
|
|
|
|
|
|
Ավտոկանգառներ** |
● |
● |
● |
● |
|
● |
● |
|
● |
|
|
● |
● |
|
|
|
Ավտոտնակներ |
● |
● |
● |
|
|
|
|
|
|
|
|
|
|
|
|
|
Գյուղատնտեսություն |
|
|
|
|
|
|
|
|
|
|
|
|
|
|
|
|
Գյուղ. աշխ. (այգեգործություն, ծառատնկումներ) |
● |
|
|
|
|
|
|
|
|
|
|
|
|
● |
|
|
Տնկարաններ |
● |
|
|
|
|
|
|
|
|
● |
|
|
|
|
|
|
Գյուղ. աշխ. (անասն. համ.՝ ընտ. կենդ. բուծում, բուժում, վաճառք)*** |
|
|
|
|
|
|
|
|
|
|
|
|
● |
|
|
|
Ինժեներական սարքավորումների օգտագործման ձևեր**** |
|
|
|
|
|
|
|
|
|
|
|
|
|
|
|
|
Վերգետնյա հաղորդալարեր |
● |
|
|
|
|
|
|
|
|
|
|
|
|
|
|
|
Էլեկտրական ենթակայաններ |
|
● |
|
|
|
|
● |
● |
● |
|
|
|
● |
|
● |
|
Ավտոմատ գազաբաշխիչ կայան (ԱԳԲԿ) |
|
|
|
|
|
|
|
● |
|
|
|
|
|
|
|
|
Գազակարգավորիչ պահարանային կետեր (ԳԿԿ) |
● |
● |
● |
● |
|
● |
● |
● |
● |
|
● |
● |
● |
|
● |
|
Հեռախոսային կապի բախշիչ կետեր (պահարանային) |
|
● |
● |
● |
|
● |
● |
|
● |
|
● |
● |
|
|
● |
|
Կապի ավտոմատ հեռ. կայաններ |
|
|
● |
● |
|
|
|
● |
|
|
|
|
|
|
|
|
Կոյուղու ցանցային հորեր |
● |
● |
● |
● |
● |
● |
● |
● |
● |
|
● |
● |
● |
● |
● |
|
Ջրամատակ. բաշխիչ հորեր |
● |
● |
● |
● |
● |
● |
● |
● |
● |
|
● |
● |
● |
● |
● |
|
Մալուխային էլեկտրահաղորդագծեր |
● |
● |
● |
● |
● |
● |
● |
● |
● |
|
● |
● |
● |
● |
● |
|
Փոքր հզորության լոկալ կաթսայատներ մինչև 5ՀԿ (ժամ) |
● |
● |
● |
● |
|
● |
● |
● |
● |
|
● |
● |
● |
● |
● |
|
Ստորգետնյա խողովակաշարեր (մետաղական, ոչ մետաղական) |
● |
● |
● |
● |
● |
● |
● |
● |
● |
|
● |
● |
● |
● |
● |
|
Ոչ հիմնական շինություններ |
|
|
|
|
|
|
|
|
|
|
|
|
|
|
|
|
Տաղավարներ (զրուցարաններ) |
|
● |
● |
● |
● |
|
|
|
|
|
|
|
|
|
● |
|
ճարտարապետական փոքր ձևեր |
● |
● |
● |
● |
● |
● |
● |
|
● |
● |
● |
● |
● |
● |
● |
|
- թույլատրված օգտագործման ձևեր o - չի թույլատրվում |
-----------------------------------------------------------------------------------------------------------------
* - ՀՀՇՆ 3-9.02-98 և ՀՀՇԱ IV-12.03.01-04 նորմերի պահանջներին համապատասխան
** - СНРА IV-11.03.03-02, СНиП 2.07.01, СНРА II 8.04-01 նորմերի պահանջներին համապատասխան
*** - ապահովելով քաղաքի կնտրոնական միջուկի, ինչպես նաև բազմահարկ բնակելի և հասարակական օգտագործման տարածքներից 100 մ հեռավորություն և բացառելով կենդանիների մուտքն այդ տարածքներ
**** - СНиП 2.04.03-85, "Канализация, наружные сети и сооружения" նորմերի պահանջներին համապատասխան
●* - դեղատներ
●** - ապահովելով հարակից կառույցների բնակչության հանգստի պայմանները
III-7. ԳՈՏԻՆԵՐ
1. Անհատական բնակելի կառուցապատման գոտի (ԱԿԳ)
Այս գոտին առանձնացվում է հիմնականում արդեն կազմավորված առանձնատնային կառուցապատում ունեցող թաղամասերի վերակառուցման, կանոնակարգման համար:
1.1. Թույլատրված օգտագործման ձևեր
Բնակելի
Ø Առանձնատներ տնամերձ հողամասերով:
Հյուրանոցային
Ø Հյուրատներ (սահմանափակ հզորությամբ),
Ø Վարձակալությամբ տրվող առանձնատներ։
Բուժական հաստատություններ
Ø Բուժական կաբինետներ։
Վարչական, ֆինանսական հիմնարկություններ և ծառայություններ
Ø Անհատական գրասենյակներ (օֆիսներ)։
Ø Քաղաքացիական պաշտպանության ապաստարաններ։
Բուժական
Ø Բուժական կաբինետներ:
Կենցաղ սպասարկման առաջնային ծառայություններ
Ø Վարսավիրանոցներ,
Ø Քիմմաքրման ընդունման կետեր, լվացքատներ,
Ø Կոշիկի, հագուստի, կենցաղային տեխնիկայի վերանորոգման արհեստանոցներ,
Ø Հասարակական բաղնիքներ,
Ø Աղբարկղեր։
Առևտրական
Ø Մանրածախ առևտրի խանութներ, տաղավարներ, կրպակներ:
Հասարակական սնունդ
Ø Ռեստորաններ ոչ ավելի քան 20 նստելատեղով,
Ø Սրճարաններ և բարեր (սահմանափակ նստելատեղերով);
Արտադրություն
Ø Փոքր բիզնեսի արտադրություններ, որոնք կապված չեն աղմուկի, պայթուցիկ, հրդեհավտանգ նյութերի և մթնոլորտի աղտոտման հետ,
Ø Հացի, հրուշակեղենի, ոչ ոգելից ըմպելիքի, մթերքների (բացի մսից) փոքրածավալ արտադրություն,
Ø Տնայնագործական արտադրություն, սեփական արտադրանքի առևտուր,
Ø Արհեստագործական արտադրամասեր և արհեստանոցներ (ավանդական իրերի արտադրություն):
Հաղորդակցություններ, ավտոծառայություններ և տրանսպորտային կառույցներ
Ø Ավտոկանգառներ,
Ø Ավտոտնակներ,
Ø Բենզալցավորման կայաններ։
Գյուղատնտեսություն
Ø Գյուղատնտեսական աշխատանքներ (այգեգործություն)՝ ներառյալ ընտանի կենդանիների բուծումը,
Ø Տնկարաններ։
Ինժեներական սարքավորումներ
Ø Վերգետնյա հաղորդալարեր,
Ø Գազակարգավորիչ պահարանային կետեր,
Ø Հեռախոսային կապի բաշխիչ կետեր,
Ø Կոյուղու ցանցային հորեր,
Ø Ջրամատ. բաշխիչ հորեր,
Ø Մալուխային էլեկտրահաղորդագծեր,
Ø Փոքր հզորության լոկալ կաթսայատներ,
Ø Ստորգետնյա խողովակաշարեր։
Ոչ հիմնական շինություններ
Ø Ճարտարապետական փոքր ձևեր։
Կառուցապատման չափորոշիչներ
Առանձնատներ՝ տնամերձ հողամասերով,
Ø Հողամասի մակերես (նվազագույն) - 400-600 քմ
Ø Մեկ կառուցապատման միավորի զբաղեցրած տարածք - հողամասի ընդհանուր մակերեսի 1/3-ից ոչ ավելի,
Ø Հողամասի ճակատի նվազագույն լայնություն - 20 մ։
Կառուցապատման ծավալատարածական կարգավորիչներ
Ø Շենքերի / շինությունների բարձրությունը (առավելագույն) - 8 մ
Ø Շենքերի / շինությունների զբաղեցված տարածք (առավելագույն) - 50%
Ø Հողամասի անջրանցիկ առավելագույն տարածք - 70%
Ø Հողամասի նվազագույն կանաչ ծածկույթ - 30%
2. Բազմաբնակարան բնակելի կառուցապատման գոտի (ԲԿԳ)
Այս թաղամասերը նախատեսվում են քաղաքի կենտրոնական միջուկում հողի արժեքի բարձրացմանը զուգընթաց հողն առավել արդյունավետ օգտագործելու (բարձր խտությամբ կառուցապատման իրականացմամբ), ինչպես նաև քաղաքային միջավայրին հատուկ բնակելի կառուցապատման զարգացմանը նպաստելու և խրախուսելու համար:
2.1 Թույլատրված օգտագործման ձևեր
Բնակելի
Ø Բազմաբնակարան տներ՝ առանց տնամերձ հողամասերի:
Հյուրանոցային
Ø Հյուրանոցներ (սահմանափակ),
Ø Հանրակացարաններ։
Կրթական հաստատություններ
Ø Վճարովի և կիրակնօրյա դպրոցներ։
Բուժական հաստատություններ
Ø Բուժական կաբինետներ
Վարչական, ֆինանսական հիմնարկություններ և ծառայություններ
Ø Անհատական գրասենյակներ (օֆիսներ),
Ø Փոստատներ, կապի բաժանմունքներ,
Ø Քաղաքացիական պաշտպանության ապաստարաններ։
Կենցաղ սպասարկման առաջնային ծառայություններ
Ø Վարսավիրանոցներ,
Ø Քիմմաքրման ընդունման կետեր, լվացքատներ,
Ø Կոշիկի, հագուստի, և կենցաղային տեխնիկայի վերանորոգման արհեստանոցներ,
Ø Հասարակական բաղնիքներ,
Ø Աղբարկղեր։
Առևտրական
Ø Մանրածախ առևտրի խանութներ, տաղավարներ, կրպակներ։
Հասարակական սնունդ
Ø Ռեստորաններ, սրճարաններ և բարեր (սահմանափակ),
Ø Արագ պատրաստվող ուտեստների խորտկարաններ։
Արտադրական
Ø Փոքր բիզնեսի արտադրություններ,
Ø Հացի, հրուշակեղենի, ոչ ոգելից ըմպելիքի, մթերքների փոքրածավալ արտադրություն,
Ø Արհեստագործական արտադրամասեր և արհեստանոցներ (ավանդական իրերի արտաադրություն):
Հաղորդակցություններ, ավտոծառայություններ և տրանսպորտային կառույցներ
Ø Ավտոտնակներ,
Ø Ավտոկանգառներ,
Ø Բենզալցավորման կայաններ։
Ինժեներական սարքավորումներ
Ø Էլեկտրական ենթակայաններ,
Ø Գազակարգավորիչ պահարանային կետեր,
Ø Հեռախոսային կապի բաշխիչ կետեր,
Ø Կոյուղու ցանցային հորեր,
Ø Ջրամատ. բաշխիչ հորեր,
Ø Մալուխային էլեկտրահաղորդագծեր,
Ø Փոքր հզորության լոկալ կաթսայատներ,
Ø Ստորգետնյա խողովակաշարեր։
Ոչ հիմնական շինություններ
Ø Ճարտարապետական փոքր ձևեր,
Ø Տաղավարներ (զրուցարաններ)։
Կառուցապատման չափորոշիչներ
Բազմաբնակարան տներ
Ø Ճակատի նվազագույն լայնություն - 15 մ
Ø Երկարությունը - չի սահմանափակվում
Կառուցապատման ծավալատարածական կարգավորիչներ
Բոլոր տիպի կառույցների համար
● Շենքերի/շինությունների բարձրությունը (առավելագույն) - 27 մ
● Շենքերի/շինությունների զբաղեցված տարածք (առավելագույն ) - 50%
● Հողամասի անջրանցիկ առավելագույն տարածք - 70%
● Հողամասի նվազագույն կանաչ ծածկույթ - 30%
3. Խառը կառուցապատման (ԽԿԳ)
Այս գոտիները առանձնացվում են, հիմնականում, արդեն կազմավորված խառը՝ բնակելի և հասարակական կառուցապատում ունեցող թաղամասերի վերակառուցման և կանոնակարգման համար՝ քաղաքի հետագա դինամիկ զարգացմանը համընթաց: Այս գոտիները նախատեսվում են հասարակական, բնակելի կառուցապատման և ընդհանուր օգտագործման հողերի խառը տեղակայման համար՝ այնպիսի համադրությամբ, որպեսզի որևէ մեկի գերակայությունը չլինի:
3.1 Թույլատրված օգտագործման ձևեր
Բնակելի
Ø Առանձնատներ` տնամերձ հողամասերով,
Ø Բազմաբնակարան տներ՝ առանց հողամասերի:
Հյուրանոցային
Ø Ճանապարհամերձ տներ (վարձակալությամբ տրվող առանձնատներ),
Ø Հյուրանոցներ, մոթելներ (սահմանափակ հզորությամբ),
Ø Հանրակացարաններ։
Կրթական հաստատություններ
Ø Վճարովի և կիրակնօրյա դպրոցներ,
Ø Համալսարաններր, քոլեջներ (ներառյալ հանրակացարանները, օֆիսները, մարզական համալիրներ):
Բուժական
Ø Բուժական կաբինետներ,
Ø Հիվանդանոցներ և պոլիկլինիկաներ։
Վարչական, ֆինանսական և կոմունալ հիմնարկություններ և ծառայություններ
Ø Անհատական գրասենյակներ (օֆիսներ),
Ø Բանկեր, բորսաներ և դրամավարկային այլ հաստատություններ, դրանց գրասենյակներ,
Ø Ոստիկանական տեղամասեր,
Ø Փոստատներ,
Ø Քաղաքացիական պաշտպանության ապաստարաններ։
Կենցաղ սպասարկման առաջնային ծառայություններ
Ø Վարսավիրանոցներ,
Ø Քիմմաքրման կետեր և լվացքատներ,
Ø Կոշիկի, հագուստի և կենցաղային տեխնիկայի վերանորոգման արհեստանոցներ,
Ø Հասարակական բաղնիքներ,
Ø Հասարակական սանհանգույցներ,
Ø Աղբարկղեր։
Մշակութային, մարզական, հասարակական նշանակության հիմնարկություններ
Ø Գրադարաններ, թանգարաններ, ցուցահանդեսներ, պատկերասրահներ, արվեստի կենտրոններ,
Ø Ակումբներ և հասարակական հավաքատեղիներ, գիշերային ակումբներ,
Ø Թատրոններ, կինոթատրոններ,
Ø Կեգլախաղարաններ, սեղանի թենիսի, բիլիարդի դահլիճներ։
Առևտրական
Ø Մանրածախ առևտրի խանութներ, տաղավարներ, կրպակներ,
Ø Սուպերմարքեթներ և հանրախանութներ,
Ø Առևտրի կենտրոններ:
Հասարակական սնունդ
Ø Ավանդական ուտեստների խոհանոցներ, պանդոկներ, խորտկարաններ, մառաններ, ճաշարաններ,
Ø Ռեստորաններ (սահմանափակ),
Ø Սրճարաններ և բարեր (սահմանափակ),
Ø Արագ պատրաստվող ուտեստների խորտկարաններ:
Արտադրություն
Ø Փոքր բիզնեսի արտադրություններ, որոնք կապված չեն աղմուկի, պայթուցիկ և հրդեհավտանգ նյութերի և արտանետումների հետ,
Ø Հացի, հրուշակեղենի, ոչ ոգելից ըմպելիքի, մթերքների փոքրածավալ արտադրություն
Ø Տնայնագործական արտադրություն,
Ø Արհեստագործական արտադրամասեր և արհեստանոցներ (ավանդական իրերի արտադրություն):
Հաղորդակցություններ, ավտոծառայություններ և տրանսպորտային կառույցներ
Ø Բենզալցավորման կայաններ,
Ø Ավտոկանգառներ,
Ø Ավտոտնակներ։
Ինժեներական սարքավորումներ
Ø Էլեկտրական ենթակայաններ,
Ø Գազակարգավորիչ պահարանային կետեր,
Ø Հեռախոսային կապի բաշխիչ կետեր,
Ø Կապի ավտոմատ հեռախոսակայաններ,
Ø Կոյուղու ցանցային հորեր,
Ø Ջրամատ. բաշխիչ հորեր,
Ø Մալուխային էլեկտրահաղորդագծեր,
Ø Փոքր հզորության լոկալ կաթսայատներ,
Ø Ստորգետնյա խողովակաշարեր։
Ոչ հիմնական շինություններ
Ø Տաղավարներ (զրուցարաններ),
Ø Ճարտարապետական փոքր ձևեր։
Կառուցապատման չափորոշիչներ
Առանձնատներ՝ տնամերձ հողանասերով
Ø Հողամասի թույլատրելի մակերես (նվազագույն ) - 400քմ
Ø Հողամասի ճակատի նվազագույն լայնություն - 20մ
---------------------------------------------------------------------------------------------------------------
Բազմաբնակարան տներ՝ առանց հողամասերի
Ø Ճակատի նվազագույն լայնություն - 15 մ
Ø Երկարությունը - չի սահմանափակվում
Կառուցապատման ծավալատարածական կարգավորիչներ
բնակելի տների համար
Ø Շենքերի /շինությունների բարձրությունը (առավելագույն) - 15մ
Ø Շենքերի /շինությունների զբաղեցված տարածք (առավելագույն) - 50%
Ø Հողամասի անջրանցիկ առավելագույն տարածք - 70%
Ø Հողամասի նվազագույն կանաչ ծածկույթ - 30%
այլ շենքերի /շինությունների համար
Ø Շենքերի /շինությունների բարձրությունը (առավելագույն) - 9մ
Ø Շենքերի /շինությունների զբաղեցված տարածքը - չի սահմանափակվում,
Ø Հողամասի անջրանցիկ առավելագույն տարածք - չի սահմանափակվում,
Ø Հողամասի նվազագույն կանաչ ծածկույթ- չի սահմանափկվում:
Ø Վարչական հրապարակի պարագծով հասարակական շենքերի բարձրությունը պետք է նախատեսել ոչ պակաս քան 12-15մ,
Ø Բոլոր առաջին հարկերում հասարակական սպասարկման օբյեկտներ ունեցող շենքերը դրվում են կարմիր գծի վրա:
4. Հասարակական-վարչական գործարարական գործառույթների զարգացման գոտի (ՀԿԳ)
Այս գոտիները նախատեսվում են հիմնականում գործարարական, ֆինանսական և վարչական և տեղական կառավարման գործունեությունը քաղաքի տարածքում կենտրոնացնելու և կանոնակարգելու համար:
4.1 Թույլատրված օգտագործման ձևեր
Հյուրանոցային ծառայություններ
Ø Հյուրանոցներ (մինչև 200 տեղ),
Ø Հյուրանոցներ, մոթելներ (սահմանափակ կոնտինգենտով)։
Բուժական հաստատություններ
Ø Բուժական կաբինետներ։
Վարչական, ֆինանսական հիմնարկություններ և ծառայություններ
Ø Քաղաքային նշանակության վարչակառավարման հիմնարկներ, դրանց գրասենյակներ,
Ø Բանկեր, բորսաներ և դրամավարկային այլ հաստատություններ, դրանց գրասենյակներ,
Ø Փոստատներ, կապի բաժանմունքներ,
Ø Ոստիկանական տեղամասեր,
Ø Քաղ. պաշտպանության ապաստարաններ։
Կենցաղսպասարկման առաջնային ծառայություններ
Ø Աղբարկղեր։
Կրոնական հիմնարկություններ
Ø Եկեղեցիներ, մատուռներ,
Ø Այլ կառույցներ եկեղեցականների համար։
Մշակութային, մարզական, հասարակական նշանակության հիմնարկություններ
Ø Գրադարաններ, թանգարաններ, ցուցահանդեսներ, պատկերասրահներ, արվեստի կենտրոններ,
Ø Թատրոններ, կինոթատրոններ։
Հասարակական սնունդ
Ø Ռեստորաններ, սրճարաններ և բարեր (առանց սահմանափակման),
Ø Բացօթյա ռեստորաններ, սրճարաններ, բարեր։
Հաղորդակցություններ, ավտոծառայություններ և տրանսպորտային կառույցներ
Ø Բենզալցավորման կայաններ,
Ø Ավտոկանգառներ։
Ինժեներական սարքավորումներ
Ø Գազակարգավորիչ պահարանային կետեր,
Ø Հեռախոսային կապի բաշխիչ կետեր,
Ø Կապի ավտոմատ հեռախոսակայաններ,
Ø Կոյուղու ցանցային հորեր,
Ø Ջրամատ. բաշխիչ հորեր,
Ø Մալուխային էլեկտրահաղորդագծեր,
Ø Փոքր հզորության լոկալ կաթսայատներ,
Ø Ստորգետնյա խողովակաշարեր։
Կառուցապատման չափորոշիչներ
Կառուցապատման ծավալատարածական կարգավորիչներ
շենքերի /շինությունների համար
Ø Շենքերի /շինությունների բարձրությունը (առավելագույն) - 15 մ
Ø Շենքերի /շինությունների զբաղեցված տարածքը* - 40-100%,
Ø Հողամասի անջրանցիկ առավելագույն տարածք* - 70 %,
Ø Հողամասի նվազագույն կանաչ ծածկույթ* - 30%:
Ø Վարչական հրապարակի պարագծով հասարակական շենքերի բարձրությունը պետք է նախատեսել ոչ պակաս քան 12-15մ,
Ø Բոլոր առաջին հարկերում հասարակական սպասարկման օբյեկտներ ունեցող շենքերը դրվում են կարմիր գծի վրա:
----------------------------------------------------------------------------------------------------------------
* - կոնկրետ տարածքների չափաբաժինները տրված են գոտիավորման գծագրի վրա (տես աղյուսակը)
5. Հասարակական օգտագործման կանաչ գոտիներ (ՀՕԿԳ)
Համաքաղաքային նշանակության հասարակական կանաչ տարածությունների գոտիները ընդգրկում են համաքաղաքային նշանակության այգիները, պուրակները, ծառուղիները և այլ հասարակական նշանակության կանաչապատ տարածքները:
5.1 Թույլատրված օգտագործման ձևեր
Հասարակական սնունդ
Ø Արագ պատրաստվող ուտեստների խորտկարաններ,
Ø Ռեստորաններ, սրճարաններ և բառեր (ոչ ավեի քան 30 նստելատեղով),
Ø Բացօթյա ռեստորաններ, բարեր, սրճարաններ (առանց սահամնափակումների),
Ø Ավանդական ուտեստների խոհանոցներ, պանդոկներ, խորտկարաններ, մառաններ, ճաշարաններ։
Վարչական, ֆինանսական հիմնարկություններ և ծառայություններ
Ø Քաղաքացիական պաշտպանության ապաստարաններ։
Կենցաղսպասարկման առաջնային ծառայություններ
Ø Հասարակական սանհանգույցներ,
Ø Աղբարկղեր։
Մշակութային, մարզական, հասարակական օգտագործման հիմնարկություններ
Ø Բուսաբանական, կենդանաբանական, մշակույթի, հանգստի և մանկական տարբեր տիպի այգիներ,
Ø Խաղադաշտեր,
Ø Մարզադաշտեր,
Ø Պուրակներ անիվավոր չմուշկների համար,
Ø Բացօթյա ռեկրեացիոն կառույցներ, լողի, թենիսի և այլ ակումբներ,
Ø Կեգլախաղարաններ, սեղանի թենիսի, բիլիարդի դահլիճներ։
Ø Հրաձգարաններ (պնևմո տիրեր)։
Առևտրական
Ø Մանրածախ առևտրի տաղավարներ, կրպակներ:
Հաղորդակցություններ, ավտոծառայություններ և տրանսպորտային կառույցներ
Ø Ավտոկանգառներ։
Ինժեներական սարքավորումներ
Ø Կոյուղու ցանցային հորեր,
Ø Ջրամատ. բաշխիչ հորեր,
Ø Մալուխային էլեկտրահաղորդագծեր,
Ø Ստորգետնյա խողովակաշարեր։
Ոչ հիմնական շինություններ
Ø Տաղավարներ,
Ø Ճարտարապետական փոքր ձևեր։
Կառուցապատման չափորոշիչներ
Ոչ հիմնական շինությունների համար
Ø Մեկ կառուցապատման միավորի զբաղեցրած տարածք (նվազագույն) - 4քմ
Հիմնական շինությունների համար
Ø Հողամասերի նվազագույն չափերը համաձայն գործող նորմերի,
Կառուցապատման ծավալատարածական կարգավորիչներ
բոլոր տիպի շենքերի /շինությունների համար
● Շենքերի / շինությունների բարձրությունը (առավելագույն) 8 մ
● Շենքերի / շինությունների զբաղեցված տարածք (առավելագույն) 20 %
● Հողամասի անջրանցիկ առավելագույն տարածք 30%
● Հողամասի նվազագույն կանաչ ծածկույթ 70%
6. Առևտրի և հասարակական սպասարկման համաքաղաքային գոտի (ՀՍԱԳ)
Գոտին նախատեսվում է խոշոր առևտրական և սպասարկման օբյեկտների կենտրոնացման և քաղաքի կենտրոնում առևտրական ու սպասարկման գործընթացը առավելագույնս կանոնակարգելու համար:
6.1 Թույլատրված օգտագործման ձևեր
Հյուրանոցային ծառայություններ
Ø Հյուրանոցներ (մինչև 200 տեղ),
Ø Մոթելներ (առանց սահմ.)։
Վարչական, ֆինանսական հիմնարկություններ և ծառայություններ
Ø Անհատական գրասենյակներ (օֆիսներ),
Ø Քաղաքացիական պաշտպանության ապաստարաններ։
Կենցաղային սպասարկման առաջնային ծառայություններ
Ø Վարսավիրանոցներ,
Ø Քիմմաքրման կետեր և լվացքատներ,
Ø Կոշիկի, հագուստի և կենցաղային տեխնիկայի վերանորոգման արհեստանոցներ,
Ø Հասարակական բաղնիքներ,
Ø Աղբարկղեր։
Մշակութային, մարզական, հասարակական նշանակության հիմնարկություններ
Ø Ակումբներ և հասարակական հավաքատեղիներ, գիշերային ակումբներ։
Առևտրական
Ø Սուպերրմարքեթներ և հանրախանութներ,
Ø Առևտրի կենտրոններ,
Ø Մանրածախ առևտրի, խանութներ, տաղավարներ, կրպակներ
Ø Ավտոպահեստամասերի վաճառք:
Հասարակական սնունդ
Ø Ռեստորաններ (առանց սահմանափակումների),
Ø Սրճարաններ և բառեր (առանց սահմանափակումների),
Ø Բացօթյա ռեստորաններ, բարեր, սրճարաններ (առանց սահամնափակումների),
Ø Արագ պատրաստվող ուտեստների խորտկարաններ:
Հաղորդակցություններ, ավտոծառայություններ և տրանսպորտային կառույցներ
Ø Ավտոկանգառներ։
Ինժեներական սարքավորումներ
Ø Գազակարգավորիչ պահարանային կետեր,
Ø Հեռախոսային կապի բաշխիչ կետեր,
Ø Կոյուղու ցանցային հորեր,
Ø Ջրամատ. բաշխիչ հորեր,
Ø Մալուխային էլեկտրահաղորդագծեր,
Ø Փոքր հզորության լոկալ կաթսայատներ,
Ø Ստորգետնյա խողովակաշարեր։
Ոչ հիմնական շինություններ
Ø Ճարտարապետական փոքր ձևեր։
Կառուցապատման չափորոշիչներ
Բոլոր տիպի կառույցների համար
Ø Հողամասերի նվազագույն չափերը՝ համաձայն գործող նորմերի։
Կառուցապատման կարգավորիչներ*
Բոլոր տիպի կառույցների համար
Ø Շենքերի /շինությունների բարձրությունը (առավելագույն) - 9 մ
Ø Շենքերի (շինությունների զբաղեցված տարածք (առավելագույն)- կառուցապատման ենթակա տարածքի 30-100 %,
Ø Հողամասի անջրանցիկ առավելագույն տարածք (առավելագույն) - 70%,
Ø Հողամասի նվազագույն կանաչ ծածկույթ (առավելագույն) - 30%:
* - առանձին տարածքների չափաբաժինները տես գծագրում
7. Տոնավաճառային-(ՏԳ)
Տոնավաճառային-ցուցահանդեսային գոտիները նախատեսվում են հիմնականում բաց տարածքներում զանգվածային առևտրի և տոնավաճառայյին գործունեության կենտրոնացման և կանոնակարգման համար: Այստեղ կարող են տեղադրվել արևելյան տիպի շուկաներ, տոնավաճառային համալիրներ մշտական գործող ցուցահանդեսներ,
7.1 Թույլատրված օգտագործման ձևեր
Բուժական հաստատություններ
Ø Բուժական կաբինետներ։
Վարչական, ֆինանսական հիմնարկություններ և ծառայություններ
Ø Անհատական գրասենյակներ (օֆիսներ)։
Ø Քաղաքացիական պաշտպանության ապաստարաններ։
Կենցաղսպասարկման առաջնային ծառայություններ
Ø Վարսավիրանոցներ,
Ø Քիմմաքրման կետեր և լվացքատներ,
Ø Կոշիկի, հագուստի և կենցաղային տեխնիկայի վերանորոգման արհեստանոցներ,
Ø Հասարակական բաղնիքներ,
Ø Հասարակական սանհանգույցներ,
Ø Աղբարկղեր։
Առևտրական
Ø Սուպերմարքեթներ և հանրախանութներ,
Ø Տոնավաճառներ, ֆերմերային շուկաներ (բացառությամբ կենդանիների վաճառքի),
Ø Մանրածախ առևտրի խանութներ, կրպակներ, տաղավարներ,
Ø Կենդանի ձկների վաճառք,
Ø Բացօթյա մանրածախ առևտուր,
Ø Բացօթյա մեծածախ առևտուր:
Հասարակական սնունդ
Ø Ավանդական ուտեստների խոհանոցներ, պանդոկներ, խորտկարաններ, մառաններ, ճաշարաններ,
Ø Ռեստորաններ, սրճարաններ և բառեր (առանց սահմանափակումների),
Ø Բացօթյա ռեստորաններ, բարեր, սրճարաններ (առանց սահամնափակումների,
Ø Արագ պատրաստվող ուտեստների խորտկարաններ:
Հաղորդակցություններ, ավտոծառայություններ և տրանսպորտային կառույցներ
Ø Ավտոկանգառներ։
Ինժեներական սարքավորումներ
Ø Էլեկտրական ենթակայաններ,
Ø Գազակարգավորիչ պահարանային կետեր,
Ø Հեռախոսային կապի բաշխիչ կետեր,
Ø Կոյուղու ցանցային հորեր,
Ø Ջրամատ. բաշխիչ հորեր,
Ø Մալուխային էլեկտրահաղորդագծեր,
Ø Փոքր հզորության լոկալ կաթսայատներ,
Ø Ստորգետնյա խողովակաշարեր։
Ոչ հիմնական շինություններ
Ճարտարապետական փոքր ձևեր։
Կառուցապատման չափորոշիչներ
Բոլոր տիպի կառույցների համար
Ø Հողամասերի նվազագույն չափերը համաձայն գործող նորմերի,
Ø Շենքերի /շինությունների չափերը և թույլատրելի հեռավորությունները այլ կառույցներից և տարածքներից ընդունել համաձայն սանիտարահիգիենիկ, ինսոլյացիայի, դիտելիության և հակահրդեհային պահանջների:
Կառուցապատման ծավալատարածական կարգավորիչներ
Ø Շենքերի /շինությունների բարձրությունը (առավելագույն) - 8մ
Ø Հողամասի անջրանցիկ առավելագույն տարածք - 70%
Ø Հողամասի նվազագույն կանաչ ծածկույթ - 30%
8. Բուժական գոտի (ԲԳ)
Այս գոտին նախատեսվում է բուժական, վերականգնողական հիմնարկությունների տեղաբաշխման ու տարածքների կազմակերպման կանոնակարգման համար
8.1. Թույլատրված օգտագործման ձևեր
Կրթական հաստատություններ
Ø Համալսարաններ, ինստիտուտներ, քոլեջներ։
Բուժական հաստատություններ
Ø Բուժական կաբինետներ,
Ø Հիվանդանոցներ, պոլիկլինիկաներ,
Ø Վերականգնողական կենտրոններ։
Վարչական, ֆինանսական հիմնարկություններ և ծառայություններ
Ø Քաղաքացիական պաշտպանության ապաստարաններ։
Կենցաղ սպասարկման առաջնային ծառայություններ
Ø Աղբարկղեր։
Առևտրական
Ø Մանրածախ առևտրի խանութներ, կրպակներ, տաղավարներ (դեղամիջոցների վաճառք)։
Հաղորդակցություններ, ավտոծառայություններ և տրանսպորտային կառույցներ
Ø Ավտոկանգառներ։
Ինժեներական սարքավորումներ
Ø Էլեկտրական ենթակայաններ,
Ø Գազակարգավորիչ պահարանային կետեր,
Ø Հեռախոսային կապի բաշխիչ կետեր,
Ø Կոյուղու ցանցային հորեր,
Ø Ջրամատ. բաշխիչ հորեր,
Ø Մալուխային էլեկտրահաղորդագծեր,
Ø Փոքր հզորության լոկալ կաթսայատներ,
Ø Ստորգետնյա խողովակաշարեր։
Ոչ հիմնական շինություններ
Ճարտարապետական փոքր ձևեր։
Կառուցապատման չափորոշիչներ
Բոլոր տիպի կառույցների համար
Ø Հողամասերի նվազագույն չափերը համաձայն գործող նորմերի,
Ø Շենքերի /շինությունների չափերը և թույլատրելի հեռավորությունները այլ կառույցներից և տարածքներից ընդունել համաձայն սանիտարահիգիենիկ, ինսոլյացիայի, դիտելիության և հակահրդեհային պահանջների:
Կառուցապատման ծավալատարածական կարգավորիչներ*
Ø Շենքերի /շինությունների բարձրությունը (առավելագույն) - 12մ
Ø Շենքերի (շինությունների զբաղեցված տարածք (առավելագույն)- կառուցապատման ենթակա տարածքի 30-100 %,
Ø Հողամասի անջրանցիկ առավելագույն տարածք - 70%
Ø Հողամասի նվազագույն կանաչ ծածկույթ - 30%
* - առանձին տարածքների չափաբաժինները տես գծագրում
9. Արտաքին տրանսպորտի (ԱՏԳ)
Արտաքին տրանսպորտի գոտին նախատեսվում քաղաքի տարածքում արտաքին տրանսպորտի, տվյալ դեպքում ավտոկայանի, անմիջական ներկայությունը ապահովելու համար, դրա կառույցների, ենթակառուցվածքների և հարակից տարածքների օգտագործման ռեժիմների կարգավորման և կանոնակարգման համար
9.1. Թույլատրված օգտագործման ձևեր
Հյուրանոցային
Ø Հյուրանոցներ (սահմանափակ),
Ø Մոթելներ (սահմանափակ):
Բուժական
Ø Բուժական կաբիներտներ
Վարչակառավարման, կապի, ֆինանսական, հասարակական օգտագործման հիմնարկություններ
Ø Անհատական գրասենյակներ,
Ø Փոստատներ, կապի բաժանմունքներ,
Ø Ոստիկանական տեղամասեր,
Ø Քաղաքացիական պաշտպանության ապաստարաններ։
Կենցաղային սպասարկման առաջնային ծառայություններ
Ø Վարսավիրանոցներ,
Ø Քիմմաքրման կետեր և լվացքատներ,
Ø Կոշիկի, հագուստի և կենցաղային տեխնիկայի վերանորոգման արհեստանոցներ,
Ø Հասարակական սանհանգույցներ,
Ø Աղբարկղեր։
Առևտրական
Ø Մանրածախ առևտրի, խանութներ, տաղավարներ, կրպակներ:
Հասարակական սնունդ
Ø Ռեստորաններ, սրճարաններ և բառեր (առանց սահմանափակումների),
Ø Բացօթյա ռեստորաններ, բարեր, սրճարաններ (առանց սահամնափակումների),
Ø Արագ պատրաստվող ուտեստների խորտկարաններ:
Ավտոծառայություններ և տրանսպորտային կառույցներ
Ø Ավտոբուսային կայարաններ,
Ø Տրանսպորտի հավաքակայաններ և կառույցներ,
Ø Ավտոկանգառներ։
Ինժեներական սարքավորումներ
Ø Գազակարգավորիչ պահարանային կետեր,
Ø Հեռախոսային կապի բաշխիչ կետեր,
Ø Կոյուղու ցանցային հորեր,
Ø Ջրամատ. բաշխիչ հորեր,
Ø Մալուխային էլեկտրահաղորդագծեր,
Ø Փոքր հզորության լոկալ կաթսայատներ,
Ø Ստորգետնյա խողովակաշարեր։
Ոչ հիմնական շինություններ
Ճարտարապետական փոքր ձևեր։
Կառուցապատման չափորոշիչներ
Բոլոր տիպի կառույցների համար
Ø Հողամասերի նվազագույն չափերը համաձայն գործող նորմերի,
Կառուցապատման ծավալատարածական կարգավորիչներ
Բոլոր տիպի կառույցների համար
Ø Շենքերի / շինությունների բարձրությունը (առավելագույն) - 12մ
Ø Շենքերի / շինությունների զբաղեցված տարածք (առավելագույն) - չի սահմանափակվում
Ø Հողամասի անջրանցիկ առավելագույն տարածք - չի սահմանափակվում
Ø Հողամասի նվազագույն կանաչ ծածկույթ - չի սահմանափակվում
10. Արդյունաբերության, ընդերքօգտագործման և այլ արտադրական նշանակության օբյեկտների գոտի - ԱԳ*
Այս գոտին նախատեսվում է քաղաքի տարածքում կազմակերպվող արտադրությունների համար համապատասխան մեկուսացված մասնագիտացված տարածքներ ապահովելու համար
10.1. Թույլատրված օգտագործման ձևեր
Վարչակառավարման, կապի, ֆինանսական, հասարակական օգտագործման հիմնարկություններ
Ø Քաղաքացիական պաշտպանության ապաստարաններ։
Կենցաղային սպասարկման առաջնային ծառայություններ
Ø Աղբարկղեր։
Առևտրական
Ø Կենդանիների վաճառք
Արտադրական
Ø Արդյունաբերական ձեռնարկություններ, որոնց գործունեությունը կապված չէ աղմուկի, պայթուցիկ և հրդեհավտանգ նյութերի և մթնոլորտային օդի աղտոտման հետ,
Ø Փոքր բիզնեսի արտադրություններ, որոնք կապված չեն աղմուկի, պայթուցիկ և հրդեհավտանգ նյութերի և մթնոլորտի աղտոտման հետ,
Ø Հացի, հրուշակեղենի, ըմպելիքի, մթերքների (բացի մսի) արտադրություն,
Ø Տնայնագործական արտադրություն, սեփական արտադանքի առևտուր,
Ø Արհեստագործական արտադրամասեր և արհեստանոցներ (ավանդական արհեստներ):
Ավտոծառայություններ և տրանսպորտային կառույցներ
Ø Ավտոկանգառներ։
Գյուղատնտեսություն
Ø Գյուղատնտեսական աշխատանքներ, անասնապահական համալիրներ (ընտանի կենդանիների բուծում, բուժում, վաճառք)
Ինժեներական սարքավորումներ
Ø Էլեկտրական ենթակայաններ,
Ø Գազակարգավորիչ պահարանային կետեր,
Ø Կոյուղու ցանցային հորեր,
Ø Ջրամատ. բաշխիչ հորեր,
Ø Մալուխային էլեկտրահաղորդա"ծեր,
Ø Փոքր հզորության լոկալ կաթսայատներ,
Ø Ստորգետնյա խողովակաշարեր։
Ոչ հիմնական շինություններ
Ø Ճարտարապետական փոքր ձևեր։
---------------------------------------------------------------------------------------------------------
* - բոլոր օբյեկտների իրականացումը՝ հաստաված նախագծերով (տեխնոլոգիական պրոցեսների համապատասխան ենթակառուցվածքների ապահովմամբ և սանիտարական պահպանման ու անվտանգության գոտիների սահմանմամբ, բնապահպանական պահանջների իրականացմամբ)
Կառուցապատման չափորոշիչներ
Բոլոր տիպի կառույցների համար
Ø Հողամասերի նվազագույն չափերը համաձայն գործող նորմերի,
Կառուցապատման ծավալատարածական կարգավորիչներ
Բոլոր տիպի կառույցների համար
Ø Շենքերի / շինությունների բարձրությունը (առավելագույն) - 8մ
Ø Շենքերի / շինությունների զբաղեցված տարածք (առավելագույն) - համաձայն գործող նորմերի,
Ø Հողամասի անջրանցիկ առավելագույն տարածք - չի սահմանափակվում,
Ø Հողամասի նվազագույն կանաչ ծածկույթ - չի սահմանափակվում:
11. Ինժեներական ենթակառուցվածքների գոտի (ԻԵԳ)
Գոտին առանձնացվում է ինժեներական ենթակռուցվաածքներով ապահովվածությունը գործող ստանդարտներին համապատասխանեցման համար։
11.1. Թույլատրված օգտագործման ձևեր
Ø Մալուխային էլեկտրահաղորդագծեր,
Ø Էլեկտրական ենթակայաններ,
Ø Գազակարգավորիչ կայաններ / առանձնացված շենքերում,
Ø Հեռախոսային կապի բաշխիչ պահարանային,
Ø Կոյուղու ցանցային հորեր,
Ø Ջրամատակարարման բաշխիչ հորեր,
Ø Ոչ մետաղական /պոլիէտիլենային, բետոնե, երկաթբետոնե, թուջե/ և մետաղական խողովակաշարեր։
Կառուցապատման չափորոշիչներ
Բոլոր տիպի կառույցների համար
● Հողամասերի նվազագույն չափերը համաձայն գործող նորմերի
● Շենքերի/շինությունների չափերը և թույլատրելի հեռավորությունները այլ կառույցներից և տարածքներից ընդունել համաձայն սանիտարահիգիենիկ, ինսոլյացիայի, դիտելիության և հակահրդեհային պահանջների
Կառուցապատման կարգավորիչներ
Բոլոր տիպի կառույցների համար
Ø Շենքերի /շինությունների բարձրությունը/max - 3մ
Ø Շենքերի /շինությունների զբաղեցված տարածք /max - չի սահմանափակվում
Ø Հողամասի անջրանցիկ առավելագույն տարածք չի - սահմանափակվում
Ø Հողամասի նվազագույն կանաչ ծածկույթ - չի սահմանափակվում
Լրացուցիչ պահանջներ
Ø Վերգետնյա հաղորդալարեր թույլատրվում է միայն ցացրահարկ կառուցապատման բնակելի թաղամասերում:
Ø Գազակարգավորիչ /ԳԿԿ պահարանային կայանները պետք է տեղակայվեն փողոցների կարմիր գծերից ներս, որպես կանոն, բակային տարածքներում:
Ø Կապի ավտոմատ հեռախոսային կայանները, որպես կանոն, պետք է տեղադրվեն առանձին շենքերում:
Ø Մետաղական՝ ուժեղացված մեկուսացումով և/ կամ չժանգոտող խողովաքաշարերը, որպես կանոն, պետք է կիրառվեն բարձր ճնշման ջրատար և ջերմատար ցանցերի իրականացման համար:
12.Անտառապուրակային գոտի (ԱՆՊԳ)
Գոտին առանձնացվում է բնական լանդշաֆտի արժեքավոր ձևերի վերականգնման, էկոհամակարգերի տարբեր խախտումների փողհատուցման գործընթացների կանոնակարգման, բնակավայրի սանիտարահիգիենիկ պայմանների բարելավման, բարենպաստ միկրոկլիմայի ձևավորման, ինժեներական նախապատրաստման պարտադիր միջոցառումների համալիր անցկացումը ապահովման համար։
12.1. Թույլատրված օգտագործման ձևեր
Կենցաղսպասարկման առաջնային ծառայություններ
Ø Աղբարկղեր։
Գյուղատնտեսություն
Ø Տնկարաններ։
Ոչ հիմնական շինություններ
Ø Ճարտարապետական փոքր ձևեր։
13.Ուսումնական գոտի (ՈՒԳ)
Այս գոտին նախատեսվում է քաղաքի ուսումնակրթական պրոցեսի կազմակերպման, դրանց օբյեկտների տեղաբաշխման կանոնակարգման համար։
13.1. Թույլատրված օգտագործման ձևեր
Հյուրանոցային ծառայություններ
Ø Հանրակացարաններ։
Ուսումնական հաստատություններ
Ø Մանկապարտեզներ, մանկամսուրներ,
Ø Վճարովի և կիրակնօրյա դպրոցներ,
Ø Միջնակարգ դպրոցներ,
Ø Համալսարաններ, ինստիտուտներ, քոլեջներ։
Վարչական, ֆինանսական հիմնարկություններ և ծառայություններ
Ø Քաղպաշտպանության ապաստարաններ։
Կենցաղ սպասարկման առաջնային ծառայություններ
Ø Աղբարկղեր։
Մշակույթի, հասարակական նշանակության և մարզական հիմնարկություններ
Ø Խաղադաշտեր,
Ինժեներական սարքավորումներ
Ø Գազակարգավորիչ պահարանային կետեր,
Ø Հեռախոսային կապի բաշխիչ կետեր (պահարանային),
Ø Կոյուղու ցանցային հորեր,
Ø Ջրամատ. բաշխիչ հորեր,
Ø Մալուխային էլեկտրահաղորդագծեր,
Ø Փոքր հզորության լոկալ կաթսայատներ,
Ø Ստորգետնյա խողովակաշարեր։
Ոչ հիմնական շինություններ
Ø Տաղավարներ (զրուցարաններ),
Ø Ճարտարապետական փոքր ձևեր։
Կառուցապատման չափորոշիչներ
Բոլոր տիպի կառույցների համար
● Հողամասերի նվազագույն չափերը համաձայն գործող նորմերի
● Շենքերի/շինությունների չափերը և թույլատրելի հեռավորությունները այլ կառույցներից և տարածքներից ընդունել համաձայն սանիտարահիգիենիկ, ինսոլյացիայի, դիտելիության և հակահրդեհային պահանջների
Կառուցապատման կարգավորիչներ
Բոլոր տիպի կառույցների համար
Ø Շենքերի /շինությունների բարձրությունը/max - 12 մ
Ø Շենքերի /շինությունների զբաղեցված տարածք /max - կառ. համար հատկացած տարածքում չի սահմանափակվում
Ø Հողամասի անջրանցիկ առավելագույն տարածք 70%,
Ø Հողամասի նվազագույն կանաչ ծածկույթ - 30%։
14. Բուֆերային գոտի (ԲՖԳ)
Այս գոտին նախատեսվում է քաղաքի շրջանցիկ ճանապարհից բացասական ազդեցությունը նվազեցնելու համար
14.1. Թույլատրված օգտագործման ձևեր
Կենցաղ սպասարկման առաջնային ծառայություններ
Ø Աղբարկղեր։
Գյուղատնտեսություն
Ø Ծառատնկումներ
Ինժեներական սարքավորումներ
Ø Գազակարգավորիչ պահարանային կետեր,
Ø Հեռախոսային կապի բաշխիչ կետեր (պահարանային),
Ø Կոյուղու ցանցային հորեր,
Ø Ջրամատ. բաշխիչ հորեր,
Ø Մալուխային էլեկտրահաղորդագծեր,
Ø Փոքր հզորության լոկալ կաթսայատներ,
Ø Ստորգետնյա խողովակաշարեր։
15. Ռեկրեացիոն գոտի (ՌԳ)
Այս գոտին նախատեսվում է քաղաքի մերձակա տարածքում կազմակերպվող ռեկրեացիայի կազմակերպման համար տարածքներ ապահովելու համար։
15.1. Թույլատրված օգտագործման ձևեր
Հյուրանոցային ծառայություններ
Ø Բացօթյա ռեստորաններ, բարեր, սրճարաններ,
Ø Ռեստորաններ, սրճարաններ և բարեր (առանց սահմանափակ.)։
Ø Պանսիոնատներ, առողջարանային մասնաշենքներ։
Հասարակական սնունդ
Ø Բացօթյա ռեստորաններ, բարեր, սրճարաններ,
Ø Արագ պատրաստվող ուտեստների խորտկարաններ։
Ø Ավանդական ուտեստների խոհանոցներ, պանդոկներ, խորտկարաններ, մառաններ, ճաշարաններ,
Ø Ռեստորաններ ոչ ավելի քան 20 նստելատեղով,
Ø Ռեստորաններ, բարեր և սրճարաններ (առանց սահմանափակման)։
Մշակույթի, հասարակական նշանակության և մարզական հիմնարկություններ
Ø Ակումբներ և հասարակական հավաքատեղիներ, գիշերային ակումբներ,
Ø Թատրոններ և կինոթատրոններ,
Ø Կեգլախաղարաններ, սեղանի թենիսի, բիլիարդի դահլիճներ, մարզադահլիճներ,
Ø Խաղադաշտեր,
Ø Բացօթյա ռեկրեացիոն կառույցներ, լողի, թենիսի և այլ ակումբներ։
Կենցաղսպասարկման առաջնային ծառայություններ
Ø Աղբարկղեր։
Վարչական, ֆինանսական հիմնարկություններ և ծառայություններ
Ø Քաղպաշտպանության ապաստարաններ։
Հաղորդակցությունների, ավտոծառայությունների և տրանսպորտային կառույցներ
Ø Տրանսպորտի հավաքակայաններ և կառույցներ,
Ø Ագտոկանգառներ։
Ինժեներական սարքավորումներ
Ø Էլեկտրական ենթակայաններ,
Ø Գազակարգավորիչ պահարանային կետեր,
Ø Հեռախոսային կապի բաշխիչ կետեր (պահարանային),
Ø Կոյուղու ցանցային հորեր,
Ø Ջրամատ. բաշխիչ հորեր,
Ø Մալուխային էլեկտրահաղորդագծեր,
Ø Փոքր հզորության լոկալ կաթսայատներ,
Ø Ստորգետնյա խողովակաշարեր։
Ոչ հիմնական շինություններ
Ø Տաղավարներ,
Ø Ճարտարապետական փոքր ձևեր։
Կառուցապատման չափորոշիչներ
Բոլոր տիպի կառույցների համար
Ø Հողամասերի նվազագույն չափերը համաձայն գործող նորմերի
Ø Շենքերի/շինությունների չափերը և թույլատրելի հեռավորությունները այլ կառույցներից և տարածքներից ընդունել համաձայն սանիտարահիգիենիկ, ինսոլյացիայի, դիտելիության և հակահրդեհային պահանջների։
Կառուցապատման կարգավորիչներ
Բոլոր տիպի կառույցների համար
Ø Շենքերի /շինությունների բարձրությունը/max - 15 մ
Ø Շենքերի /շինությունների զբաղեցված տարածք /max- կառ. համար հատկացած տարածքում չի սահմանափակվում
Ø Հողամասի անջրանցիկ առավելագույն տարածք 60%,
Ø Հողամասի նվազագույն կանաչ ծածկույթ - 40%։
Ծանոթություն.
Միասնական համալիր նախագծեր՝ հատուկ կարևորության օբյեկտների համար (մուտքի հանգույց, հասարակական կենտրոններ)։
Որոշակի սահմանափակումների կիրառում՝ հատուկ կարգավորման օբյեկտների ազդեցության գոտիներում, այն է.
● Ընտանի կենդանիների բազմացումը կենտրոնի 100 մ շառավղով ազդեցության գոտում։
III-8. ԿԱՌՈՒՑԱՊԱՏՄԱՆ ԿԱՆՈՆՆԵՐ
Սահմանված են տեղական պայմաններից բխող կանոններ, որոնք պարտադիր են նախագծվող ողջ տարածքում կիրառելու և բոլոր գոտիների համար։ Դրանք հիմնականում կարգավորում են կառուցապատման և շահագործման ընթացքում առաջացող միջավայրի համալիր կանոնակարգման խնդիրները, այն է.
Ø ընդունված սկզբունքներին չհամապատասխանող կառույցների աստիճանական վերափոխման մեխանիզմները,
Ø բնապահպանական միջոցառումների իրականացումը,
Ø գոտիավորման նախագծով ներկայացված պահանջների իրականացումը,
Ø Հատուկ կարգավորման օբյեկտների նկատմամբ առանձնակի մոտեցում ցուցաբերելը (առանձին ճարտարապետական նախագիծ, չափորոշիչների խստացում)։
1. Շինարարական և վերանորոգման աշխատանքներ
Ø Բոլոր շինարարական, վերակառուցման , վերականգնման և վերանորոգման աշխատանքները պետք է կատարվեն միայն գործող ընթացակարգերով հաստատված ճարտարապետաշինարարական նախագծերով:
2. Շենքերի Ճակատների արտաքին հարդարանք
Ø Շենքերի Ճակատների (փողոցային և բակային) արտաքին հարդարանքի հետ կապված բոլոր շինարարական և վերանորոգման աշխատանքները պետք է կատարվեն միայն գործող ընթացակարգերով հաստատված ճարտարապետաշինարարական նախագծերով:
3. Շինանյութ
● Պատմաճարտարապետական արժեք ներկայացնող շենքերի / շինությունների բնական քարերից կառուցված ճակատային պատերը ներկել կամ երեսապատել արգելվում է:
● Այլ շենքերի համար, նախընտրելի է օգտագործել սև, մոխրագույն, օխրա, սպիտակ երանգների շինանյութեր, որոնք կներդաշնակեն քաղաքի հիմնական կառուցապատմանը:
4. Նկուղներ և կիսանկուղներ
● Բնակելի շենքերի նկուղային և կիսանկուղային հարկերը փողոցի կողմից մեկուսացված մուտքեր չպետք է ունենան:
● Բոլոր շենքերի կիսանկուղների պատուհանների գոգերը մայթից պետք է առնվազն 30 սմ բարձր լինեն:
5. Շենքերի շքամուտքեր
● Շենքերի շքամուտքերի աստիճանները փողոցի կարմիր գծից դուրս չպետք է դրվեն:
6. Տանիքներ
● ● Լանջավոր տանիքների գագաթի բարձրությունը պետք է սահմանափակվի կառույցի խորության կեսի չափով:
7. Գովազդ
● ● Փողոցներում տեղադրվող առանձին կանգնած գովազդային վահանակները պետք է տեղադրվեն մոտակա կարգավորվող խաչմերուկից առնվազն 50 մ հեռավորության վրա:
8. Ցուցանակներ և անվանատախտակներ
|
● Փողոցների անվանատախտակները պետք է տեղադրվեն ստանդարտ չափերով ՝ միասնական հատուկ նախագծի համաձայն:
● Շենքերի համարների չափերը պետք է ընդունվեն՝
● ա) լուսավորությամբ, կլոր՝ տրամագիծը-30սմ
● բ) առանց լուսավորության՝ քառակուսի -15 x 15սմ:
● Հիմնարկությունների անվանատախտակները և բնակիչների անվանատախտակները կցվում են միայն շքամուտքների դռներին: |
9. Փողոցային ցանց
● Ավտոմոբիլիզացման մակարդակն ըստ նորմերի ընդունելով առավելագույնը (100) 200 ավտ/1000 բնակչին, կստանանք Բենզալցավորման կայանների համար՝ ելնելով 1200 ավտ/օր նորմատիվային հաշվարկից, կստանանք 4-5 Բենզալցավորման կայան։ Տեղադրումը և հեռավորությունը հարևան շենքերից և շինություններից՝ համաձայն գործող նորմերի։
III կարգի ճանապարհի երկու կողմից պահպանել չկառուցապատվող կանաչապատ շերտ՝ 12 մ լայնությամբ, սանպահպանման և կողային տեսանելիությունն ապահովելու համար՝ պարտադիր կանաչապատման պայմանով (ՀՀՇՆ IV-11.05.02-99, 5-11 կետ)։
Խաչմերուկներում պահպանել տեսանելիության եռանկյունները, ապահովելով շրջադարձի նվազագույն շառավղերը եզրաքարի եզրով 5 մ-ից ոչ պակաս, հրապարակներում՝ 8մ-ից ոչ պակաս։ Հեռավորությունները շենքերից և շինություններից ընդունել հծՌկ II-60-75** կետ 10.20-ի համաձայն։
|
Ավտոտնակների համար հատակացվող հողամասի նվազագույն մակերեսը 20 ք.մ., բաց ավտոկանգառատեղերի համար՝ 25 ք.մ.։ |
|
Կանգառատեղերի համար խորացումները մայթի հաշվին իրականացնել միայն սիզամարգերի և առանձին ծառախմբերի հաշվին՝ տեղական ինքնակառավարման մարմինների հատուկ թույլտվությամբ, այլ հնարավորությունների բացակայության դեպքում մայթի մեջ գրպանաձև խորացմամբ ավտոկայանատեղերի կազմակերպման դեպքում ապահովել՝ |
Ø համաքաղաքային նշանակության փողոցների մայթերի բանուկ մասի համար նվազագույնը 2.25-3.0 մ լայնություն,
Ø շրջանային նշանակության փողոցների փողոցների մայթերի բանուկ մասի համար 1.5 մ լայնություն։
Խաչմերուկ մտնող փողոցների բեռնվածության մակարդակը 0.4-0.8 հասնելու դպքում երթևեկությունը կարգավորել լուսակիրների միջոցով (տեղադրումը՝ գործող նորմերին համապատասխան)։
Փողոցների երկայնական թեքություններն ընդունվում են՝ կախված հաշվարկային արագություններից.
Փողոցային լուսավորություն
● Մինչև 12 մ լայնություն ունեցող փողոցներում լուսավորւթյան սյուների կիրառումն արգելվում է: Այս կարգի փողոցներում լուսավորւթյունը պետք է կազմակերպվի պատի աշտանակներով (բրա):
Տրանսպորտի միջոցների կանգառներ
● Տրանսպորտի միջոցների կանգառները պետք է տեղավորվեն, որպես կանոն, միասնական նախագծով թեթև կոնստրուկցիաներից կառուցված, թափանցիկ պատերով կամ սյուներով շինությունների մեջ: Առավելագույն չափերը՝
- երկարությունը ՝ 3.6 մ
- լայնությունը ՝ 2.0 մ
10. Ինժեներական կառուցվածքներ (բնապահպանական միջոցառումներ)
Գետի ափերը ողողումից պաշտպանելու նպատակով պետք է իրականացվեն հենապատեր
11. Աղբահեռացման կոնտեյներներ
Աղբարկղերը տեղադրելիս պետք է հաշվի առնվեն հետևյալ պահանջները.
● Համաքաղաքային նշանակության փողոցների, ինչպես նաև հասարակական առավելագույն ձգողության և կուտակման վայրերին հարակից տարածքներում տեղադրել ոչ ավելի, քան 100 մ հեռավորության վրա, հատուկ փակվող տիպի, բանուկ մասերին չխանգարող տարածքներում,
● Շրջանային նշանակության փողոցների վրա՝ 100 200 մետրը մեկ,
● Տեղական նշանակության փողոցների վրա հիմնական խաչմերուկների վրա, դրանց հեռավորությունը 200 մետրից պակաս լինելու դեպքում՝ 200 մետրը մեկ։
|
12.Հեռավորությունը շենքերի միջև
Բնակելի և հասարակական, ինչպես նաև արտադրական շենքերի միջև եղած հեռավորությունը պետք է ընդունել հիմնվելով արևի ճառագայթման քանակի (ինսոլյացիայի) և լուսավորվածության հաշվարկների վրա, ինչպես նաև հակահրդեհային պահանջներին համապատասխան։ |
2-3-հարկանի բնակելի շենքերի երկար կողմերի միջև հեռավորությունը (կենցաղային խզումներ) պետք է ընդունել 15 մ-ից ոչ պակաս, իսկ 4 հարկանի շենքերի միջև՝ 20 մ-ից ոչ պակաս։ Այս շենքերի երկար կողմերի և բնակելի սենյակներից պատուհաններ ունեցող կողաճակատների միջև՝ 15 մ-ից ոչ պակաս։ Նշված հեռավորությունները կարող են կրճատվել ինսոլյացիայի և լուսավորության նորմերը պահպանելու դեպքում, եթե ապահովված է պատուհանից պատուհան բնակելի սենյակների անտեսանելիությունը։
|
13. Շենքերի տեղադրությունները
Շենքերի տեղադրել քամիների գերակշիռ ուղղությունների հաշվառումով՝ կողաճակատներով դեպի վերջիններս։ |
|
14. Աղմուկի թույլատրելի մակարդակ
Բոլոր գոտիներում որտեղ թույլատրված է բնակելի կառուցապատում աղմուկի թույլատրելի մակարդակը չպետք է գերազանցի 55 դԲԱ (ցերեկը) և 45 դԲԱ (գիշերը): |
|
Աղմուկից և արտանետումներից բնակելի կառուցապատման պահպանման համար նախատեսել վերոնշյալ բացասական պարամետրերի գերազանցմամբ փողոցների ծառապատում։ 15. Սանիտարական պահպանման գոտիների չափորոշում
Ճանապարհների, փողոցների, տարնասպորտային և ինժեներական ենթակառուցվածքների (օդանավակայաններ, բարձրավոլտ էլեկտրահաղորդման գծեր, բարձր և միջին ճնշման գազատար և այլն) արդյունաբերական և կոմունալ օբյեկտների սանպահպանման գոտիները՝ համաձայն գործող նորմերի և ստանդարտների։ |
1. 5. Գոտիավորմանը չհամապատասխանող կառուցապատման կարգավորում
Ø Գոտիավորմանը չհամապատասխանող բոլոր տեսակի օրինական համարվող օգտագործման ձևերը, որոնք գոյությունը պահպանել են մինչև սույն նախագծի հաստատման տարեթիվը, այսուհետև պետք է կարգավորվեն միայն սույն կանոնների պահանջներին համապատասխան:
Ø Գոտիավորմանը չհամապատասխանող բոլոր տեսակի օրինական համարվող շենքերի և կառույցների ընդարձակում չի թույլատրվում:
Ø Գոտիավորմանը չհամապատասխանող 6 ամսից ավելի լքված և չօգտագործվող օրինական համարվող կառույցների հետագա օգտագործման ձևը պետք է որոշվի համաձայն այն հիմնական գոտու թույլատրելի օգտագործումների կանոնների, որտեղ այն գտնվում է:
Ø Գոտիավորմանը չհամապատասխանող օրինական համարվող կառուցապատման ձևերը կարող են վերանորոգվել, եթե բոլոր կառուցվածքային փոփոխումները կատարվում են միայն գործող քաղաքաշինական օրենսդրությանը համաձայն:
Ø Եթե գոտիավորմանը չհամապատասխանող օրինական համարվող կառույցի վերանորոգման արժեքը գերազանցում է նրա տեղափոխման արժեքի 50%-ը, ապա այդ կառույցը պետք է արգելվի:
16. Կառուցապատման թույլտվություներ
Օգտագործման ձևերի համար թույլտվություների կառուցվածքը հիմնվում է «ընդունված գոտի-թույլատրելի հողօգտագործման ձև» սկզբունքի վրա: Սահմանվել են հետևյալ թույլատվության ձևերը ՝
- թույլատրվում է,
- չի թույլատրվում:
Թույլատրված օգտագործման ձևերը այն կառուցապատման և հողօգտագործման թույլատրված տիպերն են, որոնք սահմանվել են նախագծային փուլում, հողհատկացման հիմք են հանդիսանում համապատասխան գոտիներում և լրացուցիչ քննարկման կարիք չունեն:
Հաշմանդամների և սակավ շարժունակ բնակչության կենսագործունեության միջավայրի կազմակերպում
Ցանկացած ճարատարապետական կառուցապատման կամ հուշարձաների վերականգնման ժամանակ անհրաժեշտ է ընդունել որոշումներ՝ հաշմանդամների շահերի առավելագույն պահպանումով, ապահովելով վերջիններիս կենսագործունեության լիարժեք պայմաններ։
Ինչպես բնակելի թաղամասերը, այնպես էլ ճանապարհափողոցային ցանցը պետք է նախատեսվեն ազգաբնակչության վերոնշյալ խմբերի համար երթուղիների ապահովմամբ՝ հասարակական տրանսպորտից օգտվելու հարթակների, մոտեցումների ձևավորմամբ։
Հատուկ մասնագիտացված բնակելի կառույցները և մանկական հաստատությունների տեղադրվածությունը հրշեջ դեպոյից ընդունվում է 300 մ։
Հաշմանդամենրի համար հողատարածքների չափերը հաշվարկել համաձայն ВСН 62-91 Москва 1994 նորմերի պահանջների։
Հետիոտն ուղիների նախատեսման ժամանակ հաշվի առնել հնարավորության դեպքում երկայնական ուղղությամբ 5 %-ից ոչ ավելի թեքությունների ապահովումը, խիստ ռելիեֆային պայմանների դեպքում՝ մինչև 10 % թեքությամբ, սակայն, ապահովելով հորիզոնական տեղամասեր 12 մ ընդմիջումներով։
Ավտոկանգառների, հասարակական տրանսպորտի կանգառների, աստիճանների և պանդուսների, շենքերի շքամուտքերի, վերելակների, սպորտային կառույցների կազմակերպման ժամանակ առաջնորդվել ВСН 62-91 Москва 1994 պահանջներով։
III-9. ՏԵՐՄԻՆՆԵՐ ԵՎ ՍԱՀՄԱՆՈՒՄՆԵՐ
|
Առանձնատներ տնամերձ հողամասերով՝ բնակելի միավոր մեկ ընտանիքի համար, որը տեղակայված է իր սեփական տնամերձ հողամասում
Բազմաբնակարանանոց տներ՝ 2 և ավելի բնակարաններ միավորված մեկ շենքում |
|
Ինսոլյացիա՝ տարածքներում և սենյակներում արևի ուղիղ անընդհատ ճառագայթման տևողության նորմատիվային պահանջ։ |
|
Լրացուցիչ պահանջներ՝ նախատեսվում են տարբեր գոտիներում տեղադրվող այն օգտագործման ձևերի համար, որոնց բնույթը մասամբ չի համապատասխանում տվյալ գոտուն ներկայցվող պահանջներին և դրանց գործառնությունը հիմնականում կապվում է հատուկ պայմանների կիրառման հետ: Կանաչ ծածկույթ՝ բուսական ծածկույթ (ծառեր, թփուտներ, խոտաբույսեր և այլն): |
Հետիոտն մատչելիության շառավղեր՝ այն հեռավորությունը, որը կարող է անցնել մարդը՝ առանց ֆիզիկական լարվածության (0-30 րոպե ժամանակահատված)։
|
Կառուցապատման / հողօգտագործման չափորոշիչներ և կարգավորիչներ՝ սահմանում են տվյալ գոտու հողօգտագործման և կառուցապատման պահանջներին համապատասխանող բնութագրերի համակարգը, որոնցով կանոնակարգվում է տարածքի յուրացման ինտենսիվությունը, կառուցապատման խտությունը, կառույցների հարկայնությունը, գեղագիտական պահանջները: Կարգավորիչների պարամետրները հիմնվում են օրենսդրական և պետական նորմատիվ փաստաթղթերի վրա, տեղայնացվում են՝ ելնելով յուրաքանչյուր գոտու յուրահատուկ պահանջներից և փոփոխվում են գոտուց գոտի: |
Հակահրդեհային պահանջներ՝ շենքերը, կառույցները հրդեհներից պաշտպանելու համար կառուցման և այլ միջոցառումների նորմերով հաստատված պարտադիր կարգ։
Համաքաղաքային նշանակության փողոցներ՝ հաղորդակցային կապ բնակելի, արդյունաբերական շրջանների և հասարակական կենտրոնների, ինչպես նաև մայրուղային փողոցների, քաղաքային ճանապարհների և ընդհանուր օգտագործման ճանապարհների միջև։
Շրջանային նշանակության փողոցներ՝ տրանսպորտային և հետիոտն կապ բնակելի շրջանների, բնակելի և արդյունաբերական շրջանների, ինչպես նաև հասարակական կենտրոնների միջև, ելքեր դեպի մայրուղային փողոցներ։
Տեղական նշանակության փողոցներ՝ տրանսպորտային (առանց բեռնատար և հասարակական տրանսպորտի բացթողման) և հետիոտնային կապ բնակելի շրջան-ների տարածքներում, ելքեր դեպի մայրուղային փողոցներ և շարժման կարգավորումով ճանապարհներ։
Երթևեկության անցուդարձ՝ միավոր ժամանակահատվածում (օր, ժամ) ճանա-պարհի որևէ կտրվածքով հանդիպակաց ուղղություններով անցնող ավտոմոբիլների քանակը։
Ճանապարհի բեռնվածության մակարդակ՝ երթևեկության անցուդարձի հարաբե-րությունը ճանապարհի թողունակությանը։
Երթևեկային մաս՝ ճանապարհի մակերևույթի շերտ, որի սահմաններում կատար-վում է ավտոմոբիլների երթևեկությունը։
Կարմիր գիծ՝ շենքերն ու շինությունները փողոցներից անջատող սահմանը,որով սահմանում է նաև գլխավոր և երկրորդական փողոցների, ներառյալ մայթերի լայնությունը:
Մայթի բանուկ մաս - փողոցի մայթերի՝ հետիոտնի շարժման համար հատկացված շերտ։
Հողամաս՝ որոշակի ամրագրված սահմաններ, տարածք, գտնվելու վայր, իրավական կարգավիճակ ունեցող հողի վերգետնյա և ստորգետնյա հողատարածք:
Հողամասի անջրանցիկ տարածք՝ հողամասի այն հատվածը, որի բուսական բնաշերտը ծածկված է արհեստական կառույցներով (շենք, մայթ, սալարկ)։
Հողամասի ճակատը՝ հողամասի կարմիր գծին հարող կողմը։
Ձեղնահարկ՝ լանջավոր տանիքի ներքին տարածությունը։
Նորմ՝ նախագծման և շինարարության համար սահմանված պարտադիր կարգ։
Շենքի բարձրություն՝ մայթի մակերևույթից մինչև քիվի վերին եզրն ընկած ուղղաձիգ հեռավորությունը։
Ոչ հիմնական շինություն՝ կրպակներ, տաղավարներ ճարտարապետական փոքր ձևեր։
Սանիտարահիգիենիկ պահանջներ՝ բնակվելու տարածությունների՝ շրջակա միջավայրի սահմանային թույլատրելի վիճակներին համապատասխանության պահանջներ։
Տաշիրի քաղաքային համայնքի գլխավոր հատակագծի հիմնադրույթների իրականացման առաջնահերթ միջոցառումներ
- Քաղաքային տարածքի գոտիավորման նախագծի հիմնադրույթների իրականացում:
- Ջրամատակարարման ցանցի վերանորոգում, վերազինում:
- Կոյուղու մաքրման կայանի կառուցում, կոյուղացանցի վերազինում:
- Աղբավայրի կազմակերպում:
- Հաշվի առնելով տրանսպորտային, ինժեներական, տեխնիական ենթակառուցվածքների ընդհանրությունը, առաջարկվում է ստեղծել Տաշիր, Միխայլովկա, Սարատովկա, Նովոսելցովո համայնքների միջհամայնքային միավորում:
|
Հայաստանի Հանրապետության կառավարության աշխատակազմի ղեկավար-նախարար |
Մ. Թոփուզյան |
ԼՈՌՈՒ ՄԱՐԶԻ ՏԱՇԻՐԻ ՔԱՂԱՔԱՅԻՆ ՀԱՄԱՅՆՔԻ (ԲՆԱԿԱՎԱՅՐԻ) ԳԼԽԱՎՈՐ ՀԱՏԱԿԱԳԻԾ 1, 2, 3, 4, 5, 6, 7, 8, 9, 10, 11, 12, 13, 14, 15, 16