ՀԱՅԱՍՏԱՆԻ ՀԱՆՐԱՊԵՏՈՒԹՅԱՆ ԿԱՌԱՎԱՐՈՒԹՅՈՒՆ
Ո Ր Ո Շ ՈՒ Մ
30 օգոստոսի 2018 թվականի N 974-Ա
ՀԱՅԱՍՏԱՆԻ ՀԱՆՐԱՊԵՏՈՒԹՅԱՆ ԿՈՏԱՅՔԻ ՄԱՐԶԻ ՀՐԱԶԴԱՆ ՔԱՂԱՔՈՒՄ ԱԶԱՏ ՏՆՏԵՍԱԿԱՆ ԳՈՏԻ ՍՏԵՂԾԵԼՈՒ, «ԷԿՈՍ» ՓԱԿ ԲԱԺՆԵՏԻՐԱԿԱՆ ԸՆԿԵՐՈՒԹՅԱՆՆ ԱԶԱՏ ՏՆՏԵՍԱԿԱՆ ԳՈՏՈՒ ԿԱԶՄԱԿԵՐՊԻՉ ՃԱՆԱՉԵԼՈՒ, ԻՆՉՊԵՍ ՆԱԵՎ ԱԶԱՏ ՏՆՏԵՍԱԿԱՆ ԳՈՏՈՒ ԳՈՐԾՈՒՆԵՈՒԹՅԱՆ ՎԵՐԱԲԵՐՅԱԼ ԿԱԶՄԱԿԵՐՊՉԻ ԿՈՂՄԻՑ ՆԵՐԿԱՅԱՑՎՈՂ ՀԱՇՎԵՏՎՈՒԹՅԱՆ ՁԵՎԵՐԸ ՀԱՍՏԱՏԵԼՈՒ ՄԱՍԻՆ
Հիմք ընդունելով «ԷԿՈՍ» փակ բաժնետիրական ընկերության կողմից մասնավոր նախաձեռնությամբ Հայաստանի Հանրապետության Կոտայքի մարզի Հրազդան քաղաքում ազատ տնտեսական գոտի ստեղծելու և այդ գոտու կազմակերպիչ ճանաչվելու համար ներկայացված հայտը, Մասնավոր նախաձեռնությամբ ազատ տնտեսական գոտի ստեղծելու համար հայտը գնահատող միջգերատեսչական հանձնաժողովի եզրակացությունը և «Ազատ տնտեսական գոտիների մասին» Հայաստանի Հանրապետության օրենքի 5-րդ հոդվածը` Հայաստանի Հանրապետության կառավարությունը որոշում է.
1. Ստեղծել ազատ տնտեսական գոտի (այսուհետ` ԱՏԳ)` Հայաստանի Հանրապետության Կոտայքի մարզի Հրազդան քաղաքում՝ ՀՀ 2302, Կոտայքի մարզ, քաղ. Հրազդան, Գործարանային 1 հասցեում գտնվող տարածքում` համաձայն հավելվածում նշված սահմանագծի, օտարերկրյա ուղղակի ներդրումների, երկրի ներդրումային գրավչության բարձրացման, մշակող արդյունաբերության, բարձր և տեղեկատվական տեխնոլոգիաների ոլորտում արտահանման ուղղվածություն ունեցող արտադրանքի ստեղծման, նոր աշխատատեղերի ստեղծման և կայուն տնտեսական զարգացումը խթանելու նպատակով:
(1-ին կետը լրաց. 05.01.23 N 28-Ա)
2. Սահմանել`
1) ԱՏԳ-ի գործառնական տեսակը որպես արտադրական և տեխնիկակիրառական՝ մշակող արդյունաբերության, բարձր և տեղեկատվական տեխնոլոգիաների ոլորտներում.
2) ազատ տնտեսական գոտու շահագործողների ռեեստրում ներառվելու վկայականի տրամադրման, գործողության ժամկետի երկարաձգման և դադարեցման, ինչպես նաև շահագործողի կողմից ներկայացված գործարար ծրագրին ներկայացվող պահանջներն ու գնահատման, ազատ տնտեսական գոտու շահագործողի սկզբնական և հերթական հայտարարագրերի հաստատման և ներկայացման կարգը` համաձայն Հայաստանի Հանրապետության կառավարության 2019 թվականի հունիսի 6-ի N 727-Ն որոշման N 3 հավելվածի.
3) ԱՏԳ-ի գործունեության ժամկետը՝ 25 տարի:
(2-րդ կետը լրաց., խմբ. 05.01.23 N 28-Ա)
3. Ճանաչել «ԷԿՈՍ» փակ բաժնետիրական ընկերությանը (գրանցման համար` 286.120.990482) որպես ԱՏԳ-ի կազմակերպիչ:
4. Հաստատել`
1) ԱՏԳ-ի տարածքի սահմանագիծը` համաձայն NN 1 և 1.1 հավելվածների.
2) «ԷԿՈՍ» փակ բաժնետիրական ընկերության ներկայացրած ԱՏԳ ստեղծելու գործարար ծրագիրը` համաձայն N 2 հավելվածի.
3) ԱՏԳ-ում գործունեության վերաբերյալ կազմակերպչի կողմից Հայաստանի Հանրապետության տնտեսական զարգացման և ներդրումների նախարարություն ներկայացվող հաշվետվության ձևերը` համաձայն N 3 հավելվածի:
(4-րդ կետը փոփ. 12.12.19 N 1805-Ա)
5. ԱՏԳ-ի գործունեության մեկնարկը համարել թույլատրված «ԷԿՈՍ» փակ բաժնետիրական ընկերության կողմից առավելագույնը 1 տարվա ընթացքում «Ազատ տնտեսական գոտիների մասին» Հայաստանի Հանրապետության օրենքի 6-րդ հոդվածի 1-ին մասի պահանջները կատարելուց հետո` Մասնավոր նախաձեռնությամբ ազատ տնտեսական գոտի ստեղծելու համար հայտը գնահատող միջգերատեսչական հանձնաժողովի ազատ տնտեսական գոտին շահագործմանը պատրաստ լինելու վերաբերյալ համապատասխան եզրակացության հիման վրա:
6. Հայաստանի Հանրապետության տնտեսական զարգացման և ներդրումների նախարարին` սույն որոշումն ուժի մեջ մտնելուց հետո 30 աշխատանքային օրվա ընթացքում «ԷԿՈՍ» փակ բաժնետիրական ընկերության հետ կնքել պայմանագիր:
Հայաստանի Հանրապետության |
Ն. Փաշինյան |
|
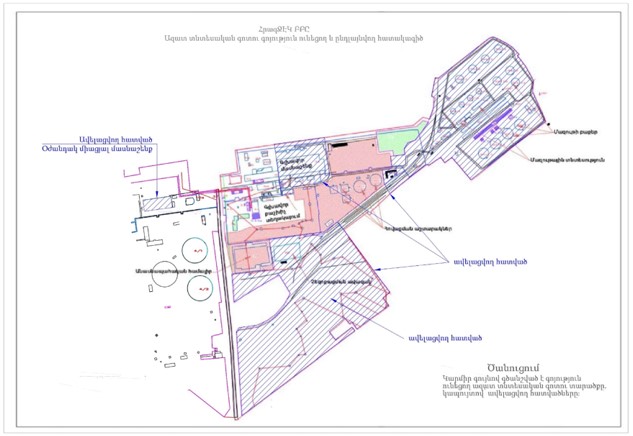
Հավելված N 1 ՀՀ կառավարության 2018 թվականի օգոստոսի 30-ի N 974 -Ա որոշման |
Հայաստանի Հանրապետության |
Ն. Փաշինյան |
Հավելված N 1.1 ՀՀ կառավարության 2018 թվականի օգոստոսի 30-ի N 974 -Ա որոշման |
Տարածքի ընդհանուր մակերեսը՝ 621,600 քառ. մ
(հավելվածը լրաց. 12.12.19 N 1805-Ա, խմբ. 05.01.23 N 28-Ա)
(հավելվածը խմբ. 05.01.23 N 28-Ա)
-Ա որոշման |
