ՀԱՅԱՍՏԱՆԻ ՀԱՆՐԱՊԵՏՈՒԹՅԱՆ ԿԱՌԱՎԱՐՈՒԹՅՈՒՆ
Ո Ր Ո Շ ՈՒ Մ
23 հունիսի 2017 թվականի N 762-Ա
ՆԵՐԴՐՈՒՄԱՅԻՆ ԾՐԱԳՐԵՐԻՆ ՀԱՎԱՆՈՒԹՅՈՒՆ ՏԱԼՈՒ ԵՎ «ՍՊԱՅԿԱ» ՈՒ «ԱՐՄՍԱՆՊՐՈԴԱԿՏ» ՍԱՀՄԱՆԱՓԱԿ ՊԱՏԱՍԽԱՆԱՏՎՈՒԹՅԱՄԲ ԸՆԿԵՐՈՒԹՅՈՒՆՆԵՐԻՆ ՀՈՂԱՄԱՍ ՆՎԻՐԱԲԵՐԵԼՈՒՆ ՀԱՄԱՁԱՅՆՈՒԹՅՈՒՆ ՏԱԼՈՒ ՄԱՍԻՆ
Ղեկավարվելով Հայաստանի Հանրապետության քաղաքացիական օրենսգրքի 605-րդ հոդվածով և Հայաստանի Հանրապետության հողային օրենսգրքի 65-րդ հոդվածի 6-րդ մասով՝ Հայաստանի Հանրապետության կառավարությունը որոշում է.
1. Հավանություն տալ «Սպայկա» և «Արմսանպրոդակտ» սահմանափակ պատասխանատվությամբ ընկերությունների կողմից ներկայացված՝ Երևանի Նորագավիթ թաղամասին հարող տարածքում 110 հեկտար մակերեսով կիսափակ ջերմոցային համալիրի և բորբոսով պանրի գործարանի կառուցման ներդրումային ծրագրերին` համաձայն NN 1 և 2 հավելվածների:
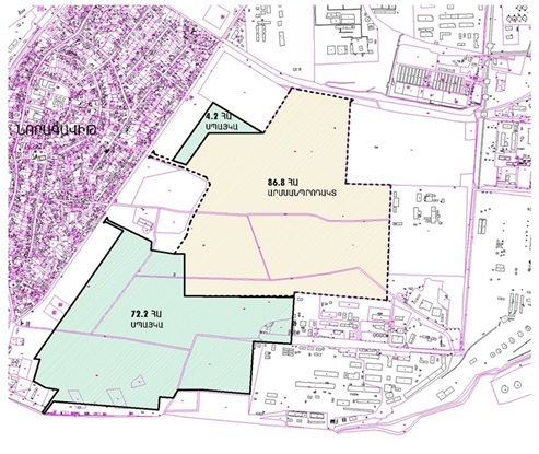
2. Համաձայնություն տալ Երևանի համայնքի վարչական տարածքում գտնվող՝ համայնքային սեփականություն հանդիսացող՝ Երևանի Նորագավիթ թաղամասին հարող տարածքում գտնվող` 76.4 հեկտար մակերեսով, 2.246.160.000 դրամ կադաստրային արժեք ունեցող և 86.8 հեկտար մակերեսով, 2.551.920.000 դրամ կադաստրային արժեք ունեցող հողամասերը համապատասխանաբար «Սպայկա» և «Արմսանպրոդակտ» սահմանափակ պատասխանատվությամբ ընկերություններին նվիրաբերելուն՝ որպես պետություն-համայնք-մասնավոր համագործակցություն՝ համաձայն N 3 հավելվածի։
3. Սահմանել, որ սույն որոշման 2-րդ կետում նշված հողամասերը կարող են օգտագործվել բացառապես ջերմոցային համալիրի և բորբոսով պանրի գործարանի կառուցման նպատակով և դրանց նպատակային նշանակությանը համապատասխան:
4. Առաջարկել Երևանի քաղաքապետին «Սպայկա» և «Արմսանպրոդակտ» սահմանափակ պատասխանատվությամբ ընկերությունների հետ համատեղ ապահովել սույն որոշման 2-րդ կետում նշված հողամասերի նվիրաբերության պայմանագրերի` սահմանված կարգով կնքումը՝ պայմանագրերում նախատեսելով սույն որոշման 3-րդ կետում նշված պայմանները և, որ պայմանագրերի նոտարական վավերացման և դրանցից բխող գույքային իրավունքների պետական գրանցման հետ կապված` օրենքով սահմանված համապատասխան վճարներն ու տուրքերը պետք է վճարվեն «Սպայկա» և «Արմսանպրոդակտ» սահմանափակ պատասխանատվությամբ ընկերությունների միջոցների հաշվին։
Հայաստանի Հանրապետության |
Կ. Կարապետյան |
2017 թ. հուլիսի 4 Երևան |
Հավելված N 1 |
Ն Ե Ր Դ Ր ՈՒ Մ Ա Յ Ի Ն Ծ Ր Ա Գ Ի Ր
«ՍՊԱՅԿԱ» ՍԱՀՄԱՆԱՓԱԿ ՊԱՏԱՍԽԱՆԱՏՎՈՒԹՅԱՄԲ ԸՆԿԵՐՈՒԹՅԱՆ ԿՈՂՄԻՑ ՆԵՐԿԱՅԱՑՎԱԾ՝ ԵՐԵՎԱՆԻ ՆՈՐԱԳԱՎԻԹ ԹԱՂԱՄԱՍԻՆ ՀԱՐՈՂ ՏԱՐԱԾՔՈՒՄ 50 ՀԵԿՏԱՐ ՄԱԿԵՐԵՍՈՎ ԿԻՍԱՓԱԿ ՋԵՐՄՈՑԱՅԻՆ ՀԱՄԱԼԻՐԻ ՈՒ ԲՈՐԲՈՍՈՎ ՊԱՆՐԻ ԳՈՐԾԱՐԱՆԻ ԿԱՌՈՒՑՄԱՆ
1. Ծրագրով նախատեսվում է Երևանի Նորագավիթ թաղամասում գտնվող ՋԷԿ-ին կից տարածքում կառուցել 50 հեկտար մակերեսով կիսափակ ջերմատնային տնտեսություն և տարեկան 1000 տոննա արտադրողականությամբ բորբոսով պանրի գործարան, որն իր ենթակառուցվածքներով կզբաղեցնի մոտավորապես 76.4 հեկտար տարածք: Առանձին ջերմատները բաժանված են լինելու 5-հեկտարանոց միավորների, որոնք 4 և 6 բլոկներով կմիավորվեն մեկ ընդհանուր տեխնիկական արտադրատարածքով՝ իր տեխնիկական (սառնարանային, տեսակավորման, փաթեթավորման և այլն) և վարչական հատվածով: Պանրի գործարանն առանձնացված է լինելու 4.2 հեկտար հողատարածքի վրա՝ իր առանձին մուտքով և ենթակառուցվածքներով:
2. Երևանի Նորագավիթ թաղամասին հարող տարածքում ջերմատնային գոտու ստեղծման վերաբերյալ որոշման ընդունման համար որոշիչ է եղել Երևանի ՋԷԿ-ի էներգառեսուրսների առկայությունը, որը կարող է ապահովել մինչև 50 հեկտար տարածքով տնտեսության էլեկտրամատակարարումը:
3. Ֆրանսիական «Ռիշել» ընկերության կողմից մշակված կիսափակ պոլիմերային ծածկով ջերմատնային տեխնոլոգիան մրցակցային առավելություն է ապահովում: Ջերմատունը 9,7 մետր բարձրությամբ (գագաթում) մետաղական կոնստրուկցիաների հենքով երկշերտ պոլիէթիլենային թաղանթով կառույց է` հագեցած կաթիլային ոռոգման, ջեռուցման, CO2-ի ապահովման համակարգերով, ինչպես նաև արհեստական լուսավորման, հովացման և կլիմայի ավտոմատ կառավարման համակարգերով: Մշակաբույսերի մշակությունը կիրականացվի հիդրոպոնիկ եղանակով՝ կոկոսի մանրաթելի սուբստրատի մեջ, որն ամբողջովին օրգանական է և չի աղտոտում շրջակա միջավայրը:
4. Բույսերի բնական փոշոտումը կիրականացվի մեղուների միջոցով, իսկ վնասատուների հսկողությունը ջերմատներում կկազմակերպվի հիմնականում կենսաբանական պաշտպանության միջոցներով, որը թարմ ոռոգման ջրի հետ միասին հնարավորություն կտա ստանալու էկոլոգիապես մաքուր արտադրանք:
5. Ջերմատները նախատեսված կլինեն լոլիկի և այլ մշակաբույսերի մշակության համար: Հաշվի առնելով եվրոպական ջերմատնային տնտեսությունների փորձը և Հայաստանի կլիմայական պայմանները՝ ծրագրով նախատեսվում է բանջարեղենների աճեցումն իրականացնել մեկ ցանքաշրջանով: Բույսերը տնկելով օգոստոս ամսվա կեսերին (50-60 օրական բույսեր)` բերքը հնարավոր կլինի ստանալ սեպտեմբեր ամսվանից մինչև հունիս ամսվա վերջն ընկած ժամանակահատվածում. ընդհանուր առմամբ մեկ քառ. մետր տարածքից միջինում հնարավոր կլինի ստանալ տարեկան ավելի քան 60 կիլոգրամ բերք:
6. Պանրի գործարանում կարտադրվի կապույտ բորբոսով պանիր՝ գերմանական առաջատար տեխնոլոգիայով: Ամսական արտադրվելու է ավելի քան 80 տոննա պանիր` 1.4 կիլոգրամ և 150 գրամ փաթեթավորմամբ: 2018 թվականին, որպես այս ծրագրի շարունակություն, նախատեսվում է կառուցել ավելի քան 1000 գլխի համար նախատեսված անասնապահական ֆերմա՝ Հայաստանի Հանրապետության Կոտայքի մարզում:
7. Ջերմատնային համալիրի 50 հեկտարի կառուցման փուլի համար անհրաժեշտ ներդրումները գնահատվում են մոտավորապես 78 մլն ԱՄՆ-ի դոլար, պանրի գործարանի համար` մոտավորապես 8 մլն ԱՄՆ-ի դոլար:
8. Ջերմատնային համալիրի շինարարության մեկնարկը նախատեսվում է 2018 թվականի գարնանը, շինարարության ավարտը՝ 2018-2019 թվականներին: 50 հեկտար մակերեսով ջերմատնային համալիրի շահագործմամբ կստեղծվի ավելի քան 600 մշտական աշխատատեղ:
9. Նշված ծրագրի իրականացման համար անհրաժեշտ է ապահովել մեծածավալ էներգակիրներ, մասնավորապես, արհեստական լուսավորություն՝ մոտավորապես 70/100 ՄՎ հզորությամբ, 30.000 մ3/ժամում գազամատակարարում, 14.000 մ3/օրական ջրամատակարարում, 4100 մ3/ օրական դրենաժ (ջրահեռացման կոյուղի), որոնց համար ստեղծվելու են անհրաժեշտ ենթակառուցվածքներ:
Հայաստանի Հանրապետության |
Վ. Ստեփանյան |
Հավելված N 2 |
Ն Ե Ր Դ Ր ՈՒ Մ Ա Յ Ի Ն Ծ Ր Ա Գ Ի Ր
«ԱՐՄՍԱՆՊՐՈԴԱԿՏ» ՍԱՀՄԱՆԱՓԱԿ ՊԱՏԱՍԽԱՆԱՏՎՈՒԹՅԱՄԲ ԸՆԿԵՐՈՒԹՅԱՆ ԿՈՂՄԻՑ ՆԵՐԿԱՅԱՑՎԱԾ՝ ԵՐԵՎԱՆԻ ՆՈՐԱԳԱՎԻԹ ԹԱՂԱՄԱՍԻՆ ՀԱՐՈՂ ՏԱՐԱԾՔՈՒՄ 60 ՀԵԿՏԱՐ ՄԱԿԵՐԵՍՈՎ ԿԻՍԱՓԱԿ ՋԵՐՄՈՑԱՅԻՆ ՀԱՄԱԼԻՐԻ ԿԱՌՈՒՑՄԱՆ
1. Ծրագրով նախատեսվում է Երևանի Նորագավիթ թաղամասում գտնվող ՋԷԿ-ին կից տարածքում կառուցել 60 հեկտար մակերեսով կիսափակ ջերմատնային տնտեսություն, որն իր ենթակառուցվածքներով կզբաղեցնի մոտավորապես 86.8 հեկտար տարածք: Առանձին ջերմատները բաժանված են լինելու 5-հեկտարանոց միավորների, որոնք 4 և 6 բլոկներով կմիավորվեն մեկ ընդհանուր տեխնիկական արտադրատարածքով՝ իր տեխնիկական (սառնարանային, տեսակավորման, փաթեթավորման և այլն) և վարչական հատվածով:
2. Երևանի Նորագավիթ թաղամասին հարող տարածքում ջերմատնային գոտու ստեղծման վերաբերյալ որոշման ընդունման համար որոշիչ է եղել Երևանի ՋԷԿ-ի էներգառեսուրսների առկայությունը, որը կարող է ապահովել մինչև 60 հեկտար տարածքով տնտեսության էլեկտրամատակարարումը:
3. Ֆրանսիական «Ռիշել» ընկերության կողմից մշակված կիսափակ պոլիմերային ծածկով ջերմատնային տեխնոլոգիան մրցակցային առավելություն է ապահովում: Ջերմատունը 9,7 մետր բարձրությամբ (գագաթում) մետաղական կոնստրուկցիաների հենքով երկշերտ պոլիէթիլենային թաղանթով կառույց է` հագեցած կաթիլային ոռոգման, ջեռուցման, CO2-ի ապահովման համակարգերով, ինչպես նաև արհեստական լուսավորման, հովացման և կլիմայի ավտոմատ կառավարման համակարգերով: Մշակաբույսերի մշակությունը կիրականացվի հիդրոպոնիկ եղանակով՝ կոկոսի մանրաթելի սուբստրատի մեջ, որն ամբողջովին օրգանական է և չի աղտոտում շրջակա միջավայրը:
4. Բույսերի բնական փոշոտումը կիրականացվի մեղուների միջոցով, իսկ վնասատուների հսկողությունը ջերմատներում կկազմակերպվի հիմնականում կենսաբանական պաշտպանության միջոցներով, որը թարմ ոռոգման ջրի հետ միասին հնարավորություն կտա ստանալու էկոլոգիապես մաքուր արտադրանք:
5. Ջերմատները նախատեսված կլինեն լոլիկի և այլ մշակաբույսերի մշակության համար: Հաշվի առնելով եվրոպական ջերմատնային տնտեսությունների փորձը և Հայաստանի կլիմայական պայմանները՝ ծրագրով նախատեսվում է բանջարեղենների աճեցումն իրականացնել մեկ ցանքաշրջանով: Բույսերը տնկելով օգոստոս ամսվա կեսերին (50-60 օրական բույսեր)` բերքը հնարավոր կլինի ստանալ սեպտեմբեր ամսվանից մինչև հունիս ամսվա վերջն ընկած ժամանակահատվածում. ընդհանուր առմամբ մեկ քառ. մետր տարածքից միջինում հնարավոր կլինի ստանալ տարեկան ավելի քան 60 կիլոգրամ բերք:
6. Ջերմատնային համալիրի 60 հեկտարի կառուցման փուլի համար անհրաժեշտ ներդրումները գնահատվում են մոտավորապես 88 մլն ԱՄՆ-ի դոլար:
(6-րդ կետը փոփ. 20.09.18 N 1069-Ա)
7. Ջերմատնային համալիրի առաջին փուլի մեկնարկը նախատեսվում է 2017 թվականի աշնանը, շինարարության ավարտը՝ 2019 թվականի դեկտեմբերին: 60 հեկտար մակերեսով ջերմատնային համալիրի շահագործմամբ կստեղծվի ավելի քան 700 մշտական աշխատատեղ:
(7-րդ կետը փոփ. 20.09.18 N 1069-Ա)
(հավելվածը փոփ. 20.09.18 N 1069-Ա)
Հայաստանի Հանրապետության |
Վ. Ստեփանյան |
Հավելված N 3 |
Ս Խ Ե Մ Ա
Նորագավիթ թաղամասին հարող տարածքում «Սպայկա» ԵՎ «Արմսանպրոդակտ» սահմանափակ պատասխանատվությամբ ընկերություններին նվիրաբերվող հողամասերԻ
(163.2 հեկտար)
Հայաստանի Հանրապետության |
Վ. Ստեփանյան |
