ՀԱՅԱՍՏԱՆԻ ՀԱՆՐԱՊԵՏՈՒԹՅԱՆ ԿԱՌԱՎԱՐՈՒԹՅՈՒՆ
Ո Ր Ո Շ ՈՒ Մ
25 փետրվարի 2016 թվականի N 175-Ա
ԳՈՒՅՔ ՆՎԻՐԵԼՈՒ, ՈՐՊԵՍ ՆՎԻՐԱՏՎՈՒԹՅՈՒՆ ԳՈՒՅՔ ԸՆԴՈՒՆԵԼՈՒ ԵՎ ԱՆՀԱՏՈՒՅՑ ՕԳՏԱԳՈՐԾՄԱՆ ԻՐԱՎՈՒՆՔՈՎ ՀՈՂԱՄԱՍ ՀԱՏԿԱՑՆԵԼՈՒ ՄԱՍԻՆ
Հիմք ընդունելով Հայաստանի Հանրապետության քաղաքացիական օրենսգրքի 594-րդ հոդվածը և ղեկավարվելով Հայաստանի Հանրապետության հողային օրենսգրքի 63.1-ին հոդվածով` Հայաստանի Հանրապետության կառավարությունը որոշում է.
1. Հայաստանի Հանրապետության սեփականությունը հանդիսացող և Հայաստանի Հանրապետության պաշտպանության նախարարությանն ամրացված՝ Երևան քաղաքի Ծովակալ Իսակովի պողոտայի 17/6 հասցեում հաշվառված՝ 8.01 հեկտար մակերեսով հողամասից (անշարժ գույքի նկատմամբ իրավունքների պետական գրանցման վկայական՝ N 10022016-01-0093) հետ վերցնել`
1) 1.230918 հեկտար մակերեսով հողամասը և ամրացնել Հայաստանի Հանրապետության կառավարությանն առընթեր պետական գույքի կառավարման վարչությանը.
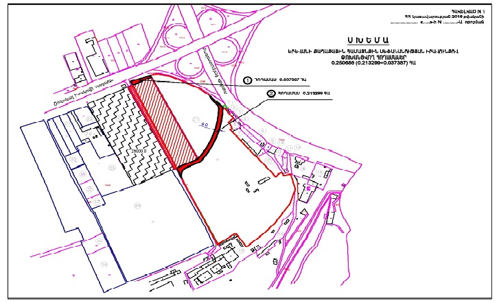
2) 0.250686 (0.037387+0.213299) հեկտար մակերեսով հողամասը` համաձայն N 1 հավելվածի, և նվիրել Երևանի քաղաքային համայնքին` ճանապարհ նախատեսելու նպատակով:
2. Առաջարկել Երևանի քաղաքապետին`
1) Երևանի քաղաքային համայնքի սեփականությունը համարվող՝ Ծովակալ Իսակովի պողոտայի 17/6 հասցեում գտնվող՝ 0.224875 հեկտար մակերեսով հողամասը նվիրել Հայաստանի Հանրապետությանը` ապահովելով հողամասի նկատմամբ Հայաստանի Հանրապետության սեփականության իրավունքը պետական գրանցման ներկայացնելը.
2) անհրաժեշտության դեպքում՝ Հայաստանի Հանրապետության օրենսդրությամբ սահմանված կարգով նախաձեռնել սույն որոշման մեջ նշված հողամասերի նպատակային և (կամ) գործառնական նշանակությունների փոփոխման գործընթացը.
3) Հայաստանի Հանրապետության պաշտպանության նախարարությանը տրամադրել Երևան քաղաքի Ծովակալ Իսակովի պողոտայի 17/6 հասցեում գտնվող՝ 8.01 հեկտար մակերեսով հողամասի բաժանման արդյունքում առանձնացվող հողամասերի հատակագծերը.
4) Հայաստանի Հանրապետության կառավարությանն առընթեր պետական գույքի կառավարման վարչությանը տրամադրել սույն որոշման N 2 հավելվածում նշված հողամասերի միասնական հատակագիծը:
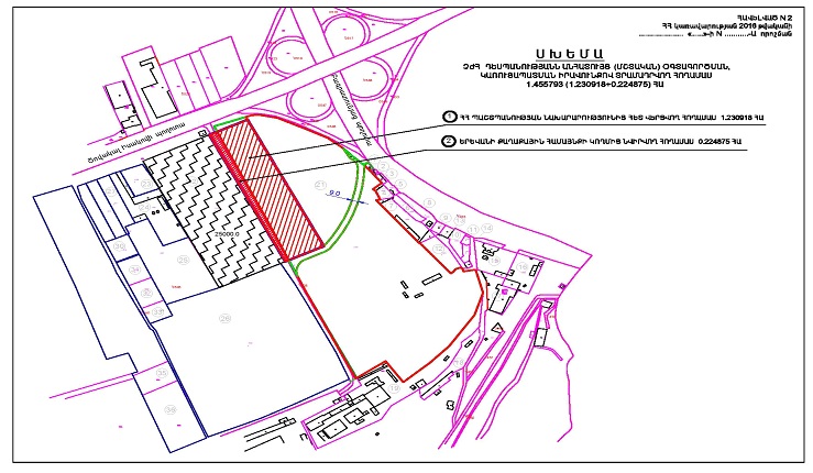
3. Սույն որոշման 1-ին և 2-րդ կետերի 1-ին ենթակետերում նշված ընդհանուր 1.455793 (1.230918+0.224875) հեկտար մակերեսով հողամասը՝ համաձայն N 2 հավելվածի, անհատույց օգտագործման իրավունքով հատկացնել Հայաստանի Հանրապետությունում Չինաստանի Ժողովրդական Հանրապետությանը` Հայաստանի Հանրապետությունում այդ երկրի դիվանագիտական ներկայացուցչության շենքի ընդլայնման նպատակով:
4. Լիազորել Հայաստանի Հանրապետության կառավարությանն առընթեր պետական գույքի կառավարման վարչության պետին՝
1) հողամասի նկատմամբ Հայաստանի Հանրապետության սեփականության իրավունքի պետական գրանցումից հետո մեկամսյա ժամկետում Երևանի քաղաքապետի հետ կնքել սույն որոշման 1-ին կետի 2-րդ ենթակետում և 2-րդ կետի 1-ին ենթակետում նշված հողամասերի նվիրատվության պայմանագրեր՝ դրանցում համապատասխանաբար նախատեսելով, որ Հայաստանի Հանրապետությանը կատարվող նվիրատվության գործարքի նոտարական վավերացման և գույքային իրավունքների պետական գրանցման հետ կապված ծախսերն իրականացվում են Հայաստանի Հանրապետության կառավարությանն առընթեր պետական գույքի կառավարման վարչության, իսկ Երևանի քաղաքային համայնքին կատարվող նվիրատվության գործարքի նոտարական վավերացման և գույքային իրավունքների պետական գրանցման հետ կապված ծախսերը` Երևանի քաղաքային բյուջեի միջոցների հաշվին.
2) ապահովել Հայաստանի Հանրապետությունում Չինաստանի Ժողովրդական Հանրապետության դեսպանության հետ սույն որոշման 3-րդ կետում նշված հողամասի անհատույց օգտագործման իրավունքով, 2005 թվականի հունիսի 13-ի «Հայաստանի Հանրապետության կառավարության և Չինաստանի Ժողովրդական Հանրապետության կառավարության միջև` միմյանց դեսպանությունների տեղակայման համար շենքեր և հողամասեր փոխադարձաբար տրամադրելու մասին» համաձայնագրով նախատեսված ժամկետով տրամադրելու մասին պայմանագրի կնքումը` դրանում նախատեսելով, որ գործարքի նոտարական վավերացման և գույքային իրավունքների պետական գրանցման հետ կապված ծախսերն իրականացվում են Չինաստանի Ժողովրդական Հանրապետության դեսպանության հաշվին:
Հայաստանի Հանրապետության |
Հ. Աբրահամյան |
2016 թ. փետրվարի 26 Երևան |
Հավելված N 1 ՀՀ կառավարության 2016 թվականի փետրվարի 25-ի N 175-Ա որոշման |
Հայաստանի Հանրապետության կառավարության աշխատակազմի ղեկավար-նախարար |
Դ. Հարությունյան |
Հավելված N 2 ՀՀ կառավարության 2016 թվականի փետրվարի 25-ի N 175-Ա որոշման |
Հայաստանի Հանրապետության կառավարության աշխատակազմի ղեկավար-նախարար |
Դ. Հարությունյան |
